| ||||||||||||||||||||||||
Скачать Рекомендации по применению травмобезопасных стальных настенных отопительных конвекторов с кожухом Универсал ТБ, Универсал ТБ-С, Сантехпром Авто и Сантехпром Авто-С (вторая редакция)Дата актуализации: 10.08.2017 |
| Статус: | cправочные материалы, мп, тпр |
| Название рус.: | Рекомендации по применению травмобезопасных стальных настенных отопительных конвекторов с кожухом "Универсал ТБ", "Универсал ТБ-С", "Сантехпром Авто" и "Сантехпром Авто-С" (вторая редакция) |
| Дата добавления в базу: | 21.05.2015 |
| Дата актуализации: | 05.05.2017 |
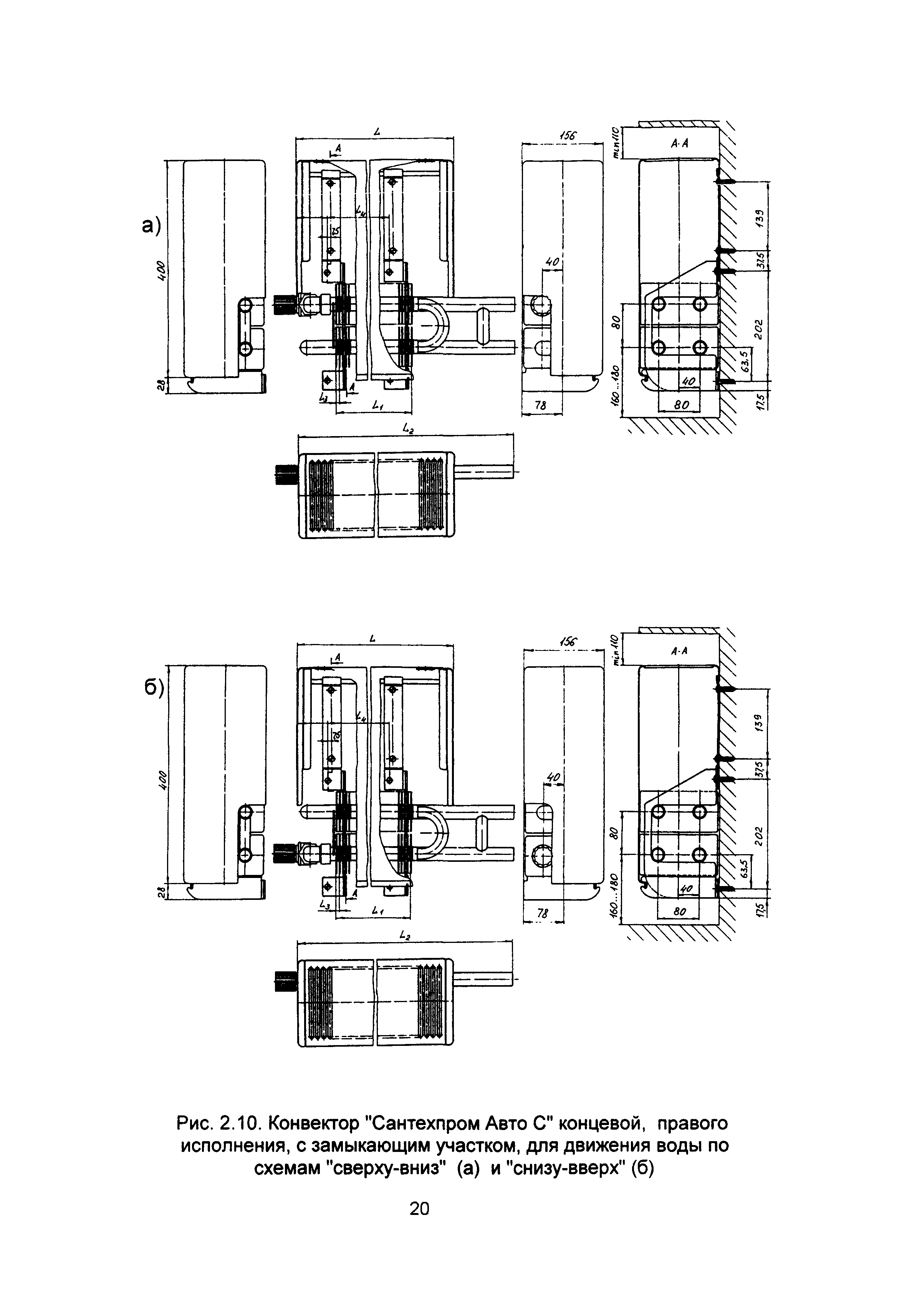
| Оглавление: | 1. Общая часть 2. Основные технические характеристики стальных травмобезопасных конвекторов с кожухом, изготовляемые ОАО "Сантехпром" 3. Схемы и элементы систем отопления 4. Гидравлический расчет 5. Тепловой расчет 6. Пример расчёта 7. Указания по монтажу стальных настенных конвекторов с кожухом, изготовляемых ОАО "Сантехпром" и основные требования к их эксплуатации 8. Список используемой литературы Приложение 1. Динамические характеристики стальных водогазопроводных труб Приложение 2. Номограмма для определения потери давления в медных трубах Приложение 3. Тепловой поток 1 м открыто проложенных вертикальных гладких металлических труб, окрашенных масляной краской |
| Разработан: | ООО ВИТАТЕРМ ФГУП НИИсантехники |
| Издан: | ОАО САНТЕХПРОМ (2000 г. ) |
| Расположен в: | |
| Чем заменён: | |
| Нормативные ссылки: |





































































