Скачать ГОСТ Р МЭК 60917-2-2-2013 Модульный принцип построения механических конструкций для радиоэлектронных средств. Часть 2. Секционный стандарт. Координационные размеры интерфейса для несущих конструкций с шагом 25 мм. Раздел 2. Детальный стандарт. Размеры блочных каркасов, шасси, объединительных плат, передних панелей и вставных блоковДата актуализации: 10.08.2017 ГОСТ Р МЭК 60917-2-2-2013
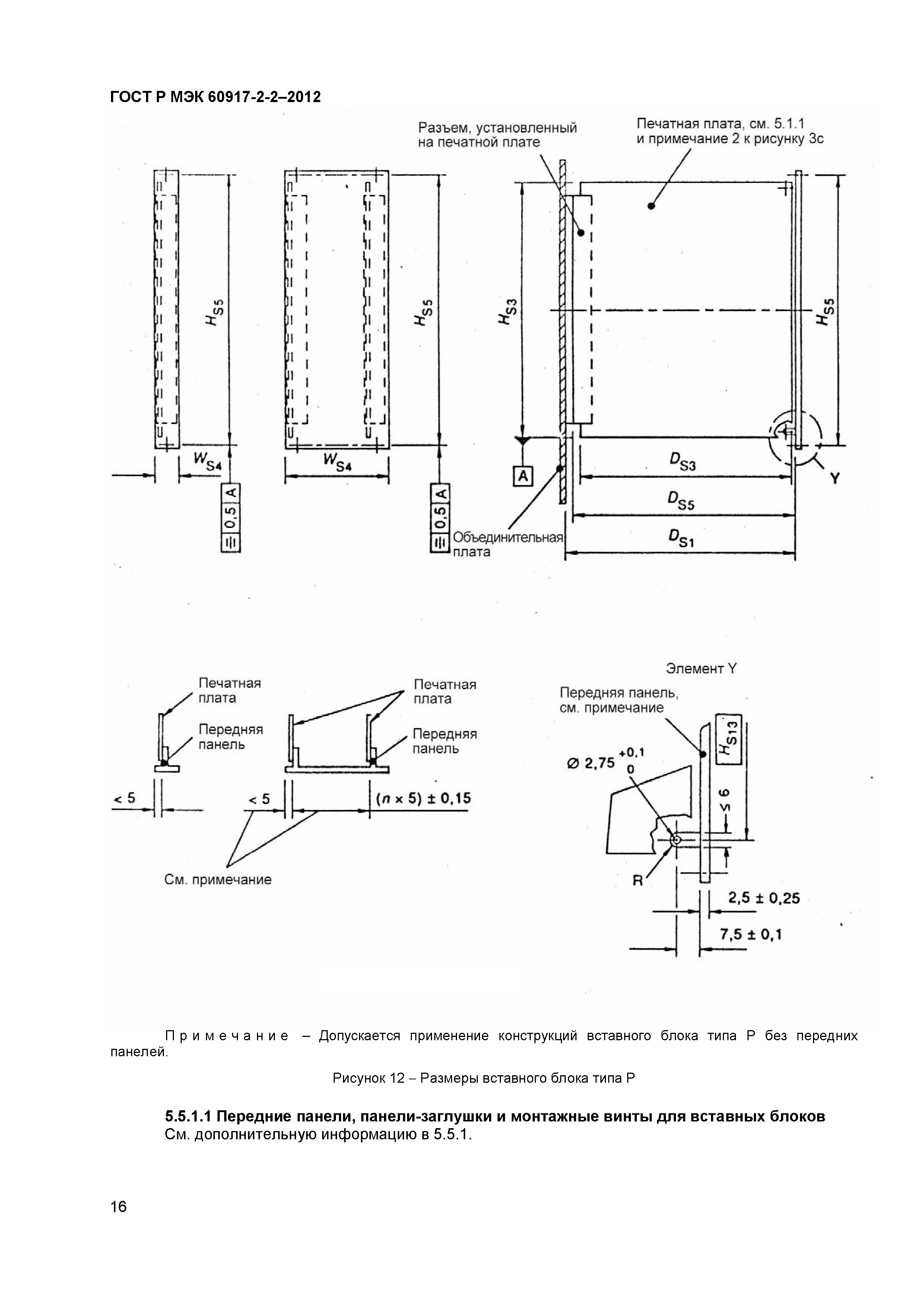
Модульный принцип построения механических конструкций для радиоэлектронных средств. Часть 2. Секционный стандарт. Координационные размеры интерфейса для несущих конструкций с шагом 25 мм. Раздел 2. Детальный стандарт. Размеры блочных каркасов, шасси, объединительных плат, передних панелей и вставных блоков| Обозначение: | ГОСТ Р МЭК 60917-2-2-2013 | | Обозначение англ: | GOST R IEC 60917-2-2-2013 | | Статус: | действует | | Название рус.: | Модульный принцип построения механических конструкций для радиоэлектронных средств. Часть 2. Секционный стандарт. Координационные размеры интерфейса для несущих конструкций с шагом 25 мм. Раздел 2. Детальный стандарт. Размеры блочных каркасов, шасси, объединительных плат, передних панелей и вставных блоков | | Название англ.: | Modular order for the development of mechanical structures for radio electronic equipment. Part 2. Sectional standard. Interface coordination dimensions for the 25 mm equipment practice. Section 2. Detail standard. Dimensions for subracks, chassis, backplanes, front panels and plug-in units | | Дата добавления в базу: | 01.10.2014 | | Дата актуализации: | 05.05.2017 | | Дата введения: | 03.03.2014 | | Область применения: | Стандарт устанавливает координационные размеры интерфейса для несущих конструкций с шагом 25 мм и представляет собой детальный стандарт, который должен применяться полностью или частично во всех областях электроники, где устройства и системы разработаны согласно частному стандарту МЭК 60917-2. Цель стандарта - стандартизация размеров, которые будут гарантировать механическую взаимозаменяемость блочных каркасов, шасси, вставных блоков, объединительных плат и передних панелей. | | Оглавление: | 1 Область применения 2 Нормативные ссылки 3 Термины и определения 4 Компоновка несущих конструкций 5 Размеры 5.1 Блочные каркасы 5.1.1 Блочный каркас типа А, применение разъема с объединительной платой 5.1.2 Блочный каркас типа В, применение разъема без объединительной платы 5.1.3 Блочный каркас типа С 5.1.4 Шасси 5.2 Объединительная плата 5.2.1 Размеры объединительной платы 5.3 Внутренняя координационная сетка и сетка объединительной платы 5.4 Передние панели на шкафах или стойках и размеры для монтажных фланцев блочных каркасов и шасси 5.5 Типы вставных блоков 5.5.1 Вставные блоки типа Р 5.5.2 Вставные блоки типа Р с рукоятками инжектора/экстрактора 5.5.3 Вставные блоки типа рамки К для размещения вставных блоков типа Р 5.5.4 Вставные блоки типа рамки L с передними панелями для размещения вставных блоков типа Р без передних панелей 5.5.5 Вставные частичные каркасы типа М с входящей направляющей 5.5.6 Вставные частичные каркасы типа NI без входящей направляющей 5.5.7 Зазор между вставными блоками в блочном каркасе 5.6 Термины, определения и таблицы размеров 5.6.1 Наименование 5.6.2 Размеры высоты 5.6.3 Размеры ширины 5.6.4 Вертикальные размеры Приложение ДА (справочное) Сведения о соответствии ссылочных международных стандартов ссылочным национальным стандартам Российской Федерации и межгосударственным | | Разработан: | ЗАО Авангард-ТехСт
| | Утверждён: | 28.06.2013 Федеральное агентство по техническому регулированию и метрологии (372-ст)
| | Издан: | Стандартинформ (2014 г. )
| | Расположен в: |
| | Нормативные ссылки: |   ГОСТ Р 51676-2000 «Конструкции несущие базовые радиоэлектронных средств. Термины и определения» ГОСТ 26246.0-89 «Материалы электроизоляционные фольгированные для печатных плат. Методы испытаний» ГОСТ 26246.10-89 «Материал электроизоляционный фольгированный тонкий общего назначения для многослойных печатных плат на основе стеклоткани, пропитанной эпоксидным связующим. Технические условия» ГОСТ 26246.11-89 «Материал электроизоляционный фольгированный тонкий нормированной горючести для многослойных печатных плат на основе стеклоткани, пропитанной эпоксидным связующим. Технические условия» ГОСТ 26246.12-89 «Пленка полиимидная фольгированная общего назначения для гибких печатных плат. Технические условия» ГОСТ 26246.13-89 «Пленка полиимидная фольгированная нормированной горючести для гибких печатных плат. Технические условия» ГОСТ 26246.14-91 «Материалы электроизоляционные фольгированные для печатных плат. Склеивающая прокладка, используемая при изготовлении многослойных печатных плат. Технические условия» ГОСТ 26246.1-89 «Материал электроизоляционный фольгированный для печатных плат на основе целлюлозной бумаги, пропитанной фенольным связующим, обладающий высокими электрическими характеристиками. Технические условия» ГОСТ 26246.2-89 «Материал электроизоляционный фольгированный экономичного сорта для печатных плат на основе целлюлозной бумаги, пропитанной фенольным связующим. Технические условия» ГОСТ 26246.3-89 «Материал электроизоляционный фольгированный нормированной горючести для печатных плат на основе целлюлозной бумаги, пропитанной эпоксидным связующим. Технические условия» ГОСТ 26246.4-89 «Материал электроизоляционный фольгированный общего назначения для печатных плат на основе стеклоткани, пропитанной эпоксидным связующим. Технические условия» ГОСТ 26246.5-89 «Материал электроизоляционный фольгированный нормированной горючести для печатных плат на основе стеклоткани, пропитанной эпоксидным связующим. Технические условия» ГОСТ 26246.6-89 «Материал электроизоляционный фольгированный нормированной горючести для печатных плат на основе целлюлозной бумаги, пропитанной фенольным связующим (горизонтальный метод горения). Технические условия» ГОСТ 26246.7-89 «Материал электроизоляционный фольгированный нормированной горючести для печатных плат на основе целлюлозной бумаги, пропитанной фенольным связующим (вертикальный метод горения). Технические условия» ГОСТ 26246.8-89 «Пленка полиэфирная фольгированная для гибких печатных плат. Технические условия» ГОСТ 26246.9-89 «Материал электроизоляционный фольгированный нормированной горючести для печатных плат на основе нетканой (тканой) стеклоткани, пропитанной эпоксидным связующим. Технические условия» ГОСТ Р 50624-93 «Материал электроизоляционный фольгированный нормированной горючести для печатных плат на основе целлюлозной бумаги, пропитанной эпоксидным связующим (внутренние слои), и стеклоткани, пропитанной эпоксидным связующим (наружные слои) (вертикальный метод горения). Технические условия» ГОСТ Р 50625-93 «Материал электроизоляционный фольгированный экономичного сорта, нормированной горючести для печатных плат на основе целлюлозной бумаги, пропитанной фенольным связующим (вертикальный метод горения). Технические условия»  ГОСТ Р 52003-2003 «Уровни разукрупнения радиоэлектронных средств. Термины и определения» ГОСТ Р МЭК 60917-1-2011 «Модульный принцип построения базовых несущих конструкций для электронного оборудования. Часть 1. Общий стандарт» ГОСТ Р МЭК 60917-2-2011 «Модульный принцип построения базовых несущих конструкций для электронного оборудования. Часть 2. Секционный стандарт. Координационные размеры интерфейса для несущих конструкций с шагом 25 мм» ГОСТ Р МЭК 60917-2-1-2011 «Модульный принцип построения базовых несущих конструкций для электронного оборудования. Часть 2. Секционный стандарт. Координационные размеры интерфейса для несущих конструкций с шагом 25 мм. Раздел 1. Детальный стандарт. Размеры шкафов и стоек»
|
                              
|