| ||||||||||||||||||||||||||||||||||||||
Скачать ГОСТ 15518-83 Аппараты теплообменные пластинчатые. Типы, основные параметры и размеры. Технические требованияДата актуализации: 10.08.2017
|
| Обозначение: | ГОСТ 15518-83 |
| Обозначение англ: | GOST 15518-83 |
| Статус: | заменен |
| Название рус.: | Аппараты теплообменные пластинчатые. Типы, основные параметры и размеры. Технические требования |
| Название англ.: | Plate heat exchanges. Types basic parameters and dimensions. Technical requirements |
| Дата добавления в базу: | 01.10.2014 |
| Дата актуализации: | 05.05.2017 |
| Дата введения: | 01.01.1990 |
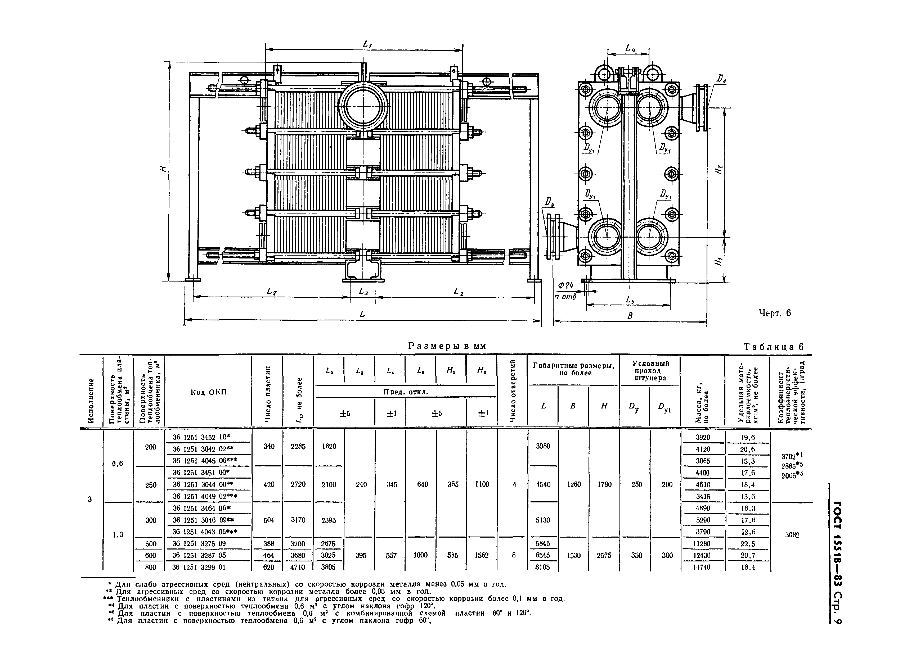
| Область применения: | Стандарт распространяется на теплообменные пластинчатые аппараты поверхностью теплообмена от 1 до 800 м кв, работающие при избыточном давлении не более 4,0 МПа, а также под вакуумом с остаточным давлением не ниже 0,002 МПа и температура рабочих сред от минус 40 до плюс 300 град. С. |
| Оглавление: | 1. Типы. Основные параметры и размеры 2. Технические требования Приложение 1 (справочное) Структурная схема условного обозначения теплообменника Приложение 2 (справочное) Пояснение термина, используемого в настоящем стандарте |
| Разработан: | Министерство химического и нефтяного машиностроения |
| Утверждён: | 24.02.1983 Государственный комитет СССР по стандартам (USSR National Committee on Standards 926) 31.03.1984 Госстандарт (1173) |
| Издан: | Издательство стандартов (1984 г. ) |
| Расположен в: | |
| Заменяет собой: |
|
| Чем заменён: | |
| Нормативные ссылки: |
|

















