Информационная система
«Ёшкин Кот»

Скачать базу одним архивом
Скачать обновления
История создания базы
Карта сайта

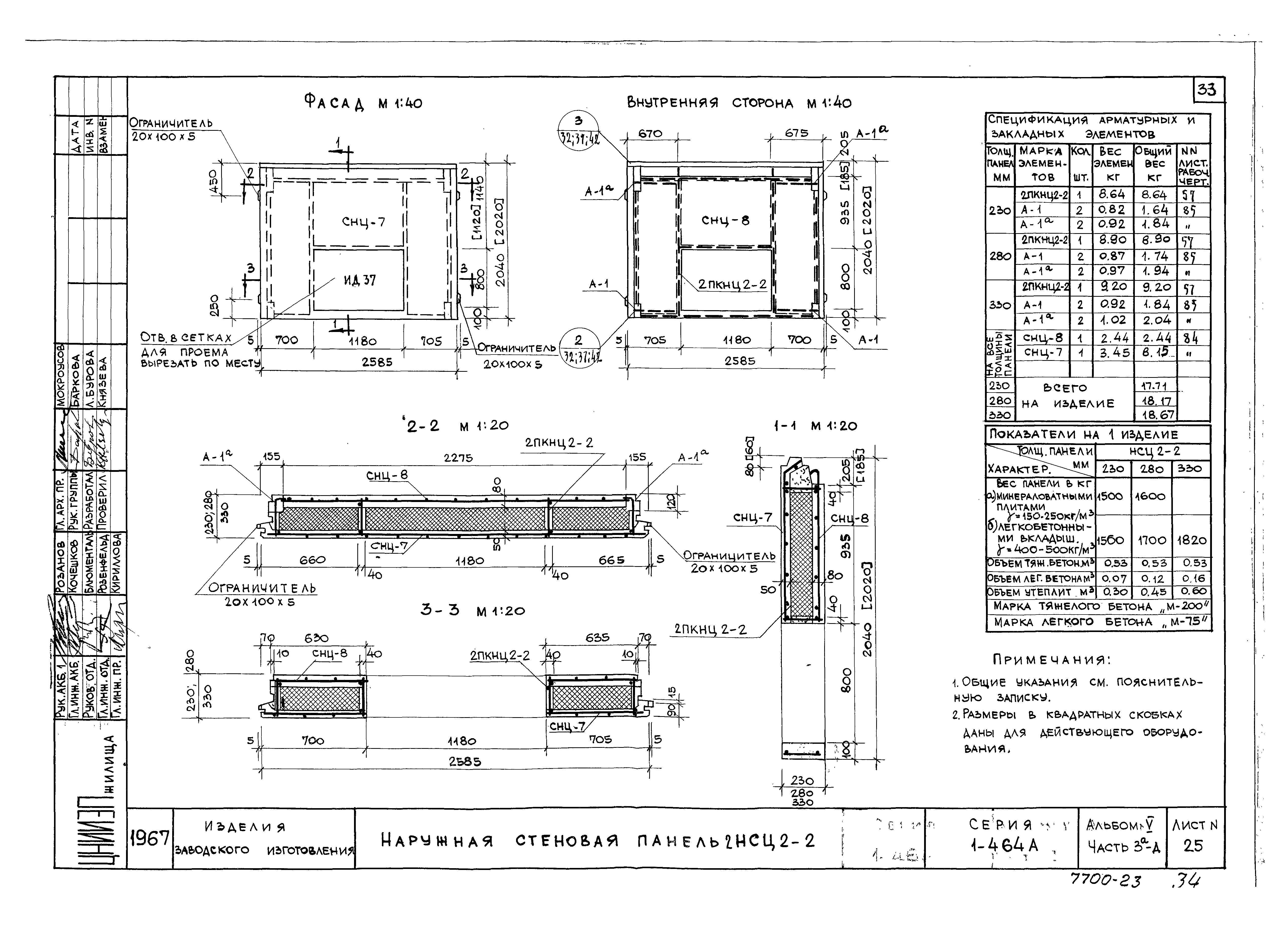
Скачать Типовой проект Серия 1-464А Альбом V. Часть 3а-Д. Наружные стеновые панели многослойной конструкции (со столярными изделиями по ГОСТу 11214-65)

Дата актуализации: 10.08.2017

Типовой проект Серия 1-464А

Альбом V. Часть 3а-Д. Наружные стеновые панели многослойной конструкции (со столярными изделиями по ГОСТу 11214-65)

Обозначение: Типовой проект Серия 1-464А
Обозначение англ: Серия 1-464А
Статус:действует
Название рус.:Альбом V. Часть 3а-Д. Наружные стеновые панели многослойной конструкции (со столярными изделиями по ГОСТу 11214-65)
Дата добавления в базу:01.10.2014
Дата актуализации:05.05.2017
Оглавление:Содержание альбома
Пояснительная записка
Таблица приведенных сопротивлений теплопередаче Rпр0
Наружные стеновые панели
Узлы наружных стеновых панелей толщиной 250 мм (и 230 мм цокольных)
Узлы наружных стеновых панелей толщиной 300 мм (и 280 мм цокольных)
Узлы наружных стеновых панелей толщиной 350 мм (и 330 мм цокольных)
Узлы наружных стеновых панелей с установкой закладных деталей
Пространственные каркасы наружных стеновых панелей
Узлы пространственных каркасов
Арматурные каркасы наружных стеновых панелей
Арматурные сетки наружных стеновых панелей
Анкеры и закладные детали для наружных стеновых панелей
Подъемные петли для наружных стеновых панелей
Раскладка утеплителя в наружных стеновых панелях толщиной 250 мм и 300 мм
Раскладка утеплителя в наружных стеновых панелях толщиной 230 мм и 280 мм
Схемы расположения деревянных пробок и деталей установки столярных изделий в наружных стеновых панелях
Узлы наружных стеновых панелей толщиной 250 мм
Узлы наружных стеновых панелей толщиной 300 мм
Узлы наружных стеновых панелей толщиной 350 мм
Детали установки столярных изделий в проемах стеновых панелей
Детали установки столярных изделий с двойными переплетами в проемах стеновых панелей
Детали установки столярных изделий со спаренными переплетами в проемах стеновых панелей
Детали установки столярных изделий с двойными переплетами в проемах стеновых панелей
Детали установки столярных изделий со спаренными переплетами в проемах стеновых панелей
Детали блокировки столярных изделий
Детали установки столярных изделий в проемах стеновых панелей
Разработан: ЦНИИЭП жилища
Утверждён:20.02.1968 ЦНИИЭП жилища (TsNIIEPzhilishcha 32)
Расположен в:Техническая документация Строительство Справочные документы Типовые строительные конструкции, изделия и узлы Общероссийский строительный каталог Жилые здания для строительства в сельской местности Жилые дома панельные Серия 1-464А
Типовой проект Серия 1-464АТиповой проект Серия 1-464АТиповой проект Серия 1-464АТиповой проект Серия 1-464АТиповой проект Серия 1-464АТиповой проект Серия 1-464АТиповой проект Серия 1-464АТиповой проект Серия 1-464АТиповой проект Серия 1-464АТиповой проект Серия 1-464АТиповой проект Серия 1-464АТиповой проект Серия 1-464АТиповой проект Серия 1-464АТиповой проект Серия 1-464АТиповой проект Серия 1-464АТиповой проект Серия 1-464АТиповой проект Серия 1-464АТиповой проект Серия 1-464АТиповой проект Серия 1-464АТиповой проект Серия 1-464АТиповой проект Серия 1-464АТиповой проект Серия 1-464АТиповой проект Серия 1-464АТиповой проект Серия 1-464АТиповой проект Серия 1-464АТиповой проект Серия 1-464АТиповой проект Серия 1-464АТиповой проект Серия 1-464АТиповой проект Серия 1-464АТиповой проект Серия 1-464АТиповой проект Серия 1-464АТиповой проект Серия 1-464АТиповой проект Серия 1-464АТиповой проект Серия 1-464АТиповой проект Серия 1-464АТиповой проект Серия 1-464АТиповой проект Серия 1-464АТиповой проект Серия 1-464АТиповой проект Серия 1-464АТиповой проект Серия 1-464АТиповой проект Серия 1-464АТиповой проект Серия 1-464АТиповой проект Серия 1-464АТиповой проект Серия 1-464АТиповой проект Серия 1-464АТиповой проект Серия 1-464АТиповой проект Серия 1-464АТиповой проект Серия 1-464АТиповой проект Серия 1-464АТиповой проект Серия 1-464АТиповой проект Серия 1-464АТиповой проект Серия 1-464АТиповой проект Серия 1-464АТиповой проект Серия 1-464АТиповой проект Серия 1-464АТиповой проект Серия 1-464АТиповой проект Серия 1-464АТиповой проект Серия 1-464АТиповой проект Серия 1-464АТиповой проект Серия 1-464АТиповой проект Серия 1-464АТиповой проект Серия 1-464АТиповой проект Серия 1-464АТиповой проект Серия 1-464АТиповой проект Серия 1-464АТиповой проект Серия 1-464АТиповой проект Серия 1-464АТиповой проект Серия 1-464АТиповой проект Серия 1-464АТиповой проект Серия 1-464АТиповой проект Серия 1-464АТиповой проект Серия 1-464АТиповой проект Серия 1-464АТиповой проект Серия 1-464АТиповой проект Серия 1-464АТиповой проект Серия 1-464АТиповой проект Серия 1-464АТиповой проект Серия 1-464АТиповой проект Серия 1-464АТиповой проект Серия 1-464АТиповой проект Серия 1-464АТиповой проект Серия 1-464АТиповой проект Серия 1-464АТиповой проект Серия 1-464АТиповой проект Серия 1-464АТиповой проект Серия 1-464АТиповой проект Серия 1-464АТиповой проект Серия 1-464АТиповой проект Серия 1-464АТиповой проект Серия 1-464АТиповой проект Серия 1-464АТиповой проект Серия 1-464АТиповой проект Серия 1-464АТиповой проект Серия 1-464АТиповой проект Серия 1-464АТиповой проект Серия 1-464АТиповой проект Серия 1-464АТиповой проект Серия 1-464АТиповой проект Серия 1-464АТиповой проект Серия 1-464АТиповой проект Серия 1-464АТиповой проект Серия 1-464АТиповой проект Серия 1-464АТиповой проект Серия 1-464АТиповой проект Серия 1-464АТиповой проект Серия 1-464АТиповой проект Серия 1-464АТиповой проект Серия 1-464АТиповой проект Серия 1-464АТиповой проект Серия 1-464АТиповой проект Серия 1-464АТиповой проект Серия 1-464АТиповой проект Серия 1-464АТиповой проект Серия 1-464АТиповой проект Серия 1-464А

© 2013 Ёшкин Кот :-) Карта сайта