| ||||||||||||||||||||||||||||||||
Скачать СТО НААГ 3.1-2013 Конструкции с применением автоклавного газобетона в строительстве зданий и сооружений. Правила проектирования и строительстваДата актуализации: 10.08.2017
|
| Обозначение: | СТО НААГ 3.1-2013 |
| Обозначение англ: | 3.1-2013 |
| Статус: | действует |
| Название рус.: | Конструкции с применением автоклавного газобетона в строительстве зданий и сооружений. Правила проектирования и строительства |
| Дата добавления в базу: | 01.10.2014 |
| Дата актуализации: | 05.05.2017 |
| Дата введения: | 16.05.2013 |
| Область применения: | Стандарт организации (СТО) разработан с целью актуализации основных расчетных характеристик, конструктивных требований и рекомендаций, касающихся применения изделий из автоклавного ячеистого бетона в строительстве. В стандарте даны указания по использованию неармированных изделий по ГОСТ 31360-2007 при наличии основных сведений по использованию армированных брусковых перемычек и панелей. В СТО за основу рекомендаций взята современная номенклатура изделий из автоклавного ячеистого бетона. Предложенные конструктивные решения ограждающих конструкций являются оптимизированным обобщением опыта строительства, накопленного в России и за рубежом в последние годы. В связи с разнообразием климатических условий регионов применения автоклавного газобетона и с наличием региональных особенностей основных характеристик изделий из автоклавного газобетона конструктивные решения приведены в общем виде. Для применения решений из настоящего СТО в качестве основы рабочих чертежей рекомендуется провести локализацию положений стандарта. Стандарт распространяется на проектирование и возведение конструкций из ячеистобетонных изделий автоклавного твердения. СТО устанавливает показатели качества и безопасности конструкций из изделий, произведенных в соответствии с требованиями ГОСТ 31359-2007 и ГОСТ 31360-2007 при проектировании и строительстве жилых и общественных зданий на территории Российской Федерации. СТО распространяется на разработку технических условий, проектной и технологической документации на дома и конструкции из ячеистобетонных блоков, а также на их изготовление и использование в новом строительстве и реконструкции зданий и сооружений. СТО распространяется на все виды гражданских зданий во всех климатических зонах. |
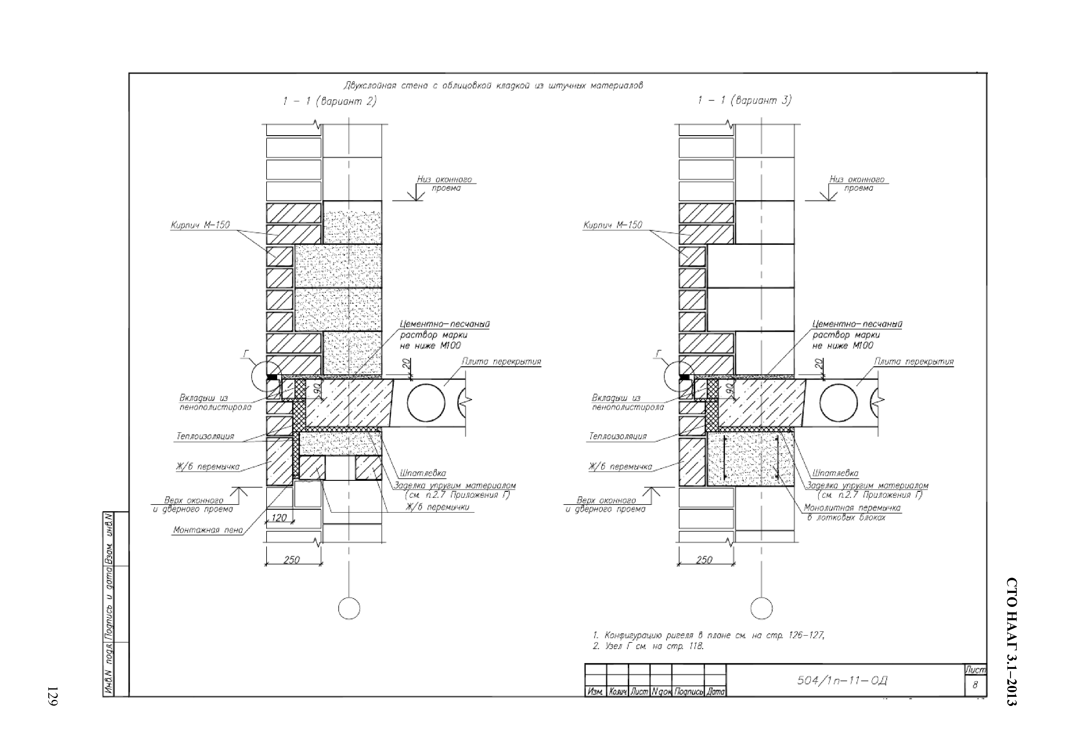
| Оглавление: | Введение 1 Область применения 2 Нормативные ссылки 3 Термины и определения 4 Общие технические требования к автоклавным ячеистым бетонам и номенклатура неармированных изделий из них 5 Общие положения по теплотехническому расчету стен из блоков 6 Конструирование стен 6.1 Общие положения 6.2 Конструктивные требования к кладке 6.3 Растворные швы 6.4 Армирование и деформационные швы 7 Конструктивные решения несущих стен 7.1 Минимальные требования 7.2 Опирание элементов конструкций на кладку 7.3 Сопряжение конструкций 8 Конструктивные решения поэтажно опертых стен 8.1 Общие конструктивные схемы 8.2 Закрепление к несущим конструкциям 8.3 Обеспечение замкнутости теплозащитной оболочки 8.4 Двухслойные стены 9 Расчет кладки из блоков по несущей способности 10 Расчет кладки из блоков на звукоизоляцию 11 Отделка стен из ячеистобетонных блоков 12 Растворы (клеи) для кладки стен из блоков 13 Правила транспортировки и хранения блоков, производства и приемки работ по ведению кладки из блоков 13.1 Транспортировка и хранение 13.2 Производство работ 13.3 Приемка работ Приложение А. Расчетные теплотехнические показатели ячеистых бетонов автоклавного твердения и значения коэффициентов теплопроводности для некоторых типов кладок Приложение Б. Руководство по наружной отделке стен из ячеистобетонных блоков автоклавного твердения Приложение В. Узлы и детали сопряжений конструктивных элементов зданий с применением ячеистого бетона автоклавного твердения в малоэтажном строительстве Приложение Г. Узлы и детали сопряжения элементов наружных стеновых ограждений с поэтажным опиранием кладки из ячеистобетонных блоков в зданиях с железобетонным несущим каркасом Приложение Д. Расчет перегородок из блоков автоклавного ячеистого бетона классов по прочности В2 – В2,5 на устойчивость Приложение Е. Примеры расчета несущей способности кладки и поэтажно опертых стен Приложение Ж. Перечень нормативных документов Приложение З. Термины и определения |
| Разработан: | ОАО Главновосибирскстрой ОАО Коттедж НААГ ФБГОУ ВПО СПб ГПУ РУП Институт БелНИИС Центр ячеистых бетонов при НП Северо-западная строительная палата ЗАО АэроБел ООО Аэрок Санкт-Перербург ОАО Бонолит - Строительные решения ООО Главстрой - Усть-Лабинск ЗАО ЕвроАэроБетон ЗАО Кселла - Аэроблок - Центр ООО КСМК ООО Производственно-Строительное Объединение Теплит ООО Эко ООО Н + Н ЗАО Межрегиональная производственно-ресурсная корпорация ГРАС |
| Утверждён: | 16.05.2013 Национальная ассоциация производителей автоклавного газобетона |
| Расположен в: | |
| Заменяет собой: |
|
| Нормативные ссылки: |
|















































































































































































