Скачать Типовой проект 805-5-5.86 Альбом 2. Архитектурно-строительные чертежиДата актуализации: 10.08.2017 Типовой проект 805-5-5.86
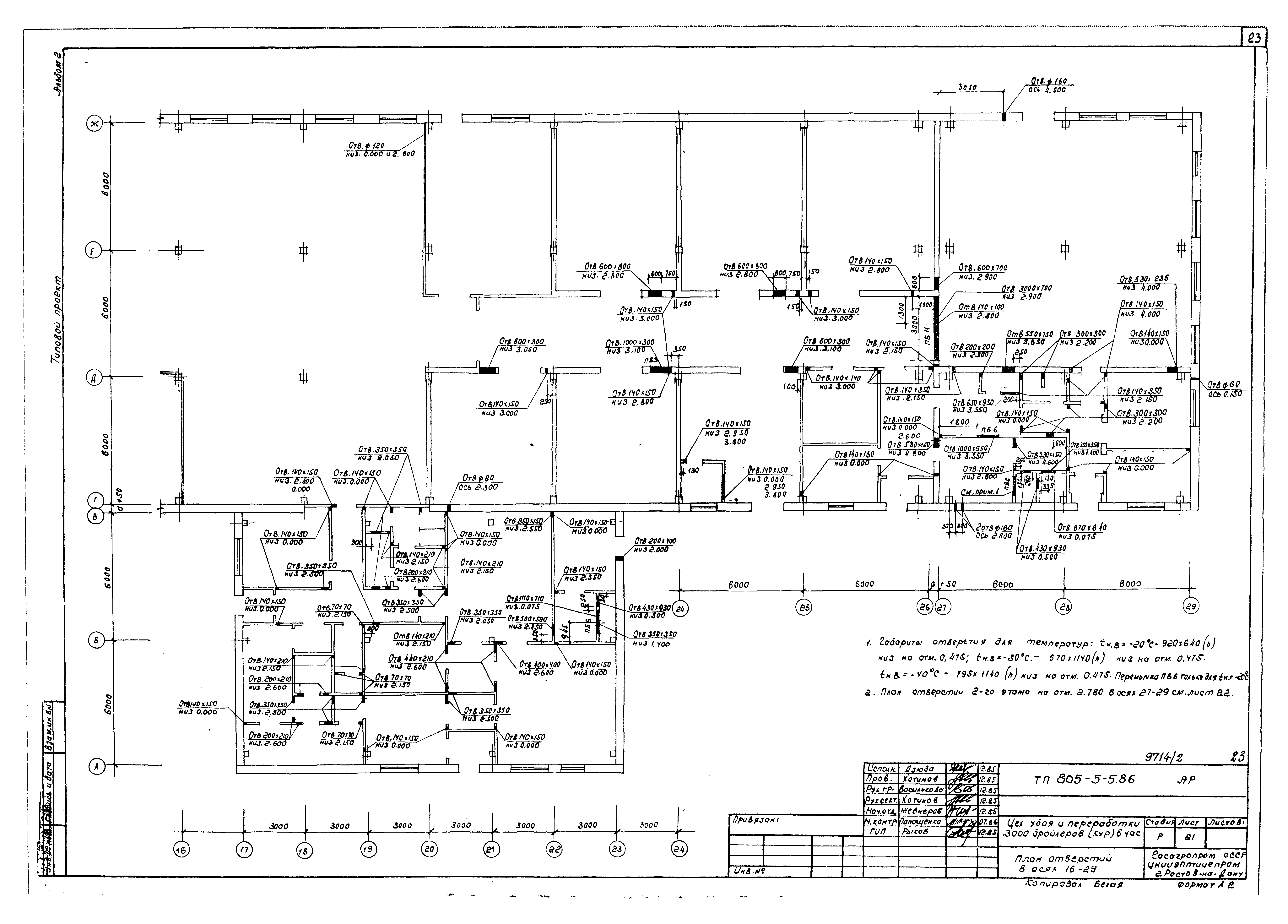
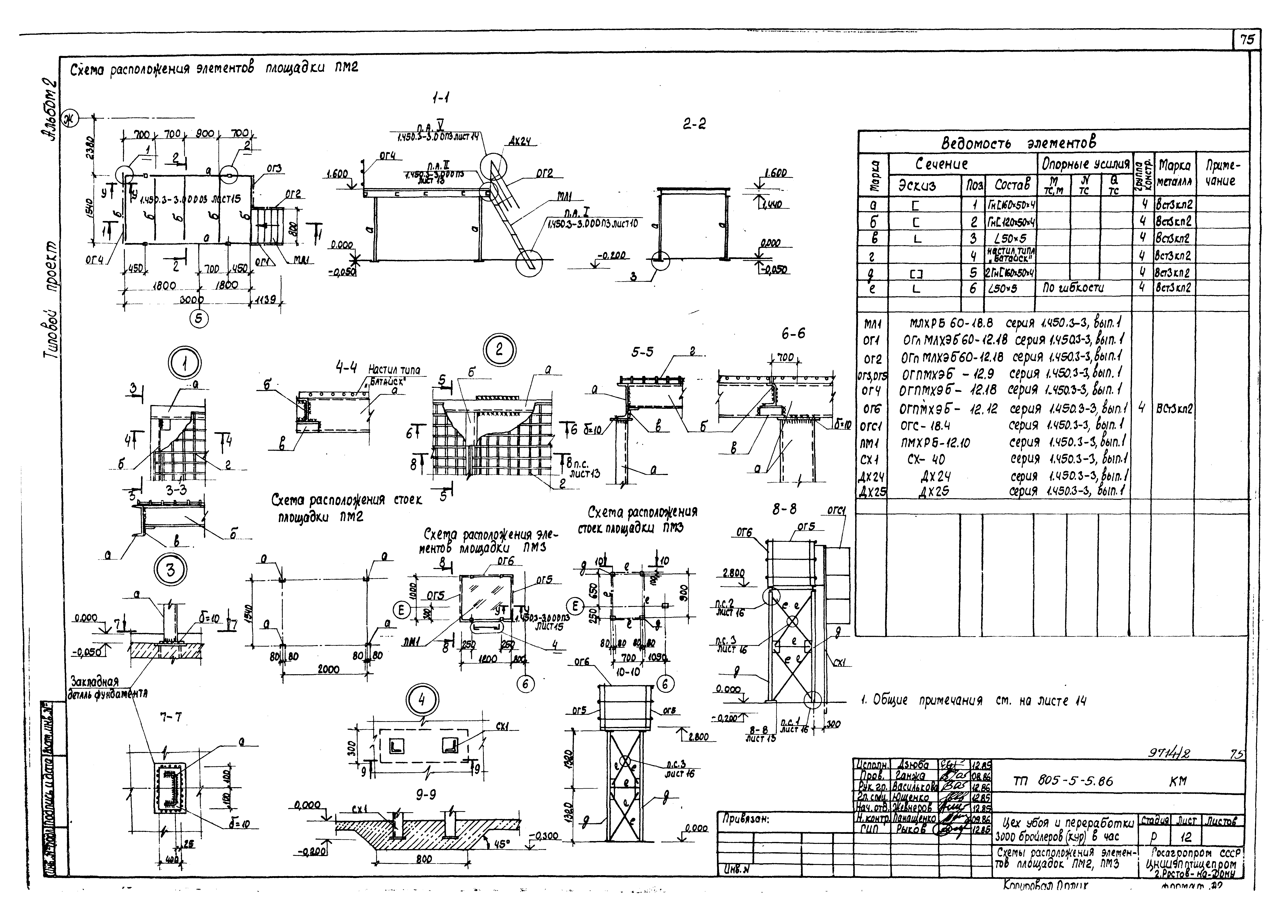
Альбом 2. Архитектурно-строительные чертежиОбозначение: | Типовой проект 805-5-5.86 | Обозначение англ: | 805-5-5.86 | Статус: | не определен законодательством | Название рус.: | Альбом 2. Архитектурно-строительные чертежи | Дата добавления в базу: | 01.10.2014 | Дата актуализации: | 05.05.2017 | Дата введения: | 20.10.1986 | Оглавление: | Ведомость чертежей основных комплектов альбома Чертежи основного комплекта марки АР Общие данные Ведомость отделки помещений План на отм. 0.000 в осях 1 - 10 План на отм. 0.000 в осях 10 - 16 План на отм. 0.000 в осях 16 - 29 Экспликация помещений План кровли. Разрезы. План 2-го этажа План полов Фасады Схемы расположения перегородок из профильного стекла Схемы расположения щитовых перегородок кабин уборных и душевых Схемы расположения асбестоцементных листов покрытия и стен разгрузочной эстакады Схемы расположения асбестоцементных листов покрытия навесов Схема расположения металлических рам РМ1 Узлы 1…11 Схемы устройства теплоизоляции из ПСБ-С по кирпичным перегородкам и стеновым панелям Указания по производству теплоизоляционных работ План отверстий в осях 1 - 10 План отверстий в осях 16 - 29 Фрагмент плана отверстий в осях 6-9/1. План отверстий 2-го этажа Лестница пожарная ЛП1. Узлы 1, 2 Чертежи основного комплекта марки КЖ Общие данные Схема расположения элементов фундаментов Сечения 1-1 - 13-13. Спецификация к схеме расположения элементов фундаментов Узлы 1, 2 Узлы 3 - 5 Узлы 6, 7 Узлы 8, 9. Фрагмент 1 Фрагмент схемы 1 Фундаменты Фм1, Фм2 Приямки Пр1 - Пр3 Приямки Пр4 - Пр6 Приямок Пр7 Спецификация элементов на приямки Пр1 - Пр7 Схемы расположения монолитных фундаментов под стойки площадок и навесов Схема расположения ограждения конденсаторной площадки. Схема расположения фундаментов под стойки и оборудование Схема расположения элементов подземного хозяйства в осях 1 - 10 Схема расположения элементов подземного хозяйства в осях 10 - 17 Схема расположения элементов подземного хозяйства в осях 18 - 29 Спецификация к схемам расположения элементов подземного хозяйства Фундаменты под оборудование ФОм1 - ФОм16 Фундаменты под оборудование ФОм17 - ФОм32 Схема расположения колонн и балок Виды 2-2 - 14-14 Узлы 2 - 9 к схеме расположения колонн и балок Спецификация к схеме расположения колонн и балок Схема расположения плит покрытия. Схема расположения плит перекрытия Сечения 1-1 - 10-10 к схемам на листе КЖ-28 Схемы расположения плит перекрытия. Схема расположения анкеров для крепления деревянных брусьев Спецификация к схемам расположения плит покрытия, перекрытия, анкеров Схемы расположения стеновых панелей Узлы 1 - 4. Спецификация к схемам расположения стеновых панелей План железобетонных перегородок Схемы расположения панелей перегородок Чертежи основного комплекта марки КМ Общие данные Техническая спецификация металла Схемы стальных обвязок перегородок Схема расположения элементов каркаса для подвески конвейеров Сечения 1-1 - 5-5. Узлы 4, 5 Схемы расположения подвесных путей для электрических талей Узлы 2, 3. Фрагмент 1. Сечения 7-7, 8-8 Схема расположения элементов площадки ПМ1 Схемы расположения элементов площадок ПМ2, ПМ3 Схема расположения элементов площадки ПМ4 Схема расположения элементов площадки ПМ5 Схема расположения элементов площадки ПМ6 Схема расположения рам, прогонов и связей разгрузочной эстакады Схемы расположения элементов навесов в осях 1 - 2 и Д - Е Рамы Р1 - Р3 Схемы расположения балок и щитов перекрытия приямков Пр1, Пр3, Пр4 Схемы расположения балок и щитов перекрытия приямков Пр5, Пр6 | Разработан: | ЦНИИЭПптицепром Минсельхоза СССР
| Утверждён: | 25.06.1986 Госагропром СССР (USSR Gosagroprom 9-ЭТ)
| Издан: | ЦИТП Госстроя СССР (CITP, Gosstroy (USSR) 1988 г. )
| Расположен в: |
|
                                                                                   
|