Информационная система
«Ёшкин Кот»

Скачать базу одним архивом
Скачать обновления
История создания базы
Карта сайта

Скачать Типовой проект 264-12-318.92 Альбом 13. Часть 2. Механооборудование

Дата актуализации: 10.08.2017

Типовой проект 264-12-318.92

Альбом 13. Часть 2. Механооборудование

Обозначение: Типовой проект 264-12-318.92
Обозначение англ: 264-12-318.92
Статус:не определен законодательством
Название рус.:Альбом 13. Часть 2. Механооборудование
Дата добавления в базу:01.10.2014
Дата актуализации:05.05.2017
Дата введения:17.09.1992
Оглавление:М.40 Подъемник сейфа
М.40.10 Траверса
М.40.10.100 Корпус
М.40СБ Подъемник из сейфа. Сборочный чертеж
М.40.10СБ Траверса. Сборочный чертеж
М.40.10.100СБ Корпус. Сборочный чертеж
М.40.20 Дорога
М.40.20СБ Дорога. Сборочный чертеж
М.40.30 Башмак
М.40.30.100 Корпус
М.40.30СБ Башмак. Сборочный чертеж
М.40.30.100СБ Корпус. Сборочный чертеж
М.40.10.101 Основание
М.40.10.102 Скоба
М.40.10.109 Упор
М.40.10.001 Ось
М.40.30.001 Связь
М.40.30.002 Ось
М.40.30.003 Рычаг
М.40.30.004 Втулка
М.60 Люки дымовые
М.40.30.102 Стойка
М.60СБ Люки дымовые. Сборочный чертеж
М.60.10 Клапан
М.60.10.100.10.003 Скоба
М.60.10СБ Клапан. Сборочный чертеж
М.60.10.100 Каркас
М.60.10.102 Стойка
М.60.10.101 Стойка
М.60.10.100СБ Каркас. Сборочный чертеж
М.60.10.100.10.001 Ось
М.60.10.100.10 Шарнир поворотного клапана
М.60.10.100.10СБ Шарнир поворотного клапана. Сборочный чертеж
М.60.10.103 Перекладина
М.60.10.104 Планка
М.60.10.105 Перекладина
М.60.10.106 Перекладина
М.60.20 Окантовка
М.60.20.001 Планка
М.60.20СБ Окантовка. Сборочный чертеж
М.60.20.002 Планка
М.60.10.100.10.002 Подшипник
М.70 Дверь противопожарная
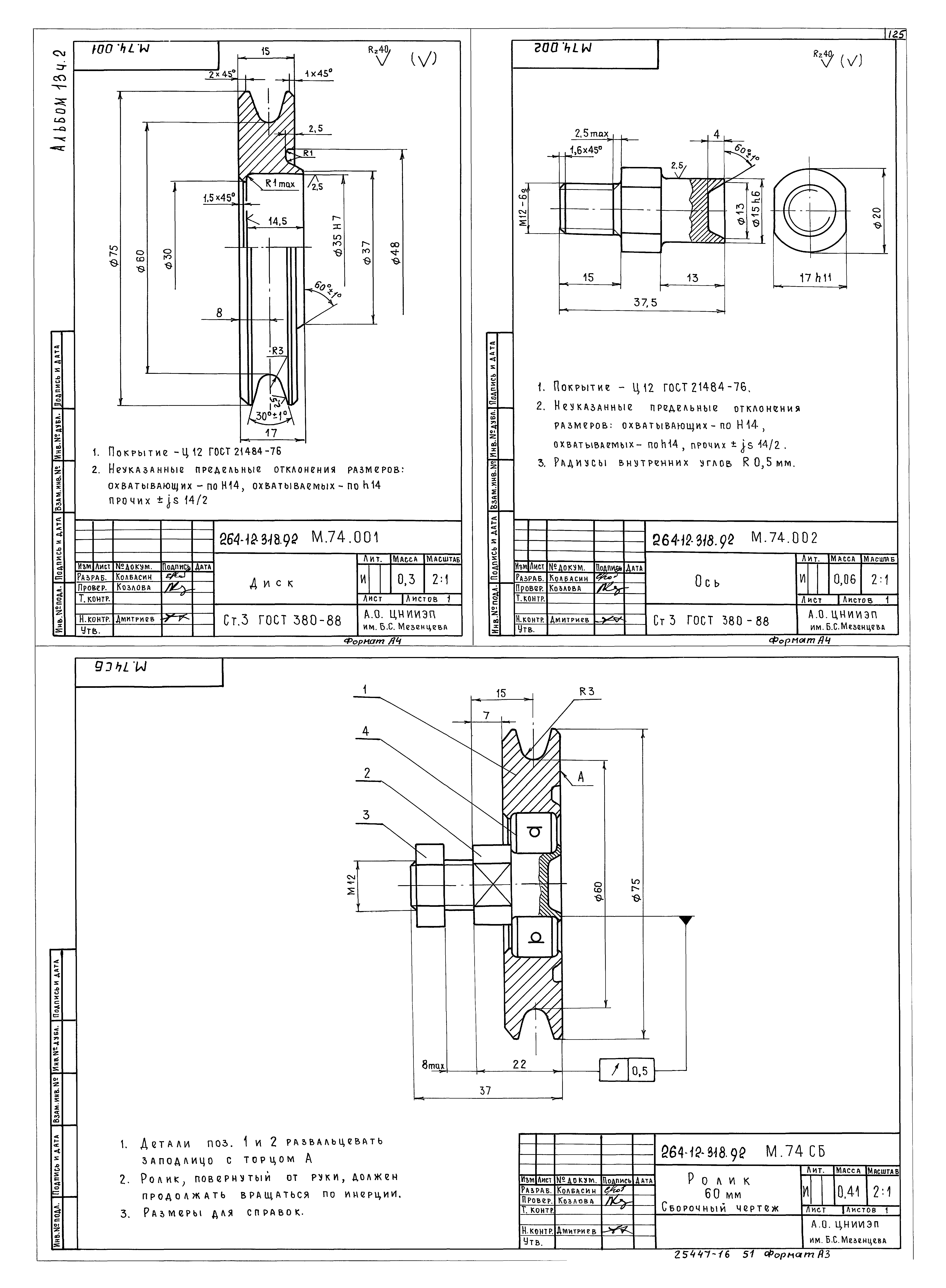
М.74 Ролик 60 мм
М.71 Ограждение
М.70СБ Дверь противопожарная. Сборочный чертеж
М.71СБ Ограждение. Сборочный чертеж
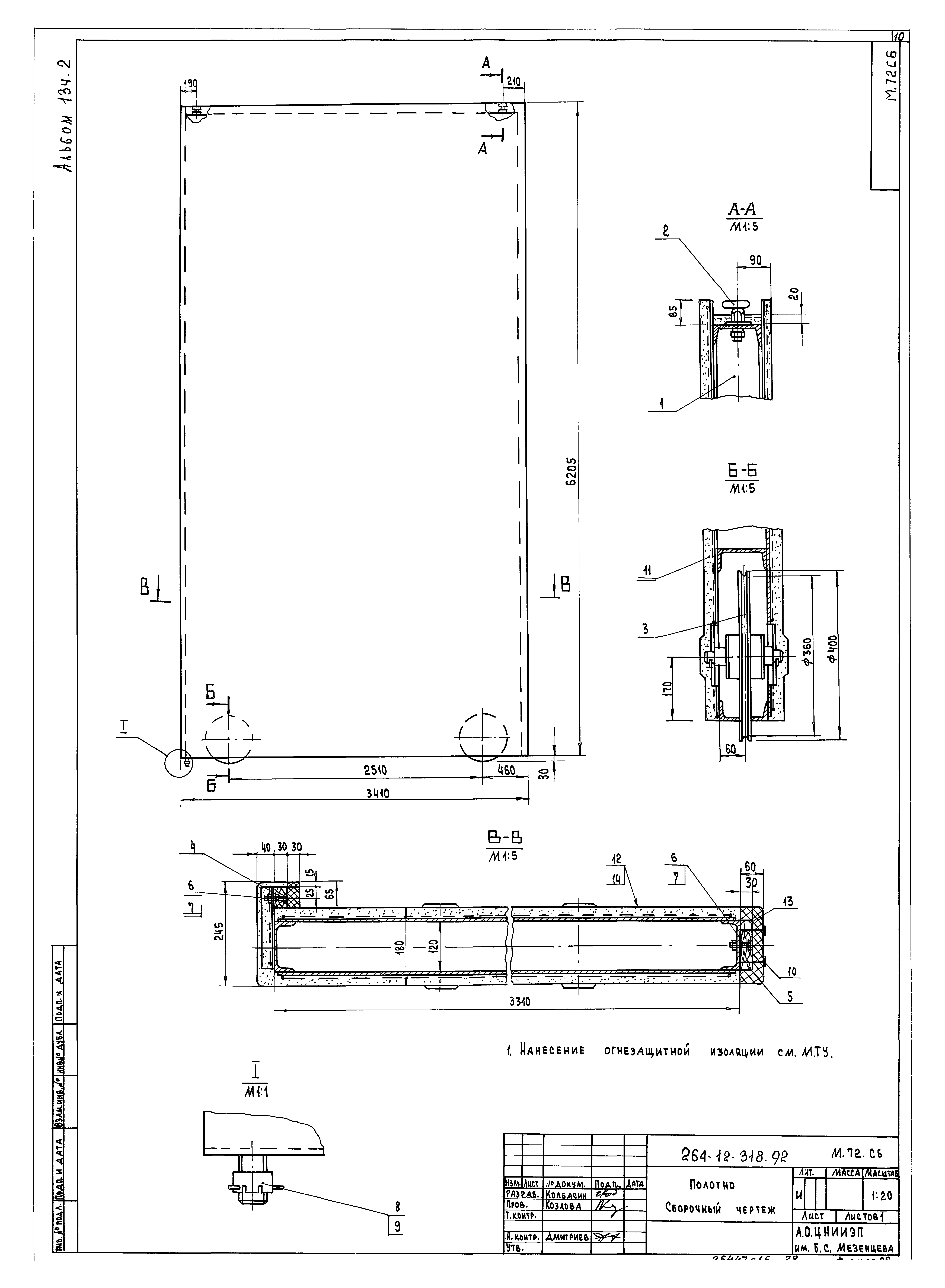
М.72 Полотно
М.72.102 Перекладина
М.72СБ Полотно. Сборочный чертеж
М.72.100 Каркас
М.72.105 Перекладина
М.72.100СБ Каркас. Сборочный чертеж
М.72.320.001 Пластина
М.72.320.002 Оседержатель
М.72.200 Ролик направляющий
М.72.200СБ Ролик направляющий. Сборочный чертеж
М.72.201 Ролик
М.72.202 Ось
М.72.107 Водило
М.72.300 Установка колеса
М.72.310 Колесо
М.72.300СБ Установка колеса. Сборочный чертеж
М.72.310СБ Колесо. Сборочный чертеж
М.72.311.002 Ступица
М.72.320 Планка
М.72.320СБ Планка. Сборочный чертеж
М.72.310.001 Ось
М.72.311.001 Диск
М.72.310.002 Крышка
М.72.311 Корпус
М.72.311СБ Корпус. Сборочный чертеж
М.73 Лебедка противопожарной двери
М.73.10.001 Кривошип
М.73СБ Лебедка противопожарной двери. Сборочный чертеж
М.73.100 Корпус
М.73.103 Кольцо упорное
М.73.100СБ Корпус. Сборочный чертеж
М.73.102 Кольцо
М.73.012 Винт зажимной
М.73.101 Труба
М.73.200 Барабан
М.73.10.003 Кольцо
М.73.200СБ Барабан. Сборочный чертеж
М.73.201 Ступица
М.73.202 Диск
М.73.203 Обечайка
М.73.204 Реборда
М.73.10 Рукоятка
М.73.10.002 Ручка
М.73.10СБ Рукоятка. Сборочный чертеж
М.73.001 Крышка
М.73.002 Гайка
М.73.003 Втулка
М.73.004 Пружина
М.73.005 Штифт
М.73.006 Вал мокрый
М.73.008 Кольцо
М.73.007 Вал большой
М.73.009 Винт
М.73.011 Ручка шаровая
М.73.010 Вал
М.74СБ Ролик 60 мм. Сборочный чертеж
М.74.001 Диск
М.74.002 Ось
М.80 Круг вращающийся
М.80.10 Круг
М.80СБ Круг вращающийся. Сборочный чертеж
М.80.10СБ Круг. Сборочный чертеж
М.80.10.100 Каркас
М.80.10.100СБ Каркас. Сборочный чертеж
М.80.10.101 Косынка
М.80.10.102 Платик
М.80.10.103 Уголок
М.80.10.104 Уголок
М.80.20 Ограждение
М.80.20.100 Дверь
М.80.11 Щит съемный
М.80.11СБ Щит съемный. Сборочный чертеж
М.80.20.100СБ Дверь. Сборочный чертеж
М.80.20СБ Ограждение. Сборочный чертеж
М.90СБ Направляющие и ограждения. Сборочный чертеж
Разработан: ЦНИИЭП им. Б.С. Мезенцева Госкомархитектуры
Утверждён:29.11.1991 Госкомархитектура (2-129)
Расположен в:Техническая документация Строительство Справочные документы Типовые строительные конструкции, изделия и узлы Общероссийский строительный каталог Общественные здания в городах и поселках городского типа Зрелищные и культурно-просветительские учреждения. Здания для органов управления и общественных организаций Зрелищные и культурно-просветительские учреждения Клубы, дома культуры, центры досуга, залы танцевальные, залы игровых автоматов
Типовой проект 264-12-318.92Типовой проект 264-12-318.92Типовой проект 264-12-318.92Типовой проект 264-12-318.92Типовой проект 264-12-318.92Типовой проект 264-12-318.92Типовой проект 264-12-318.92Типовой проект 264-12-318.92Типовой проект 264-12-318.92Типовой проект 264-12-318.92Типовой проект 264-12-318.92Типовой проект 264-12-318.92Типовой проект 264-12-318.92Типовой проект 264-12-318.92Типовой проект 264-12-318.92Типовой проект 264-12-318.92Типовой проект 264-12-318.92Типовой проект 264-12-318.92Типовой проект 264-12-318.92Типовой проект 264-12-318.92Типовой проект 264-12-318.92Типовой проект 264-12-318.92Типовой проект 264-12-318.92Типовой проект 264-12-318.92Типовой проект 264-12-318.92Типовой проект 264-12-318.92Типовой проект 264-12-318.92Типовой проект 264-12-318.92Типовой проект 264-12-318.92Типовой проект 264-12-318.92Типовой проект 264-12-318.92Типовой проект 264-12-318.92Типовой проект 264-12-318.92Типовой проект 264-12-318.92Типовой проект 264-12-318.92Типовой проект 264-12-318.92Типовой проект 264-12-318.92Типовой проект 264-12-318.92Типовой проект 264-12-318.92Типовой проект 264-12-318.92Типовой проект 264-12-318.92Типовой проект 264-12-318.92Типовой проект 264-12-318.92Типовой проект 264-12-318.92Типовой проект 264-12-318.92Типовой проект 264-12-318.92Типовой проект 264-12-318.92Типовой проект 264-12-318.92Типовой проект 264-12-318.92Типовой проект 264-12-318.92Типовой проект 264-12-318.92Типовой проект 264-12-318.92Типовой проект 264-12-318.92Типовой проект 264-12-318.92Типовой проект 264-12-318.92Типовой проект 264-12-318.92Типовой проект 264-12-318.92Типовой проект 264-12-318.92Типовой проект 264-12-318.92Типовой проект 264-12-318.92Типовой проект 264-12-318.92Типовой проект 264-12-318.92Типовой проект 264-12-318.92Типовой проект 264-12-318.92

© 2013 Ёшкин Кот :-) Карта сайта