Скачать Типовой проект 264-12-318.92 Альбом 4. Пояснительная записка. Отопление, вентиляция. ХолодоснабжениеДата актуализации: 10.08.2017 Типовой проект 264-12-318.92
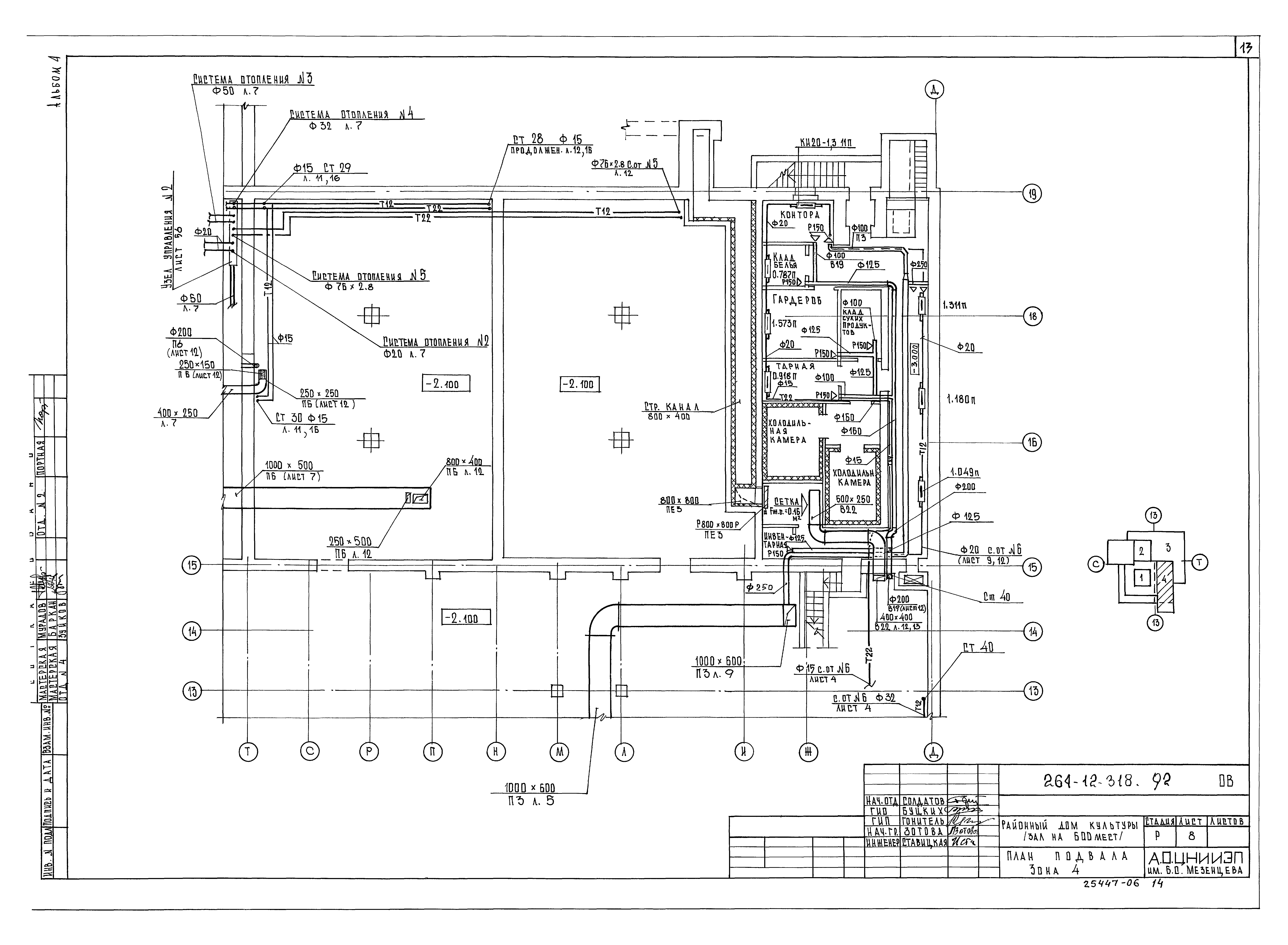
Альбом 4. Пояснительная записка. Отопление, вентиляция. ХолодоснабжениеОбозначение: | Типовой проект 264-12-318.92 | Обозначение англ: | 264-12-318.92 | Статус: | не определен законодательством | Название рус.: | Альбом 4. Пояснительная записка. Отопление, вентиляция. Холодоснабжение | Дата добавления в базу: | 01.10.2014 | Дата актуализации: | 05.05.2017 | Дата введения: | 17.09.1992 | Оглавление: | Отопление и вентиляция Пояснительная записка Общие данные План подвала. Отопление. Зона 1 План подвала. Вентиляция. Зона 1 План подвала. Зона 2 План подвала. Зона 3 План подвала. Зона 4 План на отм. 0.000. Зона 1 План на отм. 0.000. Зона 2 План на отм. 0.000. Зона 3 План на отм. 0.000. Зона 4 План на отм. 3.600; 4.200. Зона 1 План на отм. 3.600; 5.400. Зона 2 План на отм. 3.600. Зона 3 План на отм. 3.600. Зона 4 Планы на отм. 4.500; 8.500; 12.750. Зона 2 Схема системы отопления №1 Схемы систем отопления №2, №5 Схема системы отопления №3 Схема системы отопления №4 Схема системы отопления №6 Схема системы отопления №7 Схема системы отопления №8 Схема системы вентиляции П1 Схема системы вентиляции П2 Схема системы вентиляции П3 Схема системы вентиляции П4, У1, У2 Схема системы вентиляции П5 Схема системы вентиляции П6. Зона 4 Схемы систем вентиляции В1, В17. Зоны 1, 3 Схемы систем вентиляции В2, В15, В16, В18 Схемы систем вентиляции В3 - В5, В22. Зоны 2, 4 Схема системы вентиляции В6, Зона 3 Схемы систем вентиляции В7, В12 - В14. Зона 2, 3 Схемы систем вентиляции В8 - В11. Зоны 2, 3 Схемы систем вентиляции В19 - В21. Зона 1 Схемы систем вентиляции ВЕ1 - ВЕ7, У3, ПЕ1, ПЕ2 Венткамера №1. Установка систем П1 - П3, У1. План. Зона 1 Венткамера №1. Установка систем П1 - П3, У1. Разрезы 1-1, 2-2, 3-3, 6-6. Зона 1 Венткамера №1. Установка систем П1 - П3, У1. Разрезы 4-4, 5-5. Спецификация. Зона 1 Венткамера №1. Установка систем П1 - П3. Спецификация. Зона 1 Венткамера №2. Установка систем П4 - П6, У2. План. Разрез 1-1 Венткамера №2. Установка систем П4 - П6, У2. Разрез 2-2, 3-3. Зона 3 Венткамера №2. Установка систем П4 - П6, У2. Спецификация. Зона 3 Венткамеры №3, №5. Установка систем В1 - В5, В11 - В15, У3. План. Разрезы Венткамеры №3, №4, №6. Установка систем В1 - В5, В11 - В15. Спецификация Венткамера №4. Установка систем В6 - В14. План, разрезы 1-1. Спецификация В6 - В8. Зона 2 Венткамера №4. Установка систем В6 - В14. Разрезы 2-2, 3-3. Спецификация В9, В10. Зона 2 Венткамера №6. Установка систем В17 - В22. План, разрезы. Зона 1 Венткамера №6. Установка систем В17 - В22. Спецификация Схема системы теплоснабжения установок П1 - П3, У1, У3, 3П1, ПЕ1 Схема системы теплоснабжения установок П4 - П6, У2, 3П2, ПЕ2 Узел управления №1. Зона 1 Узел управления №2. Зона 3 Холодоснабжение Общие данные План пищевых камер. Разрез 1-1. Схема хладоновых трубопроводов | Разработан: | ЦНИИЭП им. Б.С. Мезенцева Госкомархитектуры
| Утверждён: | 29.11.1991 Госкомархитектура (2-129)
| Расположен в: |
|
                                                              
|