Информационная система
«Ёшкин Кот»

Скачать базу одним архивом
Скачать обновления
История создания базы
Карта сайта

Скачать Типовой проект 264-12-318.92 Альбом 1. Часть 2. Пояснительная записка технологической части. Технология пищеблока. Технологическое оборудование. Спортивная технология. Технология игровых автоматов

Дата актуализации: 10.08.2017

Типовой проект 264-12-318.92

Альбом 1. Часть 2. Пояснительная записка технологической части. Технология пищеблока. Технологическое оборудование. Спортивная технология. Технология игровых автоматов

Обозначение: Типовой проект 264-12-318.92
Обозначение англ: 264-12-318.92
Статус:не определен законодательством
Название рус.:Альбом 1. Часть 2. Пояснительная записка технологической части. Технология пищеблока. Технологическое оборудование. Спортивная технология. Технология игровых автоматов
Дата добавления в базу:01.10.2014
Дата актуализации:05.05.2017
Дата введения:17.09.1992
Оглавление:Чертежи основного комплекта марки АР (продолжение)
   Подвесные потолки кинопроекционного комплекса и коридора 1-го этажа. Зона 2
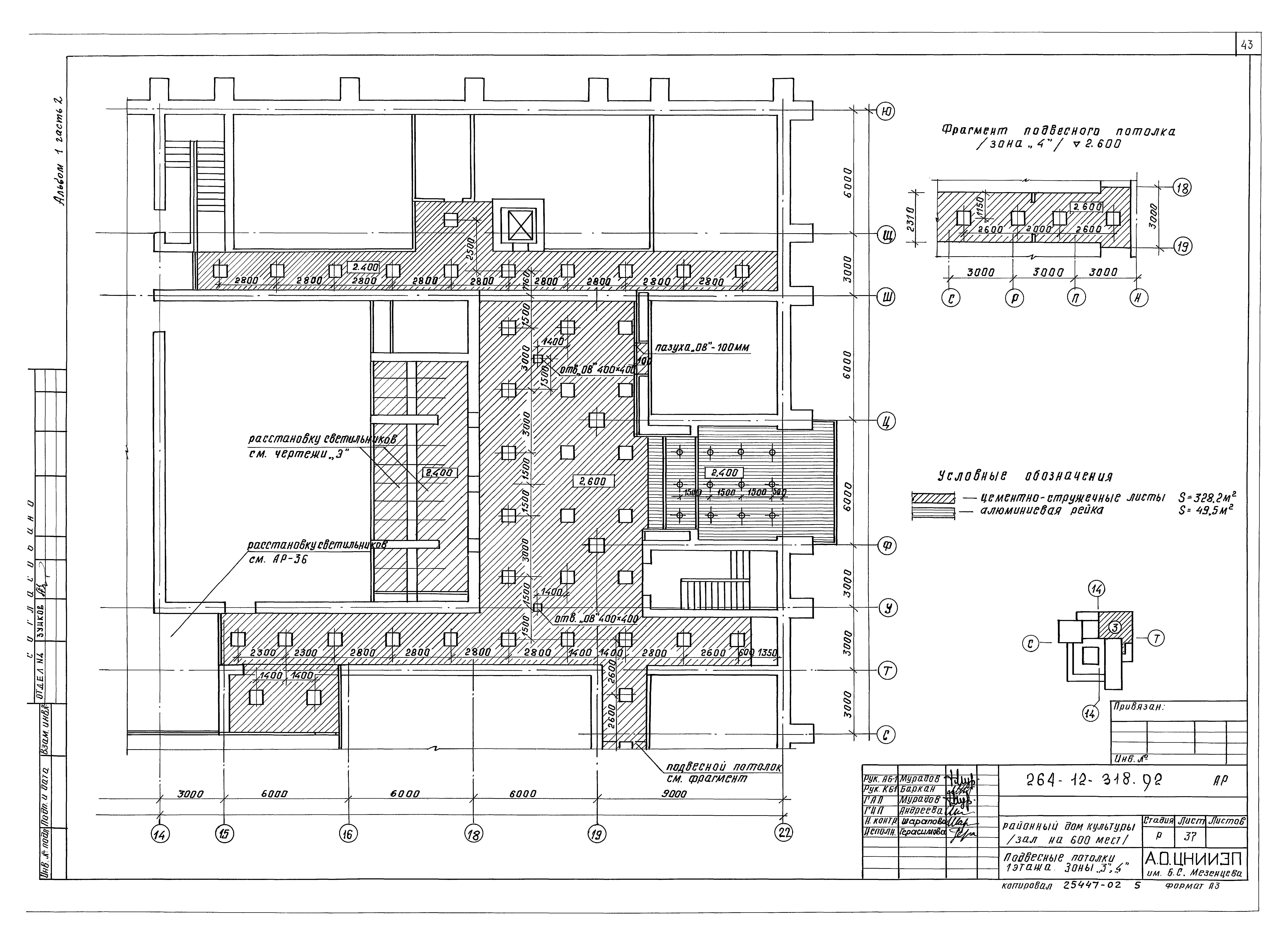
   Подвесные потолки 1-го этажа. Зоны 3, 4
   Подвесные потолки 2-го этажа. Зона 1
   Подвесные потолки зала, коридоров и с/у 2-го этажа. Зона 2
   Подвесные потолки 2-го этажа. Зоны 3, 4
   Экспликация полов
   Ведомость отделки помещений
   Развертка стены зрительного зала в осях 8 - 1. Зона 2
   Развертка стены зрительного зала в осях С - Ш. Зона 2
   Развертка стены зрительного зала в осях Ш - С. Зона 2
   Лекционная аудитория на 200 мест. Развертки стен 3-3 и 2-2. Зона 3
   Лекционная аудитория на 200 мест. Развертки стен 1-1 и 4-4. Зона 3
   Внутренние двери зала и аудитории ИД-1, ИД-1*. Спецификация
   Акустические двери ИД-2, ИД-3. Спецификация
   Наружная дверь зала ИДИ-1. Спецификация
   Наружная дверь склада декорации ИДИ-2
   Дверь ИДИ-2. Узлы, спецификация
   Дверь ИДИ-2. Металлическая коробка. Узлы, детали
   Дверь ИДИ-2. Детали. Спецификация
   Индивидуальные окна ИО-1, ИО-2, ИО-3, ИО-2*. Спецификация
   Сводная спецификация столярных изделий
   Кабины санузлов. Щиты. Детали
   Кабины санузлов. Сечения. Спецификация
   Гардероб №1. Спецификация материалов на вешалки и барьер. Зоны 1 и 3
   Гардероб №2. Гардеробная вешалка
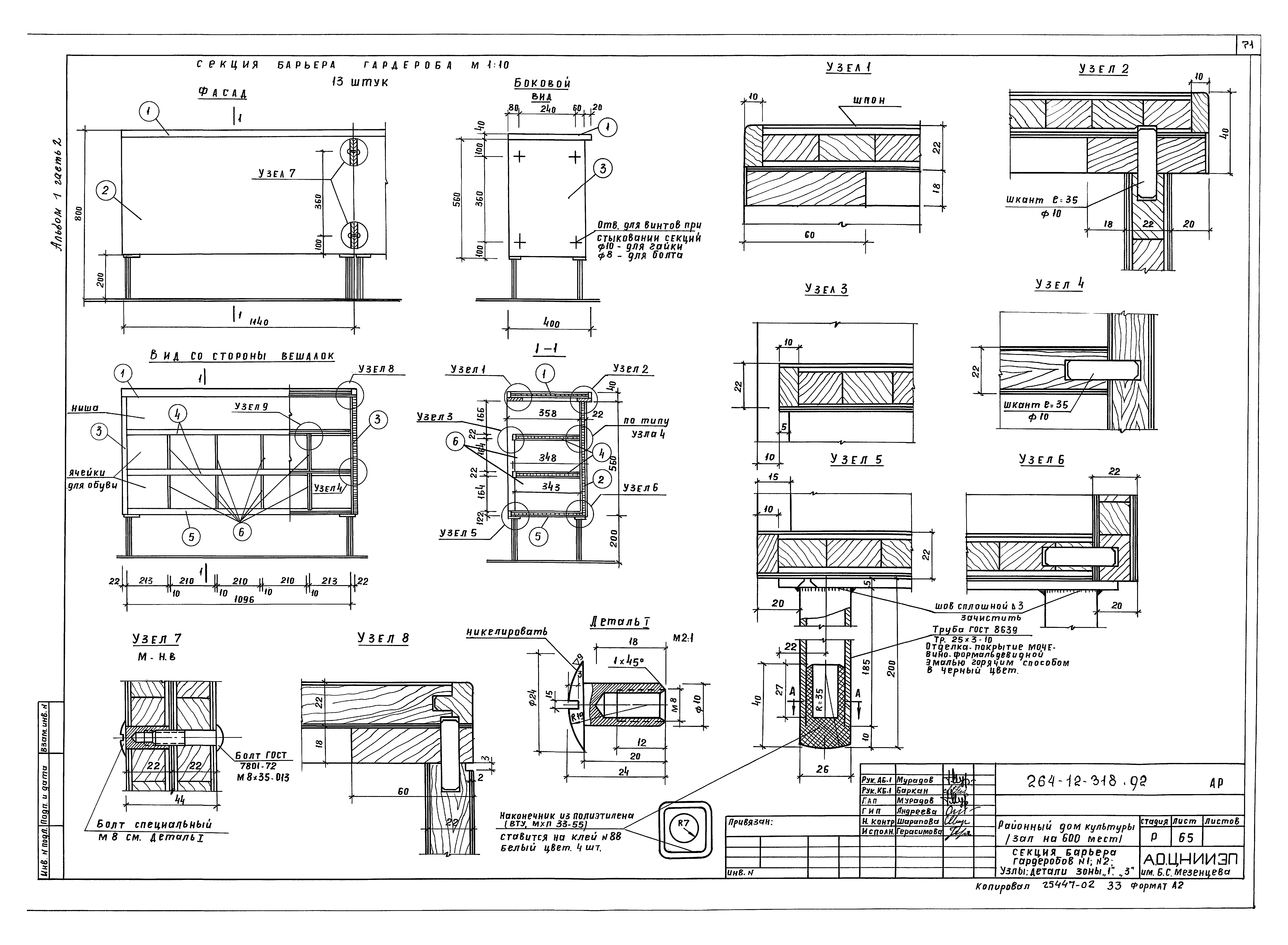
   Секция барьера гардеробов №1 и №2. Узлы. Детали. Зоны 1 и 3
   Детали крепления поручня. Зеркала. Спецификация материалов. Зоны 1, 2, 3
   Решетки ВР-1, ВР-2, ВР-3. Спецификация
   Воздухозаборы. Шахты. Вентиляционные решетки ВР-3, ВР-5. Спецификация
   Фасады Ю - А, 1 - 22 (вариант)
Чертежи основного комплекта марки ТЧ
   Пояснительная записка
   Общие данные
   Технологическая часть проекта кафе. Зоны 1, 4
   Монтажный план кафе. Зона 1
   Технологическая часть проекта буфета для зрителей. Зона 1
   Технологическая часть проекта бара. Зона 4
   Перечень технологического оборудования
Чертежи основного комплекта марки ТО
   Фрагменты планов этажей с расстановкой технологического оборудования и мебели
   Перечень оборудования и мебели
Чертежи основного комплекта марки СТ
   Зал 36х18. Разметка. Расстановка оборудования. Зона 4
Чертежи основного комплекта марки ТИА
   Зона 1 и 4. Зал игровых автоматов
Разработан: ЦНИИЭП им. Б.С. Мезенцева Госкомархитектуры
Утверждён:29.11.1991 Госкомархитектура (2-129)
Расположен в:Техническая документация Строительство Справочные документы Типовые строительные конструкции, изделия и узлы Общероссийский строительный каталог Общественные здания в городах и поселках городского типа Зрелищные и культурно-просветительские учреждения. Здания для органов управления и общественных организаций Зрелищные и культурно-просветительские учреждения Клубы, дома культуры, центры досуга, залы танцевальные, залы игровых автоматов
Типовой проект 264-12-318.92Типовой проект 264-12-318.92Типовой проект 264-12-318.92Типовой проект 264-12-318.92Типовой проект 264-12-318.92Типовой проект 264-12-318.92Типовой проект 264-12-318.92Типовой проект 264-12-318.92Типовой проект 264-12-318.92Типовой проект 264-12-318.92Типовой проект 264-12-318.92Типовой проект 264-12-318.92Типовой проект 264-12-318.92Типовой проект 264-12-318.92Типовой проект 264-12-318.92Типовой проект 264-12-318.92Типовой проект 264-12-318.92Типовой проект 264-12-318.92Типовой проект 264-12-318.92Типовой проект 264-12-318.92Типовой проект 264-12-318.92Типовой проект 264-12-318.92Типовой проект 264-12-318.92Типовой проект 264-12-318.92Типовой проект 264-12-318.92Типовой проект 264-12-318.92Типовой проект 264-12-318.92Типовой проект 264-12-318.92Типовой проект 264-12-318.92Типовой проект 264-12-318.92Типовой проект 264-12-318.92Типовой проект 264-12-318.92Типовой проект 264-12-318.92Типовой проект 264-12-318.92Типовой проект 264-12-318.92Типовой проект 264-12-318.92Типовой проект 264-12-318.92Типовой проект 264-12-318.92Типовой проект 264-12-318.92Типовой проект 264-12-318.92Типовой проект 264-12-318.92Типовой проект 264-12-318.92Типовой проект 264-12-318.92Типовой проект 264-12-318.92Типовой проект 264-12-318.92Типовой проект 264-12-318.92Типовой проект 264-12-318.92Типовой проект 264-12-318.92

© 2013 Ёшкин Кот :-) Карта сайта