| ||||||||||||||||||||||||||||||||
Скачать Серия 1.133.1-5 Выпуск 3. Стеновые блоки толщиной 60 см для жилых зданий высотой 5 - 9 этажейДата актуализации: 10.08.2017
|
| Обозначение: | Серия 1.133.1-5 |
| Обозначение англ: | Series 1.133.1-5 |
| Статус: | заменен |
| Название рус.: | Выпуск 3. Стеновые блоки толщиной 60 см для жилых зданий высотой 5 - 9 этажей |
| Дата добавления в базу: | 01.09.2013 |
| Дата актуализации: | 05.05.2017 |
| Дата введения: | 01.10.1989 |
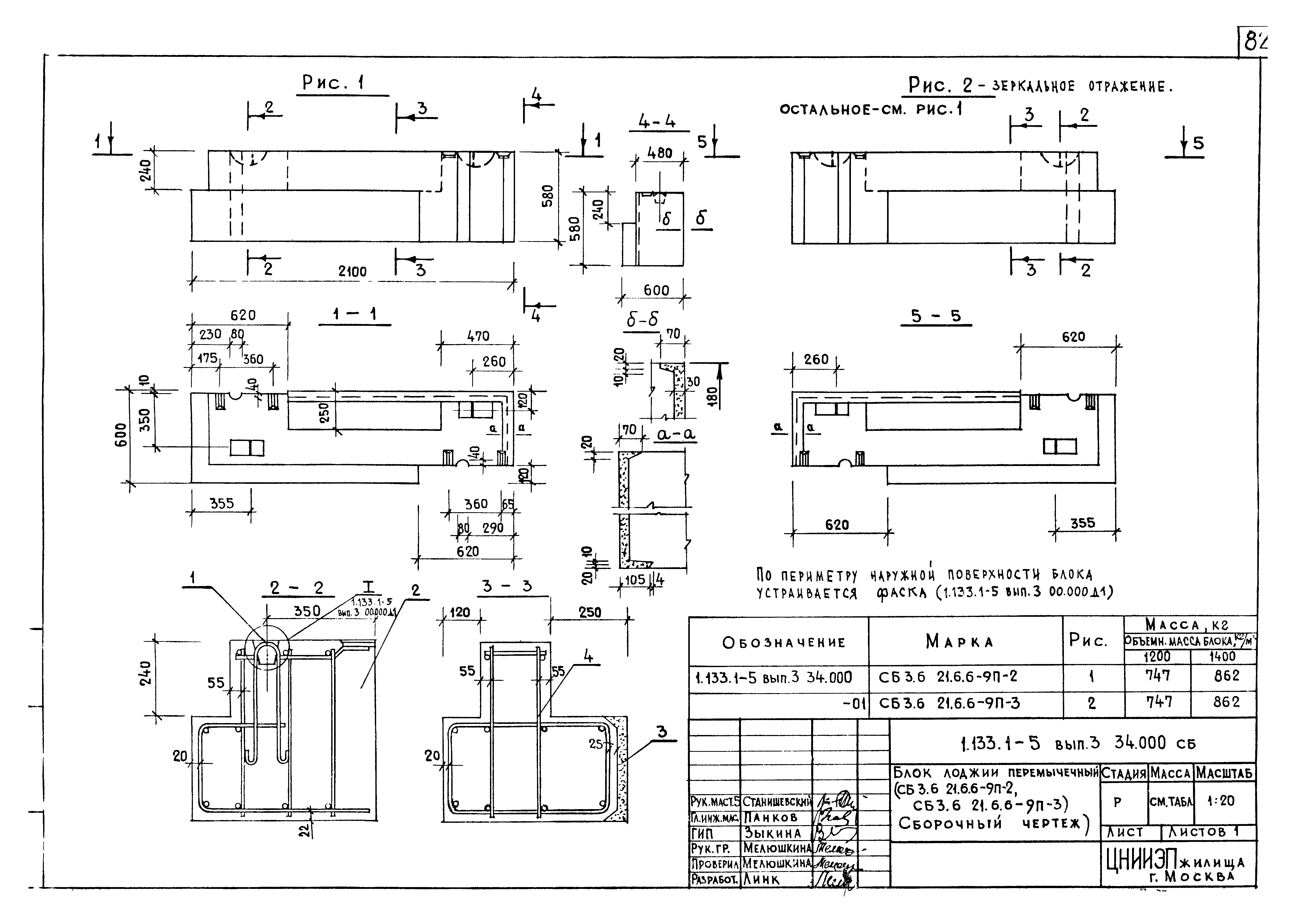
| Область применения: | Выпуск 3 серии 1.133.1-5 входит в состав Общесоюзного каталога индустриальных изделий для жилищно-гражданского строительства. Настоящий выпуск содержит техническое описание, сборочные чертежи блоков наружных стен, арматурные изделия, узлы, детали и закладные изделия |
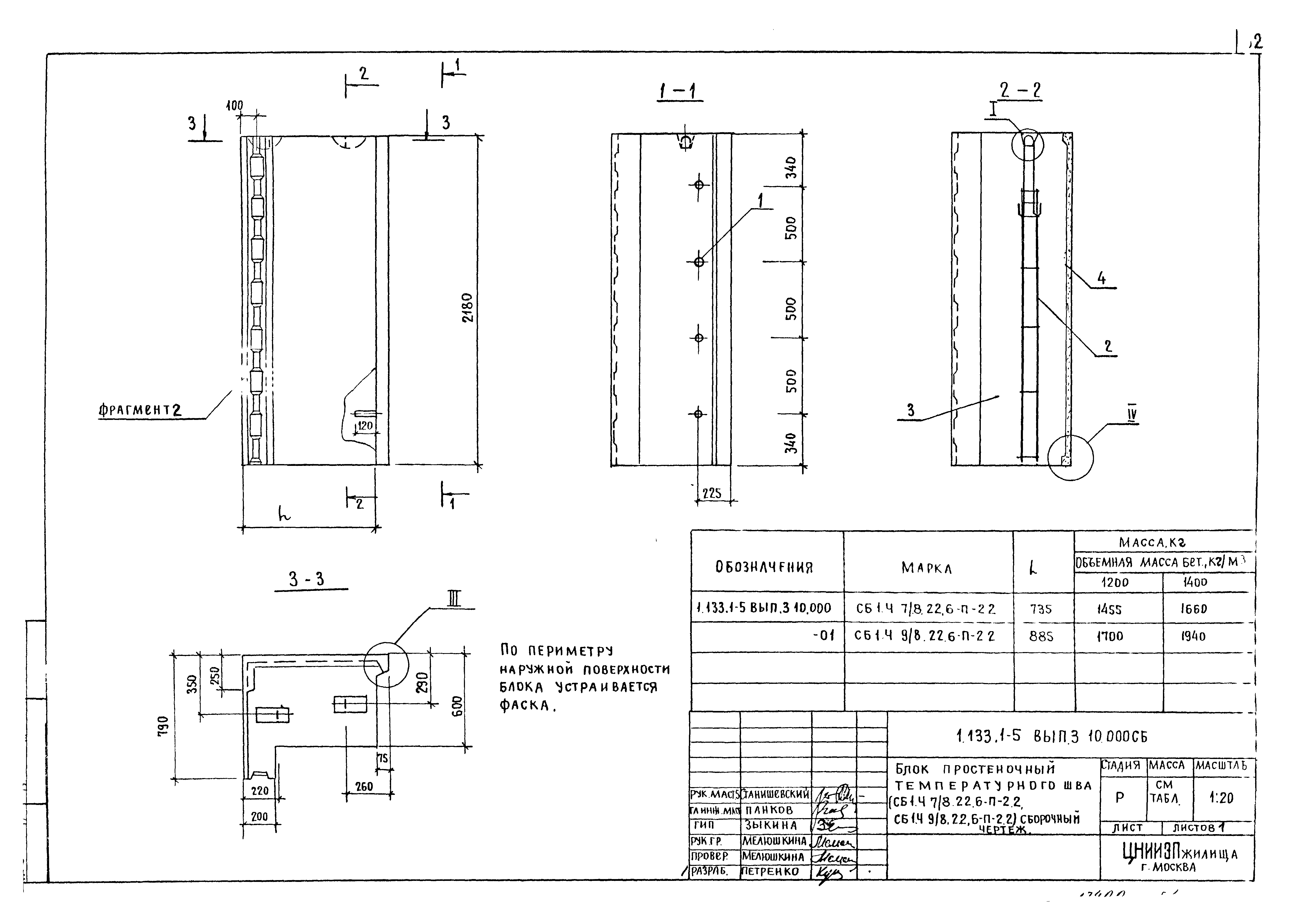
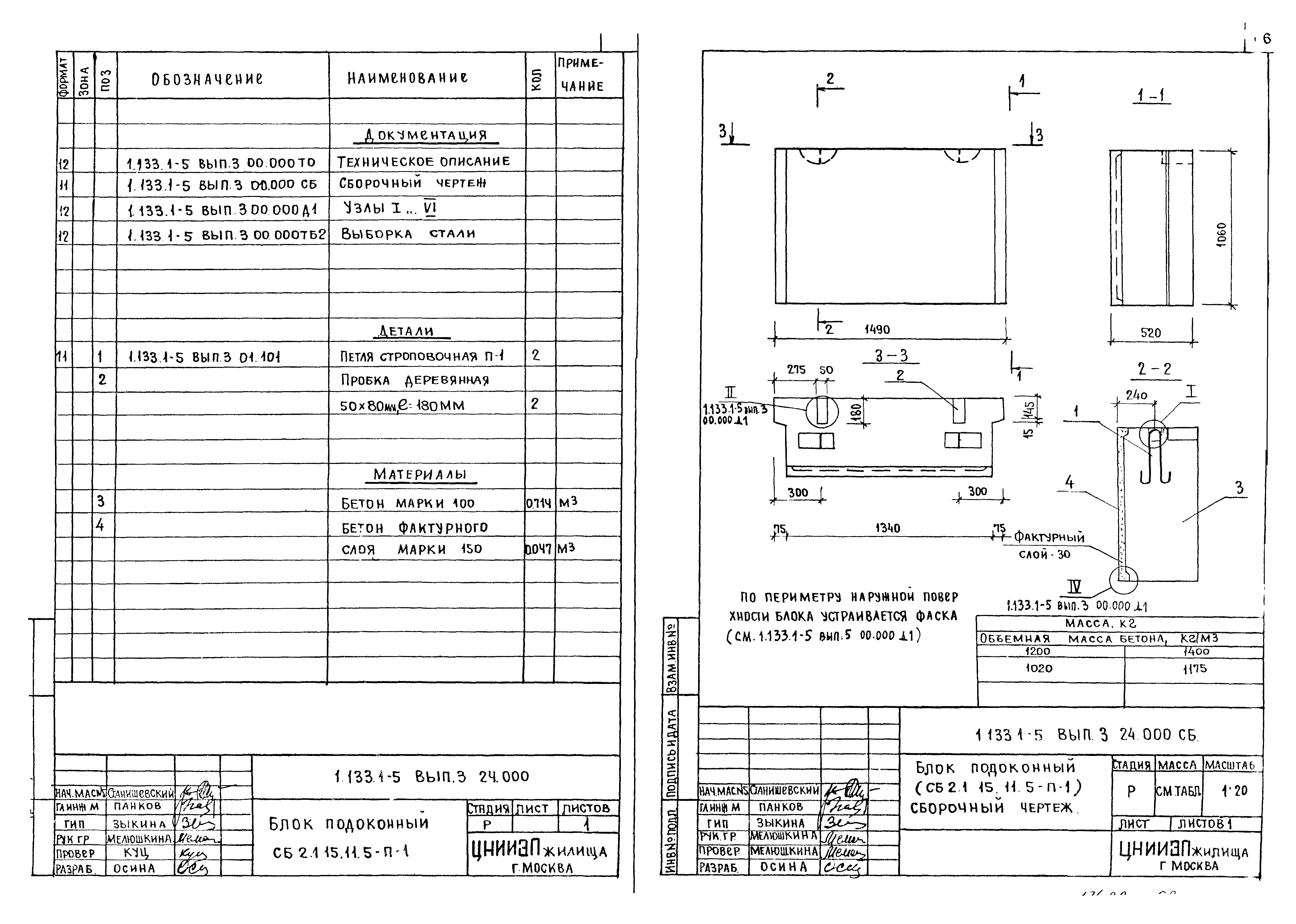
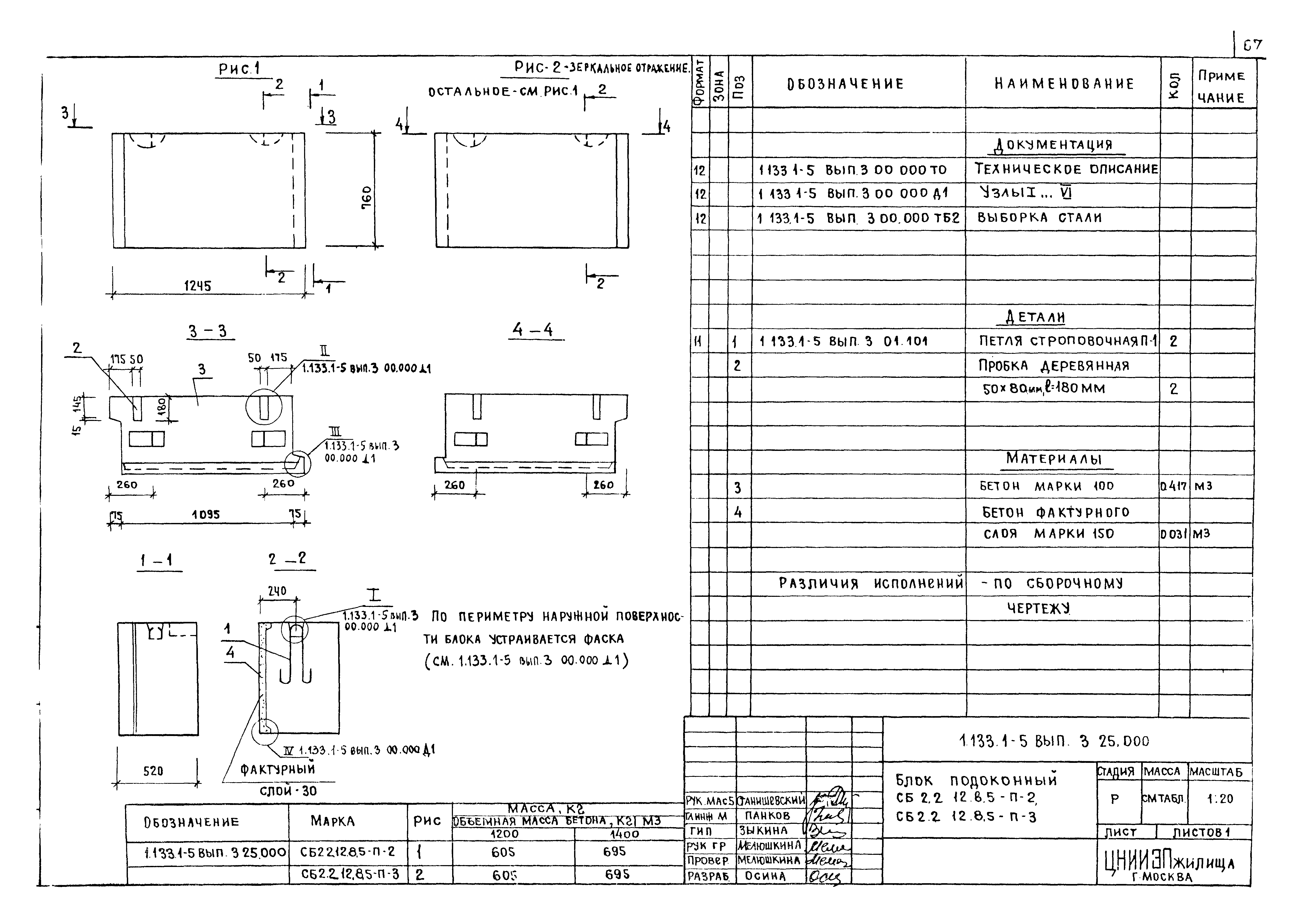
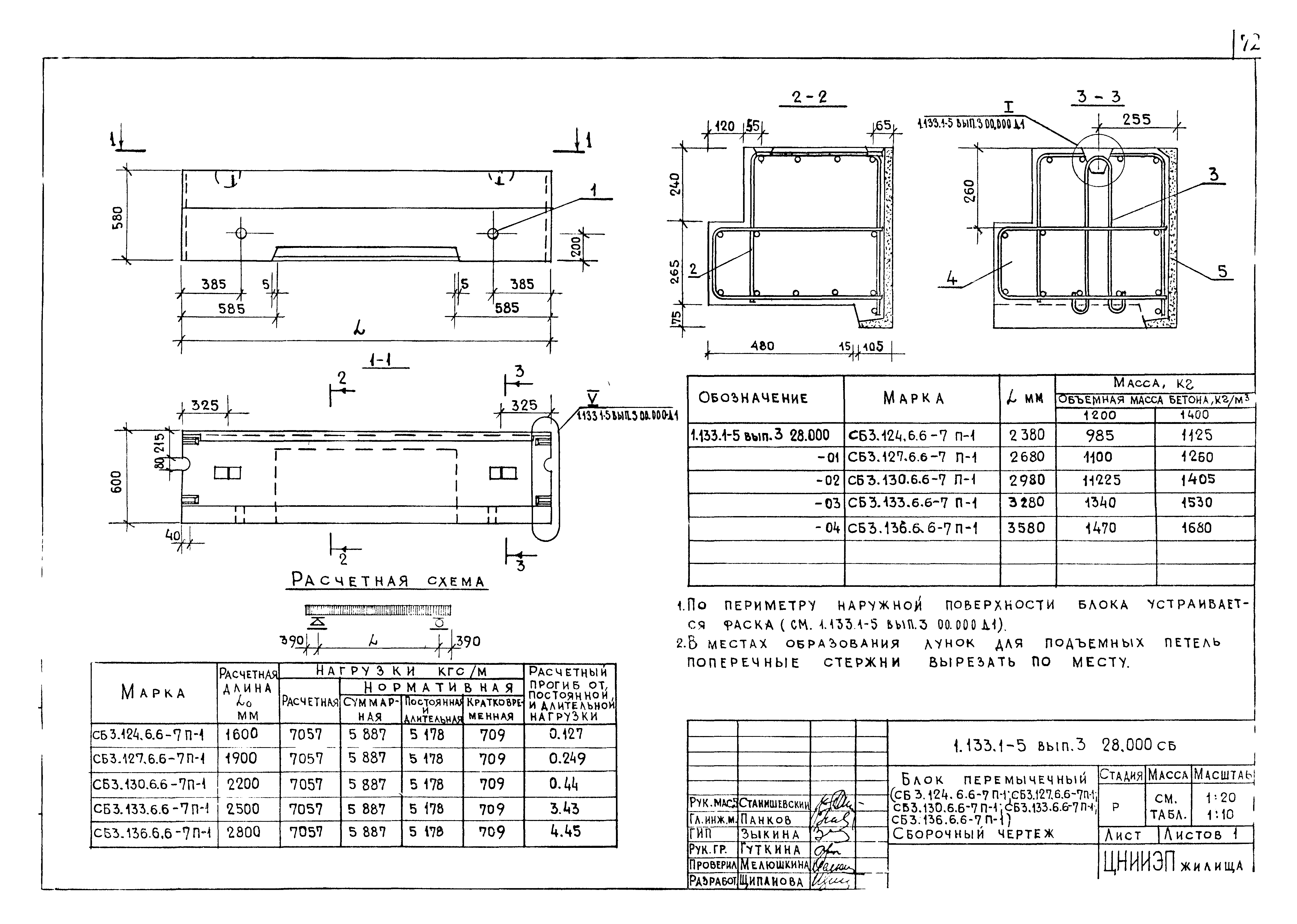
| Оглавление: | Содержание Техническое описание Номенклатура Выборка стали Блок простеночный Блок простеночный угловой Блок простеночный температурного шва Блок простеночный Блок простеночный угловой Блок простеночный температурного шва Блок подоконный Блок перемычечный Блок лоджии перемычечный Блок поясной Блок поясной угловой Узлы I - VI Фрагмент 1, фрагмент 2 Блок арматурный Каркас Сетка Изделие закладное Петля строповочная |
| Разработан: | ЦНИИЭП жилища |
| Утверждён: | 04.06.1981 Государственный комитет по гражданскому строительству и архитектуре при Госстрое СССР (177) |
| Расположен в: | |
| Чем заменён: |
|
| Нормативные ссылки: |
|








































































































































