| ||||||||||||||||||||||||||||||
Скачать ТР СПИ 03-2009 Наружные стеновые панели с каркасом из термопрофилей ИНСИ с наружной обшивкой из цементно-минеральных плит АКВАПАНЕЛЬ Наружная для малоэтажных зданий различного назначения. Материалы для проектирования и рабочие чертежи узловДата актуализации: 10.08.2017
|
| Обозначение: | ТР СПИ 03-2009 |
| Обозначение англ: | TR СПИ 03-2009 |
| Статус: | не определен законодательством |
| Название рус.: | Наружные стеновые панели с каркасом из термопрофилей ИНСИ с наружной обшивкой из цементно-минеральных плит "АКВАПАНЕЛЬ Наружная" для малоэтажных зданий различного назначения. Материалы для проектирования и рабочие чертежи узлов |
| Дата добавления в базу: | 01.09.2013 |
| Дата актуализации: | 05.05.2017 |
| Дата введения: | 01.01.2009 |
| Область применения: | Альбом содержит материалы для проектирования и рабочие чертежи узлов конструкций наружных несущих и ненесущих каркаснообшивных стен поэлементной сборки на стальном каркасе из профилей "ИНСИ®" с наружной обшивкой из плит "АКВАПАНЕЛЬ® Наружная" |
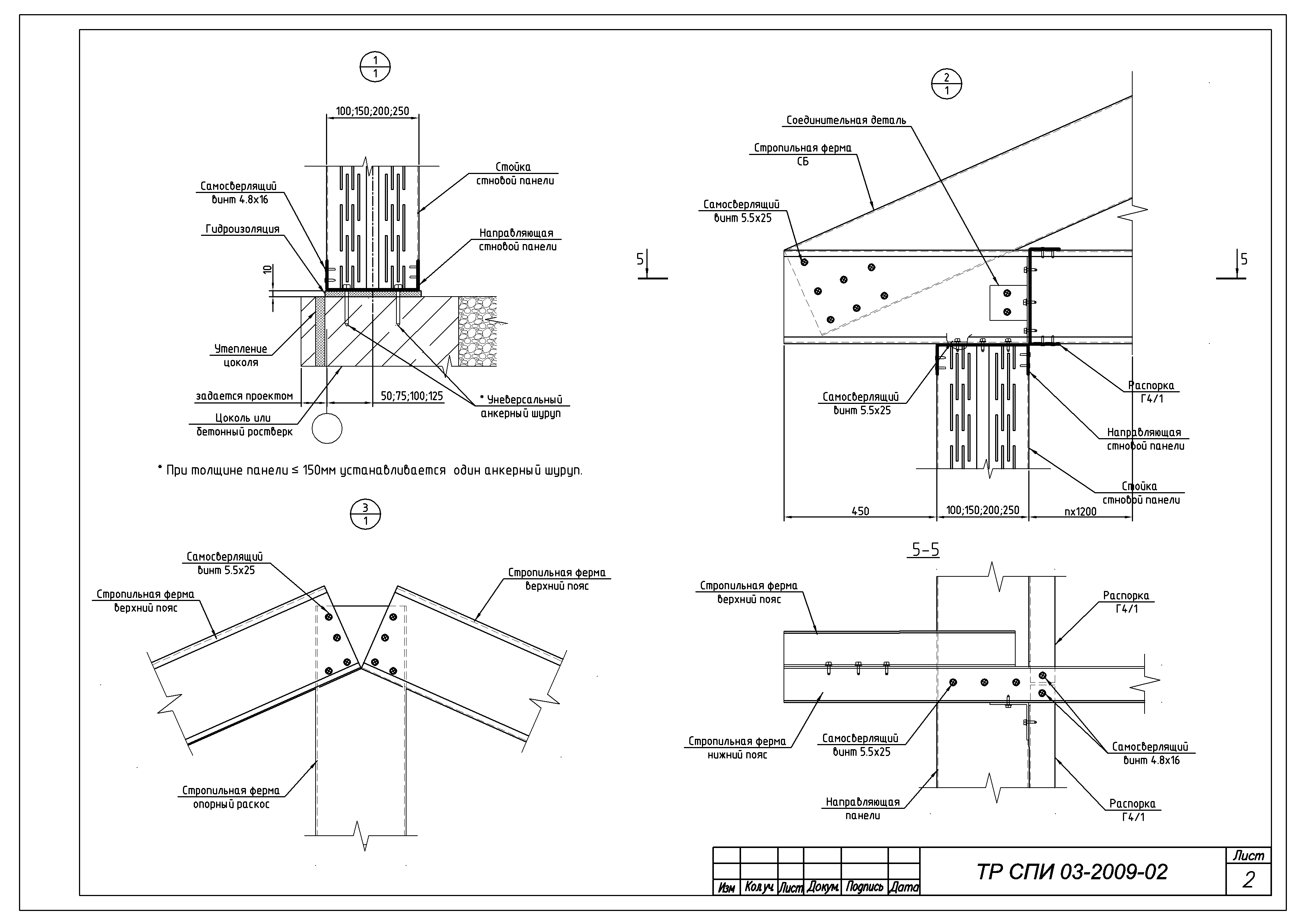
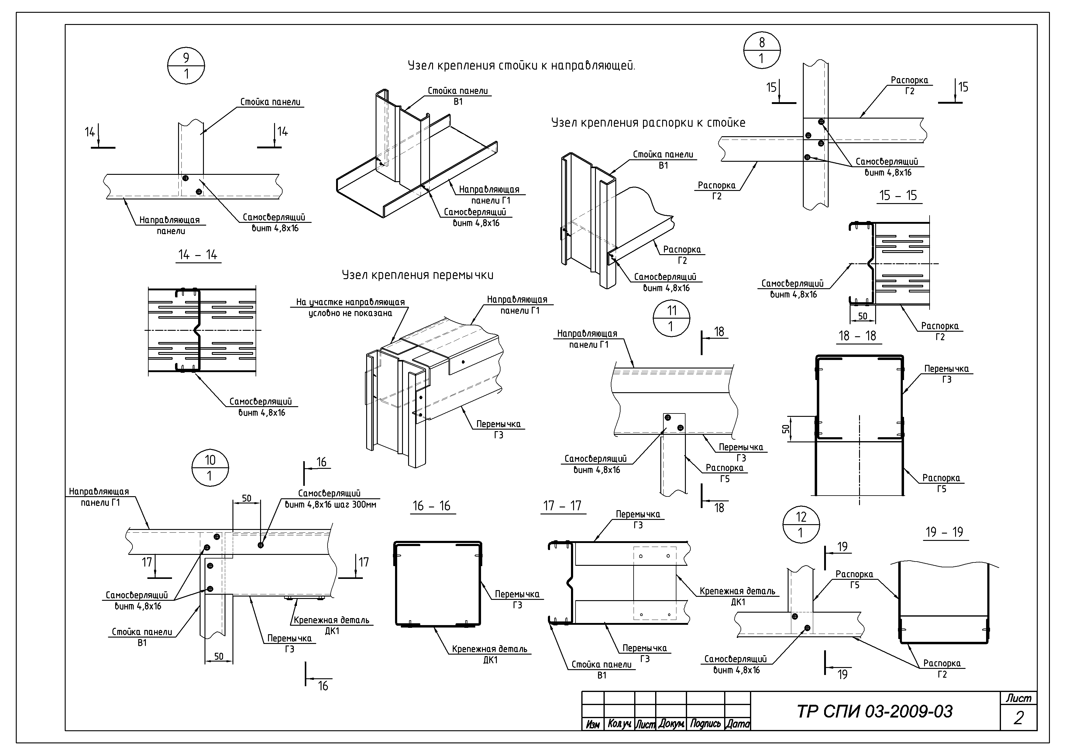
| Оглавление: | ТР СПИ 03-2009 Содержание ТР СПИ 03-2009-01 П3 1. Область применения документа 2. Нормативные ссылки 3. Общие положения 4. Материалы и комплектующие изделия 5. Технические решения стен из панелей ИНСИ 6. Технология монтажа стен из панелей ИНСИ 7. Приемка смонтированных конструкций 8. Основные правила технической эксплуатации конструкций ТР СПИ 03-2009-02 Расположение панелей. Схема покрытия. ТР СПИ 03-2009-03 Каркас панелей. ТР СПИ 03-2009-04 Стены с воздушным зазором. ТР СПИ 03-2009-05 Стены без воздушного зазора. Фасад здания. Узлы. |
| Разработан: | ООО КНАУФ-Сервис ООО КНАУФ Маркетинг Челябинск ООО ИНСИПРОЕКТ |
| Принят: | НИИСФ Госстроя СССР (NIISF, USSR Gossstroy ) ФГУ ВНИИПО МЧС России |
| Расположен в: | |
| Нормативные ссылки: |
|











































