Информационная система
«Ёшкин Кот»

Скачать базу одним архивом
Скачать обновления
История создания базы
Карта сайта

Скачать Типовой проект 816-1-30 Альбом I. Общая пояснительная записка. Технология производства. Технологические коммуникации. Отопление и вентиляция. Внутренний водопровод и канализация

Дата актуализации: 10.08.2017

Типовой проект 816-1-30

Альбом I. Общая пояснительная записка. Технология производства. Технологические коммуникации. Отопление и вентиляция. Внутренний водопровод и канализация

Обозначение: Типовой проект 816-1-30
Обозначение англ: 816-1-30
Статус:действует
Название рус.:Альбом I. Общая пояснительная записка. Технология производства. Технологические коммуникации. Отопление и вентиляция. Внутренний водопровод и канализация
Дата добавления в базу:01.09.2013
Дата актуализации:05.05.2017
Дата введения:11.12.1981
Оглавление:Содержание альбома
Пояснительная записка
Технологические решения
   Общие данные
   План на отм. 0.000. План на отм. 6.000
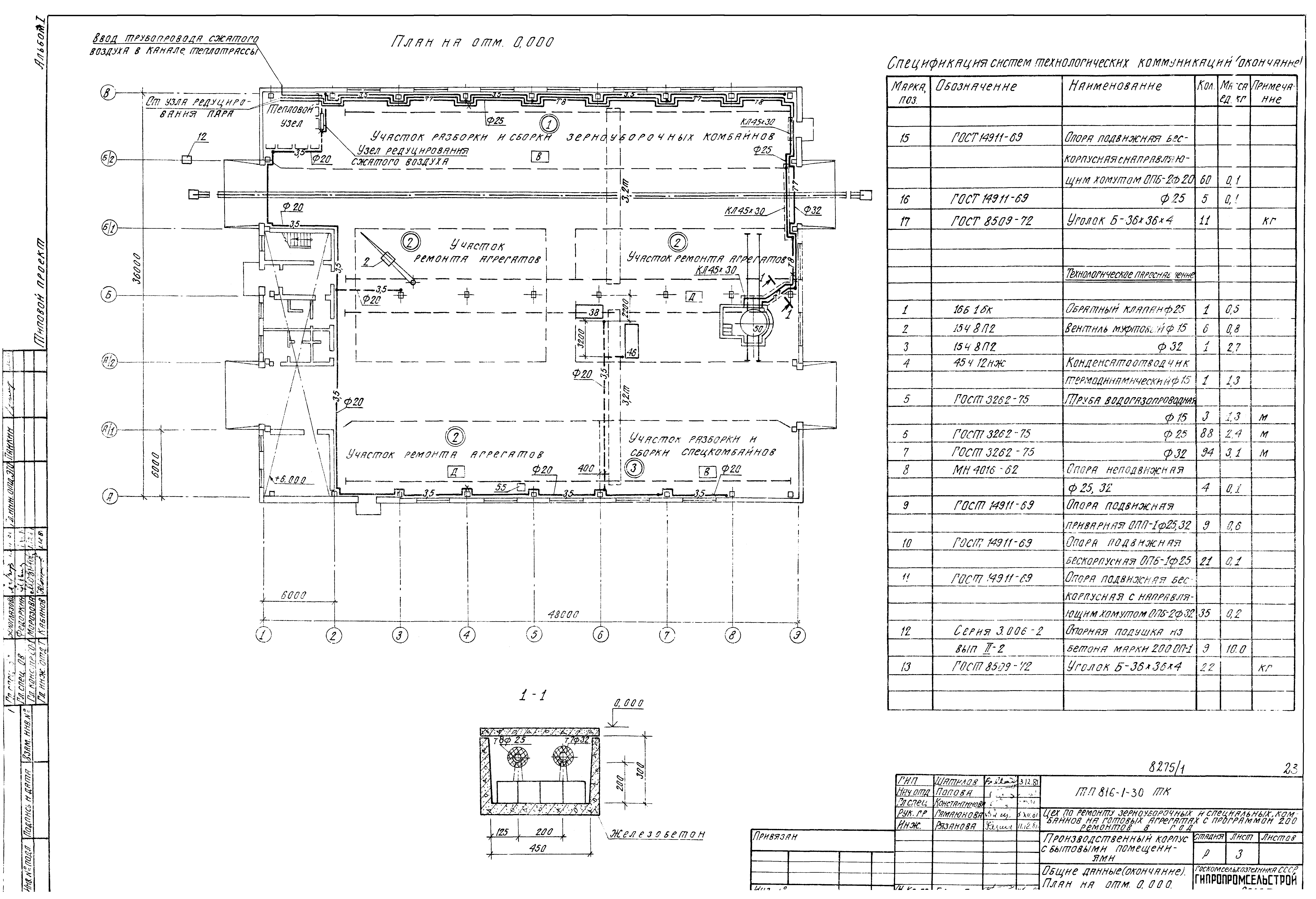
   План на отм. 0.000. Спецификация технологического оборудования
   Спецификация технологического оборудования
   Устройство для перемещения тракторов ОПТ-1326А на участке 1, поз. 11 и на участке 3, поз. 2. Монтажный чертеж
   Лебедка монтажная электрическая 1,25 т. Доработка
Энергетические решения
   Общие данные (начало)
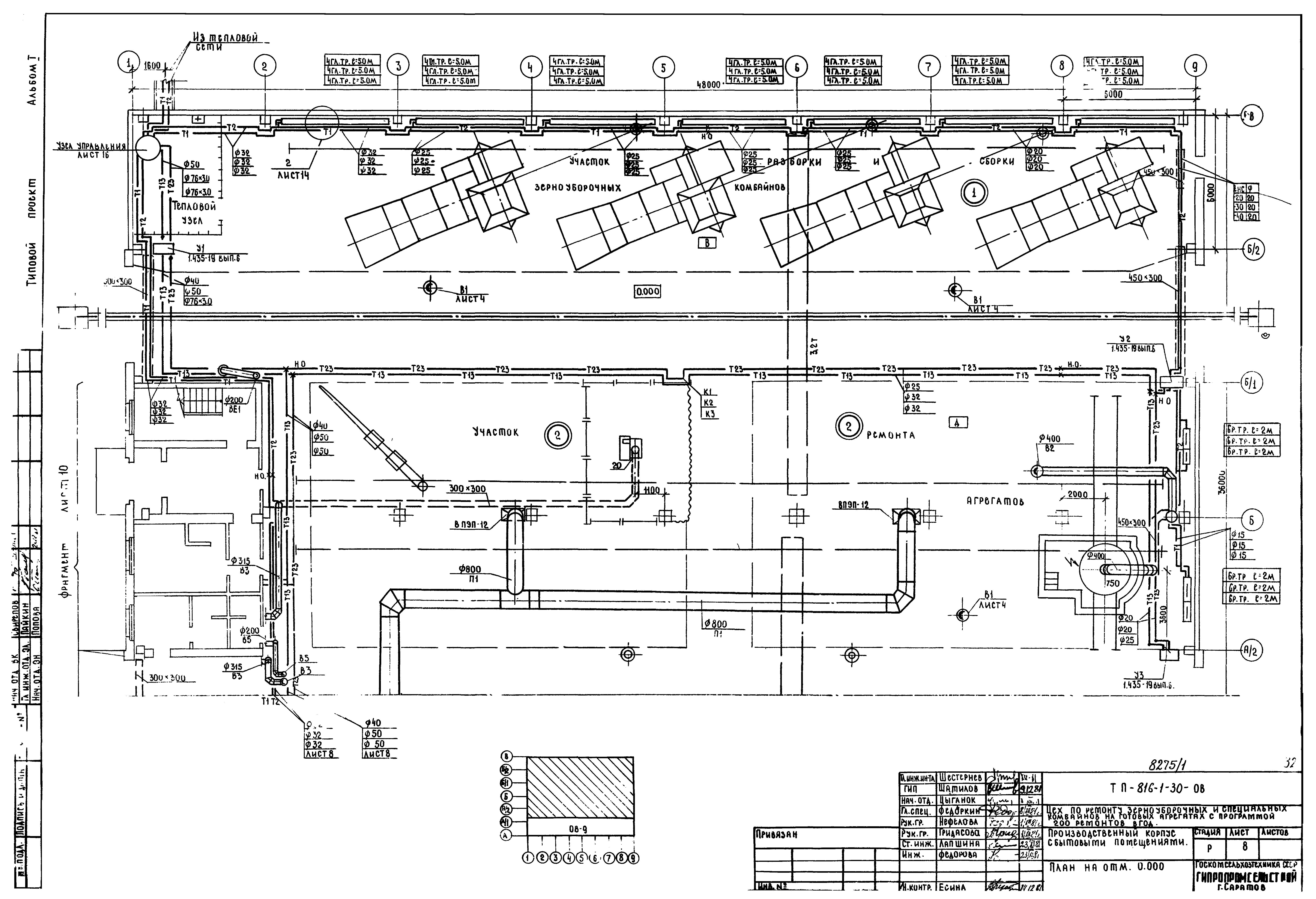
   Общие данные (окончание). План на отм. 0.000
   Схемы систем воздухоснабжения и технологического пароснабжения
Отопление и вентиляция
   Общие данные
   План на отм. 0.000
   План на отм. 0.000. Разрез 1-1
   План на отм. 3.000; 6.000. Фрагмент 1
   Схемы систем П1; П2; В2 - В5; ВЕ2 - ВЕ5
   Установки систем П1, П2. Спецификация отопительно-вентиляционных упаковок
   Схема системы отопления 1
   Схема системы отопления 2
   Схема системы теплоснабжения установок П1, П2, У1 - У4
   Узел управления
Внутренний водопровод и канализация
   Общие данные
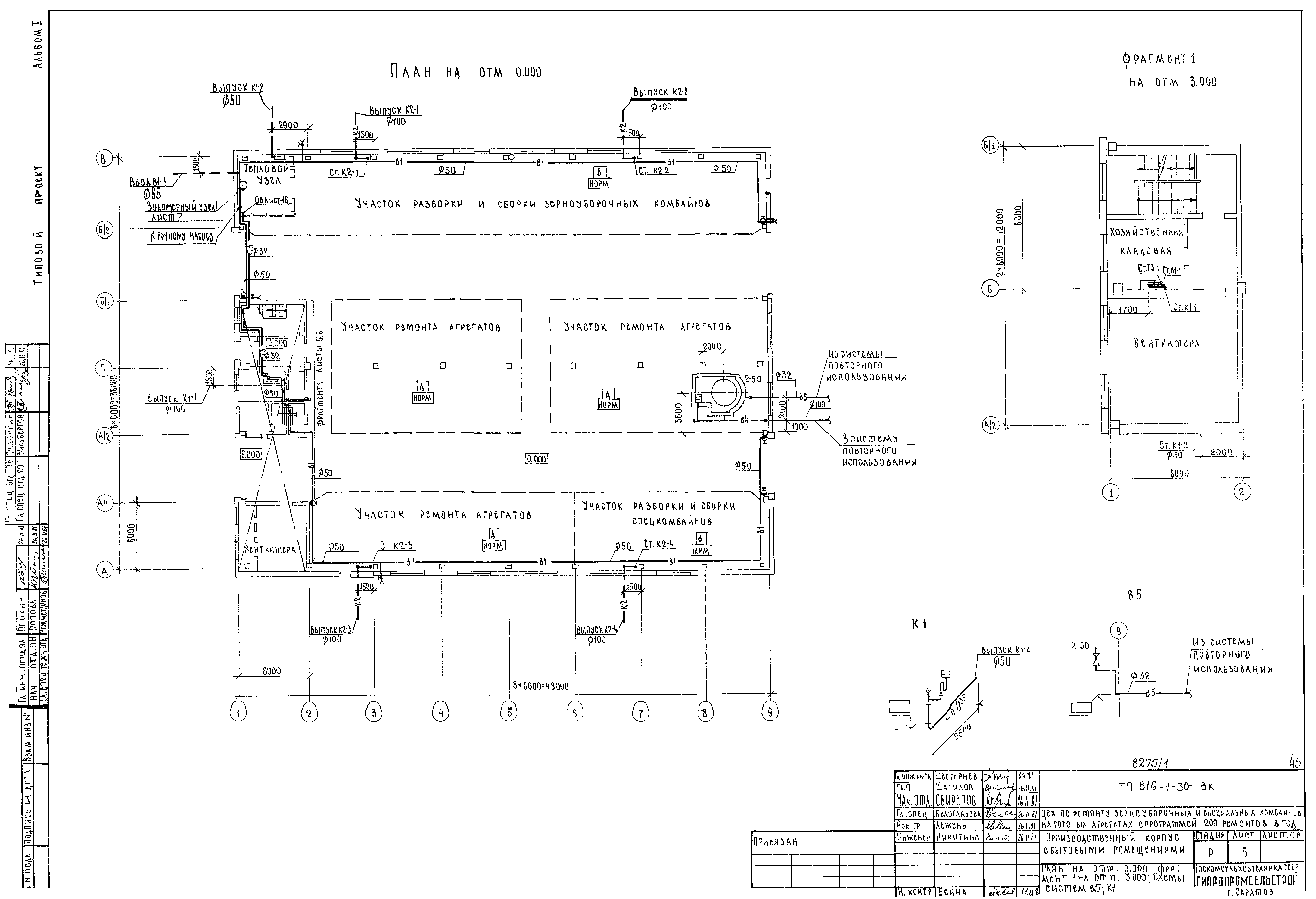
   План на отм. 0.000. Фрагмент 1 на отм. 3.000. Схемы систем В5; К1
   Фрагмент 1 на отм. 0.000; 6.000. Схемы систем В4; К1
   Схемы систем В1; Т3. Водомерный узел 1
   План сетей водостоков. Расчетные расходы и площадь водосброса. Схема системы К2
Разработан: Гипропромсельстрой
Утверждён:01.06.1981 Госкомсельхозтехника СССР (29)
Расположен в:Техническая документация Строительство Справочные документы Типовые строительные конструкции, изделия и узлы Общероссийский строительный каталог Сельскохозяйственные предприятия, здания и сооружения Предприятия, здания и сооружения по ремонту, техническому обслуживанию, хранению и обеспечению горюче-смазочными материалами сельхозтехники Цехи для ремонта комбайнов
Типовой проект 816-1-30Типовой проект 816-1-30Типовой проект 816-1-30Типовой проект 816-1-30Типовой проект 816-1-30Типовой проект 816-1-30Типовой проект 816-1-30Типовой проект 816-1-30Типовой проект 816-1-30Типовой проект 816-1-30Типовой проект 816-1-30Типовой проект 816-1-30Типовой проект 816-1-30Типовой проект 816-1-30Типовой проект 816-1-30Типовой проект 816-1-30Типовой проект 816-1-30Типовой проект 816-1-30Типовой проект 816-1-30Типовой проект 816-1-30Типовой проект 816-1-30Типовой проект 816-1-30Типовой проект 816-1-30Типовой проект 816-1-30Типовой проект 816-1-30Типовой проект 816-1-30Типовой проект 816-1-30Типовой проект 816-1-30Типовой проект 816-1-30Типовой проект 816-1-30Типовой проект 816-1-30Типовой проект 816-1-30Типовой проект 816-1-30Типовой проект 816-1-30Типовой проект 816-1-30Типовой проект 816-1-30Типовой проект 816-1-30Типовой проект 816-1-30Типовой проект 816-1-30Типовой проект 816-1-30Типовой проект 816-1-30Типовой проект 816-1-30Типовой проект 816-1-30Типовой проект 816-1-30Типовой проект 816-1-30Типовой проект 816-1-30Типовой проект 816-1-30Типовой проект 816-1-30

© 2013 Ёшкин Кот :-) Карта сайта