| ||||||||||||||||||||||
Скачать Рекомендации по применению отделочных материалов и оснащению гостиниц Госкоминтуриста СССР в зависимости от строительных разрядов гостиниц и их назначенияДата актуализации: 10.08.2017 |
| Статус: | не действует |
| Название рус.: | Рекомендации по применению отделочных материалов и оснащению гостиниц Госкоминтуриста СССР в зависимости от строительных разрядов гостиниц и их назначения |
| Дата добавления в базу: | 01.09.2013 |
| Дата актуализации: | 05.05.2017 |
| Область применения: | Документ содержит данные по установлению критериев уровня комфорта гостиниц в соответствии с действующими нормативными документами по строительству и эксплуатации этих учреждений, а также гостиниц разряда люкс, не предусмотренных в действующих нормативных документах. |
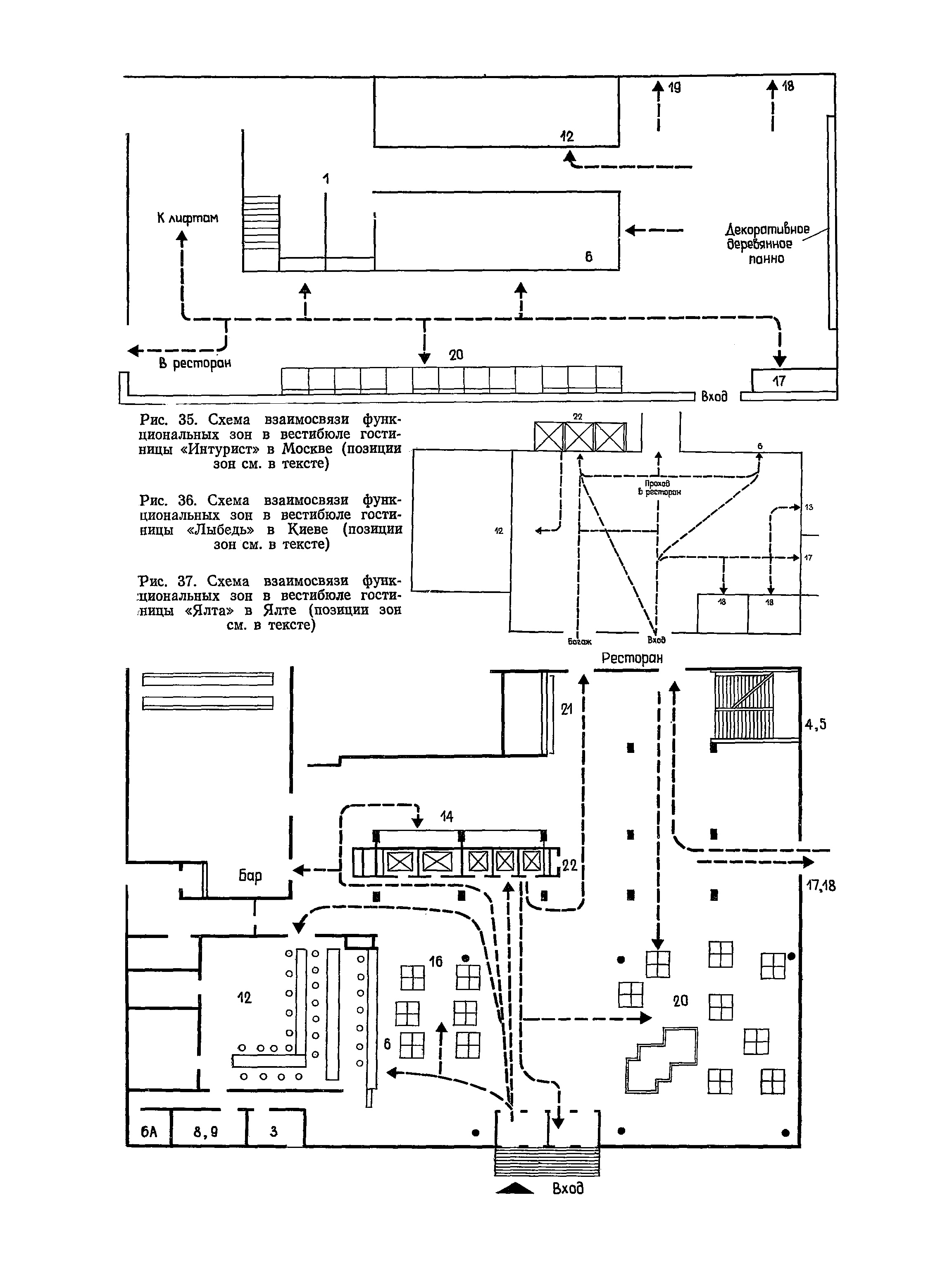
| Оглавление: | Введение 1. Рекомендации по внутренней отделке гостиниц Госкоминтуриста СССР Анализ отечественного и зарубежного опыта внутренней отделки гостиниц для иностранных туристов Основные критерии качества материалов внутренней отделки гостиниц для иностранных туристов и изменение критериев в зависимости от уровня комфорта гостиниц Классификация помещений гостиниц Госкоминтуриста СССР по системе требований к отделочным материалам Некоторые архитектурные приемы внутренней отделки гостиниц Госкоминтуриста СССР. Рекомендации по применению основных отделочных материалов и принципы их подбора с учетом степени заводской готовности элементов ограждающих конструкций Основные способы прменения отделочных материалов 2. Оборудование основных помещений гостиниц Вестибюльная группа помещений Требования к оборудованию вестибюльной группы помещений Особенности объемно-планировочной организации вестибюльной группы помещений гостиниц и их оборудования в практике отечественного строительства Поэтажные холлы и гостиные Требования к оборудованию поэтажных холлов и гостиных Особенности оборудования поэтажных холлов и гостиных в гостиницах отечественного строительства Формирование интерьера гостиных перспективных типов гостиниц Номера гостиниц Требования к оборудованию номеров гостиниц Однокомнатные номера Многокомнатные номера Двухкомнатные номера Трехкомнатные номера Оснащение номеров сигнализацией и слаботочными устройствами Передние и гардеробные в номерах различных типов, особенности их оборудования Санитарные узлы номеров Формирование интерьера номеров перспективных типов гостиниц 3. Искусственное освещение и светоцветовая среда Существующие и перспективные виды искусственного освещения применительно к зданиям гостиничного типа Анализ и предложения по дифференциации искусственного освещения в соответствии со строительными разрядами зданий и категориями номеров гостиниц Предложения по искусственному освещению помещений гостиниц Приложение 1. Результаты натурных обследований отделки гостиниц Госкоминтуриста СССР и анализ проектной документации строящихся гостиниц Приложение 2. Система функциональных требований к материалам внутренней отделки жилых и общественных зданий Список литературы |
| Разработан: | ЦНИИЭП курортно-туристских зданий и комплексов Госгражданстроя |
| Расположен в: | |
| Нормативные ссылки: |
|
































































































