Информационная система
«Ёшкин Кот»

Скачать базу одним архивом
Скачать обновления
История создания базы
Карта сайта

Скачать Серия 1.132-1 Выпуск 1-7. Панели группы НР2 одношаговые толщиной 400 мм

Дата актуализации: 10.08.2017

Серия 1.132-1

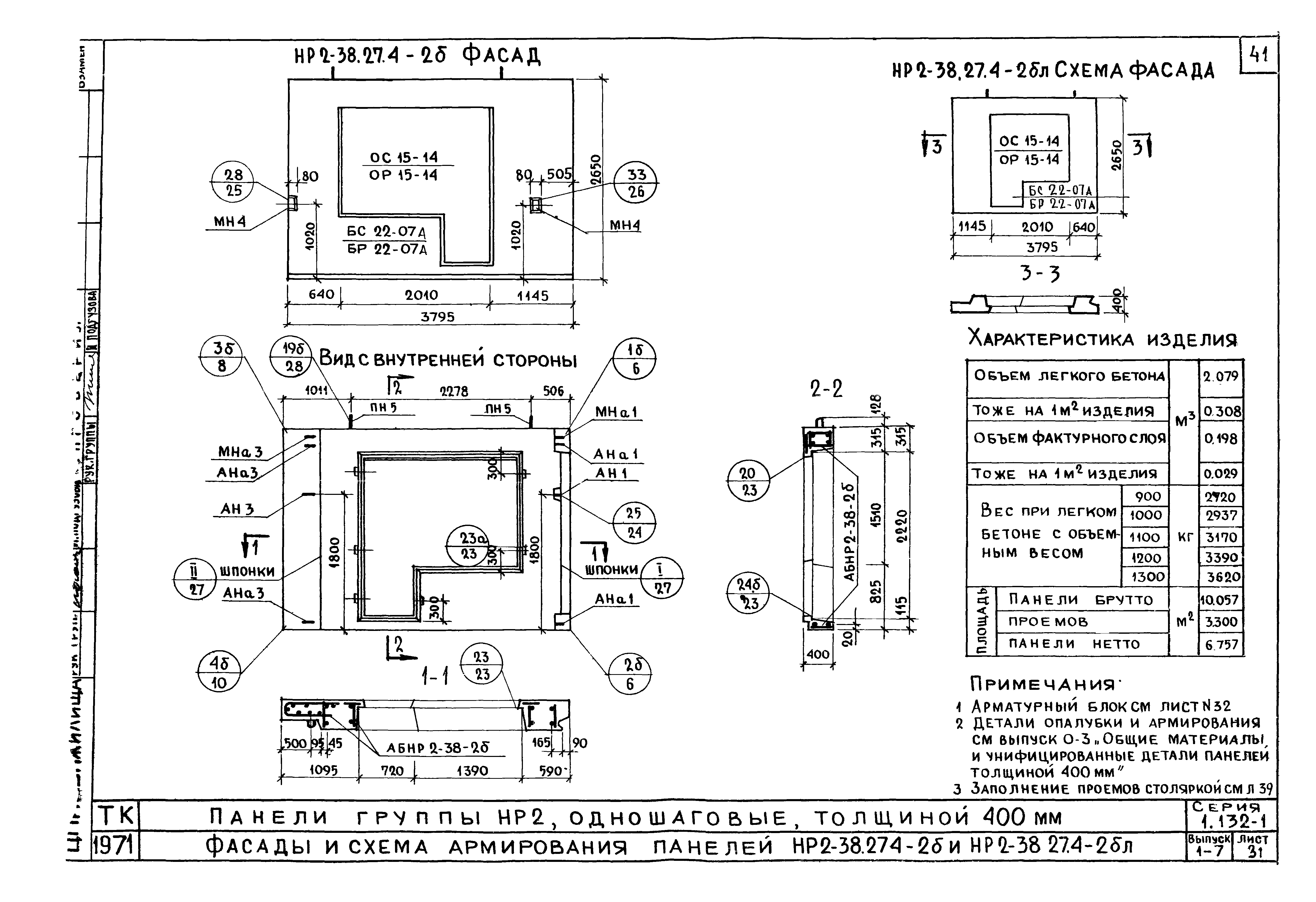
Выпуск 1-7. Панели группы НР2 одношаговые толщиной 400 мм

Обозначение: Серия 1.132-1
Обозначение англ: Series 1.132-1
Статус:заменен
Название рус.:Выпуск 1-7. Панели группы НР2 одношаговые толщиной 400 мм
Дата добавления в базу:01.09.2013
Дата актуализации:05.05.2017
Дата введения:01.10.1983
Область применения:В выпуске 1-7 представлены рабочие чертежи наружных стеновых панелей группы НР2одношаговых, толщиной 400 мм
Разработан: ЦНИИСК им. В.А. Кучеренко
ЦНИИЭП жилища
Утверждён:26.10.1971 Государственный комитет по гражданскому строительству и архитектуре при Госстрое СССР (190)
Расположен в:Техническая документация Строительство Справочные документы Типовые строительные конструкции, изделия и узлы Общероссийский строительный каталог Строительные конструкции, изделия и узлы зданий и сооружений для всех видов строительства Конструкции, изделия и узлы зданий Ограждающие конструкции Стены наружные Панели (бетонные и железобетонные)
Чем заменён:
  • Серия 1.132-1/82
Нормативные ссылки:
Серия 1.132-1Серия 1.132-1Серия 1.132-1Серия 1.132-1Серия 1.132-1Серия 1.132-1Серия 1.132-1Серия 1.132-1Серия 1.132-1Серия 1.132-1Серия 1.132-1Серия 1.132-1Серия 1.132-1Серия 1.132-1Серия 1.132-1Серия 1.132-1Серия 1.132-1Серия 1.132-1Серия 1.132-1Серия 1.132-1Серия 1.132-1Серия 1.132-1Серия 1.132-1Серия 1.132-1Серия 1.132-1Серия 1.132-1Серия 1.132-1Серия 1.132-1Серия 1.132-1Серия 1.132-1Серия 1.132-1Серия 1.132-1Серия 1.132-1Серия 1.132-1Серия 1.132-1Серия 1.132-1Серия 1.132-1Серия 1.132-1Серия 1.132-1Серия 1.132-1Серия 1.132-1Серия 1.132-1Серия 1.132-1Серия 1.132-1Серия 1.132-1Серия 1.132-1Серия 1.132-1Серия 1.132-1Серия 1.132-1Серия 1.132-1Серия 1.132-1

© 2013 Ёшкин Кот :-) Карта сайта