Информационная система
«Ёшкин Кот»

Скачать базу одним архивом
Скачать обновления
История создания базы
Карта сайта

Скачать Серия 1.117-13 Выпуск 1-2. Панели групп ЦР2; ЦТ1; ЦТ2 толщиной 300 мм. Рабочие чертежи

Дата актуализации: 10.08.2017

Серия 1.117-13

Выпуск 1-2. Панели групп ЦР2; ЦТ1; ЦТ2 толщиной 300 мм. Рабочие чертежи

Обозначение: Серия 1.117-13
Обозначение англ: Series 1.117-13
Статус:заменен
Название рус.:Выпуск 1-2. Панели групп ЦР2; ЦТ1; ЦТ2 толщиной 300 мм. Рабочие чертежи
Дата добавления в базу:01.09.2013
Дата актуализации:05.05.2017
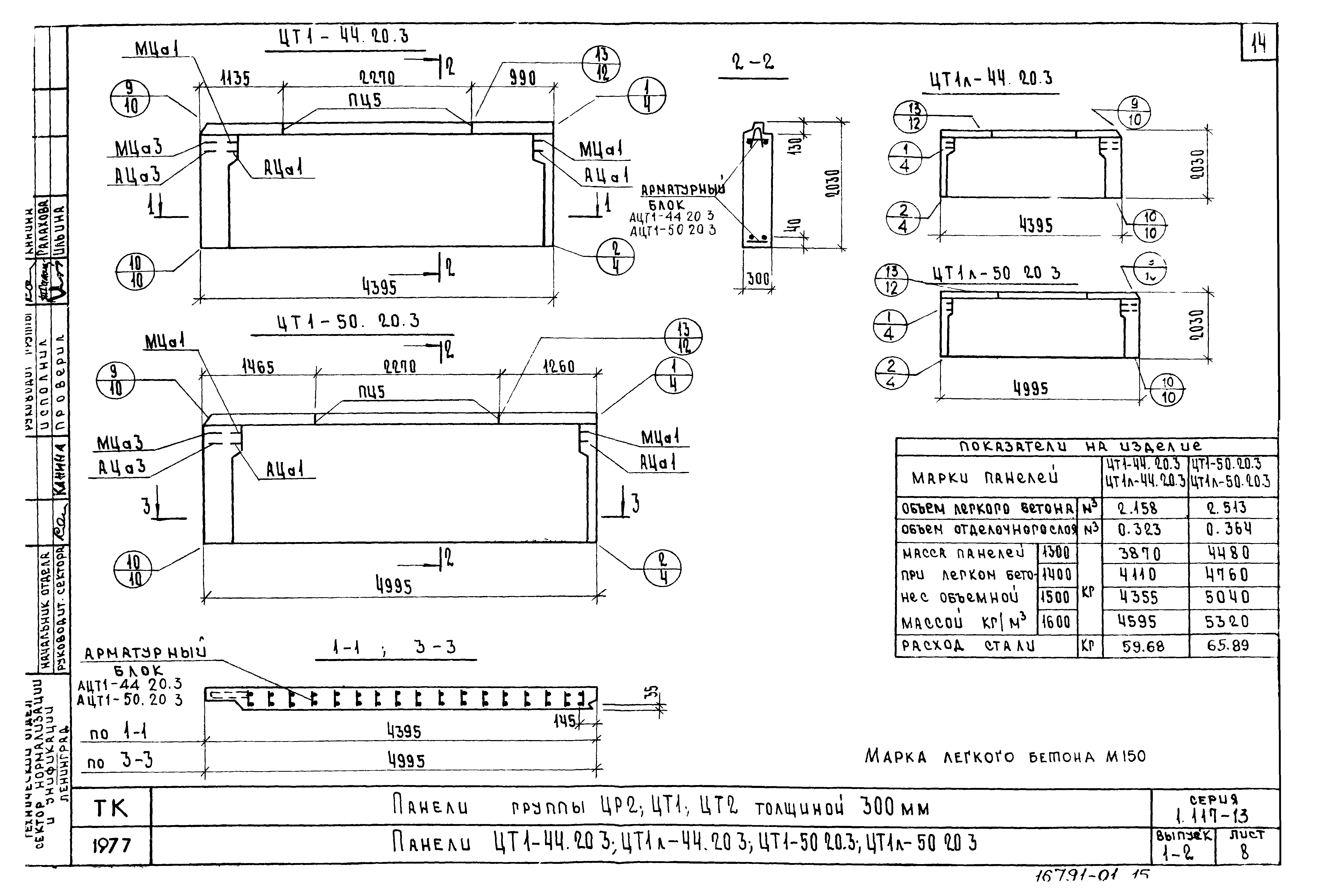
Область применения:В выпуске 1-2 серий 1.117-13 представлены рабочие чертежи наружных цокольных стеновых панелей групп ЦР2, ЦТ1; ЦТ2 толщиной 300 мм выпуском следует пользоваться совместно с выпусками 0-1; 2-1 настоящей серии
Разработан: ЛенЗНИИЭП Госгражданстроя
Утверждён:06.06.1980 Госгражданстрой (Gosgrazhdanstroy 150)
Расположен в:Техническая документация Строительство Справочные документы Типовые строительные конструкции, изделия и узлы Общероссийский строительный каталог Строительные конструкции, изделия и узлы зданий и сооружений для всех видов строительства Конструкции, изделия и узлы зданий Конструкции нулевого цикла Цокольные панели и блоки стен подвалов
Чем заменён:
Нормативные ссылки:
Серия 1.117-13Серия 1.117-13Серия 1.117-13Серия 1.117-13Серия 1.117-13Серия 1.117-13Серия 1.117-13Серия 1.117-13Серия 1.117-13Серия 1.117-13Серия 1.117-13Серия 1.117-13Серия 1.117-13Серия 1.117-13Серия 1.117-13Серия 1.117-13Серия 1.117-13Серия 1.117-13Серия 1.117-13Серия 1.117-13Серия 1.117-13Серия 1.117-13Серия 1.117-13Серия 1.117-13Серия 1.117-13Серия 1.117-13Серия 1.117-13

© 2013 Ёшкин Кот :-) Карта сайта