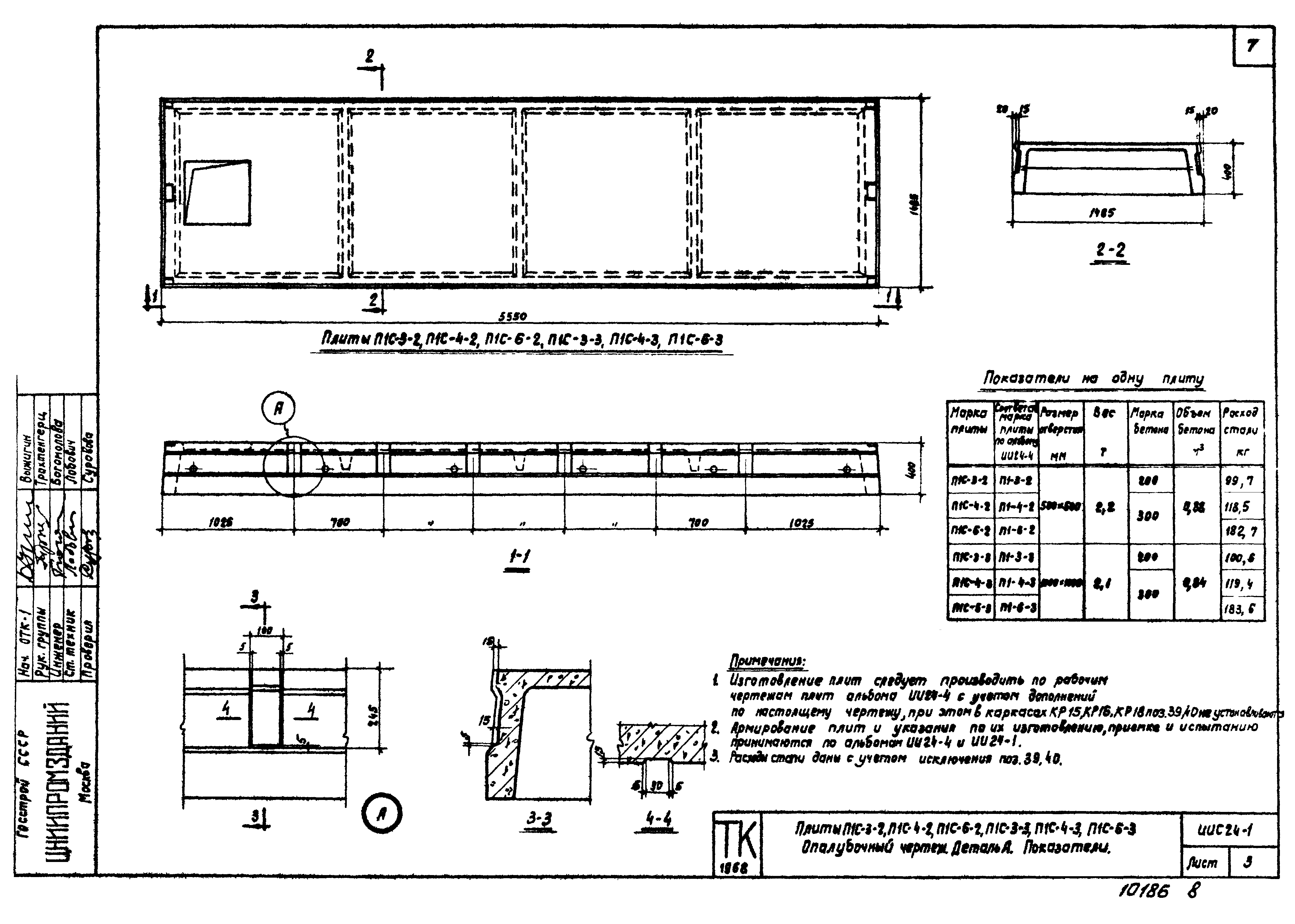
Скачать Серия ИИС24-1 Железобетонные плиты для перекрытий типа 1, с опиранием на полки ригелей (расчетная сейсмичность 9 баллов)Дата актуализации: 10.08.2017 Серия ИИС24-1
Железобетонные плиты для перекрытий типа 1, с опиранием на полки ригелей (расчетная сейсмичность 9 баллов)Обозначение: | Серия ИИС24-1 | Обозначение англ: | Series ИИС24-1 | Статус: | не действует | Название рус.: | Железобетонные плиты для перекрытий типа 1, с опиранием на полки ригелей (расчетная сейсмичность 9 баллов) | Дата добавления в базу: | 01.09.2013 | Дата актуализации: | 05.05.2017 | Дата введения: | 01.10.1969 | Дата окончания срока действия: | 01.05.1975 | Разработан: | ЦНИИСК им. В.А. Кучеренко ЦНИИпромзданий НИИЖБ
| Утверждён: | 30.06.1969 Госстрой СССР (Государственный комитет Совета Министров СССР по делам строительства) (USSR Gosstroy 77)
| Расположен в: |
| Чем заменён: | |
       
|