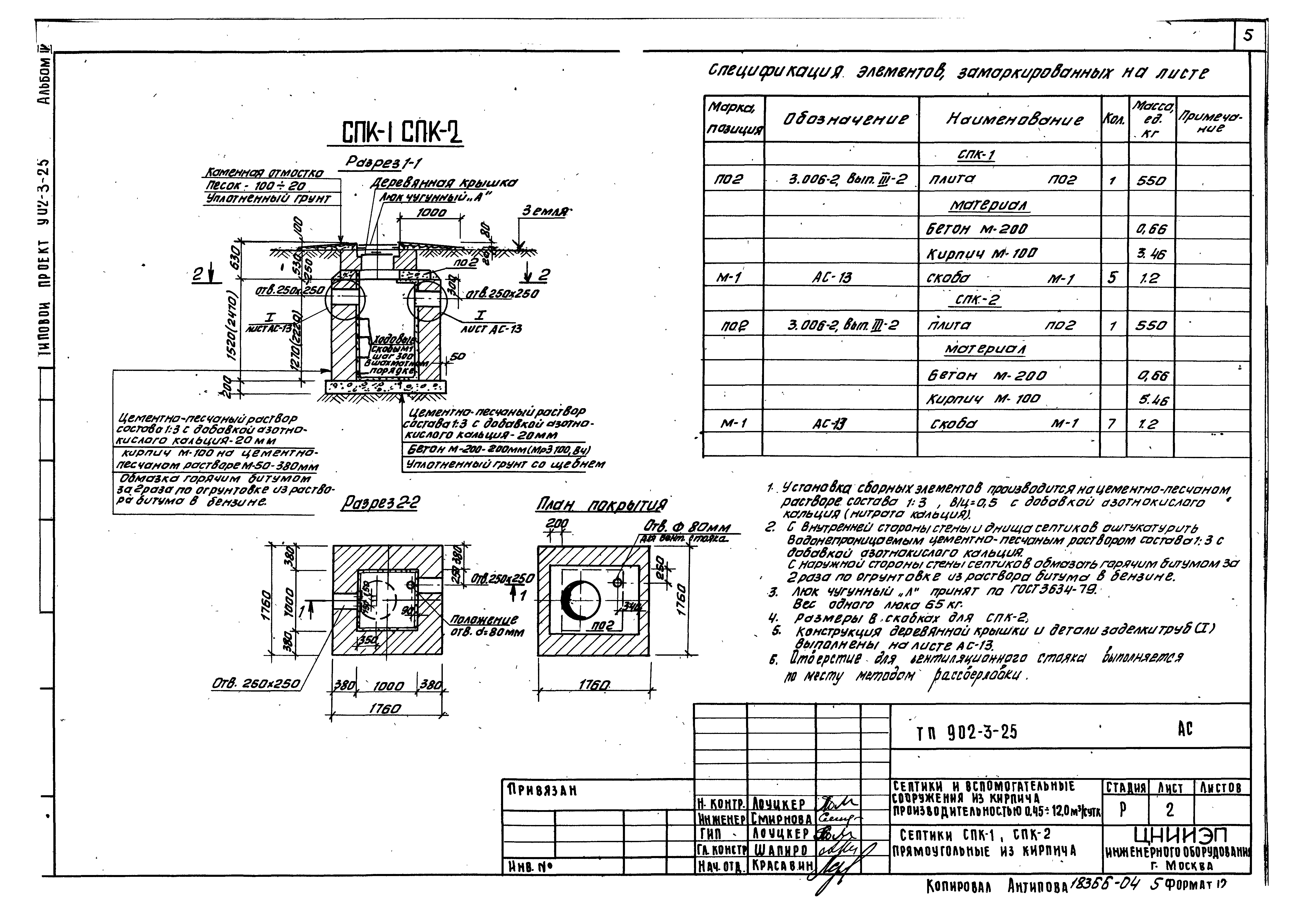
Скачать Типовой проект 902-3-25 Альбом IV. Септики и вспомогательные сооружения из кирпичаДата актуализации: 10.08.2017 Типовой проект 902-3-25
Альбом IV. Септики и вспомогательные сооружения из кирпичаОбозначение: | Типовой проект 902-3-25 | Обозначение англ: | 902-3-25 | Статус: | действует | Название рус.: | Альбом IV. Септики и вспомогательные сооружения из кирпича | Дата добавления в базу: | 01.09.2013 | Дата актуализации: | 05.05.2017 | Разработан: | ЦНИИЭП иженерного оборудования
| Утверждён: | 02.06.1982 Госгражданстрой (Gosgrazhdanstroy 150)
| Расположен в: |
|
             
|