Информационная система
«Ёшкин Кот»

Скачать базу одним архивом
Скачать обновления
История создания базы
Карта сайта

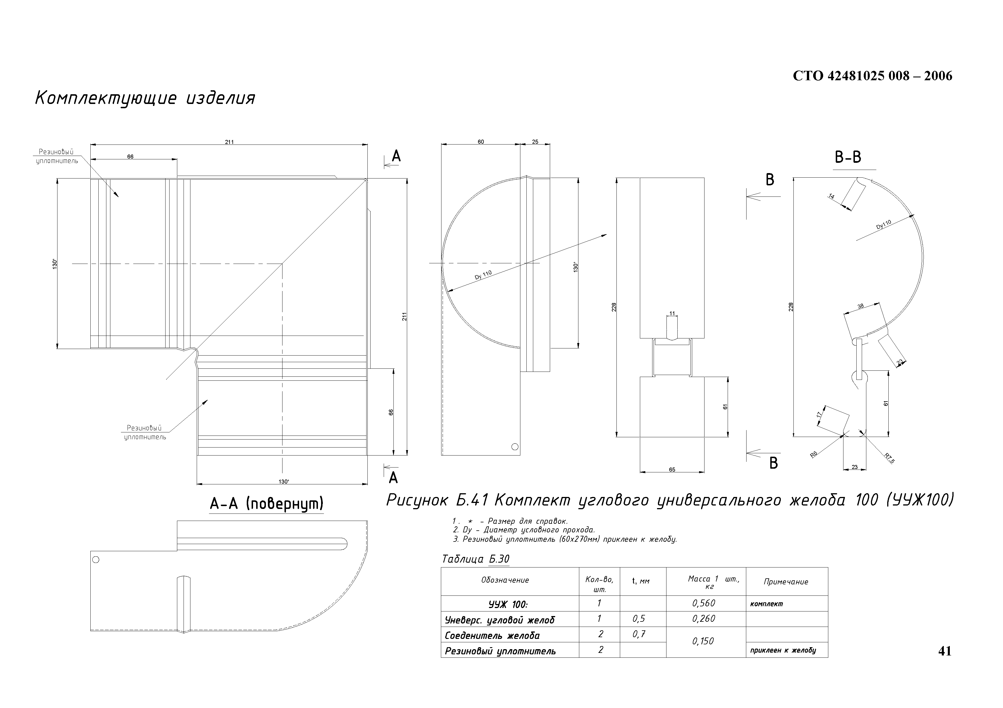
Скачать СТО 42481025 008-2006 Черепица кровельная металлическая и комплектующие изделия. Технические изделия

Дата актуализации: 10.08.2017

СТО 42481025 008-2006

Черепица кровельная металлическая и комплектующие изделия. Технические изделия

Обозначение: СТО 42481025 008-2006
Обозначение англ: STO 42481025 008-2006
Статус:действует
Название рус.:Черепица кровельная металлическая и комплектующие изделия. Технические изделия
Дата добавления в базу:01.09.2013
Дата актуализации:05.05.2017
Дата введения:15.05.2006
Область применения:Стандарт распространяется на черепицу кровельную металлическую, изготовленную методом холодного профилирования из холоднокатаного тонколистового оцинкованного проката с защитно-декоративным лакокрасочным покрытием и комплектующие изделия. Металлочерепица применяется в строительстве для устройства кровель, для крыш с уклоном не менее 14% или в качестве материала для наружной декоративной отделки элементов фасадов.
Оглавление:1. Область применения
2. Нормативные ссылки
3. Определения
4. Типы, основные параметры и размеры
5. Технические требования
   5.4 Требования к защитным покрытиям
   5.5 Требования к геометрической точности
   5.6 Комплектность
   5.7 Маркировка
   5.8 Упаковка
6. Правила приемки
7. Методы контроля
8. Транспортировка и хранение
9. Требования безопасности и охраны окружающей среды
11. Гарантии изготовителя
Приложение А (обязательное). Условные обозначения
Приложение Б (обязательное). Комплектующие условия
Разработан: ЗАО ИНСИ
Утверждён:18.01.2007 ЗАО ИНСИ
Расположен в:Техническая документация
Заменяет собой:
  • ТУ 5285-001-42481025-99
Нормативные ссылки:
СТО 42481025 008-2006СТО 42481025 008-2006СТО 42481025 008-2006СТО 42481025 008-2006СТО 42481025 008-2006СТО 42481025 008-2006СТО 42481025 008-2006СТО 42481025 008-2006СТО 42481025 008-2006СТО 42481025 008-2006СТО 42481025 008-2006СТО 42481025 008-2006СТО 42481025 008-2006СТО 42481025 008-2006СТО 42481025 008-2006СТО 42481025 008-2006СТО 42481025 008-2006СТО 42481025 008-2006СТО 42481025 008-2006СТО 42481025 008-2006СТО 42481025 008-2006СТО 42481025 008-2006СТО 42481025 008-2006СТО 42481025 008-2006СТО 42481025 008-2006СТО 42481025 008-2006СТО 42481025 008-2006СТО 42481025 008-2006СТО 42481025 008-2006СТО 42481025 008-2006СТО 42481025 008-2006СТО 42481025 008-2006СТО 42481025 008-2006СТО 42481025 008-2006СТО 42481025 008-2006СТО 42481025 008-2006СТО 42481025 008-2006СТО 42481025 008-2006СТО 42481025 008-2006СТО 42481025 008-2006СТО 42481025 008-2006СТО 42481025 008-2006СТО 42481025 008-2006СТО 42481025 008-2006СТО 42481025 008-2006

© 2013 Ёшкин Кот :-) Карта сайта