| ||||||||||||||||||||||||||||
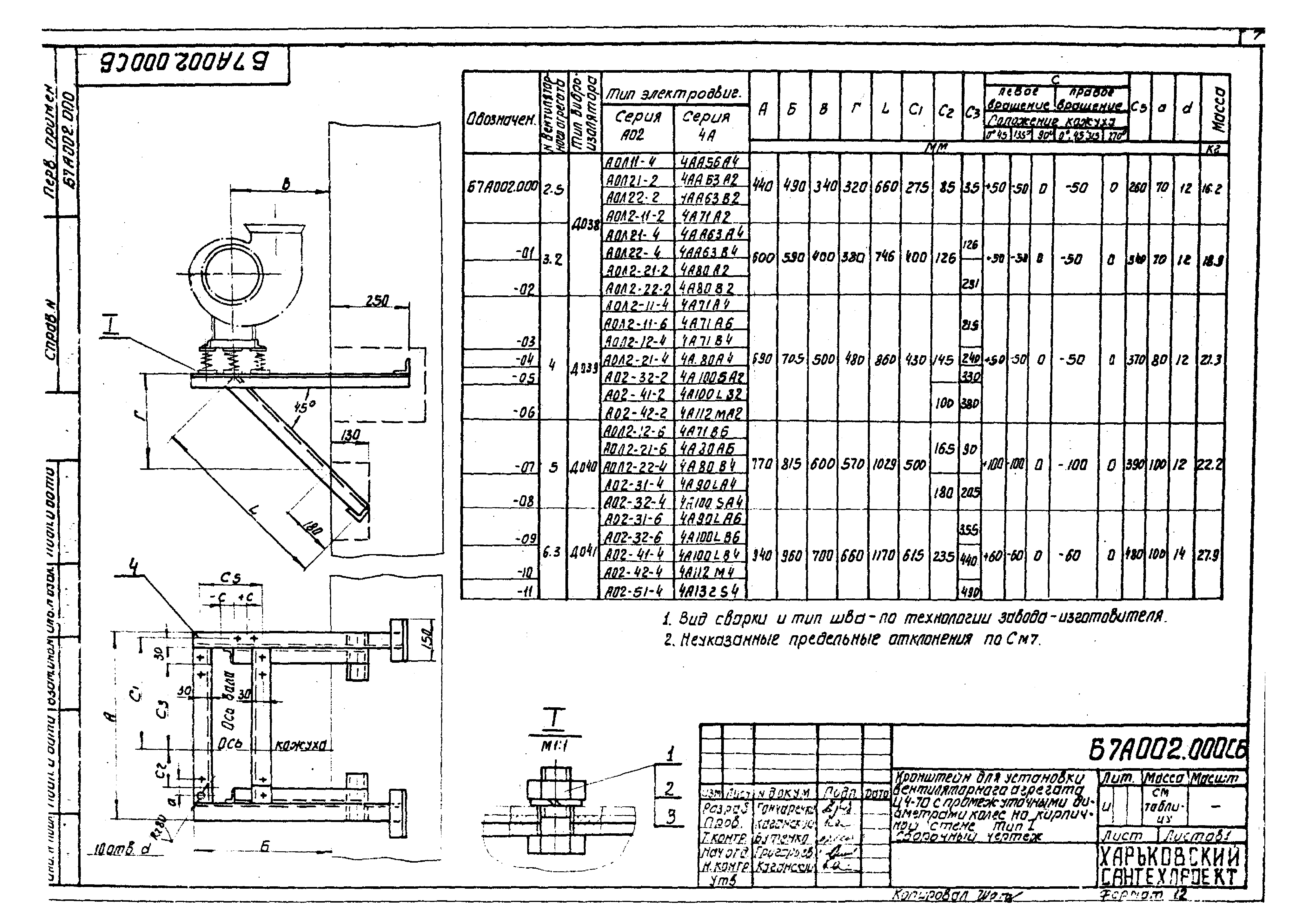
Скачать Серия 1.494-30 Выпуск 2. Установка и крепление центробежных вентиляторов ЦЧ-70. Рабочие чертежиДата актуализации: 10.08.2017
|
| Обозначение: | Серия 1.494-30 |
| Обозначение англ: | Series 1.494-30 |
| Статус: | не действует |
| Название рус.: | Выпуск 2. Установка и крепление центробежных вентиляторов ЦЧ-70. Рабочие чертежи |
| Дата добавления в базу: | 01.09.2013 |
| Дата актуализации: | 05.05.2017 |
| Дата введения: | 01.09.1977 |
| Дата окончания срока действия: | 01.03.1992 |
| Разработан: | Харьковский Сантехпроект |
| Утверждён: | 16.08.1977 Главпромстройпроект Госстроя СССР (34) |
| Расположен в: | |
| Чем заменён: |


















































































