| ||||||||||||||||||||||||||||||||
Скачать Серия 1.431-10 Выпуск 1. Рабочие чертежиДата актуализации: 10.08.2017
|
| Обозначение: | Серия 1.431-10 |
| Обозначение англ: | Series 1.431-10 |
| Статус: | заменен |
| Название рус.: | Выпуск 1. Рабочие чертежи |
| Дата добавления в базу: | 01.09.2013 |
| Дата актуализации: | 05.05.2017 |
| Дата введения: | 01.10.1980 |
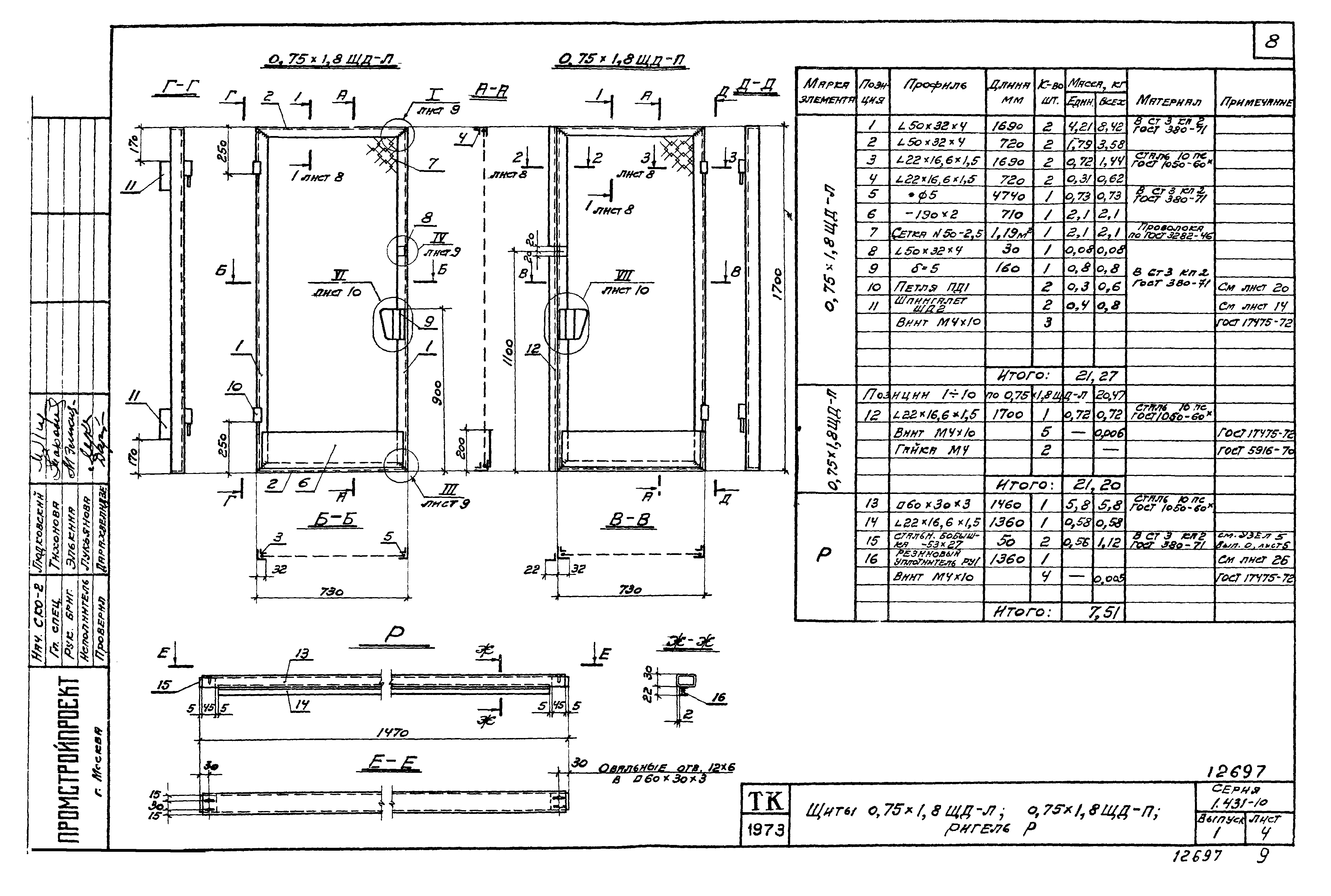
| Область применения: | Конструкция сетчатых перегородок сборно-разборная, состоит из строек, устанавливаемых с шагом 1,5 м, основных щитов размерами 1,5х1,8 м и 1,5х2,4 м и доборных щитов размерами 1х1,8 м, 1х2,4 м, навешиваемых на стойки |
| Оглавление: | Пояснительная записка Номенклатура элементов перегородок Щиты 1.5х1.8щ,1х1.8щ Щиты 1.5х2.4щ,1х2.4щ Щиты 0.75х1.8щд-л,0.75х1.8щд-п. Ригель Р Щиты 0.75х2.4щд-л,0.75х2.4щд-п Щит 1.5х2.4щ-р Щит 1.5х2.4щ-р. Разрезы. Створка раздаточного окна ср. Сечения 1-1-11-11 Узлы 1-4 Узлы 5-7 Узлы 8,9 Стойки 1.8С,1.8С-А,1.8С-Б,1.8С-В,1.8С-Г Стойки 2.4С,2.4С-А,2.4С-Б,2.4С-В,2.4С-Г Шпингалет ШД2.000 СБ Наконечник ШД2.001 Корпус ШД2.002 Стержень ШД2.003 Гнездо ШД2.004 Пружина ШД2.005 Петля дверная ПД1.000 СБ Штырь ПД1.001 Втулка ПД1.002 Петля дверная ПД2.000 СБ Втулка ПД2.002 Штырь ПД2.001 Резиновый уплотнитель РУ1 Спецификация материалов |
| Разработан: | Промстройпроект |
| Утверждён: | 29.11.1973 Госстрой СССР (Государственный комитет Совета Министров СССР по делам строительства) (USSR Gosstroy 222) |
| Расположен в: | |
| Чем заменён: | |
| Нормативные ссылки: |
|
























