Информационная система
«Ёшкин Кот»

Скачать базу одним архивом
Скачать обновления
История создания базы
Карта сайта

Скачать Серия 1.420-8 Выпуск 6. Схемы раскладки и узлы сопряжений стеновых панелей. Рабочие чертежи

Дата актуализации: 10.08.2017

Серия 1.420-8

Выпуск 6. Схемы раскладки и узлы сопряжений стеновых панелей. Рабочие чертежи

Обозначение: Серия 1.420-8
Обозначение англ: Series 1.420-8
Статус:не действует
Название рус.:Выпуск 6. Схемы раскладки и узлы сопряжений стеновых панелей. Рабочие чертежи
Дата добавления в базу:01.09.2013
Дата актуализации:05.05.2017
Дата введения:01.12.1978
Дата окончания срока действия:01.02.1983
Оглавление:Содержание и пояснительная записка
Схемы расположения стальных стоек торцового фахверка. Маркировочные схемы креплений стальных стоек торцового фахверка и насадок
Ключ для подбора стоек и насадок торцового фахверка
Маркировочные схемы деталей крепления стальных стоек фахверка к железобетонным фермам по серии ПК-01-129/68
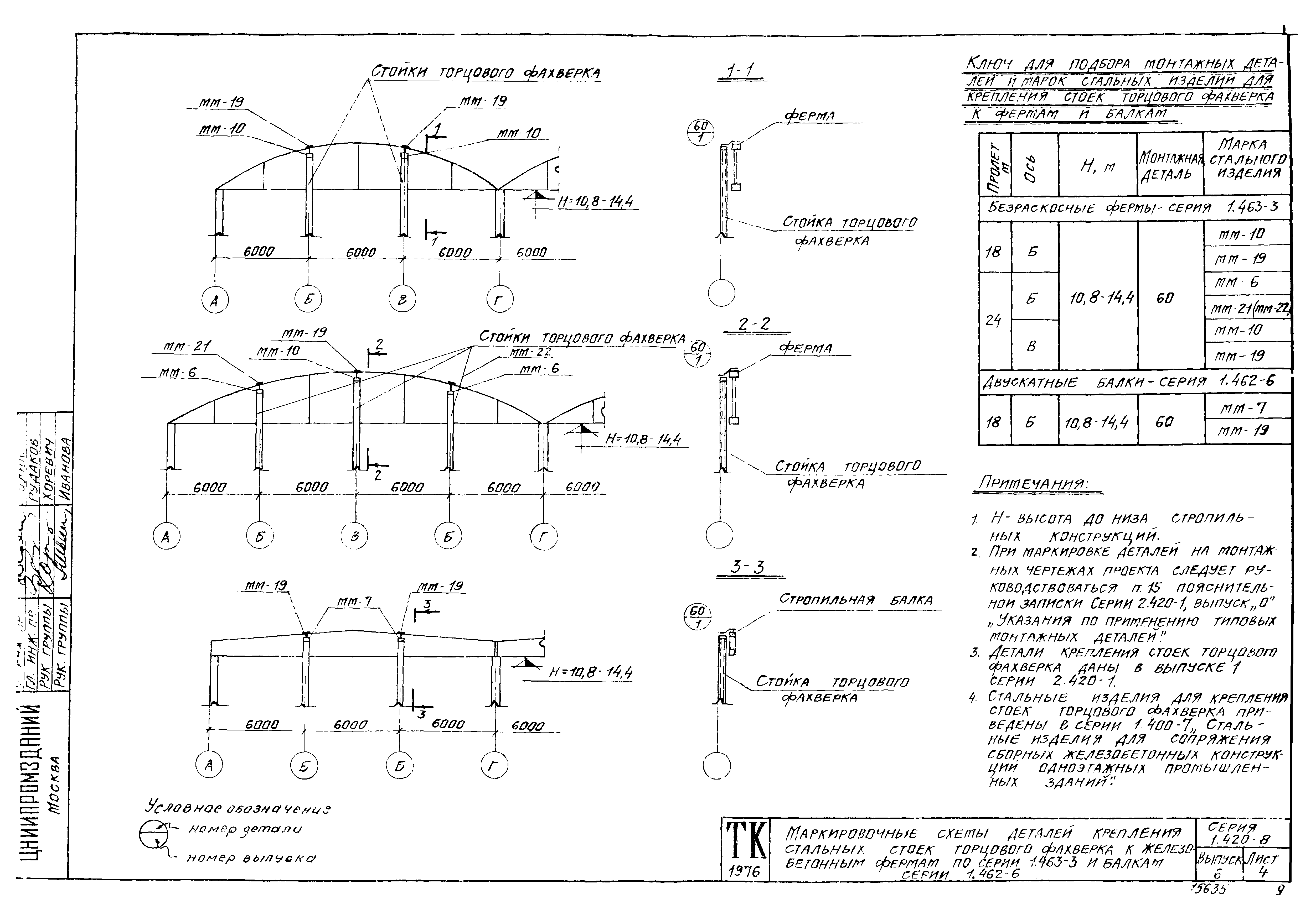
Маркировочные схемы деталей крепления стальных стоек торцового фахверка к железобетонным фермам по серии 1.463-3 и балкам по серии 1.462-6
Маркировочные схемы деталей крепления опорных консолей навесных стен. Ключ для подбора марок опорных консолей
Маркировочные схемы деталей крепления стеновых панелей к колоннам продольного ряда для навесных стен
Маркировочные схемы деталей крепления стеновых панелей к колоннам продольного ряда для самонесущих стен
Маркировочные схемы деталей крепления стеновых панелей к стальным стойкам торцового фахверка для навесных стен
Маркировочные схемы деталей крепления стеновых панелей к стальным стойкам торцового фахверка для самонесущих стен
Маркировочные схемы деталей и элементов креплений стеновых панелей в пределах высоты стропильных конструкций покрытия
Стойки СФ-1 и СФ-2
Стойки СФ-3 и СФ-10
Стойки СФ-11 и СФ-14
Стойки СФ-15 и СФ-21
Стойки СФ-22 и СФ-27
Насадка торцового фахверка НФ-1-НФ-8
Насадка торцового фахверка НС-1-НС-3 и НУ-1-НУ-4
Разработан: ЦНИИпромзданий
Утверждён:31.07.1978 Госстрой СССР (Государственный комитет Совета Министров СССР по делам строительства) (USSR Gosstroy 151)
Расположен в:Техническая документация Строительство Справочные документы Типовые строительные конструкции, изделия и узлы Общероссийский строительный каталог Строительные конструкции, изделия и узлы зданий и сооружений для всех видов строительства Конструкции, изделия и узлы зданий Несущие конструкции двухэтажных и многоэтажных зданий Каркасные здания
Чем заменён:
Серия 1.420-8Серия 1.420-8Серия 1.420-8Серия 1.420-8Серия 1.420-8Серия 1.420-8Серия 1.420-8Серия 1.420-8Серия 1.420-8Серия 1.420-8Серия 1.420-8Серия 1.420-8Серия 1.420-8Серия 1.420-8Серия 1.420-8Серия 1.420-8Серия 1.420-8Серия 1.420-8Серия 1.420-8Серия 1.420-8Серия 1.420-8Серия 1.420-8Серия 1.420-8

© 2013 Ёшкин Кот :-) Карта сайта