Информационная система
«Ёшкин Кот»

Скачать базу одним архивом
Скачать обновления
История создания базы
Карта сайта

Скачать Серия 1.030.1-1 Выпуск 1-1. Часть 1. Панели из легких и ячеистых бетонов. Рабочие чертежи

Дата актуализации: 10.08.2017

Серия 1.030.1-1

Выпуск 1-1. Часть 1. Панели из легких и ячеистых бетонов. Рабочие чертежи

Обозначение: Серия 1.030.1-1
Обозначение англ: Series 1.030.1-1
Статус:не действует
Название рус.:Выпуск 1-1. Часть 1. Панели из легких и ячеистых бетонов. Рабочие чертежи
Дата добавления в базу:01.09.2013
Дата актуализации:05.05.2017
Дата введения:01.12.1991
Область применения:Выпуск содержит: техническое описание, спецификации и сборочные чертежи панелей, опалубочные узлы, ведомость расхода стали на панели
Оглавление:Содержание
1.030.1-1.1-1 00ТО Техническое описание
1.030.1-1.1-1 01 Панель ПС30.6.2,5-6.Л-
1.030.1-1.1-1 01 Панель ПС30.6.3,0-6.Л-
1.030.1-1.1-1 01 Панель ПС30.6.3,5-6.Л-
1.030.1-1.1-1 01 Панель ПС30.6.4,0-6.Л-
1.030.1-1.1-1 01 Панель ПС30.9.2,0-6.Л-
1.030.1-1.1-1 01 Панель ПС30.9.2,5-6.Л-
1.030.1-1.1-1 01 Панель ПС30.9.3,0-6.Л-
1.030.1-1.1-1 01 Панель ПС30.9.3,5-6.Л-
1.030.1-1.1-1 01 Панель ПС30.9.4,0-6.Л-
1.030.1-1.1-1 01 Панель ПС30.12.2,0-6.Л-
1.030.1-1.1-1 01 Панель ПС30.12.2,5-6.Л-
1.030.1-1.1-1 01 Панель ПС30.12.3,0-6.Л-
1.030.1-1.1-1 01 Панель ПС30.12.3,5-6.Л-
1.030.1-1.1-1 01 Панель ПС30.12.4,0-6.Л-
1.030.1-1.1-1 02 Панель ПС30.13.2,5-6.Л-
1.030.1-1.1-1 02 Панель ПС30.13.3,0-6.Л-
1.030.1-1.1-1 02 Панель ПС30.13.3,5-6.Л-
1.030.1-1.1-1 02 Панель ПС30.13.4,0-6.Л-
1.030.1-1.1-1 02 Панель ПС30.6.2,5-6.Я-
1.030.1-1.1-1 02 Панель ПС30.6.3,0-6.Я-
1.030.1-1.1-1 02 Панель ПС30.9.2,0-6.Я-
1.030.1-1.1-1 02 Панель ПС30.9.2,5-6.Я-
1.030.1-1.1-1 02 Панель ПС30.9.3,0-6.Я-
1.030.1-1.1-1 02 Панель ПС30.12.2,0-6.Я-
1.030.1-1.1-1 02 Панель ПС30.12.2,5-6.Я-
1.030.1-1.1-1 02 Панель ПС30.12.3,0-6.Я-
1.030.1-1.1-1 02 Панель ПС30.13.2,5-6.Я-
1.030.1-1.1-1 02 Панель ПС30.13.3,0-6.Я-
1.030.1-1.1-1 03 Панель ПС30.15.2,5-6.Л-
1.030.1-1.1-1 03 Панель ПС30.15.3,0-6.Л-
1.030.1-1.1-1 03 Панель ПС30.15.3,5-6.Л-
1.030.1-1.1-1 03 Панель ПС30.15.4,0-6.Л-
1.030.1-1.1-1 03 Панель ПС30.18.2,0-6.Л-
1.030.1-1.1-1 03 Панель ПС30.18.2,5-6.Л-
1.030.1-1.1-1 03 Панель ПС30.18.3,0-6.Л-
1.030.1-1.1-1 03 Панель ПС30.18.3,5-6.Л-
1.030.1-1.1-1 03 Панель ПС30.18.4,0-6.Л-
1.030.1-1.1-1 03 Панель ПС30.21.2,5-6.Л-
1.030.1-1.1-1 03 Панель ПС30.21.3,0-6.Л-
1.030.1-1.1-1 03 Панель ПС30.21.3,5-6.Л-
1.030.1-1.1-1 03 Панель ПС30.21.4,0-6.Л-
1.030.1-1.1-1 03 Панель ПС30.15.2,5-6.Я-
1.030.1-1.1-1 03 Панель ПС30.15.3,0-6.Я-
1.030.1-1.1-1 03 Панель ПС30.18.2,0-6.Я-
1.030.1-1.1-1 03 Панель ПС30.18.2,5-6.Я-
1.030.1-1.1-1 03 Панель ПС30.18.3,0-6.Я-
1.030.1-1.1-1 04 Панель ПС60.6.2,5-6.Л-
1.030.1-1.1-1 04 Панель ПС60.6.3,0-6.Л-
1.030.1-1.1-1 04 Панель ПС60.6.3,5-6.Л-
1.030.1-1.1-1 04 Панель ПС60.6.4,0-4.Л-
1.030.1-1.1-1 04 Панель ПС60.6.4,0-6.Л-
1.030.1-1.1-1 04 Панель ПС60.9.2,0-2.Л-
1.030.1-1.1-1 04 Панель ПС60.9.2,0-4.Л-
1.030.1-1.1-1 04 Панель ПС60.9.2,0-6.Л-
1.030.1-1.1-1 04 Панель ПС60.9.2,5-2.Л-
1.030.1-1.1-1 04 Панель ПС60.9.2,5-4.Л-
1.030.1-1.1-1 04 Панель ПС60.9.2,5-6.Л-
1.030.1-1.1-1 04 Панель ПС60.9.3,0-6.Л-
1.030.1-1.1-1 04 Панель ПС60.9.3,5-6.Л-
1.030.1-1.1-1 04 Панель ПС60.9.4,0-6.Л-
1.030.1-1.1-1 04 Панель ПС60.6.2,5-6.Я-
1.030.1-1.1-1 04 Панель ПС60.6.3,0-6.Я-
1.030.1-1.1-1 04 Панель ПС60.9.2,0-2.Я-
1.030.1-1.1-1 04 Панель ПС60.9.2,0-4.Я-
1.030.1-1.1-1 04 Панель ПС60.9.2,0-6.Я-
1.030.1-1.1-1 04 Панель ПС60.9.2,5-2.Я-
1.030.1-1.1-1 04 Панель ПС60.9.2,5-4.Я-
1.030.1-1.1-1 04 Панель ПС60.9.2,5-6.Я-
1.030.1-1.1-1 04 Панель ПС60.9.3,0-6.Я-
1.030.1-1.1-1 05 Панель ПС60.12.2,0-2.Л-
1.030.1-1.1-1 05 Панель ПС60.12.2,0-4.Л-
1.030.1-1.1-1 05 Панель ПС60.12.2,0-6.Л-
1.030.1-1.1-1 05 Панель ПС60.12.2,5-3.Л-
1.030.1-1.1-1 05 Панель ПС60.12.2,5-5.Л-
1.030.1-1.1-1 05 Панель ПС60.12.2,5-6.Л-
1.030.1-1.1-1 05 Панель ПС60.12.3,0-3.Л-
1.030.1-1.1-1 05 Панель ПС60.12.3,0-6.Л-
1.030.1-1.1-1 05 Панель ПС60.12.3,5-6.Л-
1.030.1-1.1-1 05 Панель ПС60.12.4,0-6.Л-
1.030.1-1.1-1 05 Панель ПС60.13.2,5-2.Л-
1.030.1-1.1-1 05 Панель ПС60.13.2,5-5.Л-
1.030.1-1.1-1 05 Панель ПС60.13.2,5-6.Л-
1.030.1-1.1-1 05 Панель ПС60.13.3,0-3.Л-
1.030.1-1.1-1 05 Панель ПС60.13.3,0-6.Л-
1.030.1-1.1-1 05 Панель ПС60.13.3,5-6.Л-
1.030.1-1.1-1 05 Панель ПС60.13.4,0-6.Л-
1.030.1-1.1-1 05 Панель ПС60.12.2,0-2.Я-
1.030.1-1.1-1 05 Панель ПС60.12.2,0-4.Я-
1.030.1-1.1-1 05 Панель ПС60.12.2,0-6.Я-
1.030.1-1.1-1 05 Панель ПС60.12.2,5-3.Я-
1.030.1-1.1-1 05 Панель ПС60.12.2,5-5.Я-
1.030.1-1.1-1 05 Панель ПС60.12.2,5-6.Я-
1.030.1-1.1-1 05 Панель ПС60.12.3,0-3.Я-
1.030.1-1.1-1 05 Панель ПС60.12.3,0-6.Я-
1.030.1-1.1-1 05 Панель ПС60.13.2,5-2.Я-
1.030.1-1.1-1 05 Панель ПС60.13.2,5-5.Я-
1.030.1-1.1-1 05 Панель ПС60.13.2,5-6.Я-
1.030.1-1.1-1 05 Панель ПС60.13.3,0-3.Я-
1.030.1-1.1-1 05 Панель ПС60.13.3,0-6.Я-
1.030.1-1.1-1 06 Панель ПС60.15.2,0-2.Л-
1.030.1-1.1-1 06 Панель ПС60.15.2,0-3.Л-
1.030.1-1.1-1 06 Панель ПС60.15.2,0-4.Л-
1.030.1-1.1-1 06 Панель ПС60.15.2,0-6.Л-
1.030.1-1.1-1 06 Панель ПС60.15.2,5-2.Л-
1.030.1-1.1-1 06 Панель ПС60.15.2,5-5.Л-
1.030.1-1.1-1 06 Панель ПС60.15.2,5-6.Л-
1.030.1-1.1-1 06 Панель ПС60.15.3,0-3.Л-
1.030.1-1.1-1 06 Панель ПС60.15.3,0-6.Л-
1.030.1-1.1-1 06 Панель ПС60.15.3,5-6.Л-
1.030.1-1.1-1 06 Панель ПС60.15.4,0-6.Л-
1.030.1-1.1-1 06 Панель ПС60.15.2,0-2.Я-
1.030.1-1.1-1 06 Панель ПС60.15.2,0-3.Я-
1.030.1-1.1-1 06 Панель ПС60.15.2,0-4.Я-
1.030.1-1.1-1 06 Панель ПС60.15.2,0-5.Я-
1.030.1-1.1-1 06 Панель ПС60.15.2,0-6.Я-
1.030.1-1.1-1 06 Панель ПС60.15.2,5-2.Я-
1.030.1-1.1-1 06 Панель ПС60.15.2,5-5.Я-
1.030.1-1.1-1 06 Панель ПС60.15.2,5-6.Я-
1.030.1-1.1-1 06 Панель ПС60.15.3,0-3.Я-
1.030.1-1.1-1 06 Панель ПС60.15.3,0-6.Я-
1.030.1-1.1-1 06 Панель ПС60.18.2,0-1.Л-
1.030.1-1.1-1 07 Панель ПС60.18.2,0-3.Л-
1.030.1-1.1-1 07 Панель ПС60.18.2,0-4.Л-
1.030.1-1.1-1 07 Панель ПС60.18.2,0-5.Л-
1.030.1-1.1-1 07 Панель ПС60.18.2,0-6.Л-
1.030.1-1.1-1 07 Панель ПС60.18.2,5-2.Л-
1.030.1-1.1-1 07 Панель ПС60.18.2,5-4.Л-
1.030.1-1.1-1 07 Панель ПС60.18.2,5-6.Л-
1.030.1-1.1-1 07 Панель ПС60.18.3,0-2.Л-
1.030.1-1.1-1 07 Панель ПС60.18.3,0-6.Л-
1.030.1-1.1-1 07 Панель ПС60.18.3,5-6.Л-
1.030.1-1.1-1 07 Панель ПС60.18.4,0-6.Л-
1.030.1-1.1-1 07 Панель ПС60.21.2,5-1.Л-
1.030.1-1.1-1 07 Панель ПС60.21.2,5-4.Л-
1.030.1-1.1-1 07 Панель ПС60.21.2,5-6.Л-
1.030.1-1.1-1 07 Панель ПС60.21.3,0-2.Л-
1.030.1-1.1-1 07 Панель ПС60.21.3,0-5.Л-
1.030.1-1.1-1 07 Панель ПС60.21.3,0-6.Л-
1.030.1-1.1-1 07 Панель ПС60.21.3,5-6.Л-
1.030.1-1.1-1 07 Панель ПС60.21.4,0-6.Л-
1.030.1-1.1-1 07 Панель ПС60.18.2,0-1.Я-
1.030.1-1.1-1 07 Панель ПС60.18.2,0-3.Я-
1.030.1-1.1-1 07 Панель ПС60.18.2,0-4.Я-
1.030.1-1.1-1 07 Панель ПС60.18.2,0-5.Я-
1.030.1-1.1-1 07 Панель ПС60.18.2,0-6.Я-
1.030.1-1.1-1 07 Панель ПС60.18.2,5-2.Я-
1.030.1-1.1-1 07 Панель ПС60.18.2,5-4.Я-
1.030.1-1.1-1 07 Панель ПС60.18.2,5-6.Я-
1.030.1-1.1-1 07 Панель ПС60.18.3,0-2.Я-
1.030.1-1.1-1 07 Панель ПС60.18.3,0-6.Я-
1.030.1-1.1-1 08 Панель ПС72.9.2,5-4.Л-
1.030.1-1.1-1 08 Панель ПС72.9.2,5-5.Л-
1.030.1-1.1-1 08 Панель ПС72.9.2,5-6.Л-
1.030.1-1.1-1 08 Панель ПС72.9.3,0-5.Л-
1.030.1-1.1-1 08 Панель ПС72.9.3,0-6.Л-
1.030.1-1.1-1 08 Панель ПС72.9.3,5-6.Л-
1.030.1-1.1-1 08 Панель ПС72.9.4,0-6.Л-
1.030.1-1.1-1 08 Панель ПС72.12.2,5-3.Л-
1.030.1-1.1-1 08 Панель ПС72.12.2,5-4.Л-
1.030.1-1.1-1 08 Панель ПС72.12.2,5-5.Л-
1.030.1-1.1-1 08 Панель ПС72.12.2,5-6.Л-
1.030.1-1.1-1 08 Панель ПС72.12.3,0-4.Л-
1.030.1-1.1-1 08 Панель ПС72.12.3,0-6.Л-
1.030.1-1.1-1 08 Панель ПС72.12.3,5-4.Л-
1.030.1-1.1-1 08 Панель ПС72.12.3,5-6.Л-
1.030.1-1.1-1 08 Панель ПС72.12.4,0-4.Л-
1.030.1-1.1-1 08 Панель ПС72.12.4,0-6.Л-
1.030.1-1.1-1 09 Панель ПС72.13.2,5-1.Л-
1.030.1-1.1-1 09 Панель ПС72.13.2,5-3.Л-
1.030.1-1.1-1 09 Панель ПС72.13.2,5-4.Л-
1.030.1-1.1-1 09 Панель ПС72.13.2,5-5.Л-
1.030.1-1.1-1 09 Панель ПС72.13.2,5-6.Л-
1.030.1-1.1-1 09 Панель ПС72.13.3,0-4.Л-
1.030.1-1.1-1 09 Панель ПС72.13.3,0-5.Л-
1.030.1-1.1-1 09 Панель ПС72.13.3,0-6.Л-
1.030.1-1.1-1 09 Панель ПС72.13.3,5-5.Л-
1.030.1-1.1-1 09 Панель ПС72.13.3,5-6.Л-
1.030.1-1.1-1 09 Панель ПС72.13.4,0-5.Л-
1.030.1-1.1-1 09 Панель ПС72.13.4,0-6.Л-
1.030.1-1.1-1 09 Панель ПС72.15.2,5-2.Л-
1.030.1-1.1-1 09 Панель ПС72.15.2,5-3.Л-
1.030.1-1.1-1 09 Панель ПС72.15.2,5-4.Л-
1.030.1-1.1-1 09 Панель ПС72.15.2,5-5.Л-
1.030.1-1.1-1 09 Панель ПС72.15.2,5-6.Л-
1.030.1-1.1-1 09 Панель ПС72.15.3,0-2.Л-
1.030.1-1.1-1 09 Панель ПС72.15.3,0-4.Л-
1.030.1-1.1-1 09 Панель ПС72.15.3,0-5.Л-
1.030.1-1.1-1 09 Панель ПС72.15.3,0-6.Л-
1.030.1-1.1-1 09 Панель ПС72.15.3,5-5.Л-
1.030.1-1.1-1 09 Панель ПС72.15.3,5-6.Л-
1.030.1-1.1-1 09 Панель ПС72.15.4,0-6.Л-
1.030.1-1.1-1 10 Панель ПС72.18.2,5-1.Л-
1.030.1-1.1-1 10 Панель ПС72.18.2,5-3.Л-
1.030.1-1.1-1 10 Панель ПС72.18.2,5-4.Л-
1.030.1-1.1-1 10 Панель ПС72.18.2,5-5.Л-
1.030.1-1.1-1 10 Панель ПС72.18.2,5-6.Л-
1.030.1-1.1-1 10 Панель ПС72.18.3,0-2.Л-
1.030.1-1.1-1 10 Панель ПС72.18.3,0-4.Л-
1.030.1-1.1-1 10 Панель ПС72.18.3,0-5.Л-
1.030.1-1.1-1 10 Панель ПС72.18.3,0-6.Л-
1.030.1-1.1-1 10 Панель ПС72.18.3,5-5.Л-
1.030.1-1.1-1 10 Панель ПС72.18.3,5-6.Л-
1.030.1-1.1-1 10 Панель ПС72.18.4,0-6.Л-
1.030.1-1.1-1 10 Панель ПС72.21.2,5-1.Л-
1.030.1-1.1-1 10 Панель ПС72.21.2,5-3.Л-
1.030.1-1.1-1 10 Панель ПС72.21.2,5-4.Л-
1.030.1-1.1-1 10 Панель ПС72.21.2,5-5.Л-
1.030.1-1.1-1 10 Панель ПС72.21.2,5-6.Л-
1.030.1-1.1-1 10 Панель ПС72.21.3,0-2.Л-
1.030.1-1.1-1 10 Панель ПС72.21.3,0-4.Л-
1.030.1-1.1-1 10 Панель ПС72.21.3,0-5.Л-
1.030.1-1.1-1 10 Панель ПС72.21.3,0-6.Л-
1.030.1-1.1-1 10 Панель ПС72.21.3,5-4.Л-
1.030.1-1.1-1 10 Панель ПС72.21.3,5-6.Л-
1.030.1-1.1-1 10 Панель ПС72.21.4,0-5.Л-
1.030.1-1.1-1 10 Панель ПС72.21.4,0-6.Л-
1.030.1-1.1-1 11 Панель ПС90.12.2,5-2.Л-
1.030.1-1.1-1 11 Панель ПС90.12.2,5-3.Л-
1.030.1-1.1-1 11 Панель ПС90.12.2,5-4.Л-
1.030.1-1.1-1 11 Панель ПС90.12.2,5-5.Л-
1.030.1-1.1-1 11 Панель ПС90.12.3,0-4.Л-
1.030.1-1.1-1 11 Панель ПС90.12.3,0-5.Л-
1.030.1-1.1-1 11 Панель ПС90.12.3,0-6.Л-
1.030.1-1.1-1 11 Панель ПС90.12.3,5-6.Л-
1.030.1-1.1-1 11 Панель ПС90.12.4,0-6.Л-
1.030.1-1.1-1 11 Панель ПС90.15.2,5-2.Л-
1.030.1-1.1-1 11 Панель ПС90.15.2,5-3.Л-
1.030.1-1.1-1 11 Панель ПС90.15.2,5-4.Л-
1.030.1-1.1-1 11 Панель ПС90.15.2,5-5.Л-
1.030.1-1.1-1 11 Панель ПС90.15.3,0-3.Л-
1.030.1-1.1-1 11 Панель ПС90.15.3,0-4.Л-
1.030.1-1.1-1 11 Панель ПС90.15.3,0-5.Л-
1.030.1-1.1-1 11 Панель ПС90.15.3,0-6.Л-
1.030.1-1.1-1 11 Панель ПС90.15.3,5-4.Л-
1.030.1-1.1-1 11 Панель ПС90.15.3,5-6.Л-
1.030.1-1.1-1 11 Панель ПС90.15.4,0-4.Л-
1.030.1-1.1-1 11 Панель ПС90.15.4,0-6.Л-
1.030.1-1.1-1 12 Панель ПС90.18.2,5-2.Л-
1.030.1-1.1-1 12 Панель ПС90.18.2,5-3.Л-
1.030.1-1.1-1 12 Панель ПС90.18.2,5-4.Л-
1.030.1-1.1-1 12 Панель ПС90.18.2,5-5.Л-
1.030.1-1.1-1 12 Панель ПС90.18.3,0-3.Л-
1.030.1-1.1-1 12 Панель ПС90.18.3,0-4.Л-
1.030.1-1.1-1 12 Панель ПС90.18.3,0-5.Л-
1.030.1-1.1-1 12 Панель ПС90.18.3,0-6.Л-
1.030.1-1.1-1 12 Панель ПС90.18.3,5-4.Л-
1.030.1-1.1-1 12 Панель ПС90.18.3,5-6.Л-
1.030.1-1.1-1 12 Панель ПС90.18.4,0-5.Л-
1.030.1-1.1-1 12 Панель ПС90.18.4,0-6.Л-
1.030.1-1.1-1 13 Панель ПС90.21.2,5-2.Л-
1.030.1-1.1-1 13 Панель ПС90.21.2,5-3.Л-
1.030.1-1.1-1 13 Панель ПС90.21.2,5-4.Л-
1.030.1-1.1-1 13 Панель ПС90.21.2,5-5.Л-
1.030.1-1.1-1 13 Панель ПС90.21.3,0-3.Л-
1.030.1-1.1-1 13 Панель ПС90.21.3,0-4.Л-
1.030.1-1.1-1 13 Панель ПС90.21.3,0-5.Л-
1.030.1-1.1-1 13 Панель ПС90.21.3,0-6.Л-
1.030.1-1.1-1 13 Панель ПС90.21.3,5-4.Л-
1.030.1-1.1-1 13 Панель ПС90.21.3,5-5.Л-
1.030.1-1.1-1 13 Панель ПС90.21.3,5-6.Л-
1.030.1-1.1-1 13 Панель ПС90.21.4,0-4.Л-
1.030.1-1.1-1 13 Панель ПС90.21.4,0-6.Л-
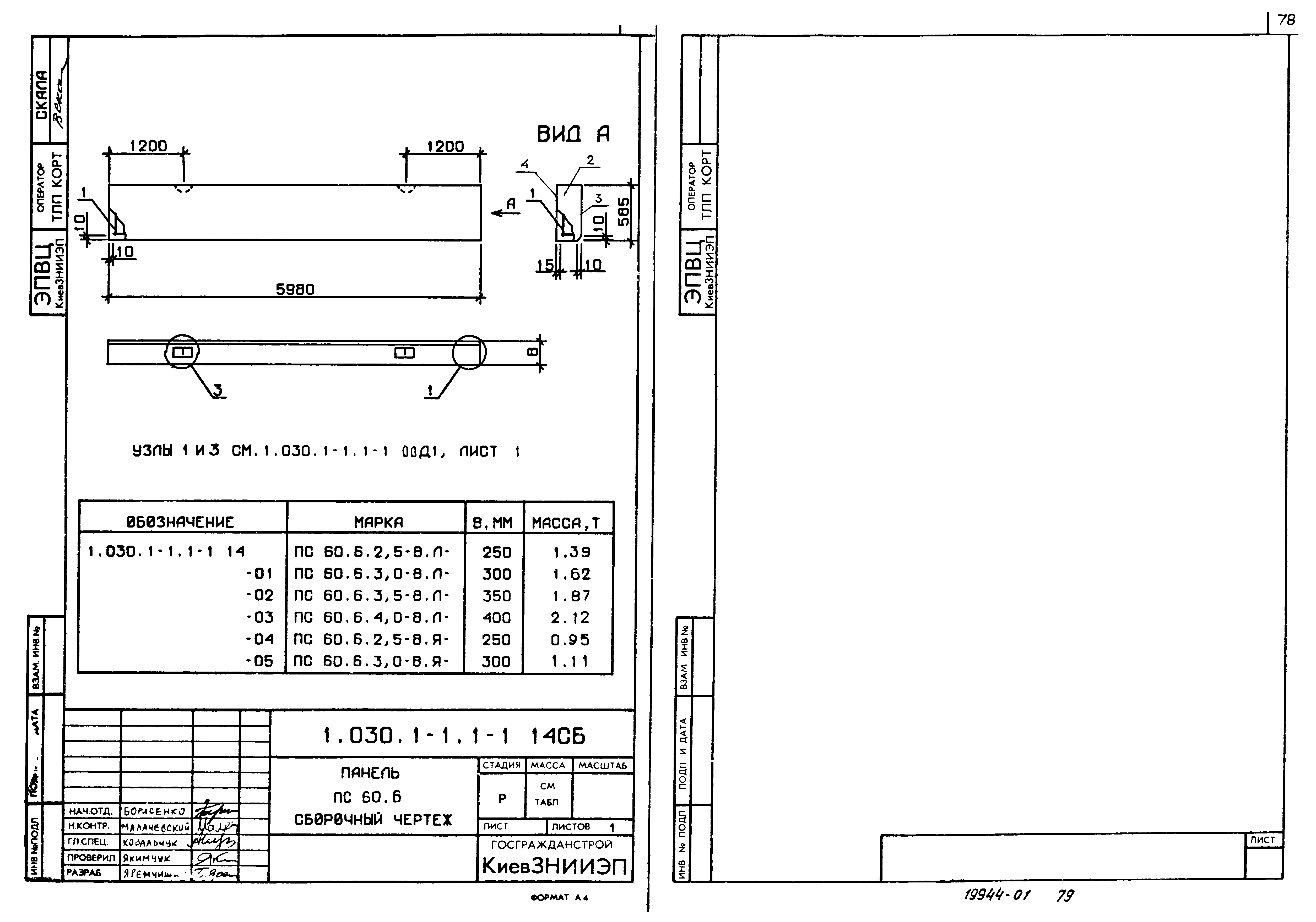
1.030.1-1.1-1 14 Панель ПС60.6.2,5-8.Л-
1.030.1-1.1-1 14 Панель ПС60.6.3,0-8.Л-
1.030.1-1.1-1 14 Панель ПС60.6.3,5-8.Л-
1.030.1-1.1-1 14 Панель ПС60.6.4,0-8.Л-
1.030.1-1.1-1 14 Панель ПС60.6.2,5-8.Я-
1.030.1-1.1-1 14 Панель ПС60.6.3,0-8.Я-
1.030.1-1.1-1 15 Панель ПС62,5.9.2,0-2.Л-1.
1.030.1-1.1-1 15 Панель ПС62,5.9.2,0-4.Л-1.
1.030.1-1.1-1 15 Панель ПС62,5.9.2,0-6.Л-1.
1.030.1-1.1-1 15 Панель ПС62,5.12.2,0-2.Л-1.
1.030.1-1.1-1 15 Панель ПС62,5.12.2,0-4.Л-1.
1.030.1-1.1-1 15 Панель ПС62,5.12.2,0-6.Л-1.
1.030.1-1.1-1 15 Панель ПС62,5.18.2,0-1.Л-1.
1.030.1-1.1-1 15 Панель ПС62,5.18.2,0-3.Л-1.
1.030.1-1.1-1 15 Панель ПС62,5.18.2,0-4.Л-1.
1.030.1-1.1-1 15 Панель ПС62,5.18.2,0-5.Л-1.
1.030.1-1.1-1 15 Панель ПС62,5.18.2,0-6.Л-1.
1.030.1-1.1-1 15 Панель ПС62,5.9.2,0-2.Я-1.
1.030.1-1.1-1 15 Панель ПС62,5.9.2,0-4.Я-1.
1.030.1-1.1-1 15 Панель ПС62,5.9.2,0-6.Я-1.
1.030.1-1.1-1 15 Панель ПС62,5.12.2,0-2.Я-1.
1.030.1-1.1-1 15 Панель ПС62,5.12.2,0-4.Я-1.
1.030.1-1.1-1 15 Панель ПС62,5.12.2,0-6.Я-1.
1.030.1-1.1-1 15 Панель ПС62,5.18.2,0-1.Я-1.
1.030.1-1.1-1 15 Панель ПС62,5.18.2,0-3.Я-1.
1.030.1-1.1-1 15 Панель ПС62,5.18.2,0-4.Я-1.
1.030.1-1.1-1 15 Панель ПС62,5.18.2,0-5.Я-1.
1.030.1-1.1-1 15 Панель ПС62,5.18.2,0-6.Я-1.
1.030.1-1.1-1 16 Панель ПС63.9.2,5-2.Л-1.
1.030.1-1.1-1 16 Панель ПС63.9.2,5-4.Л-1.
1.030.1-1.1-1 16 Панель ПС63.9.2,5-6.Л-1.
1.030.1-1.1-1 16 Панель ПС63.12.2,5-3.Л-1.
1.030.1-1.1-1 16 Панель ПС63.12.2,5-5.Л-1.
1.030.1-1.1-1 16 Панель ПС63.12.2,5-6.Л-1.
1.030.1-1.1-1 16 Панель ПС63.18.2,5-2.Л-1.
1.030.1-1.1-1 16 Панель ПС63.18.2,5-4.Л-1.
1.030.1-1.1-1 16 Панель ПС63.18.2,5-6.Л-1.
1.030.1-1.1-1 16 Панель ПС63.9.2,5-2.Я-1.
1.030.1-1.1-1 16 Панель ПС63.9.2,5-4.Я-1.
1.030.1-1.1-1 16 Панель ПС63.9.2,5-6.Я-1.
1.030.1-1.1-1 16 Панель ПС63.12.2,5-3.Я-1.
1.030.1-1.1-1 16 Панель ПС63.12.2,5-5.Я-1.
1.030.1-1.1-1 16 Панель ПС63.12.2,5-6.Я-1.
1.030.1-1.1-1 16 Панель ПС63.18.2,5-2.Я-1.
1.030.1-1.1-1 16 Панель ПС63.18.2,5-4.Я-1.
1.030.1-1.1-1 16 Панель ПС63.18.2,5-6.Я-1.
1.030.1-1.1-1 17 Панель ПС63,5.9.3,0-6.Л-1.
1.030.1-1.1-1 17 Панель ПС63,5.12.3,0-3.Л-1.
1.030.1-1.1-1 17 Панель ПС63,5.12.3,0-6.Л-1.
1.030.1-1.1-1 17 Панель ПС63,5.18.3,0-2.Л-1.
1.030.1-1.1-1 17 Панель ПС63,5.18.3,0-6.Л-1.
1.030.1-1.1-1 17 Панель ПС63,5.9.3,0-6.Я-1.
1.030.1-1.1-1 17 Панель ПС63,5.12.3,0-3.Я-1.
1.030.1-1.1-1 17 Панель ПС63,5.12.3,0-6.Я-1.
1.030.1-1.1-1 17 Панель ПС63,5.18.3,0-2.Я-1.
1.030.1-1.1-1 17 Панель ПС63,5.18.3,0-6.Я-1.
1.030.1-1.1-1 18 Панель ПС64.9.3,5-6.Л-1.
1.030.1-1.1-1 18 Панель ПС64.12.3,5-6.Л-1.
1.030.1-1.1-1 18 Панель ПС64.18.3,5-6.Л-1.
1.030.1-1.1-1 19 Панель ПС65.9.2,0-2.Л-1.
1.030.1-1.1-1 19 Панель ПС65.9.2,0-4.Л-1.
1.030.1-1.1-1 19 Панель ПС65.9.2,0-6.Л-1.
1.030.1-1.1-1 19 Панель ПС65.12.2,0-2.Л-1.
1.030.1-1.1-1 19 Панель ПС65.12.2,0-4.Л-1.
1.030.1-1.1-1 19 Панель ПС65.12.2,0-6.Л-1.
1.030.1-1.1-1 19 Панель ПС65.18.2,0-1.Л-1.
1.030.1-1.1-1 19 Панель ПС65.18.2,0-3.Л-1.
1.030.1-1.1-1 19 Панель ПС65.18.2,0-4.Л-1.
1.030.1-1.1-1 19 Панель ПС65.18.2,0-5.Л-1.
1.030.1-1.1-1 19 Панель ПС65.18.2,0-6.Л-1.
1.030.1-1.1-1 19 Панель ПС65.9.2,0-2.Я-1.
1.030.1-1.1-1 19 Панель ПС65.9.2,0-4.Я-1.
1.030.1-1.1-1 19 Панель ПС65.9.2,0-6.Я-1.
1.030.1-1.1-1 19 Панель ПС65.12.2,0-2.Я-1.
1.030.1-1.1-1 19 Панель ПС65.12.2,0-4.Я-1.
1.030.1-1.1-1 19 Панель ПС65.12.2,0-6.Я-1.
1.030.1-1.1-1 19 Панель ПС65.18.2,0-1.Я-1.
1.030.1-1.1-1 19 Панель ПС65.18.2,0-3.Я-1.
1.030.1-1.1-1 19 Панель ПС65.18.2,0-4.Я-1.
1.030.1-1.1-1 19 Панель ПС65.18.2,0-5.Я-1.
1.030.1-1.1-1 19 Панель ПС65.18.2,0-6.Я-1.
1.030.1-1.1-1 20 Панель ПС65,5.9.2,5-2.Л-1.
1.030.1-1.1-1 20 Панель ПС65,5.9.2,5-4.Л-1.
1.030.1-1.1-1 20 Панель ПС65,5.9.2,5-6.Л-1.
1.030.1-1.1-1 20 Панель ПС65,5.12.2,5-3.Л-1.
1.030.1-1.1-1 20 Панель ПС65,5.12.2,5-5.Л-1.
1.030.1-1.1-1 20 Панель ПС65,5.12.2,5-6.Л-1.
1.030.1-1.1-1 20 Панель ПС65,5.18.2,5-2.Л-1.
1.030.1-1.1-1 20 Панель ПС65,5.18.2,5-4.Л-1.
1.030.1-1.1-1 20 Панель ПС65,5.18.2,5-6.Л-1.
1.030.1-1.1-1 20 Панель ПС65,5.9.2,5-2.Я-1.
1.030.1-1.1-1 20 Панель ПС65,5.9.2,5-4.Я-1.
1.030.1-1.1-1 20 Панель ПС65,5.9.2,5-6.Я-1.
1.030.1-1.1-1 20 Панель ПС65,5.12.2,5-3.Я-1.
1.030.1-1.1-1 20 Панель ПС65,5.12.2,5-5.Я-1.
1.030.1-1.1-1 20 Панель ПС65,5.12.2,5-6.Я-1.
1.030.1-1.1-1 20 Панель ПС65,5.18.2,5-2.Я-1.
1.030.1-1.1-1 20 Панель ПС65,5.18.2,5-4.Я-1.
1.030.1-1.1-1 20 Панель ПС65,5.18.2,5-6.Я-1.
1.030.1-1.1-1 21 Панель ПС66.9.3,0-6.Л-1.
1.030.1-1.1-1 21 Панель ПС66.12.3,0-3.Л-1.
1.030.1-1.1-1 21 Панель ПС66.12.3,0-6.Л-1.
1.030.1-1.1-1 21 Панель ПС66.18.3,0-2.Л-1.
1.030.1-1.1-1 21 Панель ПС66.18.3,0-6.Л-1.
1.030.1-1.1-1 21 Панель ПС66.9.3,0-6.Я-1.
1.030.1-1.1-1 21 Панель ПС66.12.3,0-3.Я-1.
1.030.1-1.1-1 21 Панель ПС66.12.3,0-6.Я-1.
1.030.1-1.1-1 21 Панель ПС66.18.3,0-2.Я-1.
1.030.1-1.1-1 21 Панель ПС66.18.3.3,0-6.Я-1.
1.030.1-1.1-1 22 Панель ПС66,5.9.3,5-6.Л-1.
1.030.1-1.1-1 22 Панель ПС66,5.12.3,5-6.Л-1.
1.030.1-1.1-1 22 Панель ПС66,5.18.3,5-6.Л-1.
1.030.1-1.1-1 23 Панель ПС62,5.9.2,0-2.Л-2.
1.030.1-1.1-1 23 Панель ПС62,5.9.2,0-4.Л-2.
1.030.1-1.1-1 23 Панель ПС62,5.9.2,0-6.Л-2.
1.030.1-1.1-1 23 Панель ПС62,5.12.2,0-2.Л-2.
1.030.1-1.1-1 23 Панель ПС62,5.12.2,0-4.Л-2.
1.030.1-1.1-1 23 Панель ПС62,5.12.2,0-6.Л-2.
1.030.1-1.1-1 23 Панель ПС62,5.18.2,0-1.Л-2.
1.030.1-1.1-1 23 Панель ПС62,5.18.2,0-3.Л-2.
1.030.1-1.1-1 23 Панель ПС62,5.18.2,0-4.Л-2.
1.030.1-1.1-1 23 Панель ПС62,5.18.2,0-5.Л-2.
1.030.1-1.1-1 23 Панель ПС62,5.18.2,0-6.Л-2.
1.030.1-1.1-1 23 Панель ПС62,5.9.2,0-2.Я-2.
1.030.1-1.1-1 23 Панель ПС62,5.9.2,0-4.Я-2.
1.030.1-1.1-1 23 Панель ПС62,5.9.2,0-6.Я-2.
1.030.1-1.1-1 23 Панель ПС62,5.12.2,0-2.Я-2.
1.030.1-1.1-1 23 Панель ПС62,5.12.2,0-4.Я-2.
1.030.1-1.1-1 23 Панель ПС62,5.12.2,0-6.Я-2.
1.030.1-1.1-1 23 Панель ПС62,5.18.2,0-1.Я-2.
1.030.1-1.1-1 23 Панель ПС62,5.18.2,0-3.Я-2.
1.030.1-1.1-1 23 Панель ПС62,5.18.2,0-4.Я-2.
1.030.1-1.1-1 23 Панель ПС62,5.18.2,0-5.Я-2.
1.030.1-1.1-1 23 Панель ПС62,5.18.2,0-6.Я-2.
1.030.1-1.1-1 24 Панель ПС63.9.2,5-2.Л-2.
1.030.1-1.1-1 24 Панель ПС63.9.2,5-4.Л-2.
1.030.1-1.1-1 24 Панель ПС63.9.2,5-6.Л-2.
1.030.1-1.1-1 24 Панель ПС63.12.2,5-3.Л-2.
1.030.1-1.1-1 24 Панель ПС63.12.2,5-5.Л-2.
1.030.1-1.1-1 24 Панель ПС63.12.2,5-6.Л-2.
1.030.1-1.1-1 24 Панель ПС63.18.2,5-2.Л-2.
1.030.1-1.1-1 24 Панель ПС63.18.2,5-4.Л-2.
1.030.1-1.1-1 24 Панель ПС63.18.2,5-6.Л-2.
1.030.1-1.1-1 24 Панель ПС63.9.2,5-2.Я-2.
1.030.1-1.1-1 24 Панель ПС63.9.2,5-4.Я-2.
1.030.1-1.1-1 24 Панель ПС63.9.2,5-6.Я-2.
1.030.1-1.1-1 24 Панель ПС63.12.2,5-3.Я-2.
1.030.1-1.1-1 24 Панель ПС63.12.2,5-5.Я-2.
1.030.1-1.1-1 24 Панель ПС63.12.2,5-6.Я-2.
1.030.1-1.1-1 24 Панель ПС63.18.2,5-2.Я-2.
1.030.1-1.1-1 24 Панель ПС63.18.2,5-4.Я-2.
1.030.1-1.1-1 24 Панель ПС63.18.2,5-6.Я-2.
1.030.1-1.1-1 25 Панель ПС63,5.9.3,0-6.Л-2.
1.030.1-1.1-1 25 Панель ПС63,5.12.3,0-3.Л-2.
1.030.1-1.1-1 25 Панель ПС63,5.12.3,0-6.Л-2.
1.030.1-1.1-1 25 Панель ПС63,5.18.3,0-2.Л-2.
1.030.1-1.1-1 25 Панель ПС63,5.18.3,0-6.Л-2.
1.030.1-1.1-1 25 Панель ПС63,5.9.3,0-6.Я-2.
1.030.1-1.1-1 25 Панель ПС63,5.12.3,0-3.Я-2.
1.030.1-1.1-1 25 Панель ПС63,5.12.3,0-6.Я-2.
1.030.1-1.1-1 25 Панель ПС63,5.18.3,0-2.Я-2.
1.030.1-1.1-1 25 Панель ПС63,5.18.3,0-6.Я-2.
1.030.1-1.1-1 26 Панель ПС64.9.3,5-6.Л-2.
1.030.1-1.1-1 26 Панель ПС64.12.3,5-6.Л-2.
1.030.1-1.1-1 26 Панель ПС64.18.3,5-6.Л-2.
1.030.1-1.1-1 27 Панель ПС65.9.2,0-2.Л-2.
1.030.1-1.1-1 27 Панель ПС65.9.2,0-4.Л-2.
1.030.1-1.1-1 27 Панель ПС65.9.2,0-6.Л-2.
1.030.1-1.1-1 27 Панель ПС65.12.2,0-2.Л-2.
1.030.1-1.1-1 27 Панель ПС65.12.2,0-4.Л-2.
1.030.1-1.1-1 27 Панель ПС65.12.2,0-6.Л-2.
1.030.1-1.1-1 27 Панель ПС65.18.2,0-1.Л-2.
1.030.1-1.1-1 27 Панель ПС65.18.2,0-3.Л-2.
1.030.1-1.1-1 27 Панель ПС65.18.2,0-4.Л-2.
1.030.1-1.1-1 27 Панель ПС65.18.2,0-5.Л-2.
1.030.1-1.1-1 27 Панель ПС65.18.2,0-6.Л-2.
1.030.1-1.1-1 27 Панель ПС65.9.2,0-2.Я-2.
1.030.1-1.1-1 27 Панель ПС65.9.2,0-4.Я-2.
1.030.1-1.1-1 27 Панель ПС65.9.2,0-6.Я-2.
1.030.1-1.1-1 27 Панель ПС65.12.2,0-2.Я-2.
1.030.1-1.1-1 27 Панель ПС65.12.2,0-4.Я-2.
1.030.1-1.1-1 27 Панель ПС65.12.2,0-6.Я-2.
1.030.1-1.1-1 27 Панель ПС65.18.2,0-1.Я-2.
1.030.1-1.1-1 27 Панель ПС65.18.2,0-3.Я-2.
1.030.1-1.1-1 27 Панель ПС65.18.2,0-4.Я-2.
1.030.1-1.1-1 27 Панель ПС65.18.2,0-5.Я-2.
1.030.1-1.1-1 27 Панель ПС65.18.2,0-6.Я-2.
1.030.1-1.1-1 28 Панель ПС65,5.9.2,5-2.Л-2.
1.030.1-1.1-1 28 Панель ПС65,5.9.2,5-4.Л-2.
1.030.1-1.1-1 28 Панель ПС65,5.9.2,5-6.Л-2.
1.030.1-1.1-1 28 Панель ПС65,5.12.2,5-3.Л-2.
1.030.1-1.1-1 28 Панель ПС65,5.12.2,5-5.Л-2.
1.030.1-1.1-1 28 Панель ПС65,5.12.2,5-6.Л-2.
1.030.1-1.1-1 28 Панель ПС65,5.18.2,5-2.Л-2.
1.030.1-1.1-1 28 Панель ПС65,5.18.2,5-4.Л-2.
1.030.1-1.1-1 28 Панель ПС65,5.18.2,5-6.Л-2.
1.030.1-1.1-1 28 Панель ПС65,5.9.2,5-2.Я-2.
1.030.1-1.1-1 28 Панель ПС65,5.9.2,5-4.Я-2.
1.030.1-1.1-1 28 Панель ПС65,5.9.2,5-6.Я-2.
1.030.1-1.1-1 28 Панель ПС65,5.12.2,5-3.Я-2.
1.030.1-1.1-1 28 Панель ПС65,5.12.2,5-5.Я-2.
1.030.1-1.1-1 28 Панель ПС65,5.12.2,5-6.Я-2.
1.030.1-1.1-1 28 Панель ПС65,5.18.2,5-2.Я-2.
1.030.1-1.1-1 28 Панель ПС65,5.18.2,5-4.Я-2.
1.030.1-1.1-1 28 Панель ПС65,5.18.2,5-6.Я-2.
1.030.1-1.1-1 29 Панель ПС66.9.3,0-6.Л-2.
1.030.1-1.1-1 29 Панель ПС66.12.3,0-3.Л-2.
1.030.1-1.1-1 29 Панель ПС66.12.3,0-6.Л-2.
1.030.1-1.1-1 29 Панель ПС66.18.3,0-2.Л-2.
1.030.1-1.1-1 29 Панель ПС66.18.3,0-6.Л-2.
1.030.1-1.1-1 29 Панель ПС66.9.3,0-6.Я-2.
1.030.1-1.1-1 29 Панель ПС66.12.3,0-3.Я-2.
1.030.1-1.1-1 29 Панель ПС66.12.3,0-6.Я-2.
1.030.1-1.1-1 29 Панель ПС66.18.3,0-2.Я-2.
1.030.1-1.1-1 29 Панель ПС66.18.3,0-6.Я-2.
1.030.1-1.1-1 30 Панель ПС66,5.9.3,5-6.Л-2.
1.030.1-1.1-1 30 Панель ПС66,5.12.3,5-6.Л-2.
1.030.1-1.1-1 30 Панель ПС66,5.18.3,5-6.Л-2.
1.030.1-1.1-1 31 Панель 1ПС27.6.2,5-6.Л-1.
1.030.1-1.1-1 31 Панель 1ПС27.6.3,0-6.Л-1.
1.030.1-1.1-1 31 Панель 1ПС27.6.3,5-6.Л-1.
1.030.1-1.1-1 31 Панель 1ПС27.6.4,0-6.Л-1.
1.030.1-1.1-1 31 Панель 1ПС27.9.2,5-6.Л-1.
1.030.1-1.1-1 31 Панель 1ПС27.9.3,0-6.Л-1.
1.030.1-1.1-1 31 Панель 1ПС27.9.3,5-6.Л-1.
1.030.1-1.1-1 31 Панель 1ПС27.9.4,0-6.Л-1.
1.030.1-1.1-1 31 Панель 1ПС27.12.2,5-6.Л-1.
1.030.1-1.1-1 31 Панель 1ПС27.12.3,0-6.Л-1.
1.030.1-1.1-1 31 Панель 1ПС27.12.3,5-6.Л-1.
1.030.1-1.1-1 31 Панель 1ПС27.12.4,0-6.Л-1.
1.030.1-1.1-1 31 Панель 1ПС27.13.2,5-6.Л-1.
1.030.1-1.1-1 31 Панель 1ПС27.13.3,0-6.Л-1.
1.030.1-1.1-1 31 Панель 1ПС27.13.3,5-6.Л-1.
1.030.1-1.1-1 31 Панель 1ПС27.13.4,0-6.Л-1.
1.030.1-1.1-1 31 Панель 1ПС27.6.2,5-6.Я-1.
1.030.1-1.1-1 31 Панель 1ПС27.6.3,0-6.Я-1.
1.030.1-1.1-1 31 Панель 1ПС27.9.2,5-6.Я-1.
1.030.1-1.1-1 31 Панель 1ПС27.9.3,0-6.Я-1.
1.030.1-1.1-1 31 Панель 1ПС27.12.2,5-6.Я-1.
1.030.1-1.1-1 31 Панель 1ПС27.12.3,0-6.Я-1.
1.030.1-1.1-1 31 Панель 1ПС27.13.2,5-6.Я-1.
1.030.1-1.1-1 31 Панель 1ПС27.13.3,0-6.Я-1.
1.030.1-1.1-1 32 Панель 1ПС27.15.2,5-6.Л-1.
1.030.1-1.1-1 32 Панель 1ПС27.15.3,0-6.Л-1.
1.030.1-1.1-1 32 Панель 1ПС27.15.3,5-6.Л-1.
1.030.1-1.1-1 32 Панель 1ПС27.15.4,0-6.Л-1.
1.030.1-1.1-1 32 Панель 1ПС27.18.2,5-6.Л-1.
1.030.1-1.1-1 32 Панель 1ПС27.18.3,0-6.Л-1.
1.030.1-1.1-1 32 Панель 1ПС27.18.3,5-6.Л-1.
1.030.1-1.1-1 32 Панель 1ПС27.18.4,0-6.Л-1.
1.030.1-1.1-1 32 Панель 1ПС27.21.2,5-6.Л-1.
1.030.1-1.1-1 32 Панель 1ПС27.21.3,0-6.Л-1.
1.030.1-1.1-1 32 Панель 1ПС27.21.3,5-6.Л-1.
1.030.1-1.1-1 32 Панель 1ПС27.21.4,0-6.Л-1.
1.030.1-1.1-1 32 Панель 1ПС27.15.2,5-6.Я-1.
1.030.1-1.1-1 32 Панель 1ПС27.15.3,0-6.Я-1.
1.030.1-1.1-1 32 Панель 1ПС27.18.2,5-6.Я-1.
1.030.1-1.1-1 32 Панель 1ПС27.18.3,0-6.Я-1.
1.030.1-1.1-1 33 Панель 1ПС27,5.6.2,5-6.Л-1.
1.030.1-1.1-1 33 Панель 1ПС27,5.6.3,0-6.Л-1.
1.030.1-1.1-1 33 Панель 1ПС27,5.6.3,5-6.Л-1.
1.030.1-1.1-1 33 Панель 1ПС27,5.6.4,0-6.Л-1.
1.030.1-1.1-1 33 Панель 1ПС27,5.9.2,5-6.Л-1.
1.030.1-1.1-1 33 Панель 1ПС27,5.9.3,0-6.Л-1.
1.030.1-1.1-1 33 Панель 1ПС27,5.9.3,5-6.Л-1.
1.030.1-1.1-1 33 Панель 1ПС27,5.9.4,0-6.Л-1.
1.030.1-1.1-1 33 Панель 1ПС27,5.12.2,5-6.Л-1.
1.030.1-1.1-1 33 Панель 1ПС27,5.12.3,0-6.Л-1.
1.030.1-1.1-1 33 Панель 1ПС27,5.12.3,5-6.Л-1.
1.030.1-1.1-1 33 Панель 1ПС27,5.12.4,0-6.Л-1.
1.030.1-1.1-1 33 Панель 1ПС27,5.13.2,5-6.Л-1.
1.030.1-1.1-1 33 Панель 1ПС27,5.13.3,0-6.Л-1.
1.030.1-1.1-1 33 Панель 1ПС27,5.13.3,5-6.Л-1.
1.030.1-1.1-1 33 Панель 1ПС27,5.13.4,0-6.Л-1.
1.030.1-1.1-1 33 Панель 1ПС27,5.6.2,5-6.Я-1.
1.030.1-1.1-1 33 Панель 1ПС27,5.6.3,0-6.Я-1.
1.030.1-1.1-1 33 Панель 1ПС27,5.9.2,5-6.Я-1.
1.030.1-1.1-1 33 Панель 1ПС27,5.9.3,0-6.Я-1.
1.030.1-1.1-1 33 Панель 1ПС27,5.12.2,5-6.Я-1.
1.030.1-1.1-1 33 Панель 1ПС27,5.12.3,0-6.Я-1.
1.030.1-1.1-1 33 Панель 1ПС27,5.13.2,5-6.Я-1.
1.030.1-1.1-1 33 Панель 1ПС27,5.13.3,0-6.Я-1.
1.030.1-1.1-1 34 Панель 1ПС27,5.15.2,5-6.Л-1.
1.030.1-1.1-1 34 Панель 1ПС27,5.15.3,0-6.Л-1.
1.030.1-1.1-1 34 Панель 1ПС27,5.15.3,5-6.Л-1.
1.030.1-1.1-1 34 Панель 1ПС27,5.15.4,0-6.Л-1.
1.030.1-1.1-1 34 Панель 1ПС27,5.18.2,5-6.Л-1.
1.030.1-1.1-1 34 Панель 1ПС27,5.18.3,0-6.Л-1.
1.030.1-1.1-1 34 Панель 1ПС27,5.18.3,5-6.Л-1.
1.030.1-1.1-1 34 Панель 1ПС27,5.18.4,0-6.Л-1.
1.030.1-1.1-1 34 Панель 1ПС27,5.21.2,5-6.Л-1.
1.030.1-1.1-1 34 Панель 1ПС27,5.21.3,0-6.Л-1.
1.030.1-1.1-1 34 Панель 1ПС27,5.21.3,5-6.Л-1.
1.030.1-1.1-1 34 Панель 1ПС27,5.21.4,0-6.Л-1.
1.030.1-1.1-1 34 Панель 1ПС27,5.15.2,5-6.Я-1.
1.030.1-1.1-1 34 Панель 1ПС27,5.15.3,0-6.Я-1.
1.030.1-1.1-1 34 Панель 1ПС27,5.18.2,5-6.Я-1.
1.030.1-1.1-1 34 Панель 1ПС27,5.18.3,0-6.Я-1.
1.030.1-1.1-1 35 Панель 1ПС57.6.2,5-6.Л-1.
1.030.1-1.1-1 35 Панель 1ПС57.6.3,0-6.Л-1.
1.030.1-1.1-1 35 Панель 1ПС57.6.3,5-6.Л-1.
1.030.1-1.1-1 35 Панель 1ПС57.6.4,0-4.Л-1.
1.030.1-1.1-1 35 Панель 1ПС57.6.4,0-6.Л-1.
1.030.1-1.1-1 35 Панель 1ПС57.6.2,5-6.Я-1.
1.030.1-1.1-1 35 Панель 1ПС57.6.3,0-6.Я-1.
Разработан: ЦНИИпромзданий
КиевЗНИИЭП
ЦНИИЭП торгово-бытовых зданий и туристских комплексов
Утверждён:09.08.1984 Госстрой СССР (Государственный комитет Совета Министров СССР по делам строительства) (USSR Gosstroy 132)
Расположен в:Техническая документация Строительство Справочные документы Типовые строительные конструкции, изделия и узлы Общероссийский строительный каталог Строительные конструкции, изделия и узлы зданий и сооружений для всех видов строительства Конструкции, изделия и узлы зданий Ограждающие конструкции Стены наружные Панели (бетонные и железобетонные)
Нормативные ссылки:
Серия 1.030.1-1Серия 1.030.1-1Серия 1.030.1-1Серия 1.030.1-1Серия 1.030.1-1Серия 1.030.1-1Серия 1.030.1-1Серия 1.030.1-1Серия 1.030.1-1Серия 1.030.1-1Серия 1.030.1-1Серия 1.030.1-1Серия 1.030.1-1Серия 1.030.1-1Серия 1.030.1-1Серия 1.030.1-1Серия 1.030.1-1Серия 1.030.1-1Серия 1.030.1-1Серия 1.030.1-1Серия 1.030.1-1Серия 1.030.1-1Серия 1.030.1-1Серия 1.030.1-1Серия 1.030.1-1Серия 1.030.1-1Серия 1.030.1-1Серия 1.030.1-1Серия 1.030.1-1Серия 1.030.1-1Серия 1.030.1-1Серия 1.030.1-1Серия 1.030.1-1Серия 1.030.1-1Серия 1.030.1-1Серия 1.030.1-1Серия 1.030.1-1Серия 1.030.1-1Серия 1.030.1-1Серия 1.030.1-1Серия 1.030.1-1Серия 1.030.1-1Серия 1.030.1-1Серия 1.030.1-1Серия 1.030.1-1Серия 1.030.1-1Серия 1.030.1-1Серия 1.030.1-1Серия 1.030.1-1Серия 1.030.1-1Серия 1.030.1-1Серия 1.030.1-1Серия 1.030.1-1Серия 1.030.1-1Серия 1.030.1-1Серия 1.030.1-1Серия 1.030.1-1Серия 1.030.1-1Серия 1.030.1-1Серия 1.030.1-1Серия 1.030.1-1Серия 1.030.1-1Серия 1.030.1-1Серия 1.030.1-1Серия 1.030.1-1Серия 1.030.1-1Серия 1.030.1-1Серия 1.030.1-1Серия 1.030.1-1Серия 1.030.1-1Серия 1.030.1-1Серия 1.030.1-1Серия 1.030.1-1Серия 1.030.1-1Серия 1.030.1-1Серия 1.030.1-1Серия 1.030.1-1Серия 1.030.1-1Серия 1.030.1-1Серия 1.030.1-1Серия 1.030.1-1Серия 1.030.1-1Серия 1.030.1-1Серия 1.030.1-1Серия 1.030.1-1Серия 1.030.1-1Серия 1.030.1-1Серия 1.030.1-1Серия 1.030.1-1Серия 1.030.1-1Серия 1.030.1-1Серия 1.030.1-1Серия 1.030.1-1Серия 1.030.1-1Серия 1.030.1-1Серия 1.030.1-1Серия 1.030.1-1Серия 1.030.1-1Серия 1.030.1-1Серия 1.030.1-1Серия 1.030.1-1Серия 1.030.1-1Серия 1.030.1-1Серия 1.030.1-1Серия 1.030.1-1Серия 1.030.1-1Серия 1.030.1-1Серия 1.030.1-1Серия 1.030.1-1Серия 1.030.1-1Серия 1.030.1-1Серия 1.030.1-1Серия 1.030.1-1Серия 1.030.1-1Серия 1.030.1-1Серия 1.030.1-1Серия 1.030.1-1Серия 1.030.1-1Серия 1.030.1-1Серия 1.030.1-1Серия 1.030.1-1Серия 1.030.1-1Серия 1.030.1-1Серия 1.030.1-1Серия 1.030.1-1Серия 1.030.1-1Серия 1.030.1-1Серия 1.030.1-1Серия 1.030.1-1Серия 1.030.1-1Серия 1.030.1-1Серия 1.030.1-1Серия 1.030.1-1Серия 1.030.1-1Серия 1.030.1-1Серия 1.030.1-1Серия 1.030.1-1Серия 1.030.1-1Серия 1.030.1-1Серия 1.030.1-1Серия 1.030.1-1Серия 1.030.1-1Серия 1.030.1-1Серия 1.030.1-1Серия 1.030.1-1Серия 1.030.1-1Серия 1.030.1-1Серия 1.030.1-1Серия 1.030.1-1

© 2013 Ёшкин Кот :-) Карта сайта