Скачать Типовой проект 125-045/1.2 Часть 3. Водоснабжение, канализация, водостокиДата актуализации: 10.08.2017 Типовой проект 125-045/1.2
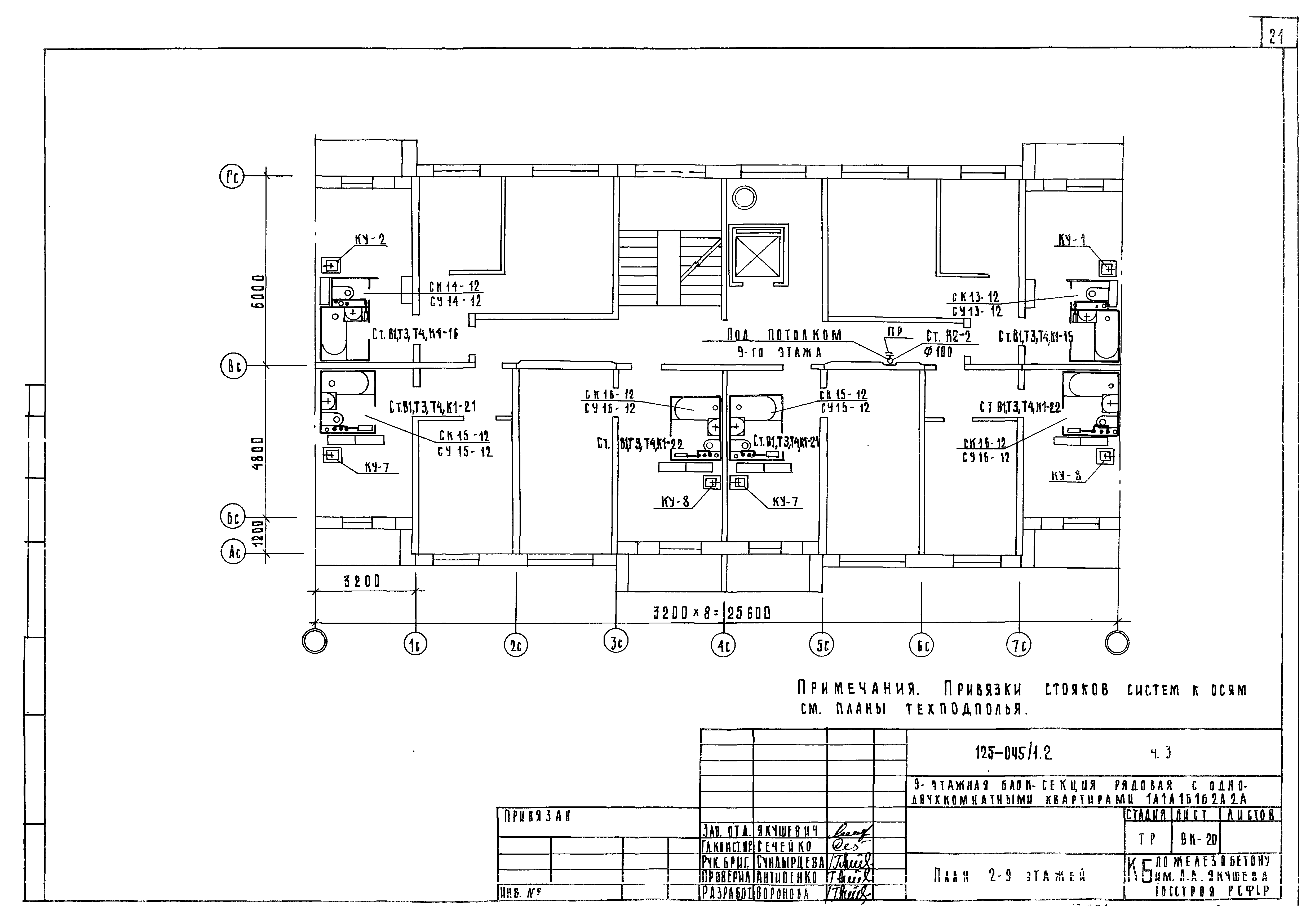
Часть 3. Водоснабжение, канализация, водостокиОбозначение: | Типовой проект 125-045/1.2 | Обозначение англ: | 125-045/1.2 | Статус: | действует | Название рус.: | Часть 3. Водоснабжение, канализация, водостоки | Дата добавления в базу: | 01.09.2013 | Дата актуализации: | 05.05.2017 | Дата введения: | 30.06.1984 | Оглавление: | ТП 125-045/1.2-ВК-1 Заглавный лист (начало) ТП 125-045/1.2-ВК-2 Заглавный лист (окончание) ТП 125-045/1.2-ВК-3,4 Сводная спецификация ниже отм. 0.000 ТП 125-045/1.2-ВК-5,6 Сводная спецификация выше отм. 0.000 ТП 125-045/1.2-ВК-7 План техподполья (ленточные фундаменты). Канализация. Водосток. Выпуск в сторону оси "АС" ТП 125-045/1.2-ВК-8 План техподполья (ленточные фундаменты). Канализация. Водосток. Выпуск в сторону оси "ГС" ТП 125-045/1.2-ВК-9 Техподполье (ленточные фундаменты). Канализация. Водосток. Схемы трубопроводов. Разрез ТП 125-045/1.2-ВК-10 План техподполья (свайное основание) Канализация. Водосток. Выпуск в сторону оси "АС" ТП 125-045/1.2-ВК-11 План техподполья (свайное основание). Канализация. Водосток. Выпуск в сторону оси "ГС" ТП 125-045/1.2-ВК-12 Техподполье (свайное основание). Канализация. Водосток. Схемы трубопроводов. Разрез ТП 125-045/1.2-ВК-13 План техподполья (ленточные фундаменты). Водопровод ТП 125-045/1.2-ВК-14 План техподполья (свайное основание). Водопровод ТП 125-045/1.2-ВК-15 Техподполье. Водопровод. Схемы трубопроводов ТП 125-045/1.2-ВК-16 Техподполье. Монтажные разрезы ТП 125-045/1.2-ВК-17 План 1 этажа. (Тип 1) ТП 125-045/1.2-ВК-18 План 1 этажа. (Тип 2) ТП 125-045/1.2-ВК-19 План 1 этажа. (Тип 3) ТП 125-045/1.2-ВК-20 План 2-9 этажей ТП 125-045/1.2-ВК-21 План чердака ТП 125-045/1.2-ВК-22 План "теплого" чердака с сетями канализации. Схема объединения стояков канализации на чердаке | Разработан: | КБ по железобетону Госстроя РСФСР
| Утверждён: | 21.06.1982 Госстрой РСФСР (Russian Federation Gosstroy 46)
| Расположен в: |
|
                     
|