Информационная система
«Ёшкин Кот»

Скачать базу одним архивом
Скачать обновления
История создания базы
Карта сайта

Скачать Типовой проект 705-1-206.86 Альбом IV. Проект производства работ. Технология монтажа и сварки

Дата актуализации: 10.08.2017

Типовой проект 705-1-206.86

Альбом IV. Проект производства работ. Технология монтажа и сварки

Обозначение: Типовой проект 705-1-206.86
Обозначение англ: 705-1-206.86
Статус:действует
Название рус.:Альбом IV. Проект производства работ. Технология монтажа и сварки
Дата добавления в базу:01.09.2013
Дата актуализации:05.05.2017
Дата введения:14.08.1985
Оглавление:ТП 705-1-206.86 Технология монтажа
ТП 705-1-206.86 Содержание
ТП 705-1-206.86 Пояснительная записка
ТП 705-1-206.86 Ведомость монтажных приспособлений, механизмов, монтажной оснастки
ТП 705-1-206.86 План монтажной площадки
ТП 705-1-206.86 Общий вид резервуара
ТП 705-1-206.86 Укладка рулона на основание краном
ТП 705-1-206.86 Накатывание рулона на основание трактором
ТП 705-1-206.86 Развертывание днища резервуара
ТП 705-1-206.86 Разметка днища резервуара
ТП 705-1-206.86 Подъем рулона стенки в вертикальное положение
ТП 705-1-206.86 Развертывание полотнища стенки резервуара
ТП 705-1-206.86 Замыкание вертикального монтажного стыка стенки
ТП 705-1-206.86 Установка рулона на основание второго резервуара
ТП 705-1-206.86 Сборка крыши резервуара на стенде
ТП 705-1-206.86 Установка крыши в проектное положение
ТП 705-1-206.86 Установка трубы замера уровня
ТП 705-1-206.86 Технология сварки резервуара
ТП 705-1-206.86 Пояснительная записка
ТП 705-1-206.86 Технологическая карта сварки днища
ТП 705-1-206.86 Технологическая карта сварки стенки с днищем
ТП 705-1-206.86 Технология сварки вертикального стыка стенки
ТП 705-1-206.86 Технология сварки крыши
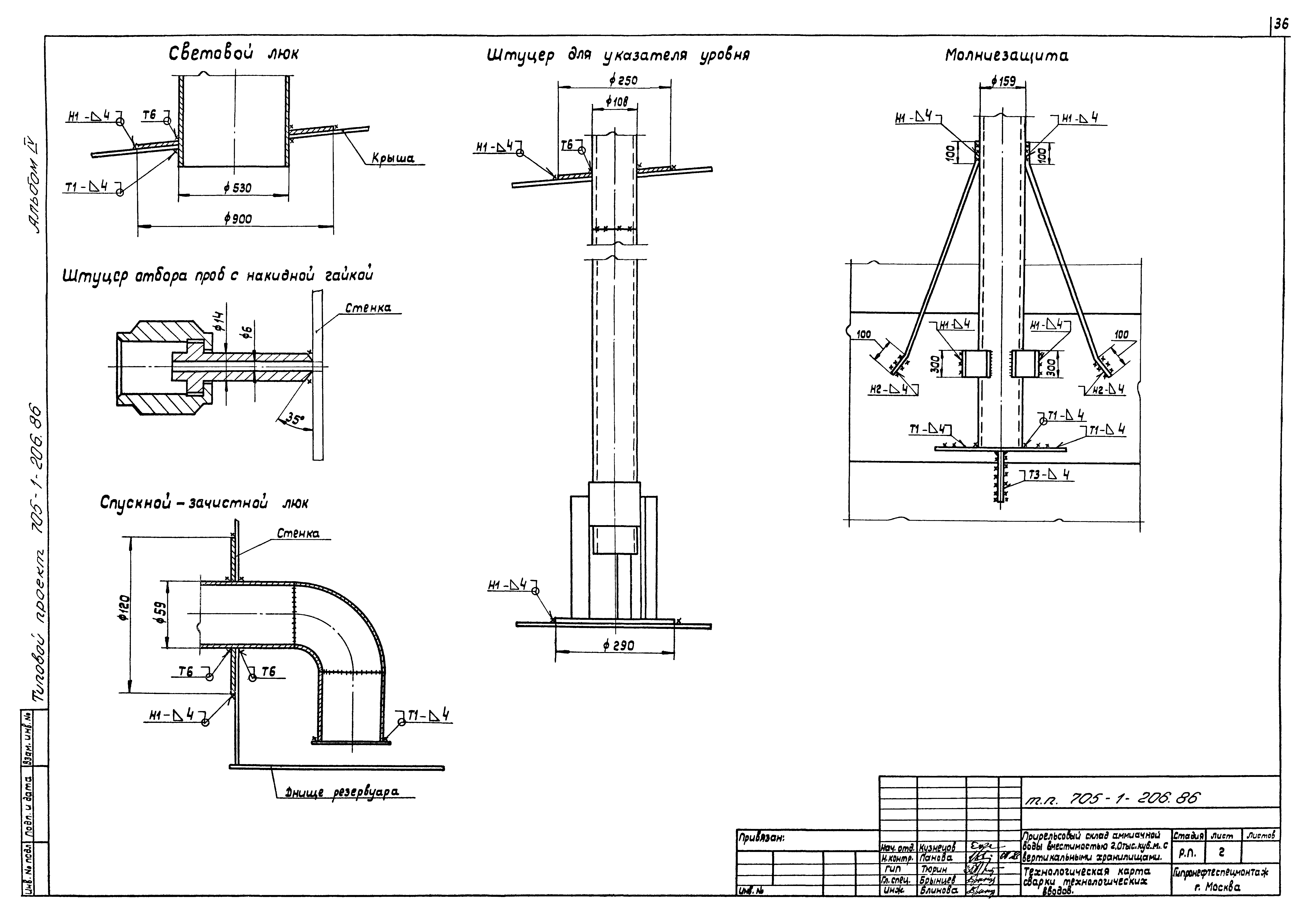
ТП 705-1-206.86 Технология сварки технологических вводов
ТП 705-1-206.86 Технология сварки анкерных креплений
Разработан: ЦНИИпроектстальконструкция
Гипронефтеспецмонтаж Минмонтажспецстроя СССР (Giproneftespetsmontazh, Minmontazhspetsstroy (USSR) )
Чирчикский филиал ГИАП
Утверждён:07.02.1984 Минсельхоз СССР (USSR Minselkhoz 6-ЭГ)
Расположен в:Техническая документация Строительство Справочные документы Типовые строительные конструкции, изделия и узлы Общероссийский строительный каталог Сельскохозяйственные предприятия, здания и сооружения Предприятия, здания и сооружения по ремонту, техническому обслуживанию, хранению и обеспечению горюче-смазочными материалами сельхозтехники Склады аммиачной селитры и пестицидов
Типовой проект 705-1-206.86Типовой проект 705-1-206.86Типовой проект 705-1-206.86Типовой проект 705-1-206.86Типовой проект 705-1-206.86Типовой проект 705-1-206.86Типовой проект 705-1-206.86Типовой проект 705-1-206.86Типовой проект 705-1-206.86Типовой проект 705-1-206.86Типовой проект 705-1-206.86Типовой проект 705-1-206.86Типовой проект 705-1-206.86Типовой проект 705-1-206.86Типовой проект 705-1-206.86Типовой проект 705-1-206.86Типовой проект 705-1-206.86Типовой проект 705-1-206.86Типовой проект 705-1-206.86Типовой проект 705-1-206.86Типовой проект 705-1-206.86Типовой проект 705-1-206.86Типовой проект 705-1-206.86Типовой проект 705-1-206.86Типовой проект 705-1-206.86Типовой проект 705-1-206.86Типовой проект 705-1-206.86Типовой проект 705-1-206.86Типовой проект 705-1-206.86Типовой проект 705-1-206.86Типовой проект 705-1-206.86Типовой проект 705-1-206.86Типовой проект 705-1-206.86Типовой проект 705-1-206.86Типовой проект 705-1-206.86Типовой проект 705-1-206.86Типовой проект 705-1-206.86Типовой проект 705-1-206.86Типовой проект 705-1-206.86

© 2013 Ёшкин Кот :-) Карта сайта