Информационная система
«Ёшкин Кот»

Скачать базу одним архивом
Скачать обновления
История создания базы
Карта сайта

Скачать Серия 1.432-12 Железобетонные трехслойные стеновые панели длиной 6 м с эффективным утеплителем для отапливаемых зданий с высокой влажностью и агрессивной средой. Рабочие чертежи

Дата актуализации: 10.08.2017

Серия 1.432-12

Железобетонные трехслойные стеновые панели длиной 6 м с эффективным утеплителем для отапливаемых зданий с высокой влажностью и агрессивной средой. Рабочие чертежи

Обозначение: Серия 1.432-12
Обозначение англ: Series 1.432-12
Статус:заменен
Название рус.:Железобетонные трехслойные стеновые панели длиной 6 м с эффективным утеплителем для отапливаемых зданий с высокой влажностью и агрессивной средой. Рабочие чертежи
Дата добавления в базу:01.09.2013
Дата актуализации:05.05.2017
Дата введения:01.12.1989
Область применения:Настоящая серия содержит рабочие чертежи железобетонных трехслойных панелей длиной 6 м с эффективным утеплителем для отапливаемых промышленных зданий с высокой влажностью и агрессивной средой
Оглавление:1.432-12 Содержание
1.432-12 Пояснительная записка
1.432-12 Номенклатура панелей при толщине утеплителя 50 мм
1.432-12 Номенклатура панелей при толщине утеплителя 75 мм
1.432-12 Номенклатура панелей при толщине утеплителя 100 мм
1.432-12 Опалубка рядовых панелей и панелей для углов по торцовой стене при привязке "0"
1.432-12 Спецификация марок арматурных изделий и выборка стали на рядовые панели длиной 6 м
1.432-12 Спецификация марок арматурных изделий и выборка стали на рядовые панели для углов по торцовой стене при привязке "0"
1.432-12 Опалубка рядовых панелей и панелей для углов по торцовой стене при привязке "250" и парапетных панелей длиной 6 м
1.432-12 Спецификация марок арматурных изделий и выборка стали на рядовые панели для углов по торцовой стене при привязке "250"
1.432-12 Спецификация марок арматурных изделий и выборка стали на парапетные панели длиной 6 м
1.432-12 Опалубка простеночных панелей
1.432-12 Спецификация марок арматурных изделий и выборка стали на простеночные панели длиной 1,5 и 1,25 м
1.432-12 Спецификация марок арматурных изделий и выборка стали на простеночные панели длиной 1 и 0,75 м
1.432-12 Опалубка панелей. Узлы 1-4
1.432-12 Армирование панелей. Продольные разрезы
1.432-12 Армирование панелей. Поперечные разрезы. Узлы 1 и 2
1.432-12 Пространственные каркасы КП1-КП6
1.432-12 Пространственные каркасы КП7-КП12
1.432-12 Пространственные каркасы КП13-КП18
1.432-12 Пространственные каркасы КП19-КП24
1.432-12 Пространственные каркасы КП25-КП27
1.432-12 Пространственные каркасы КП28-КП31
1.432-12 Пространственные каркасы КП32-КП35
1.432-12 Спецификация марок арматурных изделий на один пространственный каркас
1.432-12 Сварные каркасы КР1-КР9
1.432-12 Сварные каркасы КР10-КР13, сварные сетки С1-С3
1.432-12 Сварные сетки С4-С9
1.432-12 Сварные сетки С10-С17
1.432-12 Сварные сетки С18-С26
1.432-12 Закладная деталь М1, скрепляющие элементы К1-К3, петли для подъема П1-П6
1.432-12 Схемы, детали установки и крепления стоек торцового фахверка и насадок
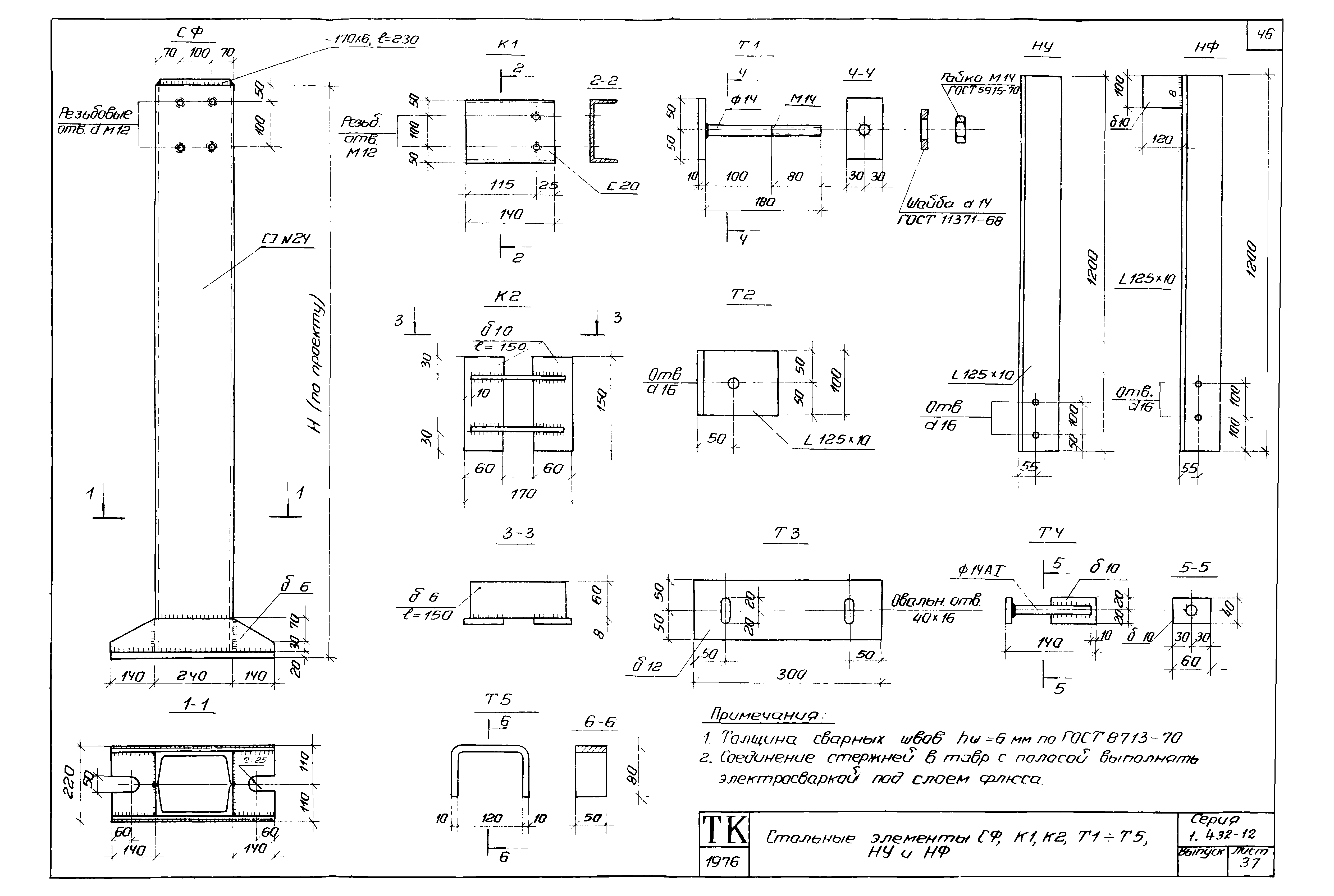
1.432-12 Стальные элементы СФ, К1, К2, Т1-Т5, НУ и НФ
1.432-12 Схема раскладки панелей и маркировка узлов их креплений по продольному ряду
1.432-12 Схема раскладки панелей и маркировка узлов их креплений по торцовому ряду
1.432-12 Узлы 1-3
1.432-12 Узлы 4-6
1.432-12 Узлы 7 и 8
1.432-12 Узлы 9-11
1.432-12 Узлы 12 и 13
1.432-12 Узел 14. Конструкция вертикальных и горизонтальных швов
1.432-12 Пример заполнения оконного проема деревянными переплетами по ГОСТ 12506-67
Разработан: ЦНИИпромзданий
НИИСК
НИИЖБ
НИИСФ
Утверждён:18.06.1976 Госстрой СССР (Государственный комитет Совета Министров СССР по делам строительства) (USSR Gosstroy 67)
Расположен в:Техническая документация Строительство Справочные документы Типовые строительные конструкции, изделия и узлы Общероссийский строительный каталог Строительные конструкции, изделия и узлы зданий и сооружений для всех видов строительства Конструкции, изделия и узлы зданий Ограждающие конструкции Стены наружные Панели (бетонные и железобетонные)
Чем заменён:
Нормативные ссылки:
Серия 1.432-12Серия 1.432-12Серия 1.432-12Серия 1.432-12Серия 1.432-12Серия 1.432-12Серия 1.432-12Серия 1.432-12Серия 1.432-12Серия 1.432-12Серия 1.432-12Серия 1.432-12Серия 1.432-12Серия 1.432-12Серия 1.432-12Серия 1.432-12Серия 1.432-12Серия 1.432-12Серия 1.432-12Серия 1.432-12Серия 1.432-12Серия 1.432-12Серия 1.432-12Серия 1.432-12Серия 1.432-12Серия 1.432-12Серия 1.432-12Серия 1.432-12Серия 1.432-12Серия 1.432-12Серия 1.432-12Серия 1.432-12Серия 1.432-12Серия 1.432-12Серия 1.432-12Серия 1.432-12Серия 1.432-12Серия 1.432-12Серия 1.432-12Серия 1.432-12Серия 1.432-12Серия 1.432-12Серия 1.432-12Серия 1.432-12Серия 1.432-12Серия 1.432-12Серия 1.432-12Серия 1.432-12Серия 1.432-12Серия 1.432-12Серия 1.432-12Серия 1.432-12Серия 1.432-12Серия 1.432-12Серия 1.432-12Серия 1.432-12Серия 1.432-12Серия 1.432-12

© 2013 Ёшкин Кот :-) Карта сайта