| ||||||||||||||||||||||||||||||
Скачать Серия ИС-01-17 Выпуск 2. Железобетонные конструкции. Рабочие чертежиДата актуализации: 10.08.2017
|
| Обозначение: | Серия ИС-01-17 |
| Обозначение англ: | Series ИС-01-17 |
| Статус: | не действует |
| Название рус.: | Выпуск 2. Железобетонные конструкции. Рабочие чертежи |
| Дата добавления в базу: | 01.09.2013 |
| Дата актуализации: | 05.05.2017 |
| Дата введения: | 01.10.1967 |
| Дата окончания срока действия: | 01.05.1999 |
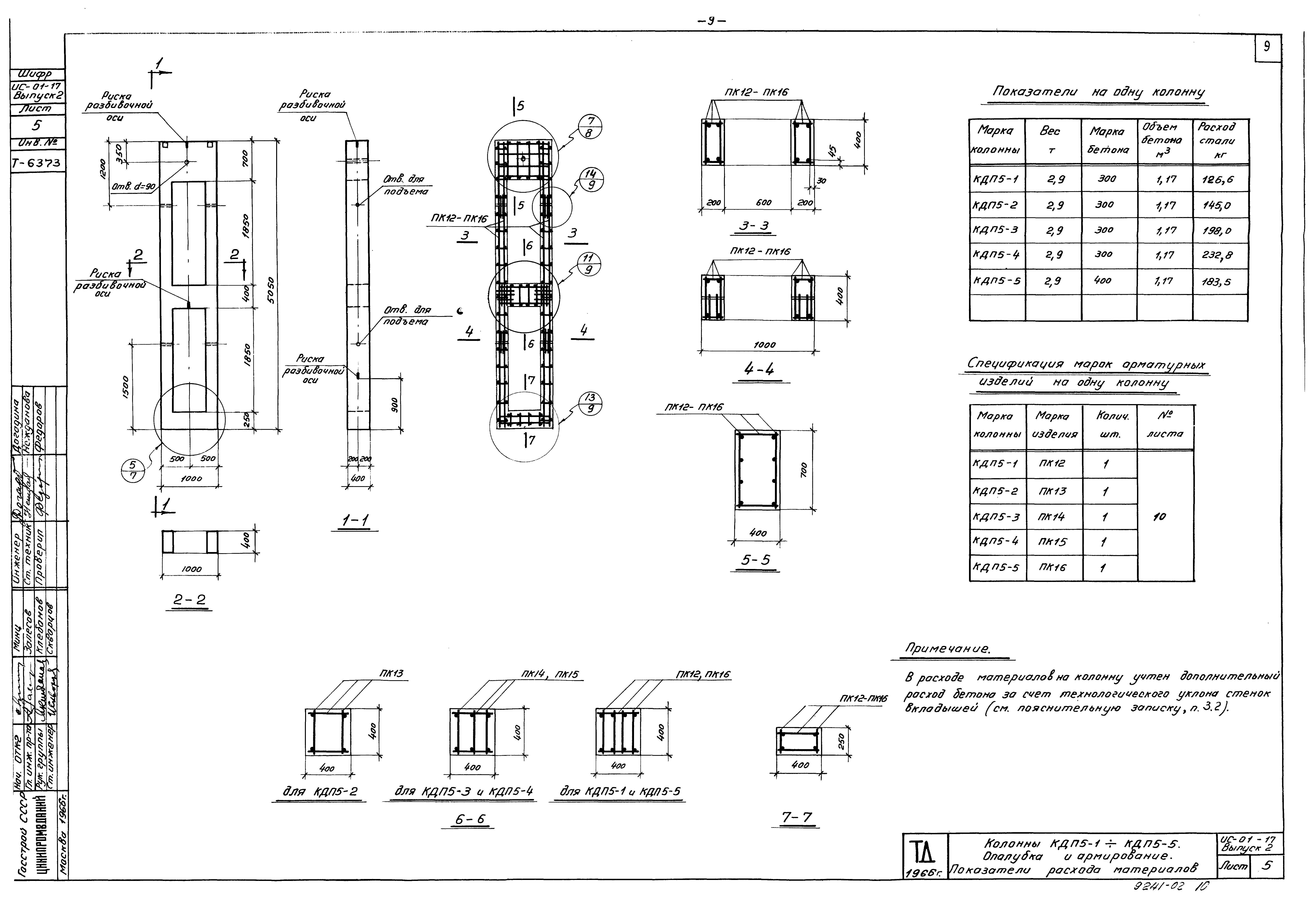
| Оглавление: | ИС-01-17Пояснительная записка ИС-01-17Общая часть ИС-01-17Конструкция колонн и балок ИС-01-17Технические требования к изготовлению и приемке ИС-01-17Чертежи ИС-01-17Колонны КДП1-1÷КДП1-4. Опалубка и армирование. Показатели расхода материалов ИС-01-17Колонны КДП2-1÷КДП2-4. Опалубка и армирование. Показатели расхода материалов ИС-01-17Колонны КДП3-1÷КДП3-3. Опалубка и армирование. Показатели расхода материалов ИС-01-17Колонны КДП4. Опалубка и армирование. Показатели расхода материалов ИС-01-17Колонны КДП5-1÷КДП5-5. Опалубка и армирование. Показатели расхода материалов ИС-01-17Колонны КДП6-1÷КДП6-3,КДП7-1,КДП7-2. Опалубка и армирование. Показатели расхода материалов ИС-01-17Узлы 1-6 ИС-01-17Узлы 7-10 ИС-01-17Узлы 11-15 ИС-01-17Армирование колонн КДП1-1÷КДП1-4,КДП5-1÷КДП5-5. Пространственные каркасы ПК1-ПК3,ПК12-ПК16. Спецификация марок арматурных изделий и закладных деталей на пространственный каркас ИС-01-17Армирование колонн КДП2-1÷КДП2-4. Пространственные каркасы ПК4-ПК7. Спецификация марок арматурных изделий и закладных деталей на пространственный каркас ИС-01-17Армирование колонн КДП3-1÷КДП3-3,КДП4-1. Пространственные каркасы ПК8-ПК11. Спецификация марок арматурных изделий и закладных деталей на пространственный каркас ИС-01-17Армирование колонн КДП6-1÷КДП6-3,КДП7-1,КДП7-2. Пространственные каркасы ПК17-ПК21. Спецификация марок арматурных изделий и закладных деталей на пространственный каркас ИС-01-17Армирование колонн. Каркасы КР1-КР21. Спецификация и выборка стали на КР1-КР7 ИС-01-17Армирование колонн. Спецификация и выборка стали на КР8-КР21 ИС-01-17Армирование колонн. Каркасы КР22-КР29. Спецификация и выборка стали на КР22-КР29 ИС-01-17Балки БОП1,БОП1а,БОП2,БОП3. Опалубка и армирование. Показатели расхода материалов ИС-01-17Армирование балок БОП1-БОП3. Пространственные и плоские каркасы. Спецификация и выборка стали на одно арматурное изделие ИС-01-17Закладные детали М1-М5 ИС-01-17Армирование колонн и балок. Выборка стали на один элемент |
| Разработан: | ЦНИИпромзданий |
| Утверждён: | 29.06.1967 Госстрой СССР (Государственный комитет Совета Министров СССР по делам строительства) (USSR Gosstroy 106) |
| Издан: | ЦИТП Госстроя СССР (CITP, Gosstroy (USSR) 1968 г. ) |
| Расположен в: |

























