Информационная система
«Ёшкин Кот»

Скачать базу одним архивом
Скачать обновления
История создания базы
Карта сайта

Скачать РД 24.031.15-88 Методические указания. Проектирование стальных конструкций стационарных котлов

Дата актуализации: 10.08.2017

РД 24.031.15-88

Методические указания. Проектирование стальных конструкций стационарных котлов

Обозначение: РД 24.031.15-88
Обозначение англ: RD 24.031.15-88
Статус:действует
Название рус.:Методические указания. Проектирование стальных конструкций стационарных котлов
Дата добавления в базу:01.09.2013
Дата актуализации:05.05.2017
Дата введения:01.07.1989
Область применения:Методические указания распространяются на стальные конструкции стационарных котлов, работающих при нормальных и повышенных температурах, и предназначены для предприятий и организаций, занимающихся их проектированием и изготовлением.
Оглавление:1. Общие положения
2. Материалы для стальных конструкций котлов
3. Рекомендации по проектированию каркаса
4. Рекомендации по расчету и конструктивному исполнению сварных узлов каркаса
5. Рекомендации по расчету, конструированию и технологии выполнения соединений на высокопрочных болтах
6. Рекомендации по использованию упругопластических элементов в каркасах
7. Рекомендации по расчету поврежденных в процессе эксплуатации стальных конструкций котлов и их восстановлению
8. Рекомендации по расчету и проектированию поясов жесткости котла, коробов газоходов и газовоздухопроходов
Приложение 1. Справочные (нестандартизированные) механические свойства некоторых сталей
Приложение 2. Основные положения методики расчета каркасов по деформированной схеме
Приложение 3. Узлы каркаса. Примеры расчета сварных швов
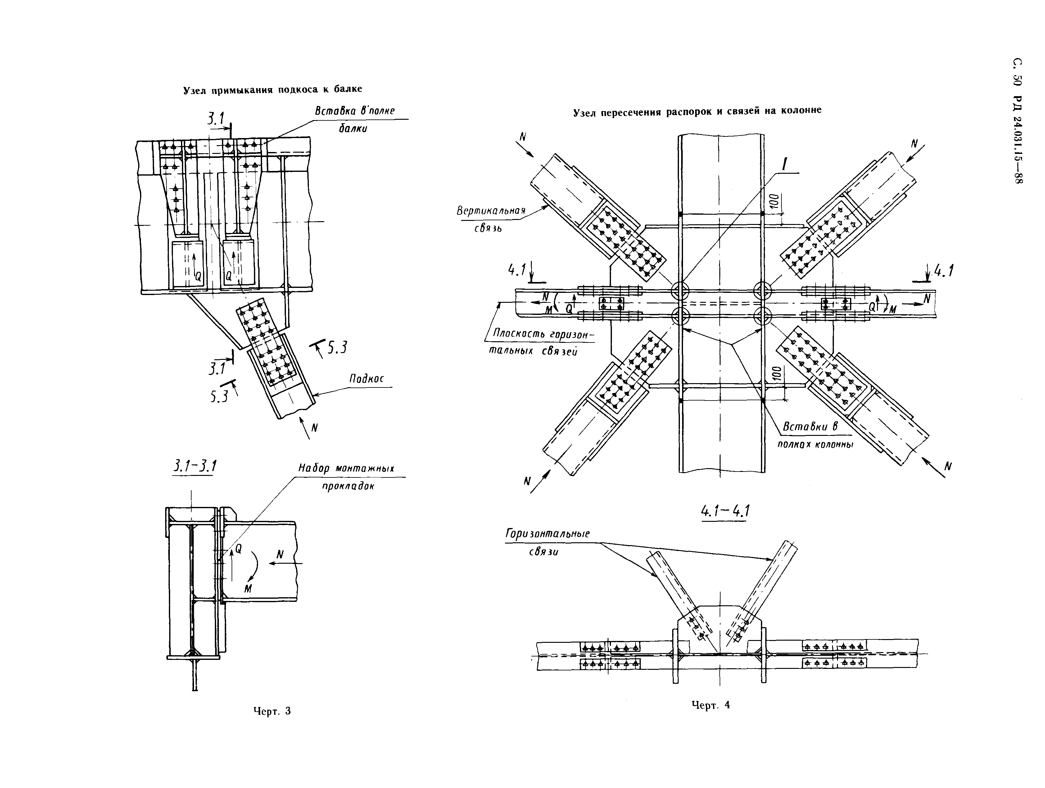
Приложение 4. Узлы каркаса. Конструктивное исполнение
Приложение 5. Разработка проектных решений конструкций каркасов котлов с соединениями на высокопрочных болтах
Приложение 6. Перечень нормативных документов, регламентирующих применение соединений на высокопрочных болтах
Приложение 7. Инструкция по входному контролю качества высокопрочных болтов, гаек и шайб
Приложение 8. Определение профилей ребер жесткости коробов газоходов и длин пролетов между опорами короба
Информационные данные
Разработан: НПО ЦКТИ
Утверждён:27.12.1988 Министерство тяжелого, энергетического и транспортного машиностроения СССР (ВА-002-1/14029)
Издан: НПО ЦКТИ (1990 г. )
Расположен в:Техническая документация Экология ЭНЕРГЕТИКА И ТЕПЛОТЕХНИКА Горелки. Котлы Котлы и теплообменники Строительство Нормативные документы Отраслевые и ведомственные нормативно-методические документы Проектирование и строительство объектов энергетического комплекса
Нормативные ссылки:
РД 24.031.15-88РД 24.031.15-88РД 24.031.15-88РД 24.031.15-88РД 24.031.15-88РД 24.031.15-88РД 24.031.15-88РД 24.031.15-88РД 24.031.15-88РД 24.031.15-88РД 24.031.15-88РД 24.031.15-88РД 24.031.15-88РД 24.031.15-88РД 24.031.15-88РД 24.031.15-88РД 24.031.15-88РД 24.031.15-88РД 24.031.15-88РД 24.031.15-88РД 24.031.15-88РД 24.031.15-88РД 24.031.15-88РД 24.031.15-88РД 24.031.15-88РД 24.031.15-88РД 24.031.15-88РД 24.031.15-88РД 24.031.15-88РД 24.031.15-88РД 24.031.15-88РД 24.031.15-88РД 24.031.15-88РД 24.031.15-88РД 24.031.15-88РД 24.031.15-88РД 24.031.15-88РД 24.031.15-88РД 24.031.15-88РД 24.031.15-88РД 24.031.15-88РД 24.031.15-88РД 24.031.15-88РД 24.031.15-88РД 24.031.15-88РД 24.031.15-88РД 24.031.15-88РД 24.031.15-88РД 24.031.15-88РД 24.031.15-88РД 24.031.15-88РД 24.031.15-88РД 24.031.15-88РД 24.031.15-88РД 24.031.15-88РД 24.031.15-88РД 24.031.15-88РД 24.031.15-88РД 24.031.15-88РД 24.031.15-88РД 24.031.15-88РД 24.031.15-88РД 24.031.15-88РД 24.031.15-88РД 24.031.15-88РД 24.031.15-88РД 24.031.15-88РД 24.031.15-88РД 24.031.15-88РД 24.031.15-88РД 24.031.15-88РД 24.031.15-88РД 24.031.15-88РД 24.031.15-88РД 24.031.15-88РД 24.031.15-88РД 24.031.15-88РД 24.031.15-88РД 24.031.15-88РД 24.031.15-88

© 2013 Ёшкин Кот :-) Карта сайта