| ||||||||||||||||||||||||||
Скачать Серия 01.036-6 Выпуск 1. Ворота защитно-герметические распашные ВУ-III-5. Рабочие чертежиДата актуализации: 10.08.2017
|
| Обозначение: | Серия 01.036-6 |
| Обозначение англ: | Series 01.036-6 |
| Статус: | не определен законодательством |
| Название рус.: | Выпуск 1. Ворота защитно-герметические распашные ВУ-III-5. Рабочие чертежи |
| Дата добавления в базу: | 01.09.2013 |
| Дата актуализации: | 05.05.2017 |
| Дата введения: | 31.12.1991 |
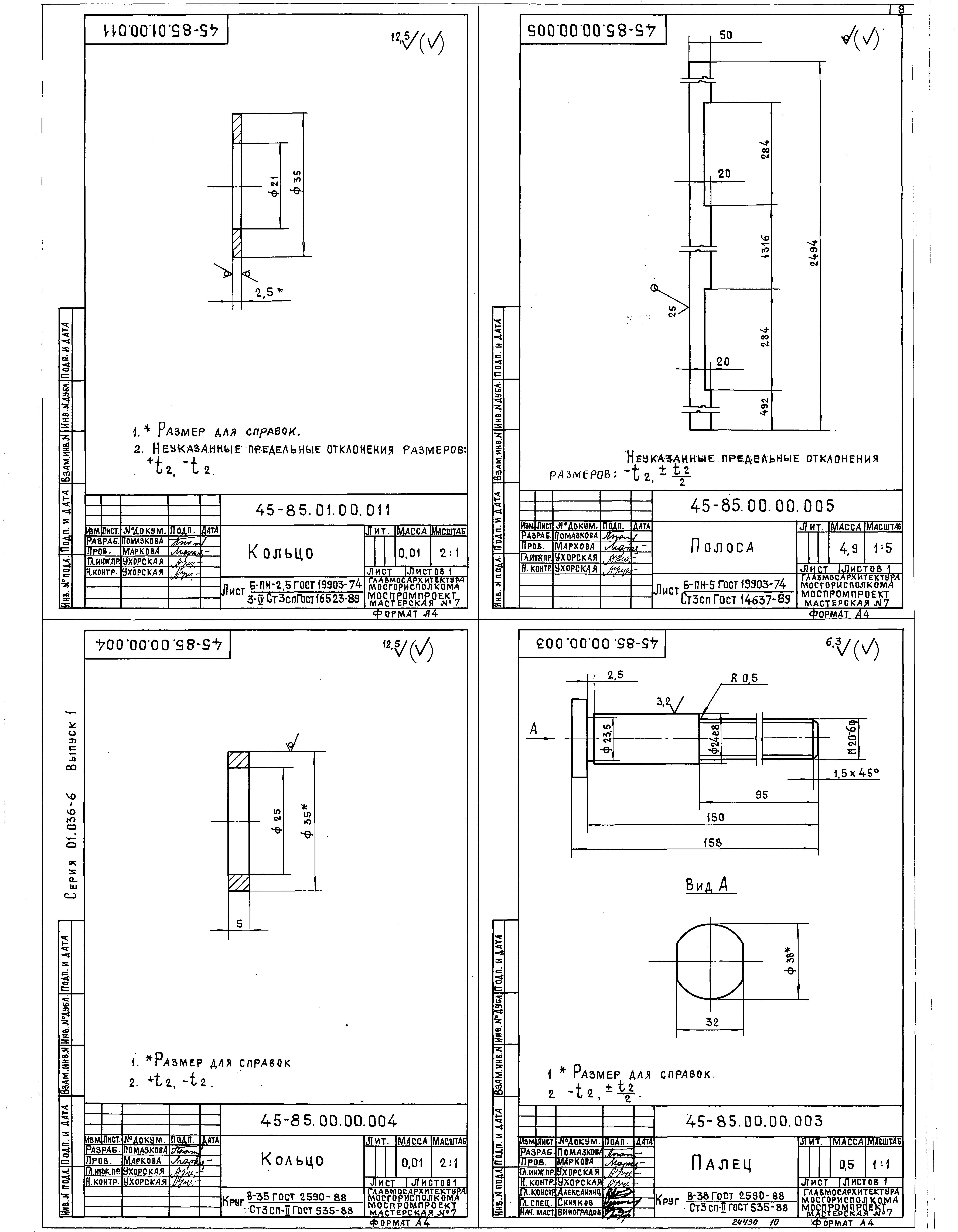
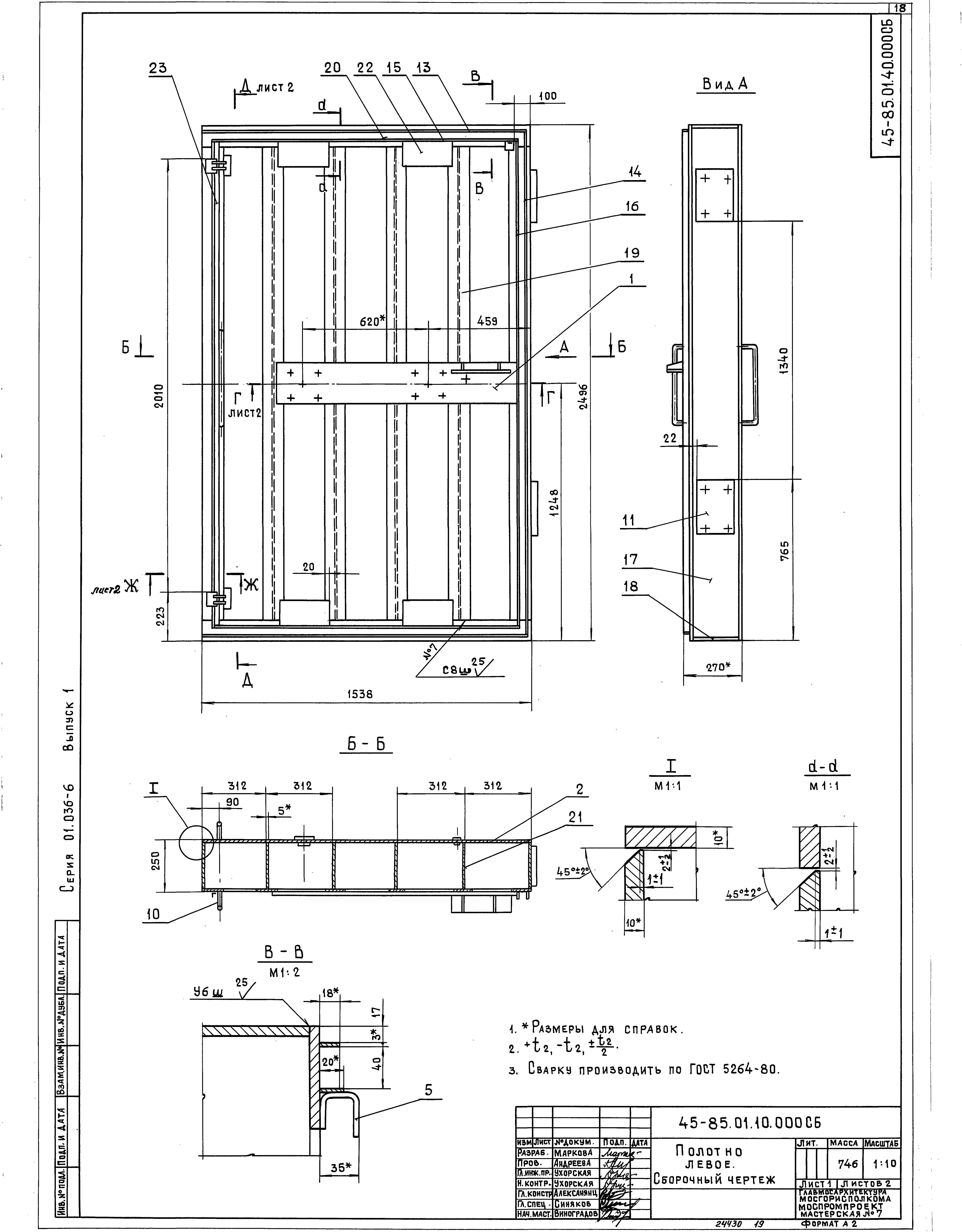
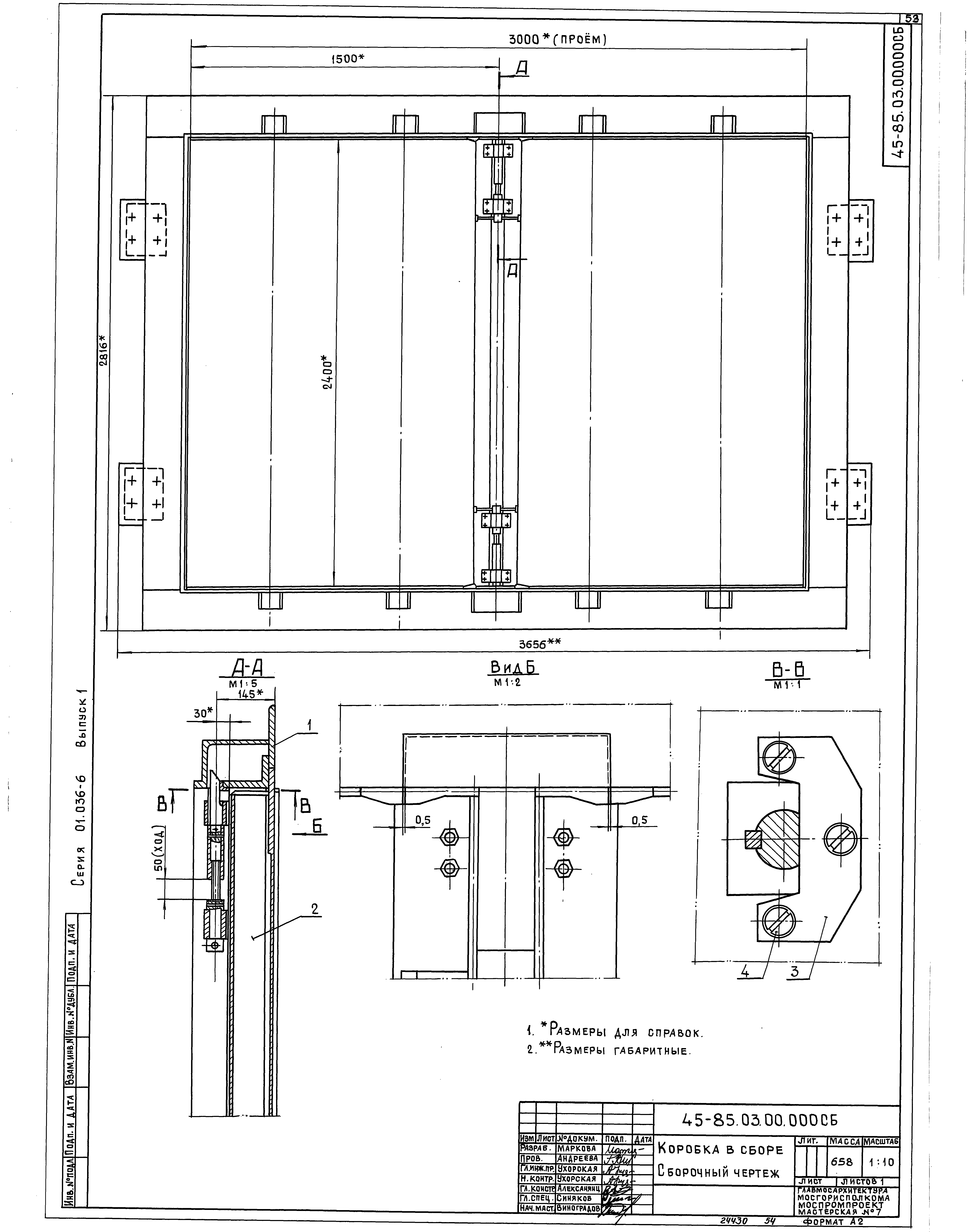
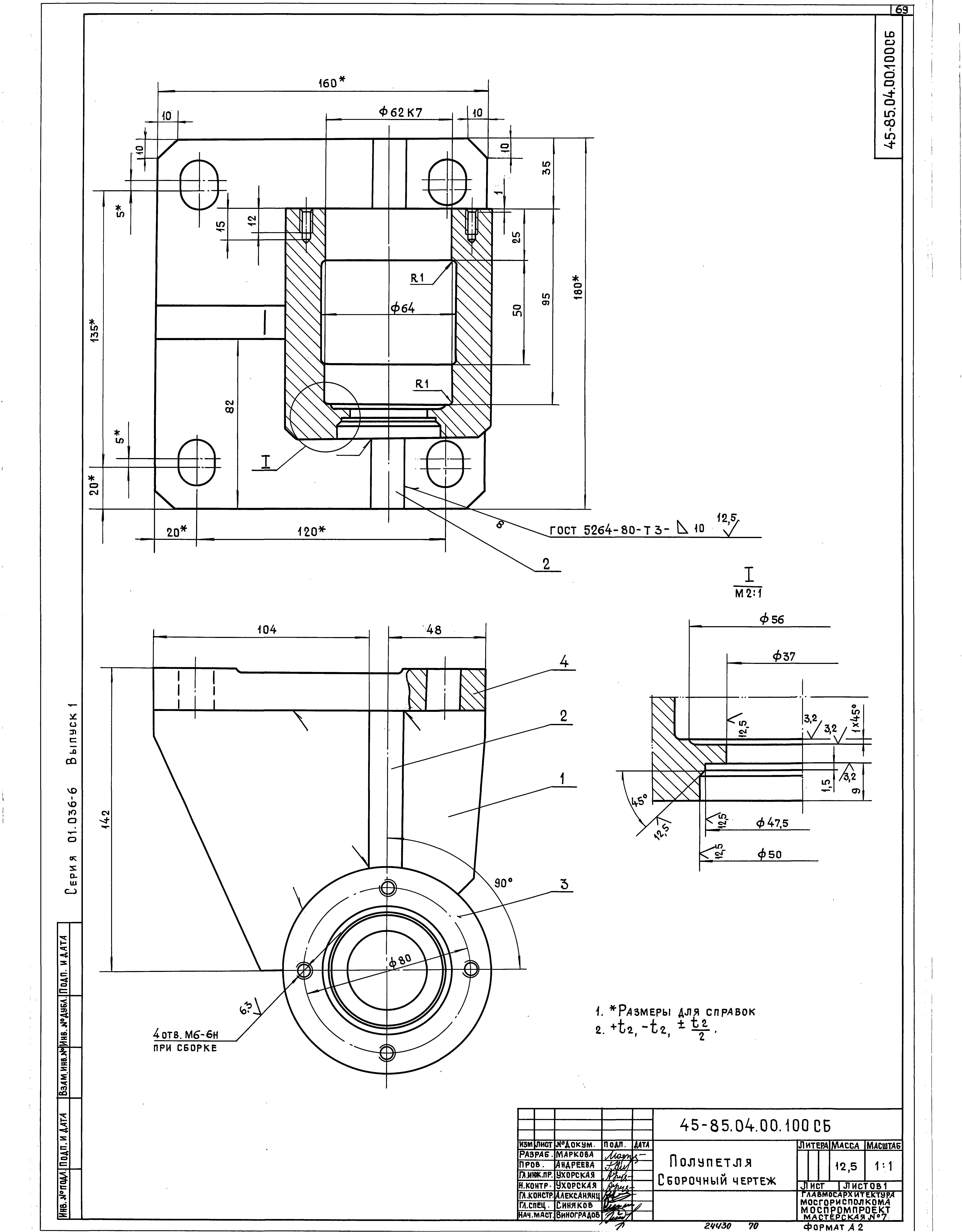
| Оглавление: | 01.036-6.1-ТУ Технические условия 45-85.00.00.000 Ворота ВУ-III-5. Лист 1,2 45-85.00.00.001 Основание 45-85.00.00.002 Сухарь 45-85.00.00.000 СБ Ворота ВУ-III-5. Сборочный чертеж. Лист 1 45-85.00.00.000 СБ Ворота ВУ-III-5. Сборочный чертеж. Лист 2 45-85.00.00.000 СБ Ворота ВУ-III-5. Сборочный чертеж. Лист 3 45-85.00.00.003 Палец 45-85.00.00.004 Кольцо 45-85.00.00.005 Полоса 45-85.01.00.011 Кольцо 45-85.01.00.000 Створка в сборе, левая. Лист 1,2 45-85.01.00.009 Звездочка 45-85.01.00.010 Палец 45-85.01.00.000 СБ Створка в сборе, левая. Сборочный чертеж. Лист 1 45-85.01.00.000 СБ Створка в сборе, левая. Сборочный чертеж. Лист 2 45-85.01.00.000 СБ Створка в сборе, левая. Сборочный чертеж. Лист 3 45-85.01.00.001 Кожух 45-85.01.00.002 Прокладка 45-85.01.00.003 Прокладка регулировочная 45-85.01.00.004 Клин 45-85.01.00.005 Винт 45-85.01.00.006 Опора 45-85.01.00.007 Втулка прижимная 45-85.01.00.008 Заглушка 45-85.01.10.000 Полотно левое. Лист 1,2 45-85.01.10.001 Основание 45-85.01.10.000 СБ Полотно левое. Сборочный черте. Лист 1 45-85.01.10.000 СБ Полотно левое. Сборочный черте. Лист 2 45-85.01.10.002 Лист 45-85.01.10.003 Основание 45-85.01.10.004 Ребро 45-85.01.10.005 Планка 45-85.01.10.006 Фланец 45-85.01.10.007 Швеллер 45-85.01.10.008 Ребро 45-85.01.10.009 Втулка 45-85.01.10.010 Ручка 45-85.01.10.011 Пластина 45-85.01.10.012 Бобышка 45-85.01.20.000 Редуктор ведущий 45-85.01.30.000 Редуктор ведомый 45-85.01.20.006 Прокладка регулировочная 45-85.01.50.101 Рычаг 45-85.01.20.000 СБ Редуктор ведущий. Сборочный чертеж 45-85.01.20.001 Шестерня 45-85.01.20.002 Колесо 45-85.01.20.003 Корпус. Лист 1 45-85.01.20.003 Корпус. Лист 2 45-85.01.20.004 Крышка 45-85.01.20.005 Вал 45-85.01.30.001 Вал 45-85.01.30.000 СБ Редуктор ведомый. Сборочный чертеж 45-85.01.40.000 Блокировочное устройство 45-85.01.41.200 Основание 45-85.01.41.000 Замок электромагнитный. Лист 1,2 45-85.01.40.000 СБ Блокировочное устройство. Сборочный чертеж 45-85.01.40.001 Муфта 45-85.01.40.002 Палец 45-85.01.40.003 Шайба стопорная 45-85.01.41.001 Пружина 45-85.01.41.000 СБ Замок электромагнитный. Сборочный чертеж 45-85.01.41.002 Муфта 45-85.01.41.003 Хомут 45-85.01.41.004 Шток 45-85.01.41.005 Пружина 45-85.01.41.100 Ключ в сборе 45-85.01.41.101 Ручка 45-85.01.41.300 Шток в сборе 45-85.01.41.301 Шток 45-85.01.41.200 СБ Основание. Сборочный чертеж 45-85.01.41.400 Опора в сборе 45-85.01.41.401 Корпус 45-85.01.41.303 Штырь 45-85.01.41.302 Рамка 45-85.01.41.402 Втулка 45-85.01.41.500 Валик в сборе 45-85.01.41.501 Пруток 45-85.01.41.502 Палец 45-85.01.50.000 Штурвал в сборе 45-85.01.50.100 Штурвал 45-85.01.60.000 Штурвал в сборе 45-85.01.60.100 Штурвал 45-85.01.50.000 СБ Штурвал в сборе. Сборочный чертеж 45-85.01.60.000 СБ Штурвал в сборе. Сборочный чертеж 45-85.01.50.001 Ручка 45-85.01.50.002 Палец 45-85.01.50.003 Пружина 45-85.01.50.100 СБ Штурвал. Сборочный чертеж 45-85.01.60.100 СБ Штурвал. Сборочный чертеж 45-85.01.60.101 Втулка 45-85.01.50.102 Вилка 45-85.01.50.103 Втулка 45-85.01.70.000 СБ Тяга. Сборочный чертеж 45-85.01.70.001 Вилка 45-85.01.70.002 Вилка 45-85.01.80.000 Кожух 45-85.01.80.001 Полоса 45-85.01.80.002 Уголок 45-85.01.80.003 Уголок 45-85.01.80.000 СБ Кожух. Сборочный чертеж 45-85.02.00.000 Створка в сборе правая. Лист 1,2 45-85.02.10.000 Полотно правое. Лист 1,2 45-85.02.00.000 СБ Створка в сборе правая. Сборочный чертеж. Лист 1 45-85.02.00.000 СБ Створка в сборе правая. Сборочный чертеж. Лист 2 45-85.02.10.000 СБ Полотно правое. Сборочный чертеж. Лист 45-85.03.00.000 Коробка в сборе 45-85.01.70.000 Тяга 45-85.03.01.000 Коробка. Лист 1,2 45-85.03.00.000 СБ Коробка в сборе. Сборочный чертеж 45-85.03.01.000 СБ Коробка. Сборочный чертеж. Лист 1 45-85.03.01.000 СБ Коробка. Сборочный чертеж. Лист 2 45-85.03.01.001 Полоса 45-85.03.01.002 Уголок 45-85.03.01.003 Полоса 45-85.03.01.004 Пластина 45-85.03.01.005 Пластина 45-85.03.01.006 Полоса 45-85.03.02.001 Направляющая 45-85.03.02.000 Стойка в сборе. Лист 1,2 45-85.03.02.000 СБ Стойка в сборе. Сборочный чертеж 45-85.03.02.002 Клин 45-85.03.02.004 Опора 45-85.03.02.003 Муфта 45-85.03.02.005 Винт 45-85.03.02.006 Кольцо 45-85.03.02.007 Рукоятка 45-85.03.02.100 СБ Стойка. Сборочный чертеж 45-85.03.02.101 Уголок 45-85.03.02.102 Полупетля 45-85.03.02.103 Полоса 45-85.03.02.105 Лист "Т" 45-85.03.00.000 Петля в сборе, тип 1. Лист 1,2 45-85.05.00.100 Полупетля 45-85.03.02.100 Стойка 45-85.05.00.000 Петля в сборе, тип 2. Лист 1,2 45-85.04.00.100 Полупетля 45-85.04.00.200 Полупетля 45-85.04.00.000 СБ Петля в сборе, тип 1. Сборочный чертеж 45-85.04.00.001 Ось 45-85.04.00.003 Крышка 45-85.04.00.002 Крышка 45-85.04.00.004 Втулка 45-85.04.00.005 Втулка 45-85.04.00.006 Ось 45-85.04.00.007 Кольцо 45-85.04.00.100 СБ Полупетля. Сборочный чертеж 45-85.04.00.101 Ребро 45-85.04.00.102 Ребро 45-85.04.00.103 Стакан-заготовка 45-85.04.00.104 Основание 45-85.04.00.200 СБ Полупетля. Сборочный чертеж 45-85.04.00.201 Ребро 45-85.04.00.201-01 Ребро 45-85.04.00.008 Прокладка 45-85.04.00.203 Направляющая 45-85.04.00.204 Основание 45-85.05.00.000 СБ Петля в сборе, тип 2. Сборочный чертеж 45-85.05.00.100 СБ Полупетля. Сборочный чертеж |
| Разработан: | Моспромпроект |
| Утверждён: | 18.05.1988 Управление НГО СССР (235/13/1453) |
| Расположен в: |










































































