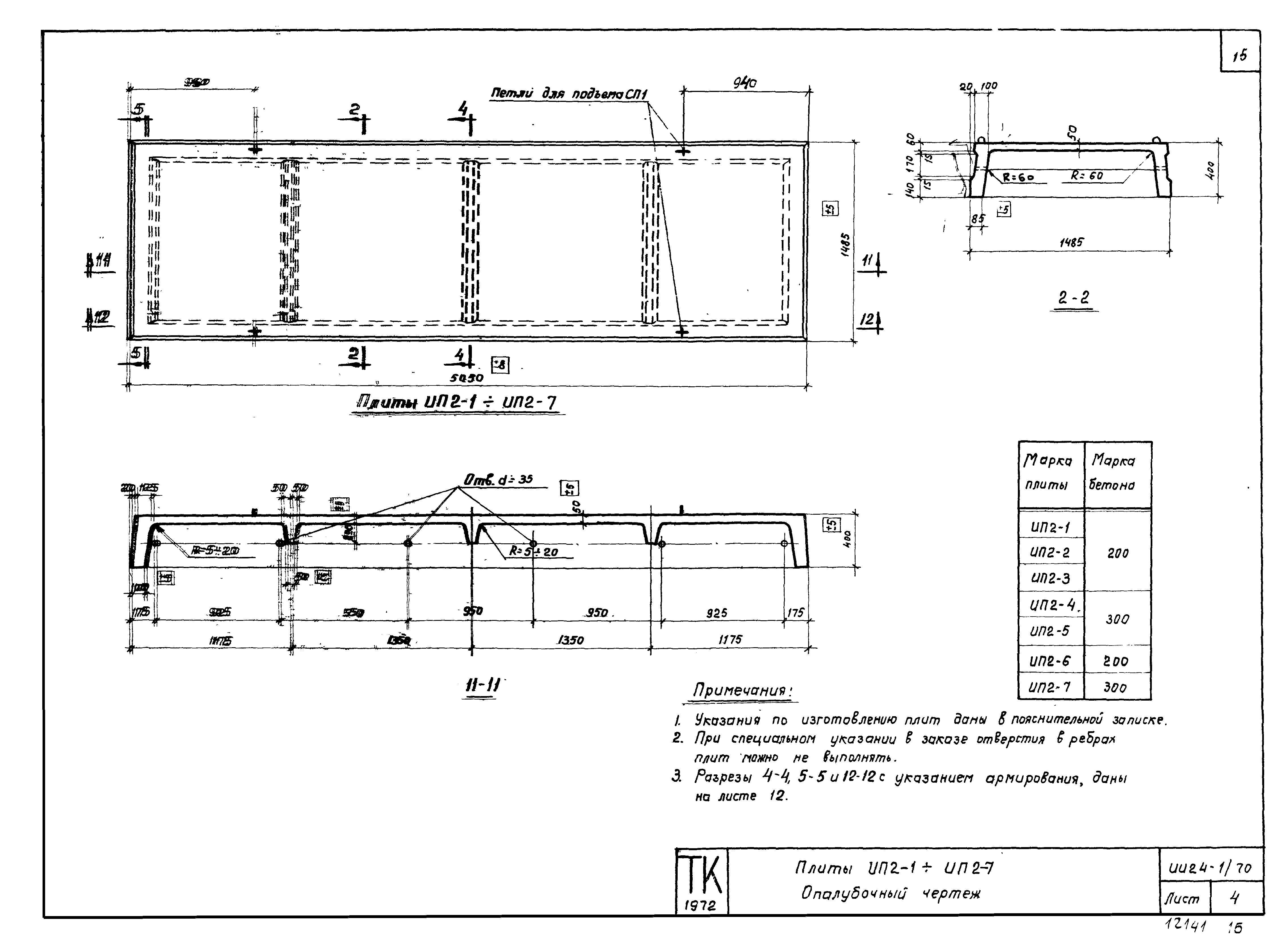
Скачать Серия ИИ24-1/70 Типовые конструкции многоэтажных производственных зданий. Железобетонные плиты для перекрытия типа 1, с опиранием на полки ригелейДата актуализации: 10.08.2017 Серия ИИ24-1/70
Типовые конструкции многоэтажных производственных зданий. Железобетонные плиты для перекрытия типа 1, с опиранием на полки ригелейОбозначение: | Серия ИИ24-1/70 | Обозначение англ: | Series ИИ24-1/70 | Статус: | не действует | Название рус.: | Типовые конструкции многоэтажных производственных зданий. Железобетонные плиты для перекрытия типа 1, с опиранием на полки ригелей | Дата добавления в базу: | 01.09.2013 | Дата актуализации: | 05.05.2017 | Дата введения: | 01.07.1973 | Дата окончания срока действия: | 01.01.1976 | Разработан: | ЦНИИпромзданий
| Утверждён: | 28.11.1972 Госстрой СССР (Государственный комитет Совета Министров СССР по делам строительства) (USSR Gosstroy 203)
| Расположен в: |
| Чем заменён: | |
                                                        
|