Информационная система
«Ёшкин Кот»

Скачать базу одним архивом
Скачать обновления
История создания базы
Карта сайта

Скачать Типовой проект 901-7-5.84 Альбом V. Архитектурно-строительная часть

Дата актуализации: 10.08.2017

Типовой проект 901-7-5.84

Альбом V. Архитектурно-строительная часть

Обозначение: Типовой проект 901-7-5.84
Обозначение англ: 901-7-5.84
Статус:действует
Название рус.:Альбом V. Архитектурно-строительная часть
Дата добавления в базу:01.09.2013
Дата актуализации:05.05.2017
Дата введения:23.09.1983
Оглавление:ТП 901-7-5.84 Содержание альбома
ТП 901-7-5.84-АР Архитектурные решения
ТП 901-7-5.84-АР-1 Общие данные
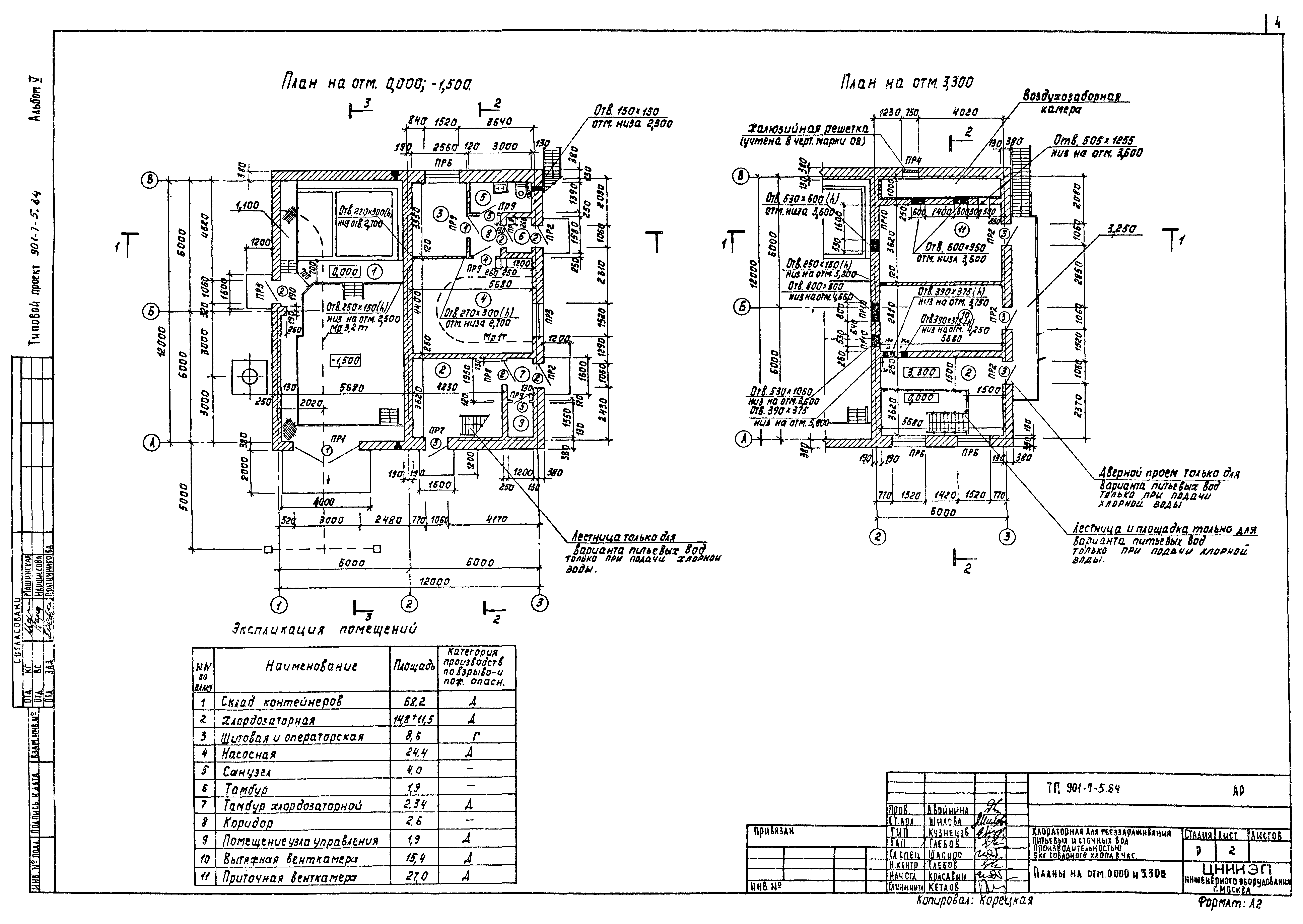
ТП 901-7-5.84-АР-2 Планы на отм. 0.000 и 3.300
ТП 901-7-5.84-АР-3 Разрезы 1-1;2-2;3-3. Детали 1,2,3
ТП 901-7-5.84-АР-4 Фасады 1-3;3-1;А-В;В-1
ТП 901-7-5.84-АР-5 Ведомость проемов ворот и дверей. Спецификация элементов заполнения проемов. Ведомость и спецификация перемычек
ТП 901-7-5.84-АР-6 Планы полов и кровли. Ведомость отделки помещений
ТП 901-7-5.84-АР-7 Ворота распашные 3.00х4.73
ТП 901-7-5.84-КЖ Конструкции железобетонные
ТП 901-7-5.84-КЖ-1 Общие данные
ТП 901-7-5.84-КЖ-2 Схема расположения фундаментов
ТП 901-7-5.84-КЖ-3 Схема расположения фундаментов под оборудование и каналы
ТП 901-7-5.84-КЖ-4 Фундаменты под оборудование и каналы
ТП 901-7-5.84-КЖ-5 Схема расположения плит покрытия и перекрытия
ТП 901-7-5.84-КЖ-6 Монолитные участки УМ-1÷УМ-5
ТП 901-7-5.84-КЖ-7 Монолитные участки УМ-1÷УМ-5. Спецификации
ТП 901-7-5.84-КЖ-8 Резервуар нейтрализующего раствора. Опалубочный чертеж. Армирование
ТП 901-7-5.84-КЖ-9 Скрубберы №1 и №2
ТП 901-7-5.84-КЖ-10 Приточная венткамера на отм. 3.300
ТП 901-7-5.84-КЖИ-П9 Панель перекрытия П9
ТП 901-7-5.84-КЖИ-МН1 Рама металлическая (МН1,МН2)
ТП 901-7-5.84-КЖИ-МН3 Изделие закладное (МН3...МН5)
ТП 901-7-5.84-КЖИ-Щ1 Щит стальной (Щ1;Щ2)
ТП 901-7-5.84-КЖИ-МН12 Рама металлическая (МН12,МН13)
ТП 901-7-5.84-КМ Конструкции металлические
ТП 901-7-5.84-КМ-1 Общие данные. Техническая спецификация металла (начало)
ТП 901-7-5.84-КМ-2 Общие данные. Техническая спецификация металла (продолжение)
ТП 901-7-5.84-КМ-3 Общие данные. Техническая спецификация металла (окончание)
ТП 901-7-5.84-КМ-4 Общие данные. Техническая спецификация металла на типовые конструкции
ТП 901-7-5.84-КМ-5 Общие данные. Ведомость металлоконструкций по видам профилей
ТП 901-7-5.84-КМ-6 Схема расположения переходных площадок, лестниц и ограждений. Спецификация
ТП 901-7-5.84-КМ-7 Схема расположения подвесных путей
ТП 901-7-5.84-КМ-8 Ворота
ТП 901-7-5.84-КМ-9 Труба вытяжная
Разработан: ЦНИИЭП иженерного оборудования
Утверждён:27.12.1979 Госгражданстрой (Gosgrazhdanstroy 279)
Расположен в:Техническая документация Строительство Справочные документы Типовые строительные конструкции, изделия и узлы Общероссийский строительный каталог Промышленные предприятия, здания и сооружения Здания и сооружения санитарно-технические Водоснабжение Сооружения и установки по обеззараживанию воды Реагентное хозяйство для станций очистки
Типовой проект 901-7-5.84Типовой проект 901-7-5.84Типовой проект 901-7-5.84Типовой проект 901-7-5.84Типовой проект 901-7-5.84Типовой проект 901-7-5.84Типовой проект 901-7-5.84Типовой проект 901-7-5.84Типовой проект 901-7-5.84Типовой проект 901-7-5.84Типовой проект 901-7-5.84Типовой проект 901-7-5.84Типовой проект 901-7-5.84Типовой проект 901-7-5.84Типовой проект 901-7-5.84Типовой проект 901-7-5.84Типовой проект 901-7-5.84Типовой проект 901-7-5.84Типовой проект 901-7-5.84Типовой проект 901-7-5.84Типовой проект 901-7-5.84Типовой проект 901-7-5.84Типовой проект 901-7-5.84Типовой проект 901-7-5.84Типовой проект 901-7-5.84Типовой проект 901-7-5.84Типовой проект 901-7-5.84Типовой проект 901-7-5.84Типовой проект 901-7-5.84

© 2013 Ёшкин Кот :-) Карта сайта