Информационная система
«Ёшкин Кот»

Скачать базу одним архивом
Скачать обновления
История создания базы
Карта сайта

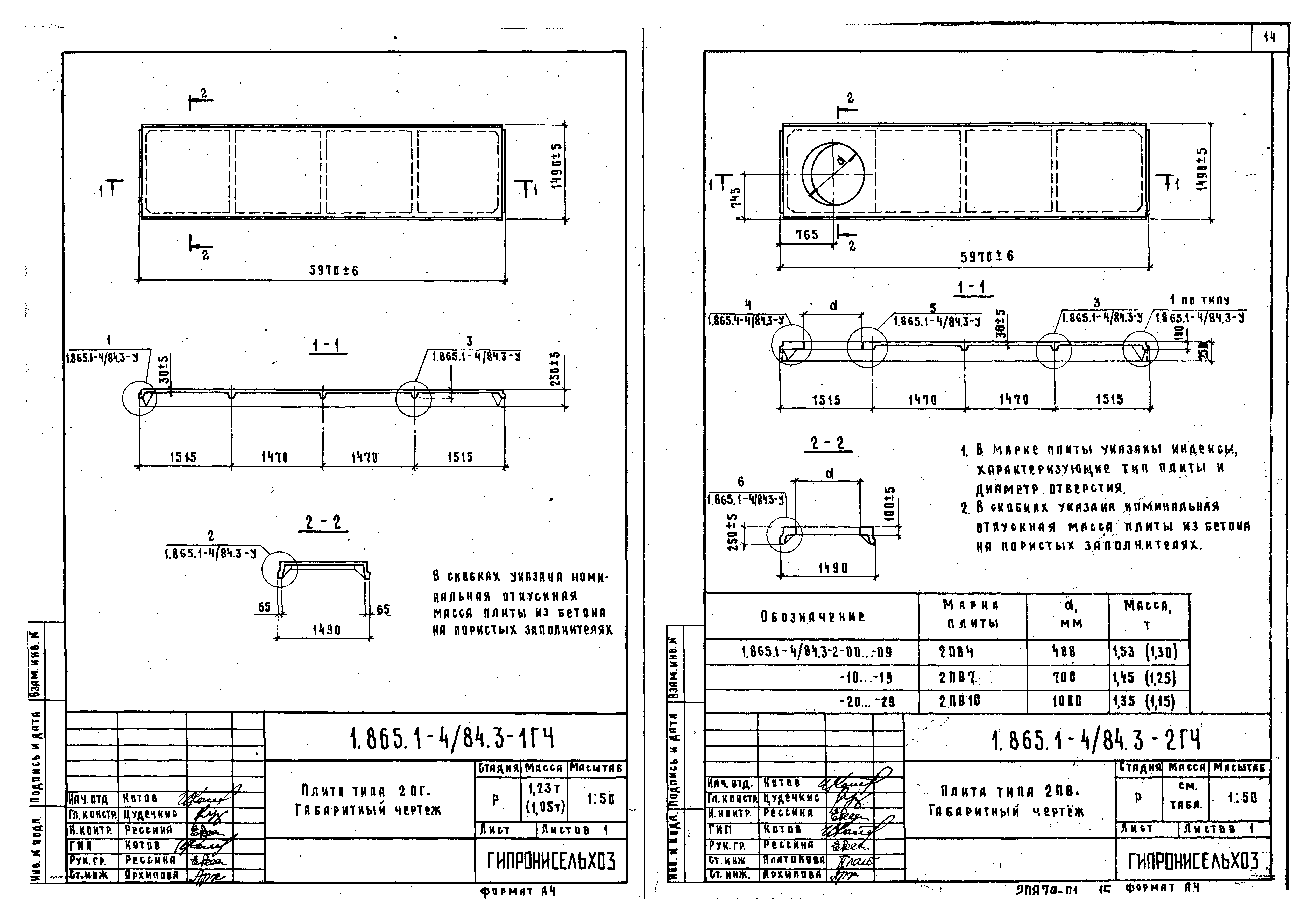
Скачать Серия 1.865.1-4/84 Выпуск 3. Плиты размером 1,5х6 м. Рабочие чертежи

Дата актуализации: 10.08.2017

Серия 1.865.1-4/84

Выпуск 3. Плиты размером 1,5х6 м. Рабочие чертежи

Обозначение: Серия 1.865.1-4/84
Обозначение англ: Series 1.865.1-4/84
Статус:заменен
Название рус.:Выпуск 3. Плиты размером 1,5х6 м. Рабочие чертежи
Дата добавления в базу:01.09.2013
Дата актуализации:05.05.2017
Дата введения:01.12.1989
Разработан: НИИСК
НИИЖБ
ЦНИИЭПсельстрой
ГипроНИсельхоз (Институт Гипронисельхоз )
Утверждён:25.11.1985 Госстрой СССР (Государственный комитет Совета Министров СССР по делам строительства) (USSR Gosstroy 199)
Издан: ЦИТП Госстроя СССР (CITP, Gosstroy (USSR) 1986 г. )
Расположен в:Техническая документация Строительство Справочные документы Типовые строительные конструкции, изделия и узлы Общероссийский строительный каталог Строительные конструкции, изделия и узлы зданий и сооружений для всех видов строительства Конструкции, изделия и узлы зданий Ограждающие конструкции Покрытия Сборные железобетонные плиты и панели
Заменяет собой:
Чем заменён:
Серия 1.865.1-4/84Серия 1.865.1-4/84Серия 1.865.1-4/84Серия 1.865.1-4/84Серия 1.865.1-4/84Серия 1.865.1-4/84Серия 1.865.1-4/84Серия 1.865.1-4/84Серия 1.865.1-4/84Серия 1.865.1-4/84Серия 1.865.1-4/84Серия 1.865.1-4/84Серия 1.865.1-4/84Серия 1.865.1-4/84Серия 1.865.1-4/84Серия 1.865.1-4/84Серия 1.865.1-4/84Серия 1.865.1-4/84Серия 1.865.1-4/84Серия 1.865.1-4/84Серия 1.865.1-4/84Серия 1.865.1-4/84Серия 1.865.1-4/84Серия 1.865.1-4/84Серия 1.865.1-4/84Серия 1.865.1-4/84Серия 1.865.1-4/84Серия 1.865.1-4/84Серия 1.865.1-4/84Серия 1.865.1-4/84Серия 1.865.1-4/84Серия 1.865.1-4/84Серия 1.865.1-4/84Серия 1.865.1-4/84Серия 1.865.1-4/84

© 2013 Ёшкин Кот :-) Карта сайта