Информационная система
«Ёшкин Кот»

Скачать базу одним архивом
Скачать обновления
История создания базы
Карта сайта

Скачать Типовой проект 320-066.84 Альбом II. Игровая тематическая площадка Дозорная

Дата актуализации: 10.08.2017

Типовой проект 320-066.84

Альбом II. Игровая тематическая площадка "Дозорная"

Обозначение: Типовой проект 320-066.84
Обозначение англ: 320-066.84
Статус:не определен законодательством
Название рус.:Альбом II. Игровая тематическая площадка "Дозорная"
Дата добавления в базу:01.09.2013
Дата актуализации:05.05.2017
Дата введения:30.01.1984
Оглавление:Общие данные
Номенклатура малых архитектурных форм
Игровая тематическая площадка "Дозорная". План. М 1:100
Игровая тематическая площадка "Дозорная". Разбивочный чертеж. М 1:100
Игровая тематическая площадка "Дозорная". Сечение 1-1. Сводная спецификация
Игровая башня пост "Дозорный" с катальной горкой и лестницей. Общие виды
Игровая башня пост "Дозорный". План. Разрезы. Вид "А". Узел I
Игровая башня пост "Дозорный". План фундаментов. Узлы II, III. Сечения 1-1, 2-2. Деталь МД-1
Игровая башня пост "Дозорный". Монтажные узлы IV - VI. Вид "А". Сечения 1-1 - 4-4
Игровая башня пост "Дозорный". Вид сбоку. Виды "А", "Б"
Игровая башня пост "Дозорный". План крыши. Каркас крыши. Вид "А". Сечения А-А, Б-Б, 1-1
Игровая башня пост "Дозорный". Узлы VII - IX. Сечение 2-2. Флюгеры тип I, II. Поз. 4
Игровая башня пост "Дозорный". Крыша. Узлы Х - ХV. Сечения А-А, Б-Б, Г-Г. Виды А, Б
Игровая башня пост "Дозорный". Крыша. Узлы Х - ХV. Лестница. Общие виды. Сечение 1-1
Игровая башня пост "Дозорный". Крыша. Узлы Х - ХV. Лестница. Узлы I-V. Сечение 2-2
Игровая башня пост "Дозорный". Катальная горка. Общие виды. Сечение 1-1. Детали
Игровая башня пост "Дозорный". Сводная спецификация
"Сторожевая" башня тип I с катальной горкой и лестницей. Общие виды
"Сторожевая" башня тип I. Сечения А-А, Б-Б, 1-1. Узел I. План фундаментов
"Сторожевая" башня тип I. Монтажные узлы V, VII, VIII.. Узел IV. Сечения
"Сторожевая" башня тип I. Вид сбоку. Виды "А", "Б"
"Сторожевая" башня тип I. Сечения Б-Б, 1-1, 2-2, 3-3. Узлы IX, X, XI
"Сторожевая" башня тип I. План крыши. Каркас крыши. Вид "А". Узлы I - II. Сечение 1-1
"Сторожевая" башня тип I. Крыша. Узлы III, IV. Сечения
"Сторожевая" башня тип I. Лестница. Общие виды. Сечение А-А
"Сторожевая" башня тип I. Катальная горка. Общие виды. Сечение 1-1. Детали
"Сторожевая" башня тип I. Сводная спецификация
"Сторожевая" башня тип II с лестницей. Общие виды. Разрез 1-1
"Сторожевая" башня тип II. Разрез 1-1. План фундаментов. Узлы II, IV
"Сторожевая" башня тип II. Монтажные узлы V - VII. Сечения
"Сторожевая" башня тип II. Вид сбоку. Виды А, Б
"Сторожевая" башня тип II. План крыши. Каркас крыши. Вид "А". Сечения А-А, Б-Б
"Сторожевая" башня тип II. Флюгер тип III. Общий вид. Сечения. Детали
"Сторожевая" башня тип II. Лестница. Общие виды. Узел III. Сечения
"Сторожевая" башня тип II. Сводная спецификация
"Сторожевая" башня тип III с лестницей. Общие виды. Разрез 1-1
"Сторожевая" башня тип III. Разрез 2-2. План фундаментов. Узел VI. Сечение А-А
"Сторожевая" башня тип III. Вид сбоку. Виды А, Б
"Сторожевая" башня тип III. Крыша. Общий вид. План. Каркас. Узел I. Сечение 1-1, 2-2
"Сторожевая" башня тип III. Сводная спецификация
Закрытая галерея. Общие виды
Закрытая галерея. План фундаментов. Узел II. Сечения 1-1 - 3-3
Закрытая галерея. Каркас крыши. Узлы. Сечения
Закрытая галерея. Сводная спецификация
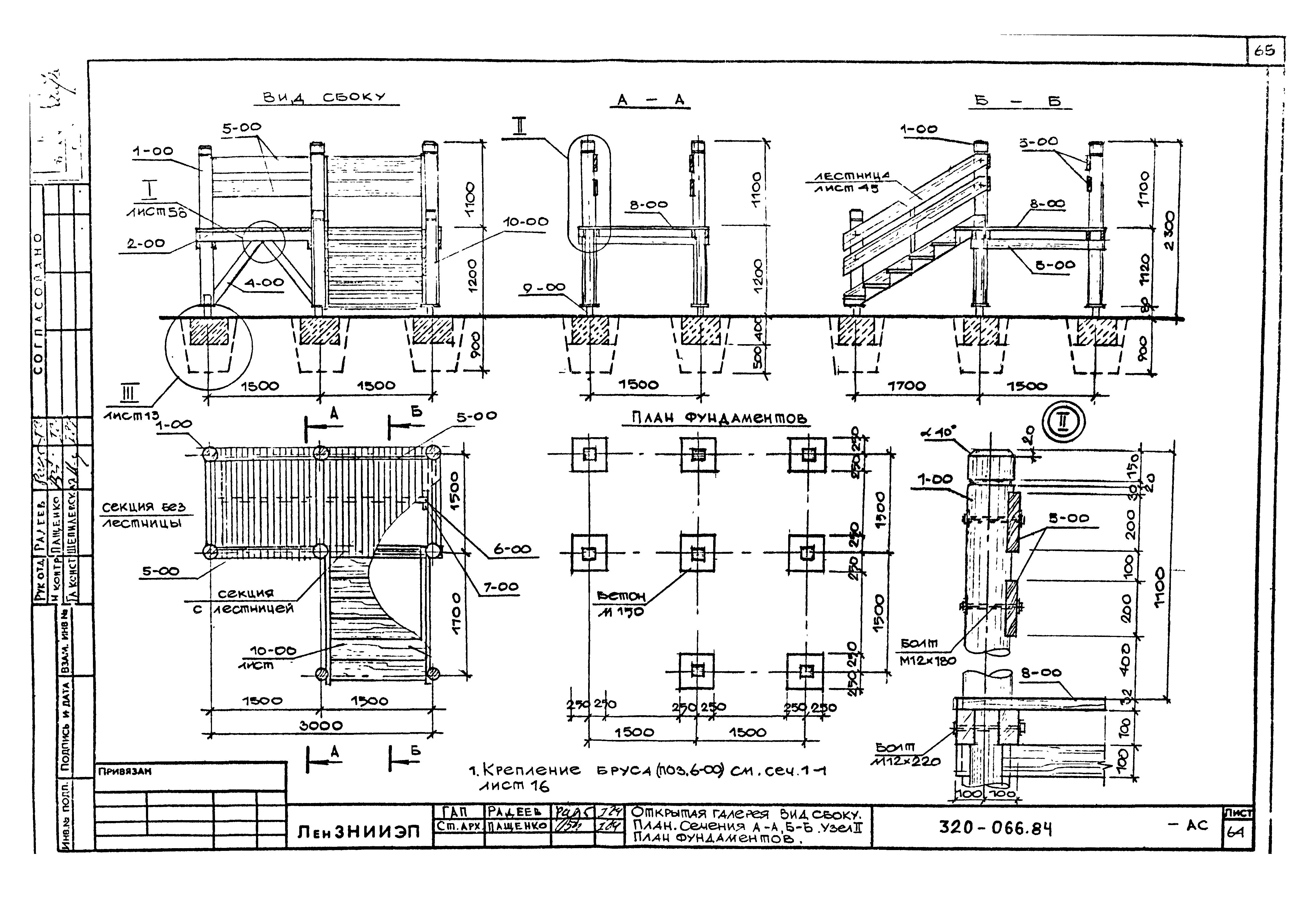
Открытая галерея с катальной горкой. Общий вид. План. Разрез 1-1
Открытая галерея. Вид сбоку. План. Сечения А-А, Б-Б. Узел II. План фундаментов
Открытая галерея. Сводная спецификация
Цепной мост тип I с участком открытой галереи. Общий вид. План. Разрез 1-1
Цепной мост тип I. Общие виды. План. Сечения Б-Б, В-В
Цепной мост тип I. Сечения Г-Г, Д-Д, Е-Е. Узел I. План фундаментов
Цепной мост тип I. Узлы III - VI. Сводная спецификация
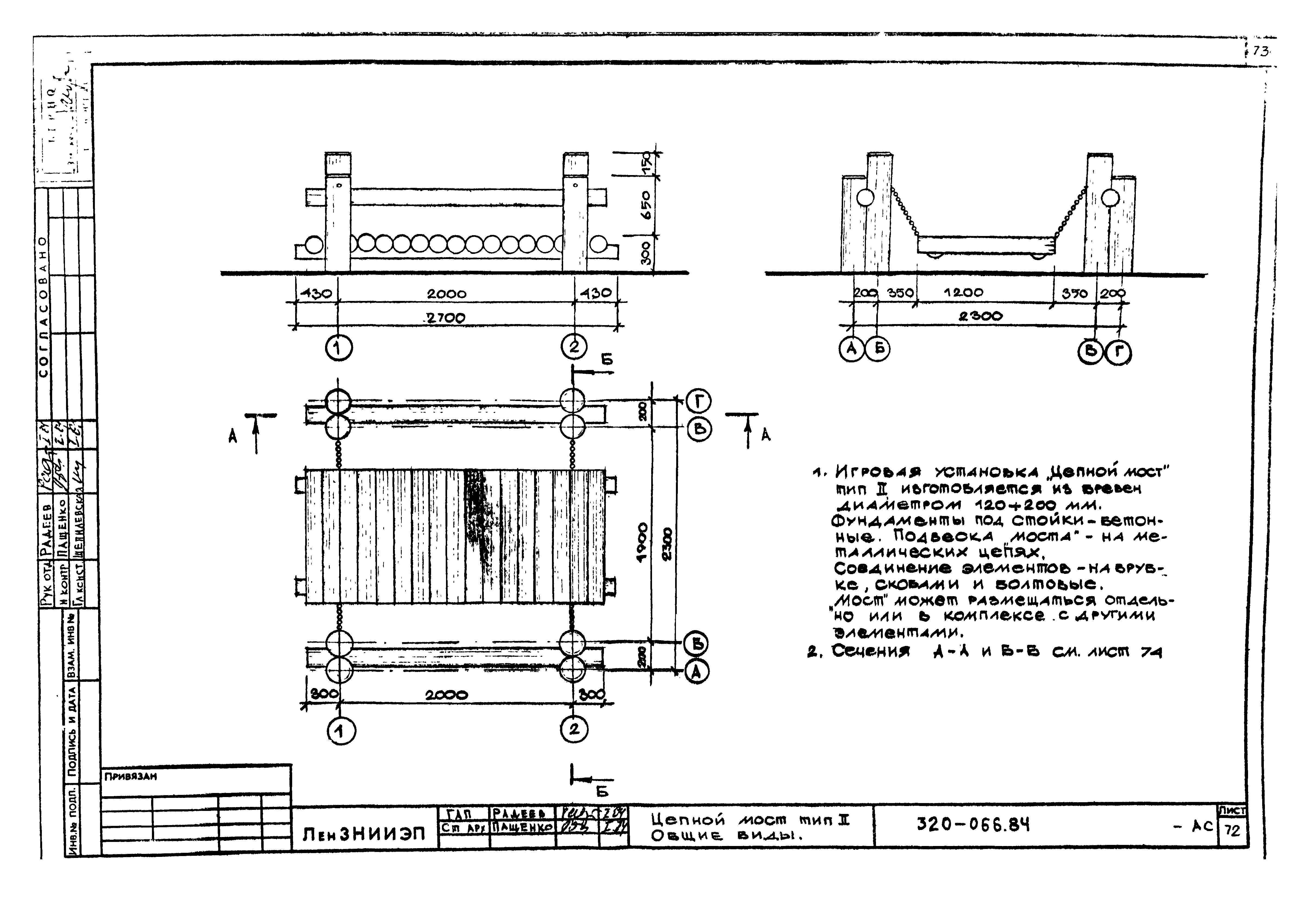
Цепной мост тип II. Общие виды
Цепной мост тип II. План фундаментов. Площадка. Сечения 1-1, 2-2
Цепной мост тип II. Сечения А-А, Б-Б. Узлы I, II, III
Цепной мост тип II. Детали. Сводная спецификация
Декоративные ворота тип I. Общие виды
Декоративные ворота тип I. Сечения А-А, Б-Б, В-В, Г-Г. Узел "А"
Декоративные ворота тип I. Крыша. Рама Р-1. Узлы I, II, B. Виды А, Б
Декоративные ворота тип I. Узлы III, IV, Б. Вид "В". Сечения
Декоративные ворота тип I. Сводная спецификация
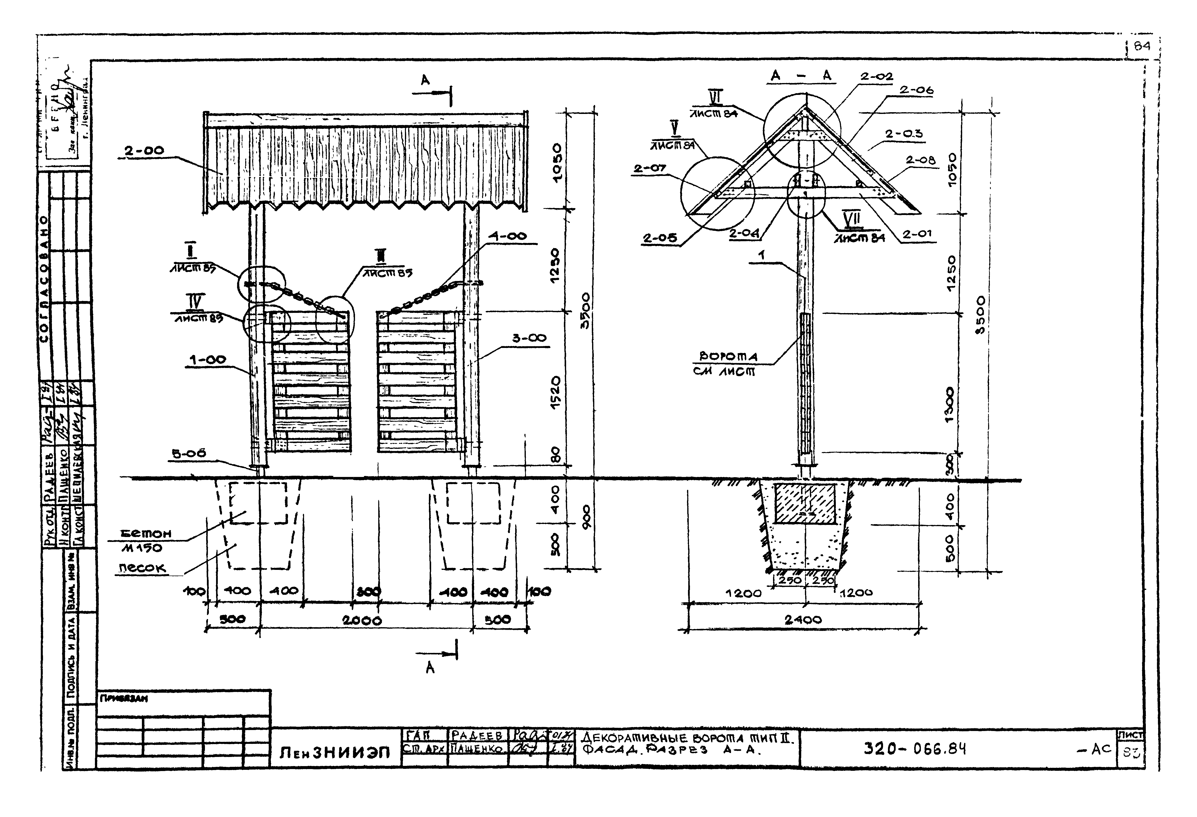
Декоративные ворота тип II с участком открытой галереи. Общие виды. План
Декоративные ворота тип II. Фасад. Разрез А-А
Декоративные ворота тип II. Крыша. Каркас. Разрез 1-1. Узлы V-VIII. Разрез А-А
Декоративные ворота тип II. Узлы I - IV. Сечения. Виды. Детали
Декоративные ворота тип II. Ворота В-1. Петля П-1. Спецификация
Декоративные ворота тип II. Сводная спецификация
Разработан: ЛенЗНИИЭП Госгражданстроя
Утверждён:29.07.1983 Госгражданстрой (Gosgrazhdanstroy 224)
Расположен в:Техническая документация Строительство Справочные документы Типовые строительные конструкции, изделия и узлы Общероссийский строительный каталог Малые формы архитектуры и элементы благоустройства Планировочные элементы благоустройства с малыми архитектурными формами и сооружениями Жилая зона
Типовой проект 320-066.84Типовой проект 320-066.84Типовой проект 320-066.84Типовой проект 320-066.84Типовой проект 320-066.84Типовой проект 320-066.84Типовой проект 320-066.84Типовой проект 320-066.84Типовой проект 320-066.84Типовой проект 320-066.84Типовой проект 320-066.84Типовой проект 320-066.84Типовой проект 320-066.84Типовой проект 320-066.84Типовой проект 320-066.84Типовой проект 320-066.84Типовой проект 320-066.84Типовой проект 320-066.84Типовой проект 320-066.84Типовой проект 320-066.84Типовой проект 320-066.84Типовой проект 320-066.84Типовой проект 320-066.84Типовой проект 320-066.84Типовой проект 320-066.84Типовой проект 320-066.84Типовой проект 320-066.84Типовой проект 320-066.84Типовой проект 320-066.84Типовой проект 320-066.84Типовой проект 320-066.84Типовой проект 320-066.84Типовой проект 320-066.84Типовой проект 320-066.84Типовой проект 320-066.84Типовой проект 320-066.84Типовой проект 320-066.84Типовой проект 320-066.84Типовой проект 320-066.84Типовой проект 320-066.84Типовой проект 320-066.84Типовой проект 320-066.84Типовой проект 320-066.84Типовой проект 320-066.84Типовой проект 320-066.84Типовой проект 320-066.84Типовой проект 320-066.84Типовой проект 320-066.84Типовой проект 320-066.84Типовой проект 320-066.84Типовой проект 320-066.84Типовой проект 320-066.84Типовой проект 320-066.84Типовой проект 320-066.84Типовой проект 320-066.84Типовой проект 320-066.84Типовой проект 320-066.84Типовой проект 320-066.84Типовой проект 320-066.84Типовой проект 320-066.84Типовой проект 320-066.84Типовой проект 320-066.84Типовой проект 320-066.84Типовой проект 320-066.84Типовой проект 320-066.84Типовой проект 320-066.84Типовой проект 320-066.84Типовой проект 320-066.84Типовой проект 320-066.84Типовой проект 320-066.84Типовой проект 320-066.84Типовой проект 320-066.84Типовой проект 320-066.84Типовой проект 320-066.84Типовой проект 320-066.84Типовой проект 320-066.84Типовой проект 320-066.84Типовой проект 320-066.84Типовой проект 320-066.84Типовой проект 320-066.84Типовой проект 320-066.84Типовой проект 320-066.84Типовой проект 320-066.84Типовой проект 320-066.84Типовой проект 320-066.84Типовой проект 320-066.84Типовой проект 320-066.84Типовой проект 320-066.84Типовой проект 320-066.84Типовой проект 320-066.84Типовой проект 320-066.84

© 2013 Ёшкин Кот :-) Карта сайта