Информационная система
«Ёшкин Кот»

Скачать базу одним архивом
Скачать обновления
История создания базы
Карта сайта

Скачать Типовой проект 704-1-167.84 Альбом II. Конструкции металлические понтона

Дата актуализации: 10.08.2017

Типовой проект 704-1-167.84

Альбом II. Конструкции металлические понтона

Обозначение: Типовой проект 704-1-167.84
Обозначение англ: 704-1-167.84
Статус:не действует
Название рус.:Альбом II. Конструкции металлические понтона
Дата добавления в базу:01.09.2013
Дата актуализации:05.05.2017
Оглавление:ТП 704-1-167.84 Общие данные
ТП 704-1-167.84 Техническая спецификация стали на понтон
ТП 704-1-167.84 Техническая спецификация стали. Площадки и ограждения на крыше
ТП 704-1-167.84 Ведомость металлоконструкций по видам профилей
ТП 704-1-167.84 Понтон. План и разрез
ТП 704-1-167.84 Понтон. Днище и план расположения подкладок под стойки
ТП 704-1-167.84 Понтон. Детали и узлы
ТП 704-1-167.84 Площадки и ограждение на крыше. План и разрезы
ТП 704-1-167.84 Площадки и ограждение на крыше. Узлы
ТП 704-1-167.84 Площадка и стремянка у люка-лаза в 3 поясе стенке
ТП 704-1-167.84 Направляющие понтона
ТП 704-1-167.84 Патрубок для установки направляющих понтона
ТП 704-1-167.84 Люк-лаз овальный 600х900 в 3 поясе стенки
ТП 704-1-167.84 Люк-лаз Ду500 на понтоне и патрубок для СУС-14н
ТП 704-1-167.84 Патрубок в понтоне для УДУ, дренажное устройство и люк пробоотборника
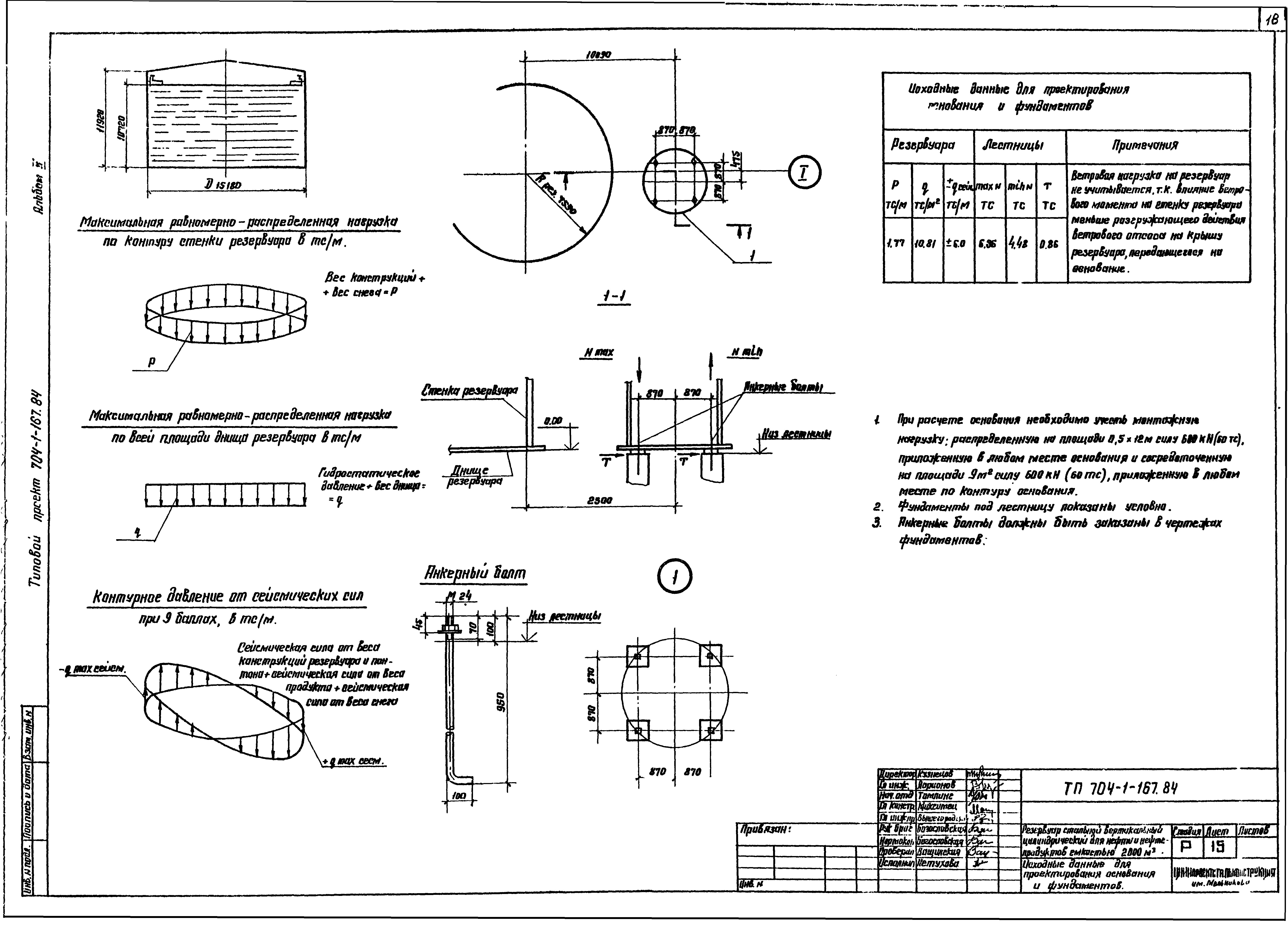
ТП 704-1-167.84 Исходные данные для проектирования основания и фундаментов
ТП 704-1-167.84 Установочный чертеж затвора РУМ-2
Разработан: ЦНИИпроектстальконструкция
Утверждён:23.05.1983 Миннефтепром (Minnefteprom )
Расположен в:Техническая документация Строительство Справочные документы Типовые строительные конструкции, изделия и узлы Общероссийский строительный каталог Промышленные предприятия, здания и сооружения Предприятия, здания и сооружения складские Резервуары и склады для нефти и нефтепродуктов Резервуары стальные для нефти и нефтепродуктов
Типовой проект 704-1-167.84Типовой проект 704-1-167.84Типовой проект 704-1-167.84Типовой проект 704-1-167.84Типовой проект 704-1-167.84Типовой проект 704-1-167.84Типовой проект 704-1-167.84Типовой проект 704-1-167.84Типовой проект 704-1-167.84Типовой проект 704-1-167.84Типовой проект 704-1-167.84Типовой проект 704-1-167.84Типовой проект 704-1-167.84Типовой проект 704-1-167.84Типовой проект 704-1-167.84Типовой проект 704-1-167.84Типовой проект 704-1-167.84Типовой проект 704-1-167.84Типовой проект 704-1-167.84Типовой проект 704-1-167.84

© 2013 Ёшкин Кот :-) Карта сайта