| ||||||||||||||||||||||||||||||
Скачать Серия 1.464-11/82 Выпуск 5. Стальные конструкции фонарей с применением в покрытии железобетонных плит и профилей по сокращенному сортаменту металлопроката (дополнение к выпуску 2). Чертежи КМДата актуализации: 10.08.2017
|
| Обозначение: | Серия 1.464-11/82 |
| Обозначение англ: | Series 1.464-11/82 |
| Статус: | не действует |
| Название рус.: | Выпуск 5. Стальные конструкции фонарей с применением в покрытии железобетонных плит и профилей по сокращенному сортаменту металлопроката (дополнение к выпуску 2). Чертежи КМ |
| Дата добавления в базу: | 01.09.2013 |
| Дата актуализации: | 05.05.2017 |
| Дата введения: | 01.06.1987 |
| Дата окончания срока действия: | 01.12.1993 |
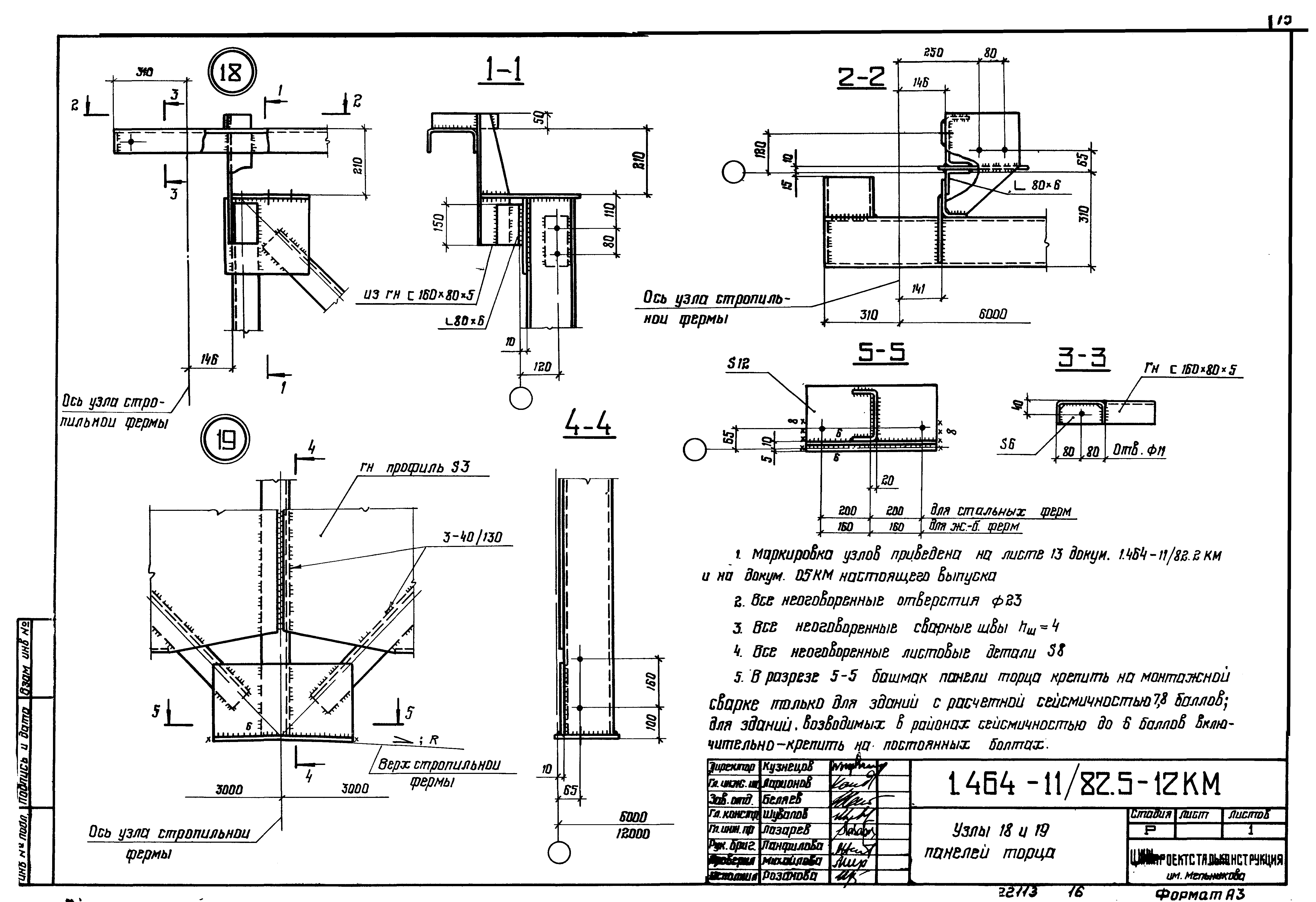
| Оглавление: | 1.464-11/82.5-00ПЗКМ Пояснительная записка 1.464-11/82.5-01КМ Разрезы 5-5;7-7. Виды 6-6;8-8. Таблица элементов 1.464-11/82.5-02КМ Фонарные панели ФП-1жД;ФП-2жД. Шаг ферм 12м. Узел 1 1.464-11/82.5-03КМ Фонарные панели ФП-3жД;ФП-4жД. Шаг ферм 6м. Сортамент фонарных панелей 1.464-11/82.5-04КМ Фонарная ферма ФФ-3жД для фонаря шириной 6м. Сортамент фонарных ферм 1.464-11/82.5-05КМ Панель торца ПТ-3жД для фонаря шириной 6м (<0,015). Сортамент панелей торца 1.464-11/82.5-06КМ Вертикальные связи; схемы и сортамент 1.464-11/82.5-07КМ Узел 2 фонарной панели 1.464-11/82.5-08КМ Узлы 3 и 4 фонарной панели 1.464-11/82.5-09КМ Узлы 12 и 13 панелей торца 1.464-11/82.5-10КМ Узлы 14 и 15 панелей торца 1.464-11/82.5-11КМ Узлы 16 и 17 панелей торца 1.464-11/82.5-12КМ Узлы 18 и 19 панелей торца 1.464-11/82.5-13КМ Спецификация стали |
| Разработан: | ЦНИИпроектстальконструкция Госстроя |
| Утверждён: | 03.04.1987 Госстрой СССР (Государственный комитет Совета Министров СССР по делам строительства) (USSR Gosstroy АЧ-35) |
| Расположен в: | |
| Чем заменён: |
















