| ||||||||||||||||||||||||||
Скачать Серия 1.464.2-25.93 Выпуск 3. Стальные конструкции фонарей с применением в покрытии железобетонных плит. Чертежи КМДата актуализации: 10.08.2017
|
| Обозначение: | Серия 1.464.2-25.93 |
| Обозначение англ: | Series 1.464.2-25.93 |
| Статус: | действует |
| Название рус.: | Выпуск 3. Стальные конструкции фонарей с применением в покрытии железобетонных плит. Чертежи КМ |
| Дата добавления в базу: | 01.09.2013 |
| Дата актуализации: | 05.05.2017 |
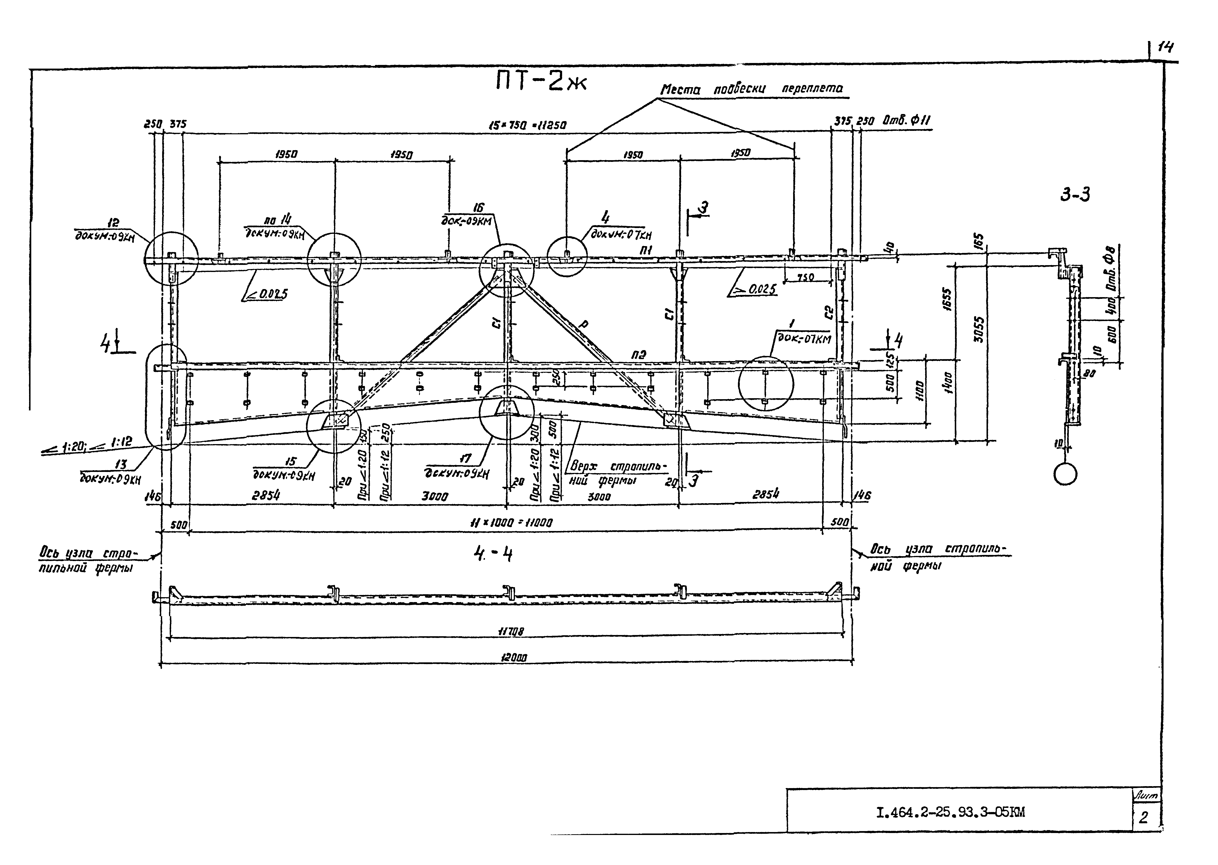
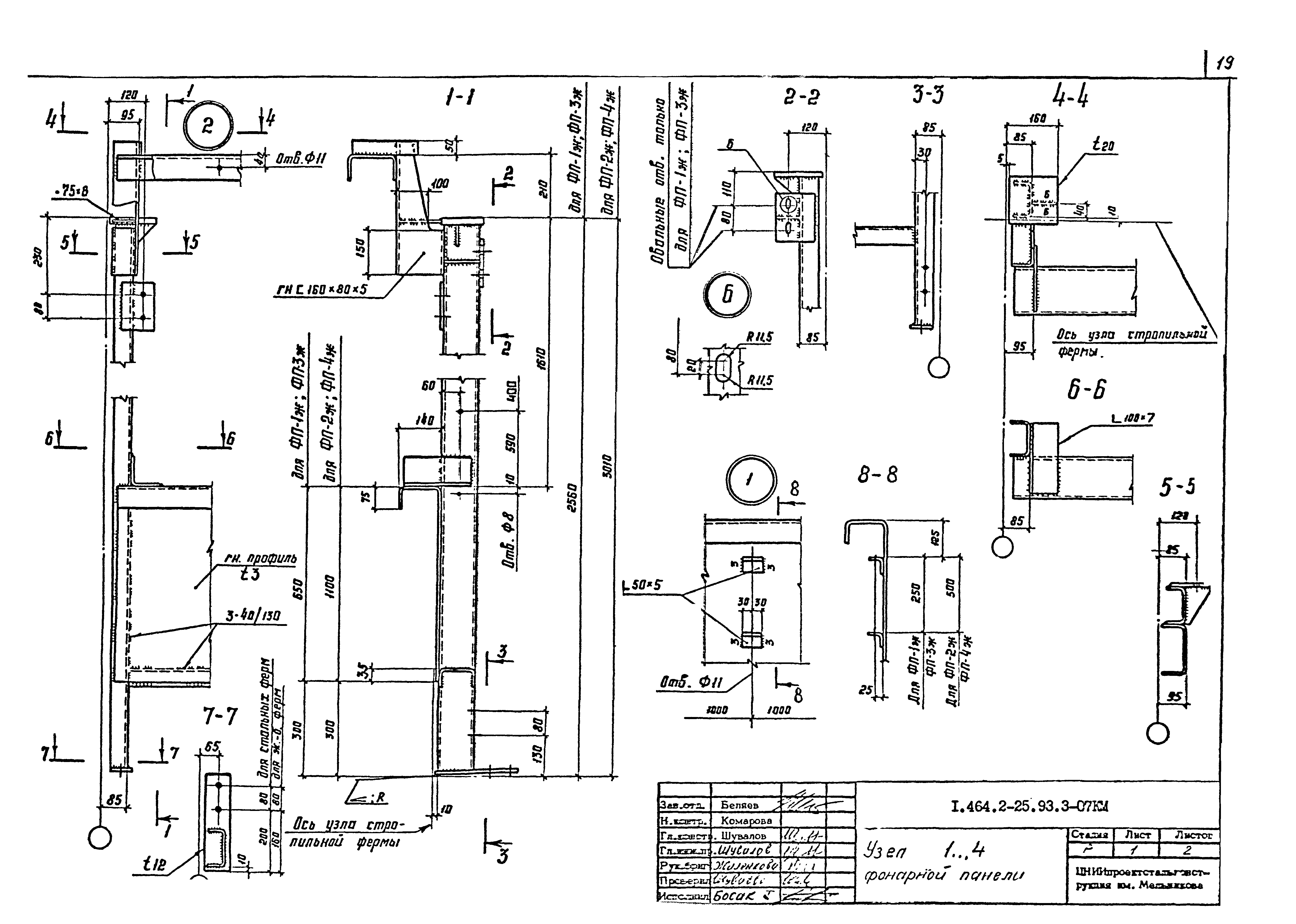
| Оглавление: | 1.464.2-25.93.3-ТТ Технические требования 1.464.2-25.93.3-01КМ Нагрузки 1.464.2-25.93.3-02КМ Схемы расположения конструкций фонаря 1.464.2-25.93.3-03КМ Фонарная панель (ФП-) 1.464.2-25.93.3-04КМ Фонарная ферма (ФФ-) 1.464.2-25.93.3-05КМ Панели торца фонаря 1.464.2-25.93.3-06КМ Вертикальные связи. Схемы и сортамент 1.464.2-25.93.3-07КМ Узел 1... 4 фонарной панели 1.464.2-25.93.3-08КМ Узел 5...11 фонарной фермы 1.464.2-25.93.3-09КМ Узел 12...19 панелей торца 1.464.2-25.93.3-10КМ Узел 20... 26 вертикальных связей. Узел 27, 28 paспорок 1.464.2-25.93.3-11КМ Узел 29 ...34 горизонтальных связей 1.464.2-25.93.3-12КМ Узел 35, 38 1.464.2-25.93.3-13КМ Крепление фонарных панелей к железобетонным плитам покрытия. Раскладка железобетонных плит покрытия. Узел 37 1.464.2-25.93.3-14КМ Спецификация стали |
| Разработан: | ЦНИИПСК им. Мельникова |
| Утверждён: | 18.08.1993 Госстрой России (Russian Federation Gosstroy 9-3-3/179) |
| Расположен в: | |
| Заменяет собой: |
|

































