| ||||||||||||||||||||||||||||||
Скачать НП 1.6-81 Дома-интернаты для инвалидов (18 - 45 лет)Дата актуализации: 10.08.2017
|
| Обозначение: | НП 1.6-81 |
| Обозначение англ: | NP 1.6-81 |
| Статус: | не действует |
| Название рус.: | Дома-интернаты для инвалидов (18 - 45 лет) |
| Дата добавления в базу: | 01.09.2013 |
| Дата актуализации: | 05.05.2017 |
| Область применения: | Выпуск содержит исходные нормативные и справочные данные. Показана функциональная организация жилых групп помещений и связь их с общественными и обслуживающими блоками. Приведены состав и площади основных групп помещений, наборы и типы мебели для оборудования жилых комнат и общественных помещений. Для архитекторов и инженерно-технических работников проектных организаций. |
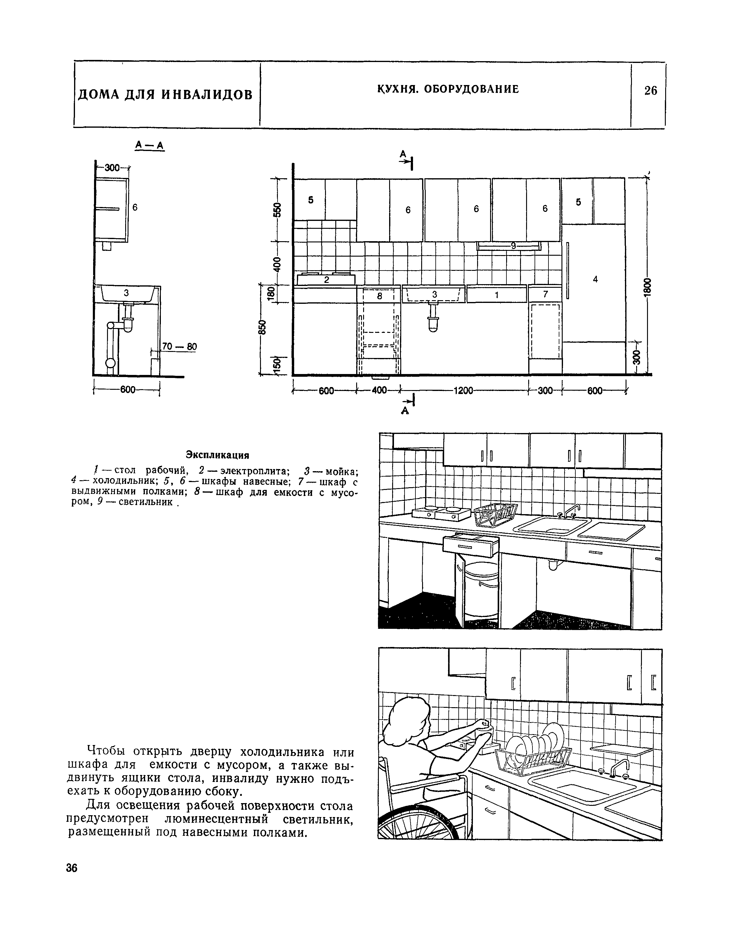
| Оглавление: | Введение Принципиальная схема взаимосвязи помещений (лист 1) Раздел 1. Помещения жилой группы (листы 2 - 3) Состав и площади помещений жилых групп (листы 2 - 3) Схема взаимосвязи помещений жилой группы (лист 4) Зоны досягаемости инвалидов, пользующихся креслом-коляской (лист 5) Средства для передвижения инвалидов (лист 6) Кресло-коляска. Габариты и площадь, необходимая для поворота (лист 7) Устройства и приспособления (листы 8 -12) Функциональные зоны (лист 13) Санитарный узел (умывальник, унитаз) (лист 14) Санитарный узел (умывальник, унитаз, душ) (лист 15) Номенклатура мебели и оборудования (лист 16) Мебель и оборудование (листы 17 - 19) Жилые комнаты. Параметры помещений (лист 20) Жилая комната на одного человека (лист 21) Жилая комната на двух человек (листы 22 - 23) Жилые комнаты на одного и двух человек. Примеры планировки (лист 24) Кухня. Оборудование (листы 25 - 26) Кухня. Габаритные схемы (лист 27) Комната отдыха (лист 28) Комната отдыха и кухня. Кабина личной гигиены женщин (лист 29) Ванная комната на жилую группу. Помещения для бытовых нужд (лист 30) Помещение для хранения велоколясок и пересадки инвалидов на них (лист 31) Раздел II. Помещения столовой (листы 32 - 35) Обеденный зал. Функциональные зоны (лист 32) Обеденный зал (жилая группа) (листы 33 - 34) Обеденный и зрительный залы. Примеры планировки (лист 35) Раздел III. Помещения медпункта (листы 36 - 39) Исходные данные (лист 36) Номенклатура мебели и оборудования (листы 37 - 38) Функциональные зоны (лист 39) Кабины и подсобные помещения электро- и теплолечения (лист 40) Помещения медпункта. Габаритные схемы (лист 41) Кабинеты медпункта (лист 42) Кабинеты ингаляции со стерилизационной (лист 43) Кабинеты лечебной физкультуры (лист 44) Залы лечебной физкультуры с фотарием. Изолятор (лист 45) Комната для ванны подводного массажа (лист 46) Приемно-карантинное отделение. Изолятор. Примеры планировки (лист 47) Изолятор. Пример планировки (лист 48) Помещения для примерки и подгонки протезов. Пример планировки (лист 49) Раздел IV. Клубные помещения (листы 50-54) Зрительный зал (листы 50-51) Зрительный зал. Пример планировки (лист 52) Клубные помещения (лист 53-54) Раздел V. Учебные помещения (листы 55-60) Мебель и оборудование (листы 55-56) Учебные помещения (лист 57) Лаборатории. Габаритные схемы (лист 58-59) Учебные помещения. Примеры планировки (лист 60) Раздел VI. Производственные мастерские (листы 61-68) Номенклатура мебели и оборудования (лист 61) Мебель и оборудование (лист 62) Функционально-технологические зоны (лист 63) Производственные мастерские (лист 64) Номенклатура мебели и оборудования мастерских ремонта радио- и телеаппаратуры (лист 65) Производственные мастерские. Примеры планировки (лист 66) Пандусы и кабины лифтов. Основные размеры (лист 67) Типы лифтов (лист 68) |
| Разработан: | ЦНИИЭП комплексов и зданий культуры, спорта и управления им. Б.С. Мезенцева Госгражданстроя ЦНИИЭП жилища ЦНИИЭП учебных зданий |
| Утверждён: | 16.06.1981 Госгражданстрой (Gosgrazhdanstroy 188) |
| Издан: | Стройиздат (1985 г. ) |
| Расположен в: | |
| Нормативные ссылки: |
|
















































































