Информационная система
«Ёшкин Кот»

Скачать базу одним архивом
Скачать обновления
История создания базы
Карта сайта

Скачать Типовые материалы для проектирования 503-0-47.86 Альбом 1. Пояснительная записка. Чертежи, схемы и планы решений

Дата актуализации: 10.08.2017

Типовые материалы для проектирования 503-0-47.86

Альбом 1. Пояснительная записка. Чертежи, схемы и планы решений

Обозначение: Типовые материалы для проектирования 503-0-47.86
Обозначение англ: 503-0-47.86
Статус:cправочные материалы, мп, тпр
Название рус.:Альбом 1. Пояснительная записка. Чертежи, схемы и планы решений
Дата добавления в базу:01.09.2013
Дата актуализации:05.05.2017
Дата введения:01.01.1987
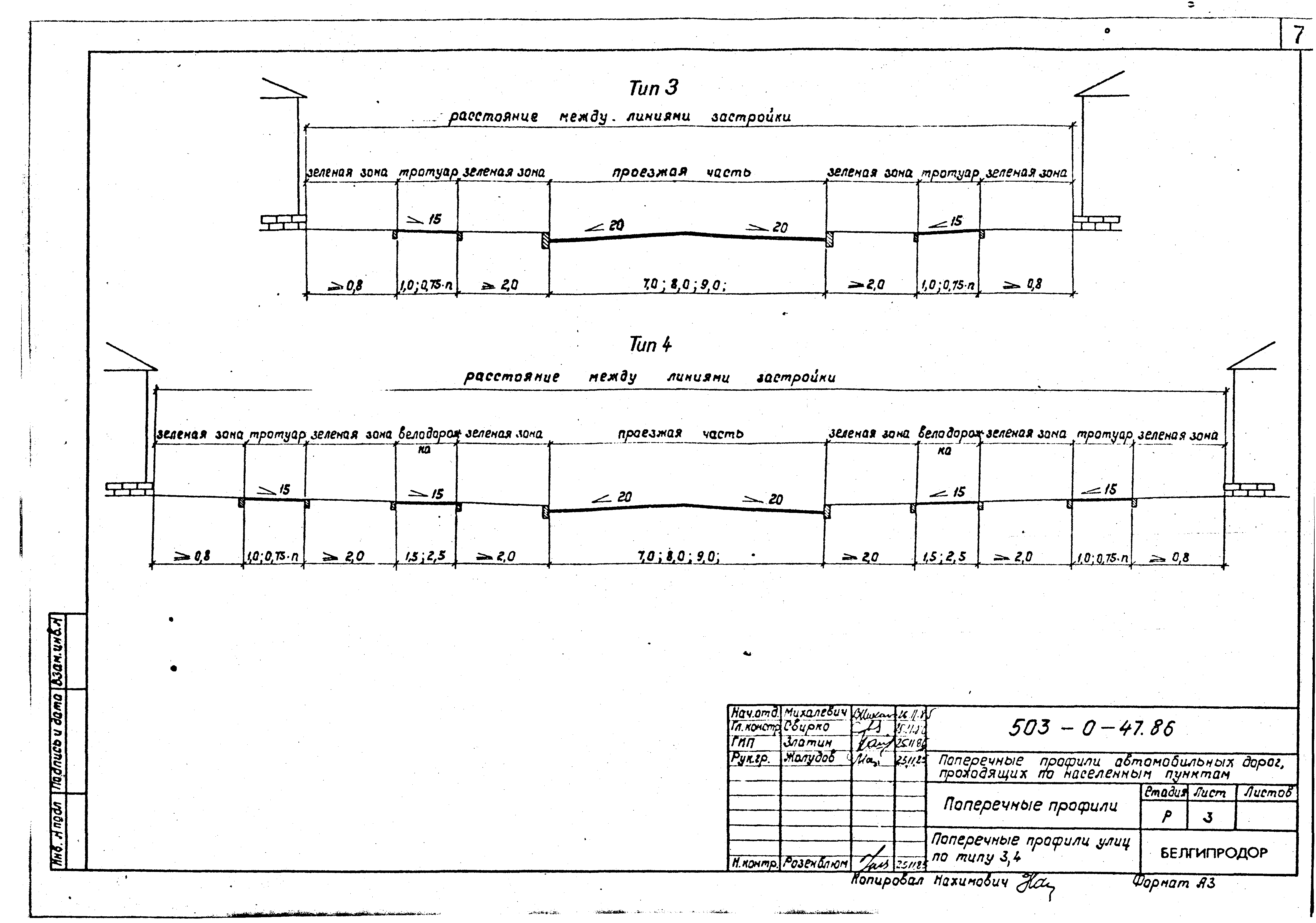
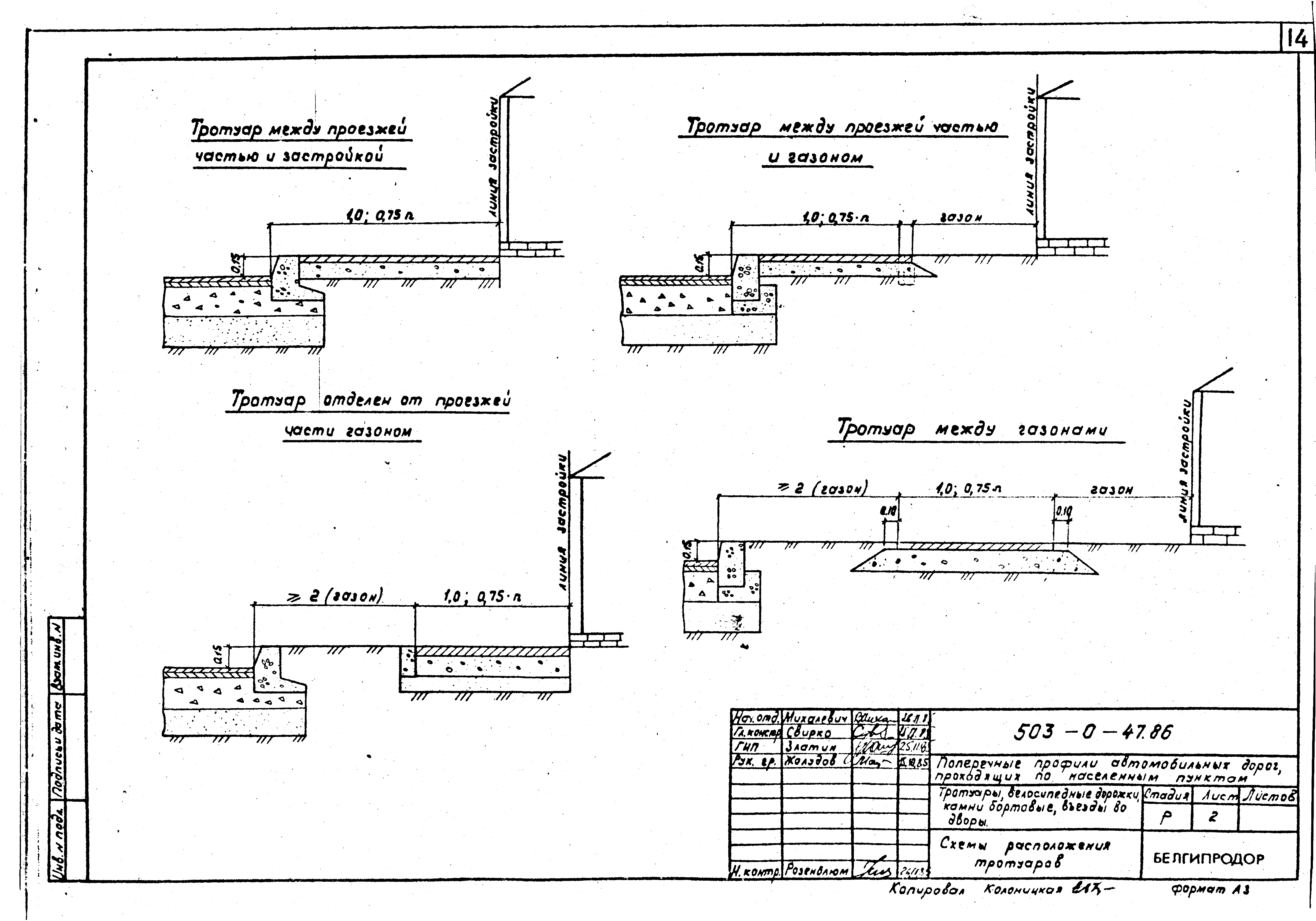
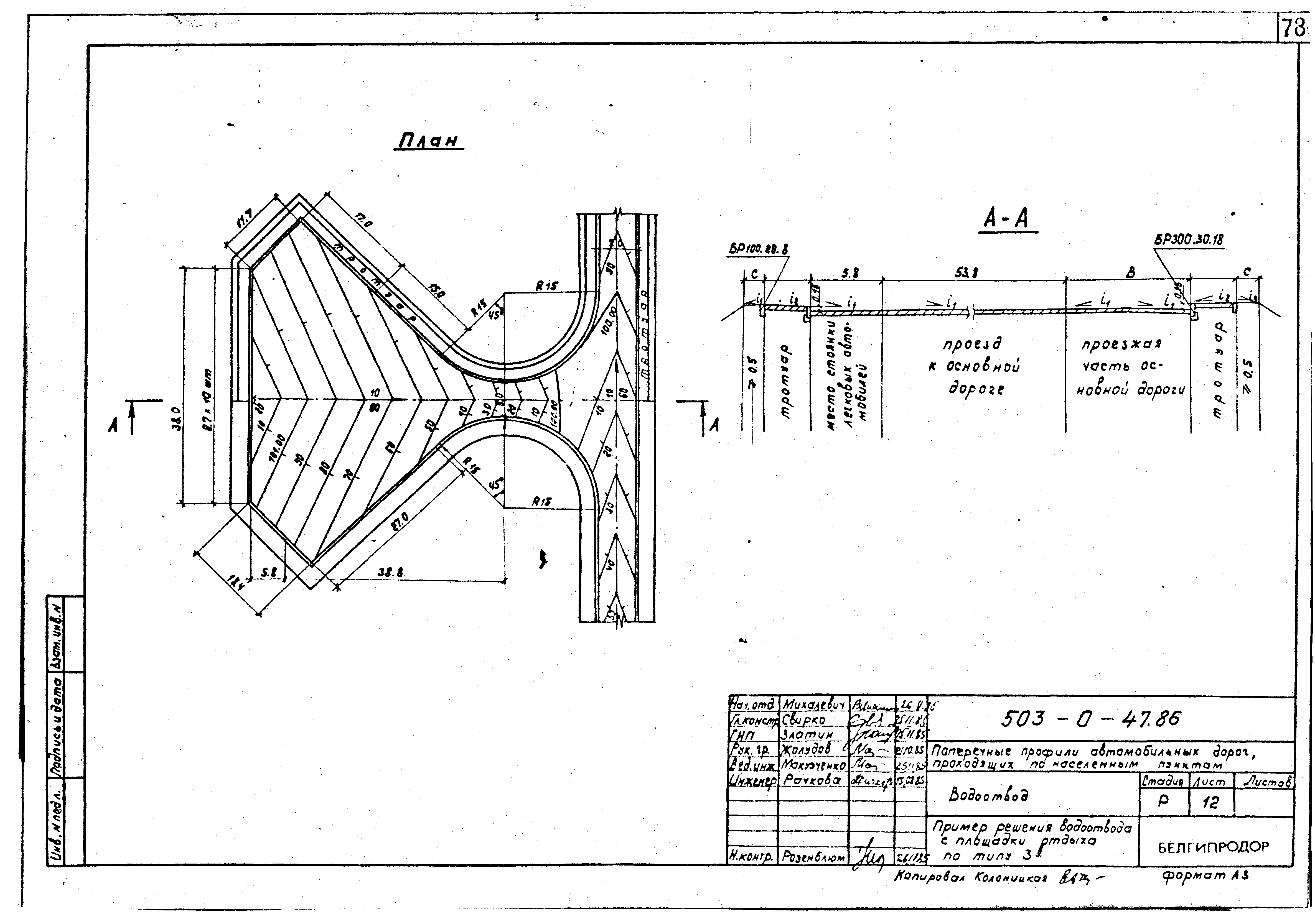
Область применения:Типовые материалы для проектирования распространяются на капитальный ремонт и реконструкцию существующих автомобильных дорог, а также на строительство новых дорог в соответствии с требованиями СНиП 2.05.02-85 и СНиП II-60-75* во второй дорожно-климатической зоне.
Разработан: БелгипродорНИИ Минавтодора БССР
Утверждён:31.03.1986 Миндорстрой БССР (BSSR Mindorstroy 35)
Принят:04.03.1986 Госстрой БССР (BSSR Gosstroy 04-8/772)
Издан: ЦИТП Госстроя СССР (CITP, Gosstroy (USSR) 1988 г. )
Расположен в:Техническая документация Строительство Справочные документы Типовые строительные конструкции, изделия и узлы Общероссийский строительный каталог Промышленные предприятия, здания и сооружения Предприятия, здания и сооружения транспорта Транспорт автомобильный Материалы общие
Заменяет собой:
  • Типовой проект 503-0-31
Типовые материалы для проектирования 503-0-47.86Типовые материалы для проектирования 503-0-47.86Типовые материалы для проектирования 503-0-47.86Типовые материалы для проектирования 503-0-47.86Типовые материалы для проектирования 503-0-47.86Типовые материалы для проектирования 503-0-47.86Типовые материалы для проектирования 503-0-47.86Типовые материалы для проектирования 503-0-47.86Типовые материалы для проектирования 503-0-47.86Типовые материалы для проектирования 503-0-47.86Типовые материалы для проектирования 503-0-47.86Типовые материалы для проектирования 503-0-47.86Типовые материалы для проектирования 503-0-47.86Типовые материалы для проектирования 503-0-47.86Типовые материалы для проектирования 503-0-47.86Типовые материалы для проектирования 503-0-47.86Типовые материалы для проектирования 503-0-47.86Типовые материалы для проектирования 503-0-47.86Типовые материалы для проектирования 503-0-47.86Типовые материалы для проектирования 503-0-47.86Типовые материалы для проектирования 503-0-47.86Типовые материалы для проектирования 503-0-47.86Типовые материалы для проектирования 503-0-47.86Типовые материалы для проектирования 503-0-47.86Типовые материалы для проектирования 503-0-47.86Типовые материалы для проектирования 503-0-47.86Типовые материалы для проектирования 503-0-47.86Типовые материалы для проектирования 503-0-47.86Типовые материалы для проектирования 503-0-47.86Типовые материалы для проектирования 503-0-47.86Типовые материалы для проектирования 503-0-47.86Типовые материалы для проектирования 503-0-47.86Типовые материалы для проектирования 503-0-47.86Типовые материалы для проектирования 503-0-47.86Типовые материалы для проектирования 503-0-47.86Типовые материалы для проектирования 503-0-47.86Типовые материалы для проектирования 503-0-47.86Типовые материалы для проектирования 503-0-47.86Типовые материалы для проектирования 503-0-47.86Типовые материалы для проектирования 503-0-47.86Типовые материалы для проектирования 503-0-47.86Типовые материалы для проектирования 503-0-47.86Типовые материалы для проектирования 503-0-47.86Типовые материалы для проектирования 503-0-47.86Типовые материалы для проектирования 503-0-47.86Типовые материалы для проектирования 503-0-47.86Типовые материалы для проектирования 503-0-47.86Типовые материалы для проектирования 503-0-47.86Типовые материалы для проектирования 503-0-47.86Типовые материалы для проектирования 503-0-47.86Типовые материалы для проектирования 503-0-47.86Типовые материалы для проектирования 503-0-47.86Типовые материалы для проектирования 503-0-47.86Типовые материалы для проектирования 503-0-47.86Типовые материалы для проектирования 503-0-47.86Типовые материалы для проектирования 503-0-47.86Типовые материалы для проектирования 503-0-47.86Типовые материалы для проектирования 503-0-47.86Типовые материалы для проектирования 503-0-47.86Типовые материалы для проектирования 503-0-47.86Типовые материалы для проектирования 503-0-47.86Типовые материалы для проектирования 503-0-47.86Типовые материалы для проектирования 503-0-47.86Типовые материалы для проектирования 503-0-47.86Типовые материалы для проектирования 503-0-47.86Типовые материалы для проектирования 503-0-47.86Типовые материалы для проектирования 503-0-47.86Типовые материалы для проектирования 503-0-47.86Типовые материалы для проектирования 503-0-47.86Типовые материалы для проектирования 503-0-47.86Типовые материалы для проектирования 503-0-47.86Типовые материалы для проектирования 503-0-47.86Типовые материалы для проектирования 503-0-47.86Типовые материалы для проектирования 503-0-47.86Типовые материалы для проектирования 503-0-47.86Типовые материалы для проектирования 503-0-47.86Типовые материалы для проектирования 503-0-47.86Типовые материалы для проектирования 503-0-47.86Типовые материалы для проектирования 503-0-47.86Типовые материалы для проектирования 503-0-47.86Типовые материалы для проектирования 503-0-47.86Типовые материалы для проектирования 503-0-47.86Типовые материалы для проектирования 503-0-47.86Типовые материалы для проектирования 503-0-47.86Типовые материалы для проектирования 503-0-47.86Типовые материалы для проектирования 503-0-47.86Типовые материалы для проектирования 503-0-47.86

© 2013 Ёшкин Кот :-) Карта сайта