| ||||||||||||||||||||||||
Скачать Серия 1.031 КЛ-2 Выпуск 2. Часть 1. Изделия металлические закладные для железобетонных изделий, выпускаемых предприятиями ППОО ДСК-2Дата актуализации: 10.08.2017
|
| Обозначение: | Серия 1.031 КЛ-2 |
| Обозначение англ: | Series 1.031 КЛ-2 |
| Статус: | действует |
| Название рус.: | Выпуск 2. Часть 1. Изделия металлические закладные для железобетонных изделий, выпускаемых предприятиями ППОО ДСК-2 |
| Дата добавления в базу: | 01.10.2014 |
| Дата актуализации: | 05.05.2017 |
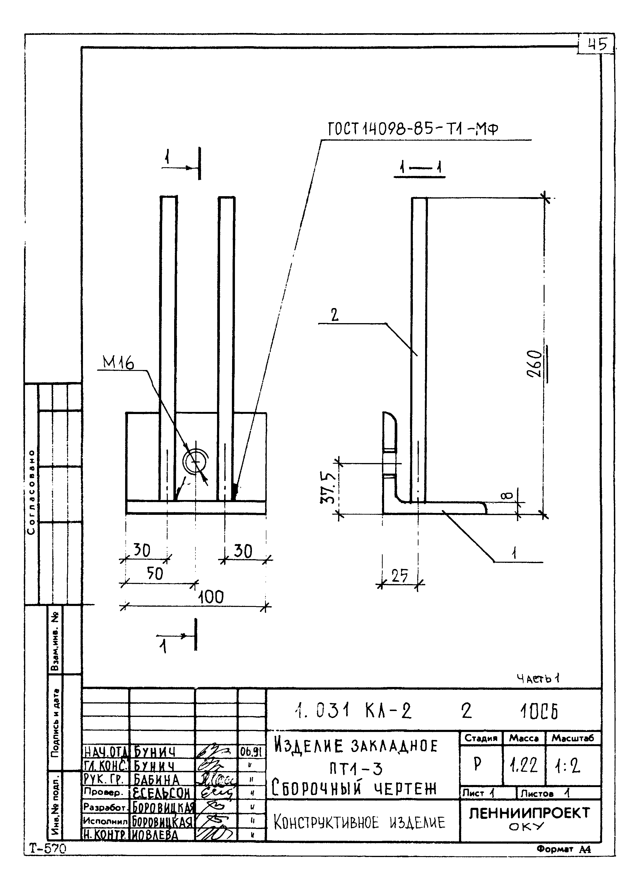
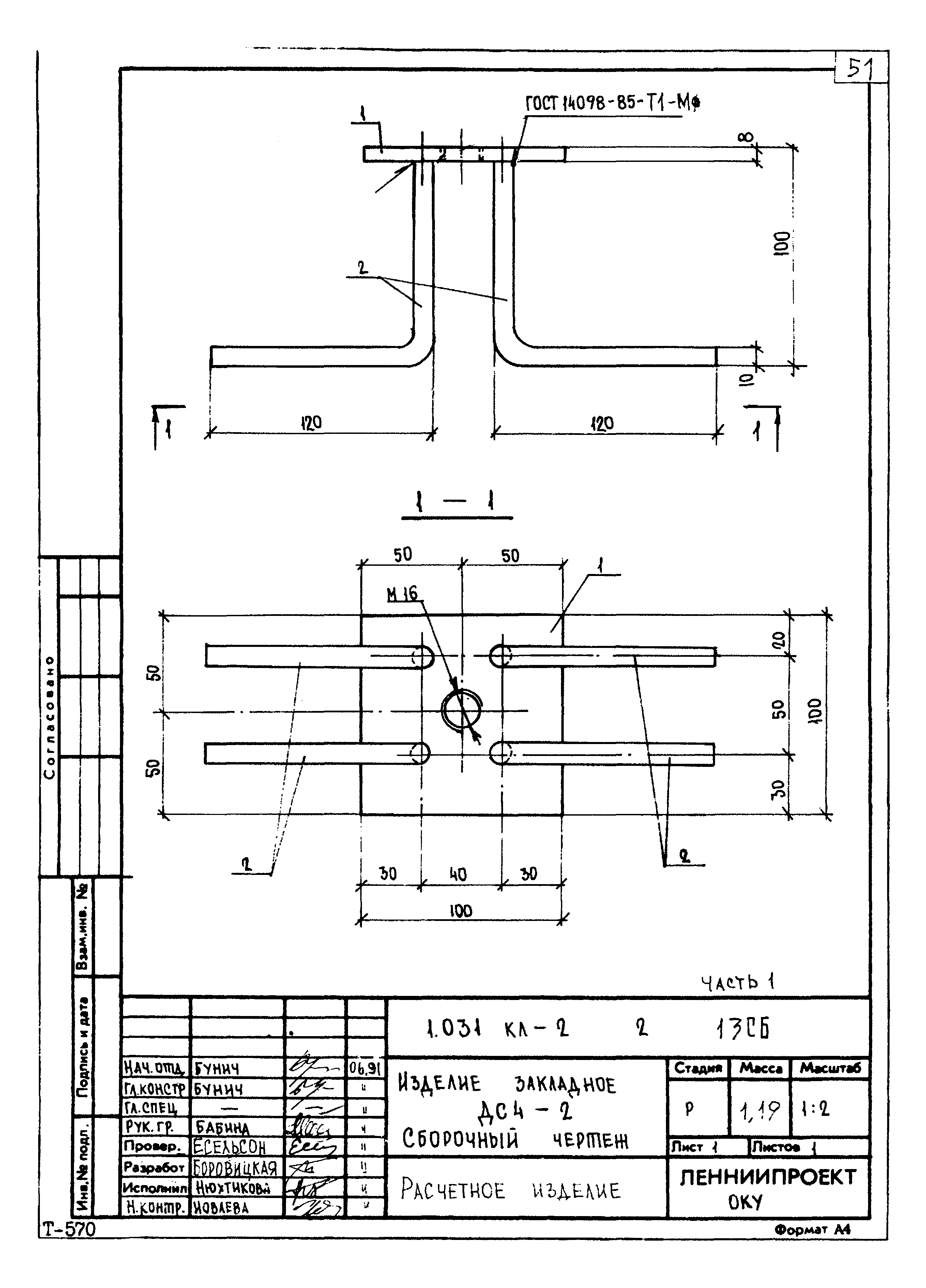
| Оглавление: | Информационная карта Состав серии Содержание Пояснительная записка 1.031 КЛ-2 2 01 Изделие закладное Т1-1 1.031 КЛ-2 2 01СБ Изделие закладное Т1-1. Сборочный чертеж 1.031 КЛ-2 2 02 Изделие закладное Т1-3 1.031 КЛ-2 2 02СБ Изделие закладное Т1-3. Сборочный чертеж 1.031 КЛ-2 2 03 Изделие закладное Т1-11 1.031 КЛ-2 2 03СБ Изделие закладное Т1-11. Сборочный чертеж 1.031 КЛ-2 2 04 Изделие закладное Т2-3 1.031 КЛ-2 2 04СБ Изделие закладное Т2-3. Сборочный чертеж 1.031 КЛ-2 2 05 Изделие закладное Т2-3А 1.031 КЛ-2 2 05СБ Изделие закладное Т2-3А. Сборочный чертеж 1.031 КЛ-2 2 06 Изделие закладное Т2-3Б 1.031 КЛ-2 2 06СБ Изделие закладное Т2-3Б. Сборочный чертеж 1.031 КЛ-2 2 07 Изделие закладное Т3-3 1.031 КЛ-2 2 07СБ Изделие закладное Т3-3. Сборочный чертеж 1.031 КЛ-2 2 08 Изделие закладное НТ1-1 1.031 КЛ-2 2 08СБ Изделие закладное НТ1-1. Сборочный чертеж 1.031 КЛ-2 2 09 Изделие закладное НТ1-3 1.031 КЛ-2 2 09СБ Изделие закладное НТ1-3. Сборочный чертеж 1.031 КЛ-2 2 10 Изделие закладное ПТ1-3 1.031 КЛ-2 2 10СБ Изделие закладное ПТ1-3. Сборочный чертеж 1.031 КЛ-2 2 11 Изделие закладное ПТ-2 1.031 КЛ-2 2 11СБ Изделие закладное ПТ-2. Сборочный чертеж 1.031 КЛ-2 2 12 Изделие закладное ДС4-1 1.031 КЛ-2 2 12СБ Изделие закладное ДС4-1. Сборочный чертеж 1.031 КЛ-2 2 13 Изделие закладное ДС4-2 1.031 КЛ-2 2 13СБ Изделие закладное ДС4-2. Сборочный чертеж 1.031 КЛ-2 2 14 Изделие закладное ДС4-2А 1.031 КЛ-2 2 14СБ Изделие закладное ДС4-2А. Сборочный чертеж 1.031 КЛ-2 2 15 Изделие закладное ДС4-2Б 1.031 КЛ-2 2 15СБ Изделие закладное ДС4-2Б. Сборочный чертеж 1.031 КЛ-2 2 16 Изделие закладное ДС4-7 1.031 КЛ-2 2 16СБ Изделие закладное ДС4-7. Сборочный чертеж 1.031 КЛ-2 2 17 Изделие закладное ДС4-7-1 1.031 КЛ-2 2 17СБ Изделие закладное ДС4-7-1. Сборочный чертеж 1.031 КЛ-2 2 18 Изделие закладное ДС5-2 1.031 КЛ-2 2 18СБ Изделие закладное ДС5-2. Сборочный чертеж 1.031 КЛ-2 2 19 Изделие закладное ДС5-2-1 1.031 КЛ-2 2 19СБ Изделие закладное ДС5-2-1. Сборочный чертеж 1.031 КЛ-2 2 20 Изделие закладное ДС5-3 1.031 КЛ-2 2 20СБ Изделие закладное ДС5-3. Сборочный чертеж 1.031 КЛ-2 2 21 Изделие закладное ДС5-4 1.031 КЛ-2 2 21СБ Изделие закладное ДС5-4. Сборочный чертеж 1.031 КЛ-2 2 22 Изделие закладное ДС5-5 1.031 КЛ-2 2 22СБ Изделие закладное ДС5-5. Сборочный чертеж 1.031 КЛ-2 2 23 Изделие закладное ДС5-6 1.031 КЛ-2 2 23СБ Изделие закладное ДС5-6. Сборочный чертеж 1.031 КЛ-2 2 24 Изделие закладное ДС5-11 1.031 КЛ-2 2 24СБ Изделие закладное ДС5-11. Сборочный чертеж 1.031 КЛ-2 2 25 Изделие закладное ДС5-15 1.031 КЛ-2 2 25СБ Изделие закладное ДС5-15. Сборочный чертеж 1.031 КЛ-2 2 26 Изделие закладное ДС5-15-1 1.031 КЛ-2 2 26СБ Изделие закладное ДС5-15-1. Сборочный чертеж 1.031 КЛ-2 2 27 Изделие закладное ДС5-17 1.031 КЛ-2 2 27СБ Изделие закладное ДС5-17. Сборочный чертеж 1.031 КЛ-2 2 28 Изделие закладное ДС5-18 1.031 КЛ-2 2 28СБ Изделие закладное ДС5-18. Сборочный чертеж 1.031 КЛ-2 2 29 Изделие закладное ДС5-20 1.031 КЛ-2 2 29СБ Изделие закладное ДС5-20. Сборочный чертеж 1.031 КЛ-2 2 30 Изделие закладное ДС5-26 1.031 КЛ-2 2 30СБ Изделие закладное ДС5-26. Сборочный чертеж 1.031 КЛ-2 2 31 Изделие закладное ДС5-27 1.031 КЛ-2 2 31СБ Изделие закладное ДС5-27. Сборочный чертеж 1.031 КЛ-2 2 32 Изделие закладное ДС7-3 1.031 КЛ-2 2 32СБ Изделие закладное ДС7-3. Сборочный чертеж 1.031 КЛ-2 2 33 Изделие закладное ДС11-2 1.031 КЛ-2 2 33СБ Изделие закладное ДС11-2. Сборочный чертеж 1.031 КЛ-2 2 34 Изделие закладное ДС11-2А 1.031 КЛ-2 2 34СБ Изделие закладное ДС11-2А. Сборочный чертеж 1.031 КЛ-2 2 35 Изделие закладное ДС11-2Б 1.031 КЛ-2 2 35СБ Изделие закладное ДС11-2Б. Сборочный чертеж 1.031 КЛ-2 2 36 Изделие закладное ДС11-2В 1.031 КЛ-2 2 36СБ Изделие закладное ДС11-2В. Сборочный чертеж 1.031 КЛ-2 2 37 Изделие закладное ДС11-2Г 1.031 КЛ-2 2 37СБ Изделие закладное ДС11-2Г. Сборочный чертеж 1.031 КЛ-2 2 38 Изделие закладное ДС11-3 1.031 КЛ-2 2 38СБ Изделие закладное ДС11-3. Сборочный чертеж 1.031 КЛ-2 2 39 Изделие закладное ДС11-7 1.031 КЛ-2 2 39СБ Изделие закладное ДС11-7. Сборочный чертеж |
| Разработан: | Ленниипроект |
| Утверждён: | 30.09.1991 Ленниипроект (62-у) |
| Расположен в: |









































































































