| ||||||||||||||||||||||||||||||||
Скачать Серия 1.231-3 Выпуск 2. Перегородки на металлическом каркасе. Рабочие чертежиДата актуализации: 10.08.2017
|
| Обозначение: | Серия 1.231-3 |
| Обозначение англ: | Series 1.231-3 |
| Статус: | заменен |
| Название рус.: | Выпуск 2. Перегородки на металлическом каркасе. Рабочие чертежи |
| Дата добавления в базу: | 01.09.2013 |
| Дата актуализации: | 05.05.2017 |
| Дата введения: | 01.01.1984 |
| Область применения: | Альбом содержит набор перегородок поэлементной сборки на металлическом каркасе, обеспечивающий компоновку перегородок с минимальным отходом С.Г.Ш в зданиях с каркасом ИИ-04. Перегородки поэлементной сборки предназначены для применения в проектах общественных зданий (предприятия общественного питания, торговли, бытового обслуживания, школ, учебных, лечебных и детских учреждений), а также в гостиницах, административно-бытовых зданиях и др. |
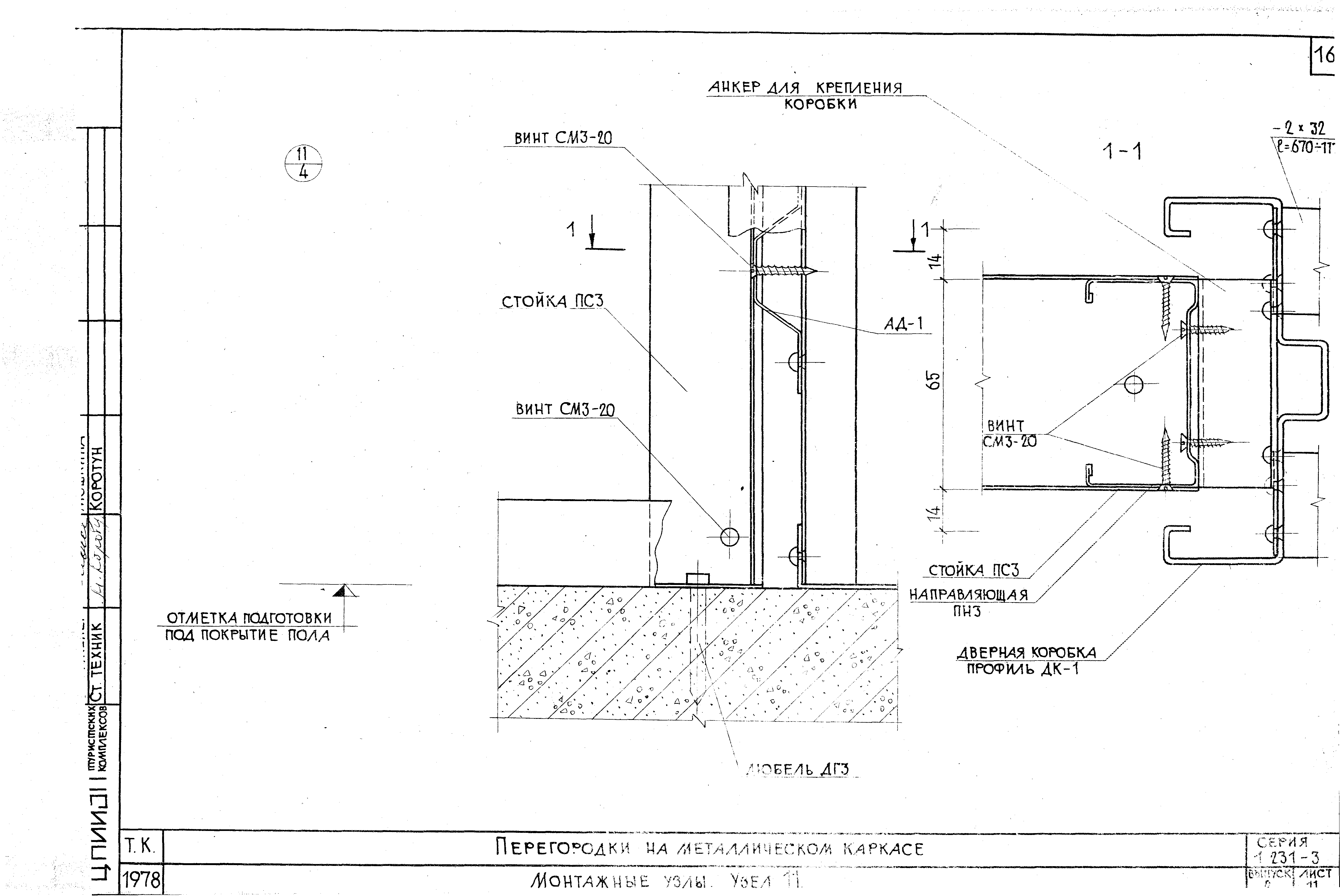
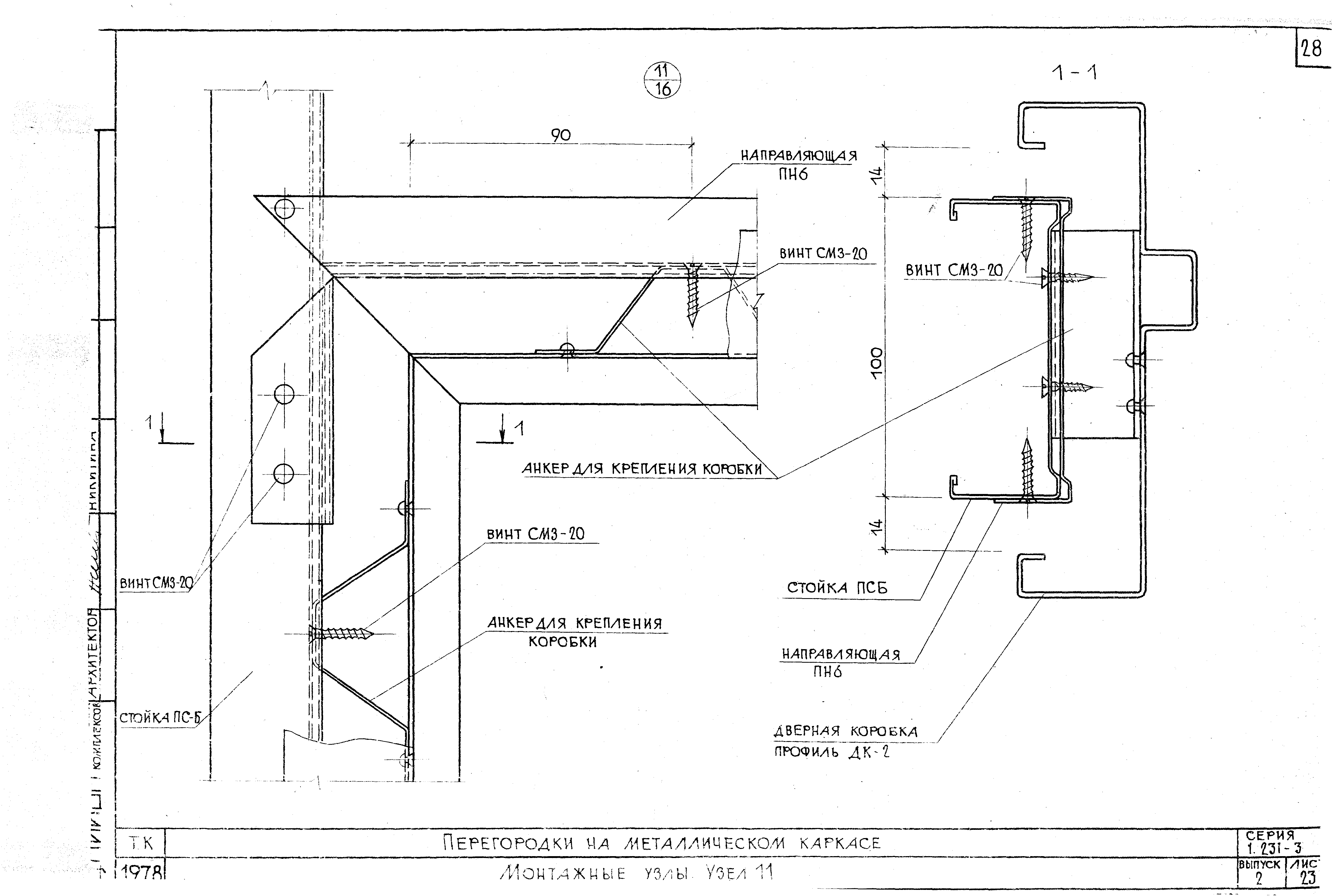
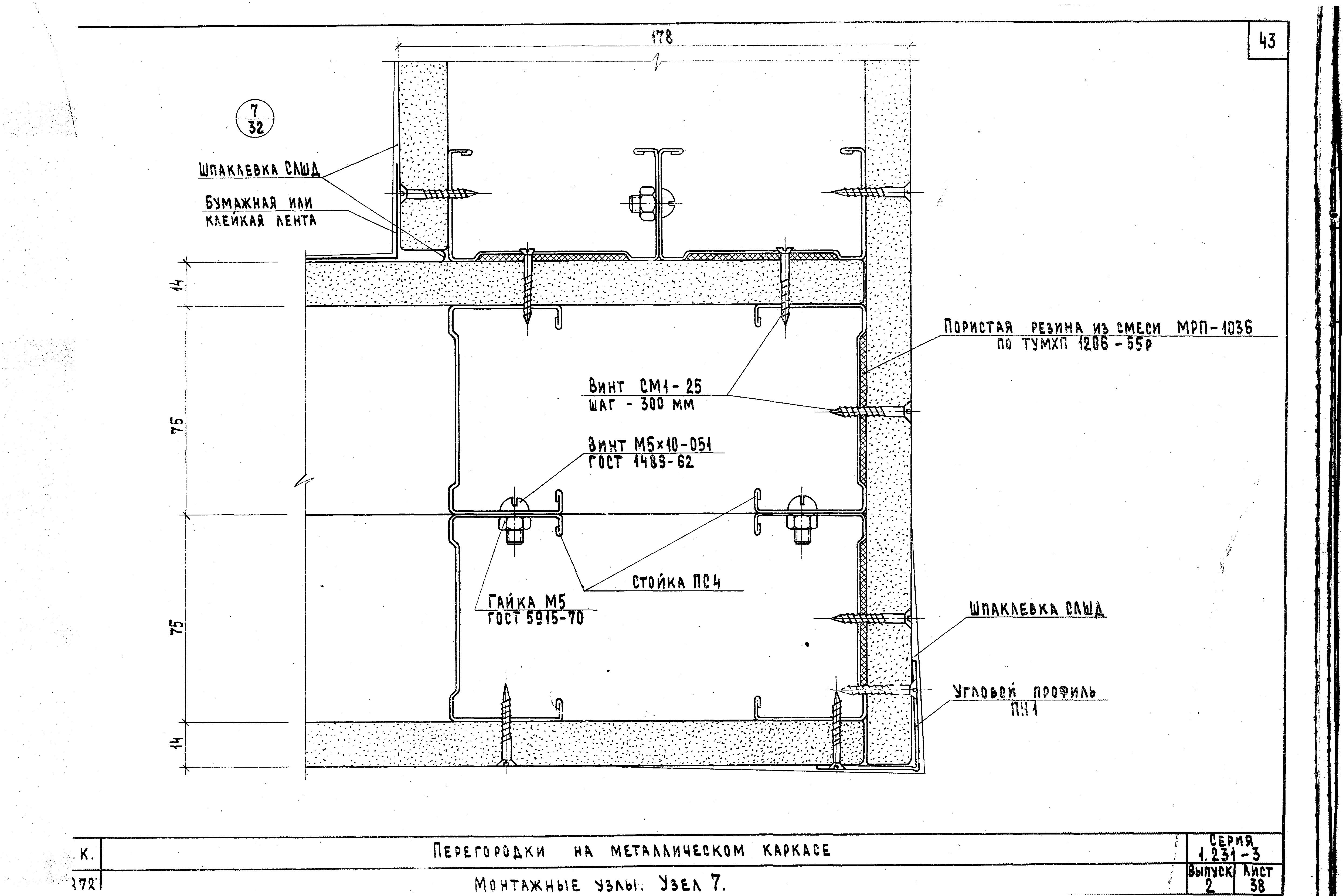
| Оглавление: | 1. Содержание 2. Пояснительная записка 3. Номенклатура марок и технические характеристики перегородок 4. Номенклатура марок и технические характеристики перегородок 5. Номенклатура марок и технические характеристики перегородок 6. Фрагмент перегородок на металлическом каркасе ПМ-1/ ПМ-2м, ПМ-3, ПМ-4м/ 7. Монтажные узлы 1, 2, 3 8. Монтажные узлы. Узел 3. Вариант с деревянной коробкой 9. Монтажные узлы 4, 5 10. Монтажные узлы 6, 7 11. Монтажные узлы 8, 9 12. Монтажные узлы. Узел 10 13. Монтажные узлы. Узел 11 14. Монтажные узлы 1а, 2а, 3а 15. Монтажные узлы 4а, 5а 16. Монтажные узлы 6а, 7а 17. Монтажные узлы 8а, 9а 18. Фрагмент перегородок на металлическом каркасе ПМ-5/ ПМ-6м, ПМ-7, ПМ-8м/ 19. Монтажные узлы 1, 2, 3 20. Монтажные узлы 4, 5 21. Монтажные узлы. Узел 4. Вариант с деревянной коробкой 22. Монтажные узлы. Узел 6 23. Монтажные узлы 7, 8 24. Монтажные узлы 9, 10 25. Монтажные узлы. Узел 11 26. Монтажные узлы. Узел 12 27. Монтажные узлы 1а, 2а, 3а 28. Монтажные узлы 4а, 5а 29. Монтажные узлы. Узел 6а 30. Монтажные узлы. Узел 7а 31. Монтажные узлы. Узел 8а 32. Монтажные узлы 9а, 10а 32. Монтажный узел примыкания перегородки к подвесному потолку 34. Фрагмент перегородки на металлическом каркасе ПМ-9 35. Монтажные узлы 1, 2, 3 32. Монтажные узлы. Узел 3. Вариант с деревянной коробкой 32. Монтажные узлы. Узел 4 32. Монтажные узлы. Узел 5 32. Монтажные узлы. Узел 6 40. Монтажные узлы. Узел 7 41. Монтажные узлы 8, 9 42. Монтажные узлы. Узел 10 43. Монтажные узлы. Узел 11 44. Монтажные узлы. 1а, 2а, 3а 45. Монтажные узлы. Узел 4а 46. Монтажные узлы. Узел 5а 47. Монтажные узлы. Узел 6а 48. Монтажные узлы. Узел 7а 49. Монтажные узлы 8а, 9а 50. Гнутые профили из листовой стали. Верхние и нижние направляющие (полозы) ПН1/ ПН6 51. Гнутые профили из листовой стали. Стойки ПС1/ ПС6 52. Гнутые профили из листовой стали. Профили дверной коробки ДК1/ ДК3 53. Гнутые профили из листовой стали. Профиль торцевой /буртик/ ПБ-1; ПБ-2; ПБ-3; ПБ-4; ПБ-7; ПБ-8 54. Гнутые профили из листовой стали. Профиль для крепления облицовки ПУ-1 55. Крепежные элементы. Самосверлящие-самонарезающие винты с потайной головкой СМ 1-20/55 56. Крепежные элементы. Самосверлящие-самонарезающие винты с потайной головкой СМ 3-15/40 57. Крепежные элементы. Дюбель-гвоздь ДГ20/ ДГ80 |
| Разработан: | ЦНИИЭП торгово-бытовых зданий и туристских комплексов |
| Утверждён: | 18.10.1978 Государственный комитет по гражданскому строительству и архитектуре при Госстрое СССР (219) |
| Расположен в: | |
| Чем заменён: | |
| Нормативные ссылки: |
|


























































