| ||||||||||||||||||||||||||||
Скачать Серия 1.245.4-5 Выпуск 1. Потолки подвесные (реечные и панельные). Чертежи КМДата актуализации: 10.08.2017
|
| Обозначение: | Серия 1.245.4-5 |
| Обозначение англ: | Series 1.245.4-5 |
| Статус: | не определен законодательством |
| Название рус.: | Выпуск 1. Потолки подвесные (реечные и панельные). Чертежи КМ |
| Дата добавления в базу: | 01.09.2013 |
| Дата актуализации: | 05.05.2017 |
| Дата введения: | 01.01.1985 |
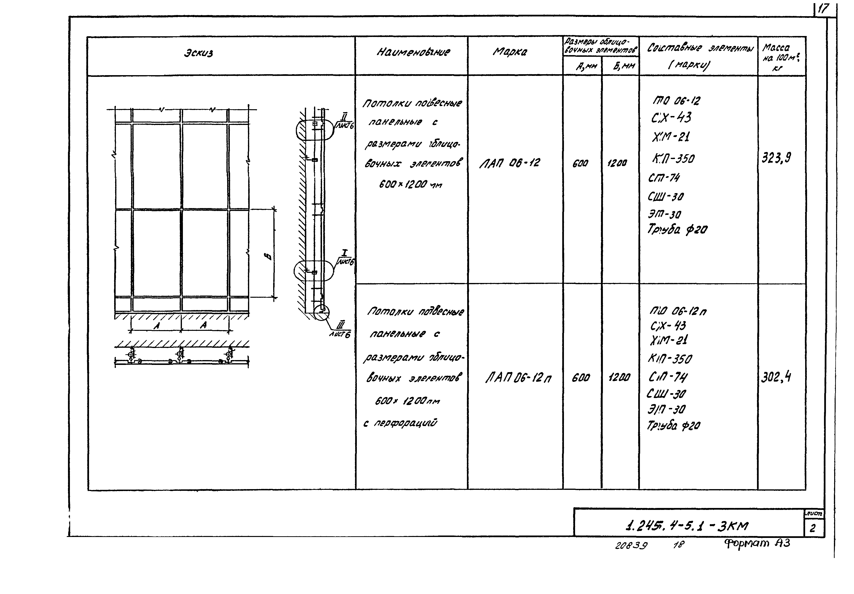
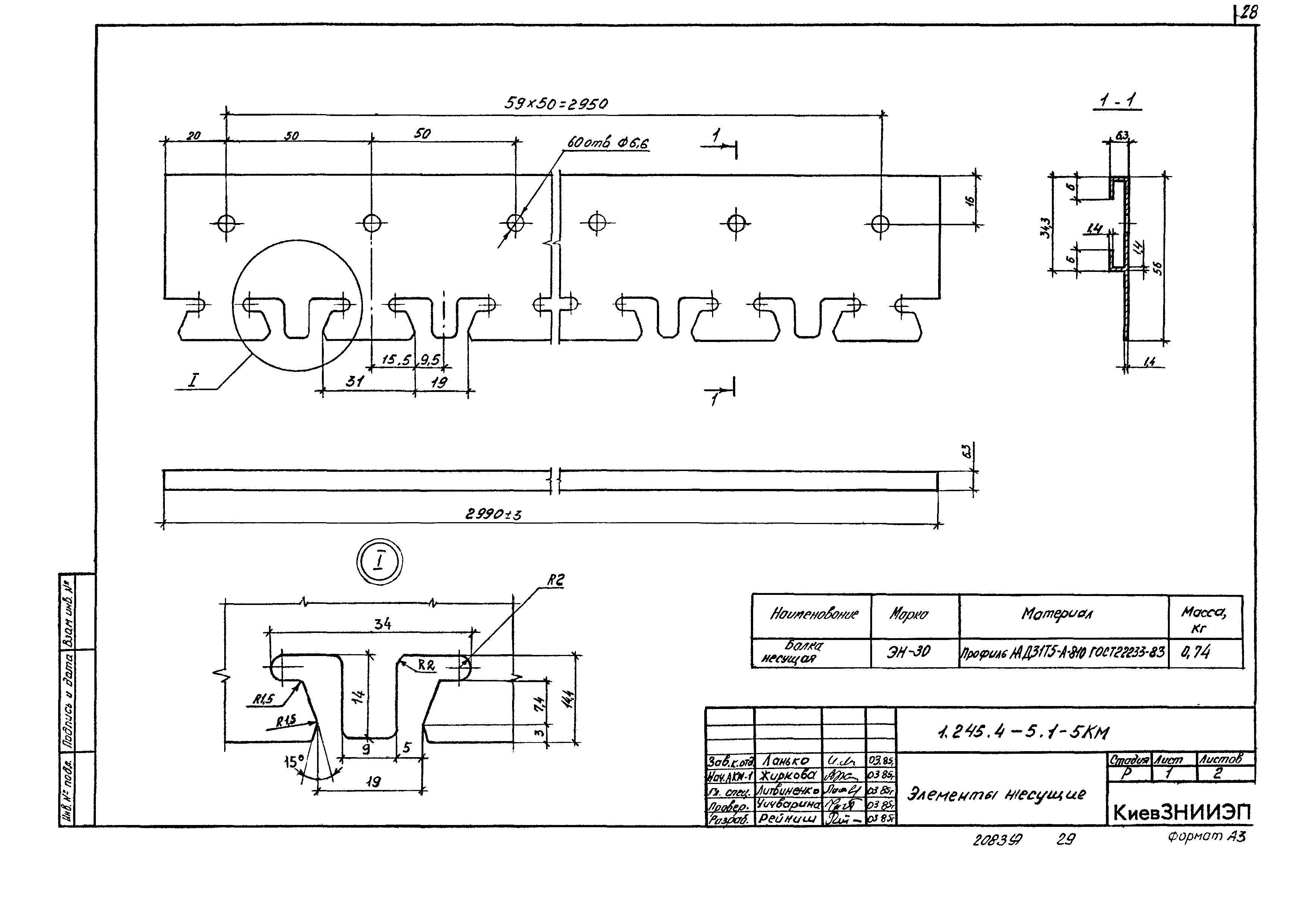
| Оглавление: | 1.245.4-5.1-0ТОКМ Техническое описание 1.245.4-5.1-1КМ Фрагменты и общие виды подвесных потолков 1.245.4-5.1-2КМ Номенклатура элементов подвесных потолков 1.245.4-5.1-3КМ Примеры компоновки подвесных потолков 1.245.4-5.1-4КМ Элементы облицовочные 1.245.4-5.1-5КМ Элементы несущие 1.245.4-5.1-6КМ Детали соединения и крепления подвесных потолков 1.245.4-5.1-7КМ Элемент пристенный 1.245.4-5.1-8КМ Ведомость расхода материалы 1.245.4-5.1-9КМ Карта технического уровня и качества продукции |
| Разработан: | КиевЗНИИЭП ЦНИИЭП им. Б.С. Мезенцева Госгражданстроя |
| Утверждён: | 11.10.1985 Государственный комитет по гражданскому строительству и архитектуре при Госстрое СССР (322) |
| Расположен в: | |
| Заменяет собой: |
















































