| ||||||||||||||||||||||||||||
Скачать Серия 1.090.1-2с Выпуск 2-9. Панели наружных стен трехслойные на жестких связях для зданий с высотой этажа 3,3 м. Рабочие чертежиДата актуализации: 10.08.2017
|
| Обозначение: | Серия 1.090.1-2с |
| Обозначение англ: | Series 1.090.1-2с |
| Статус: | не действует |
| Название рус.: | Выпуск 2-9. Панели наружных стен трехслойные на жестких связях для зданий с высотой этажа 3,3 м. Рабочие чертежи |
| Дата добавления в базу: | 01.09.2013 |
| Дата актуализации: | 05.05.2017 |
| Дата введения: | 01.02.1988 |
| Дата окончания срока действия: | 01.04.1991 |
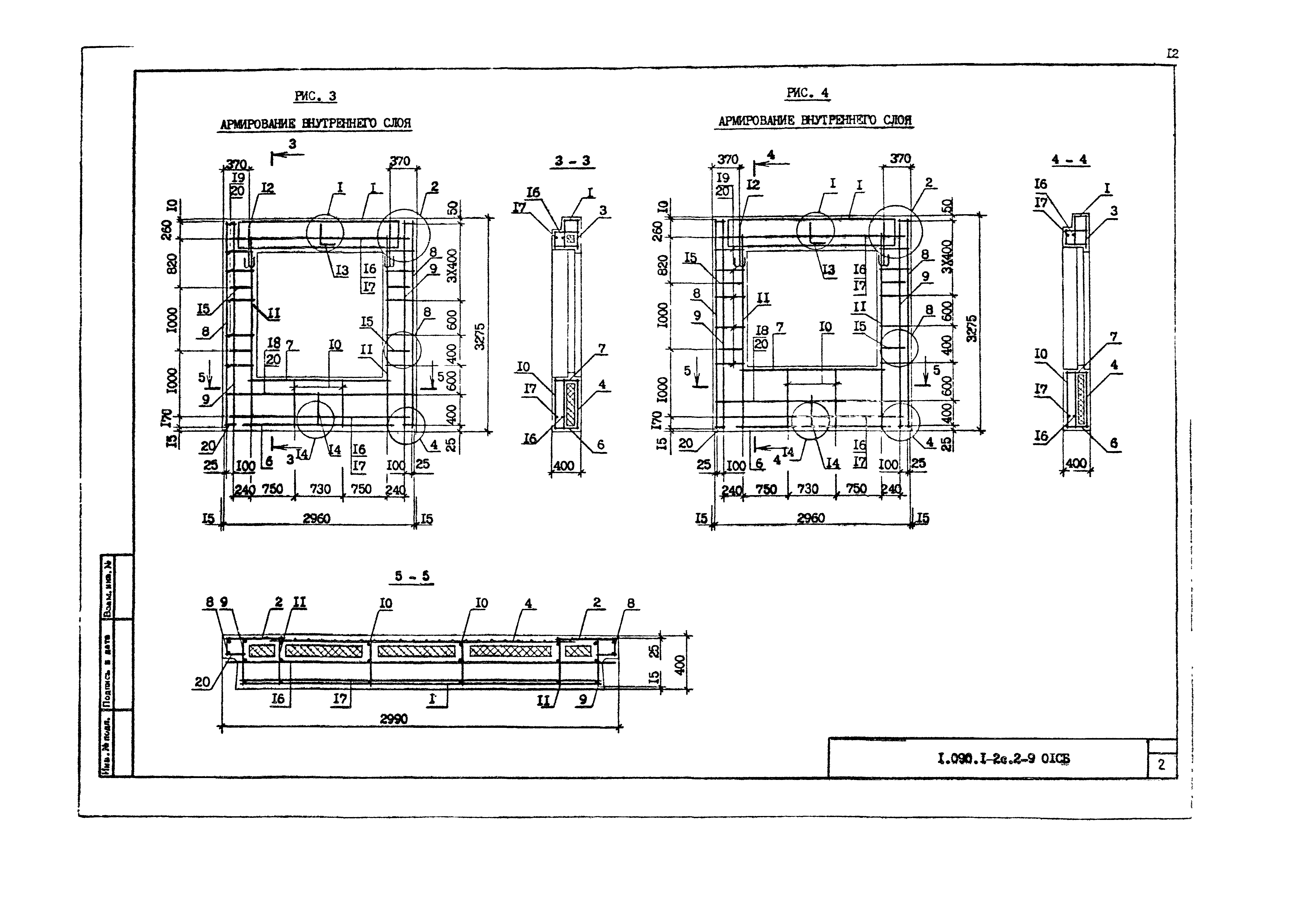
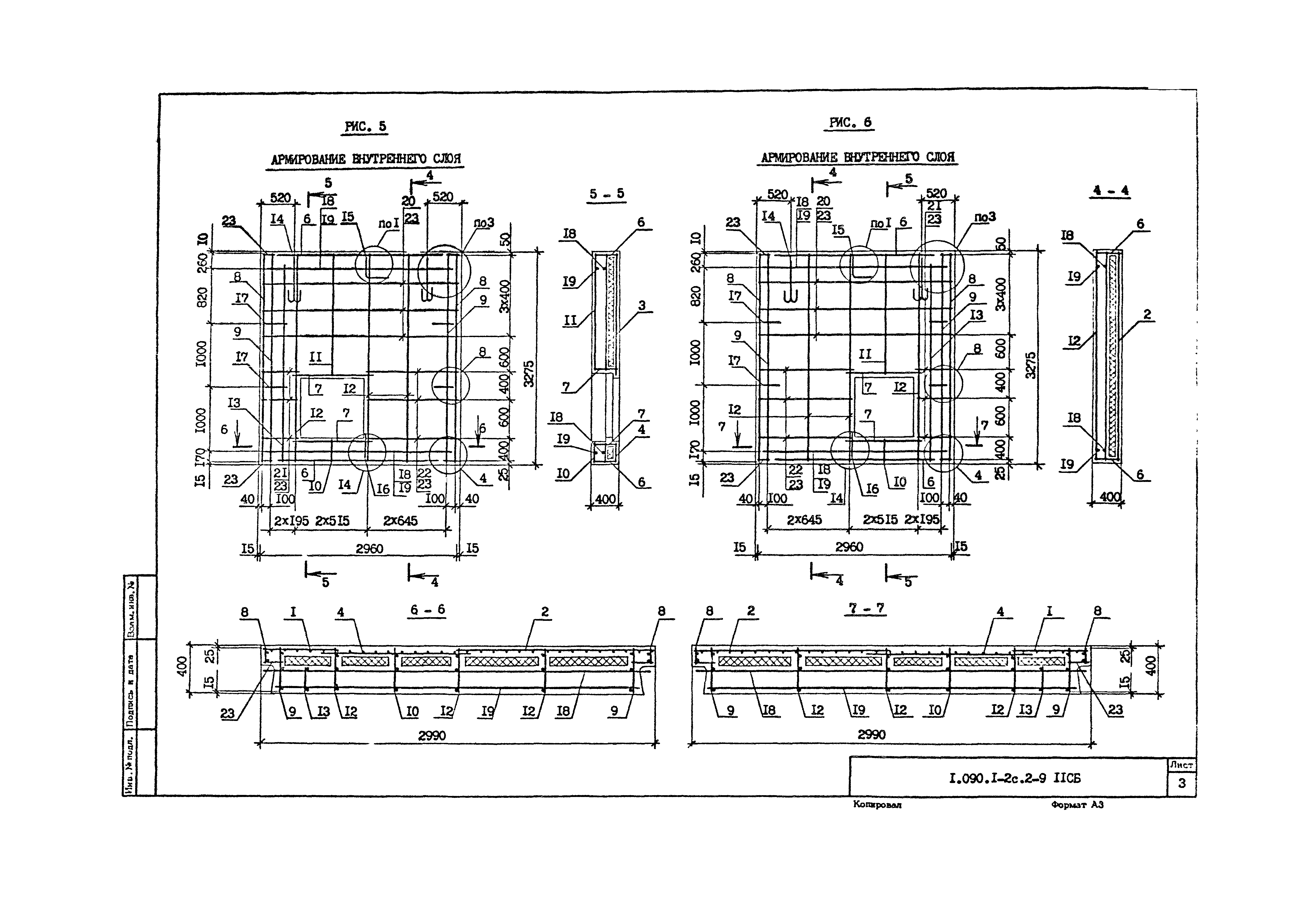
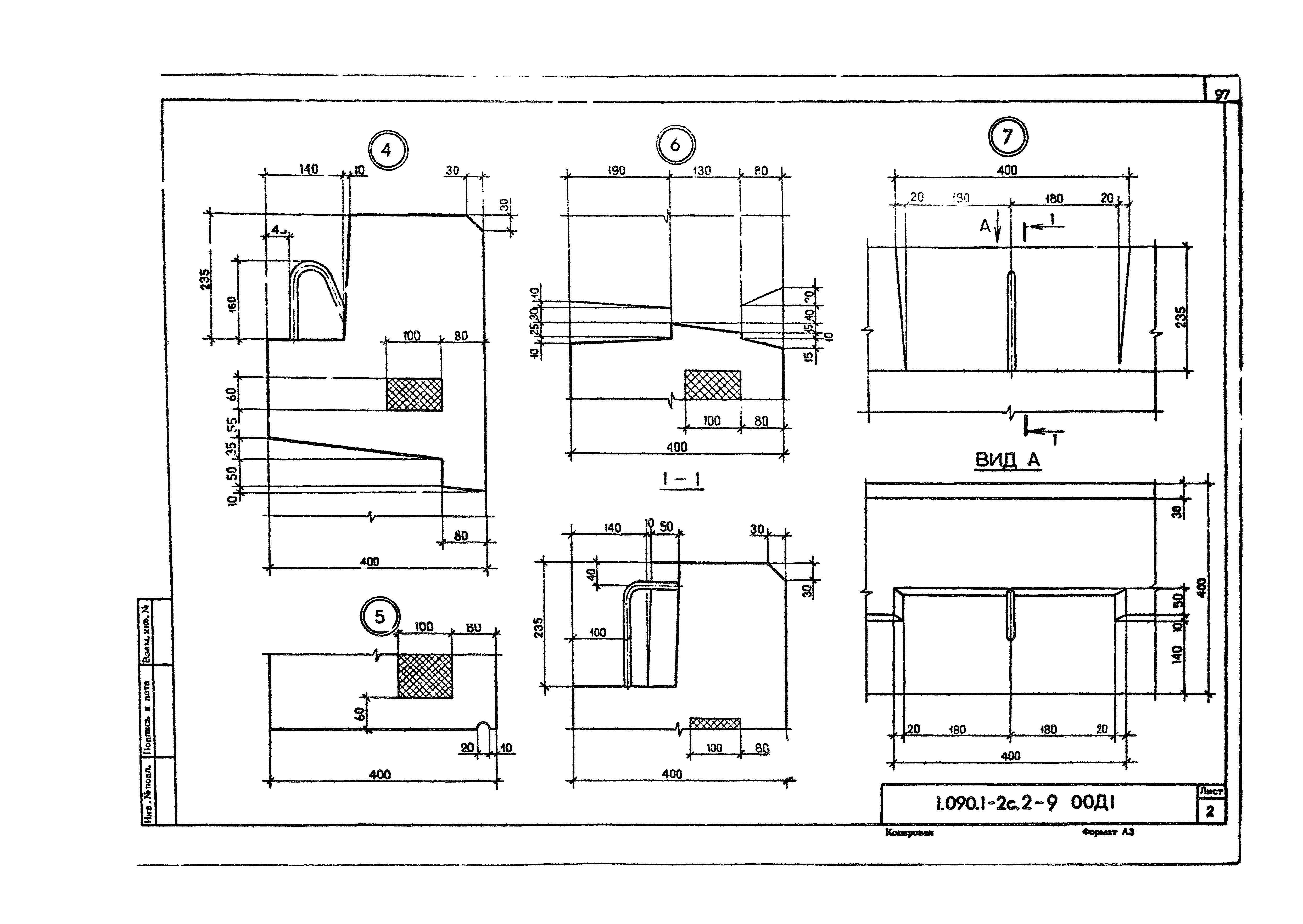
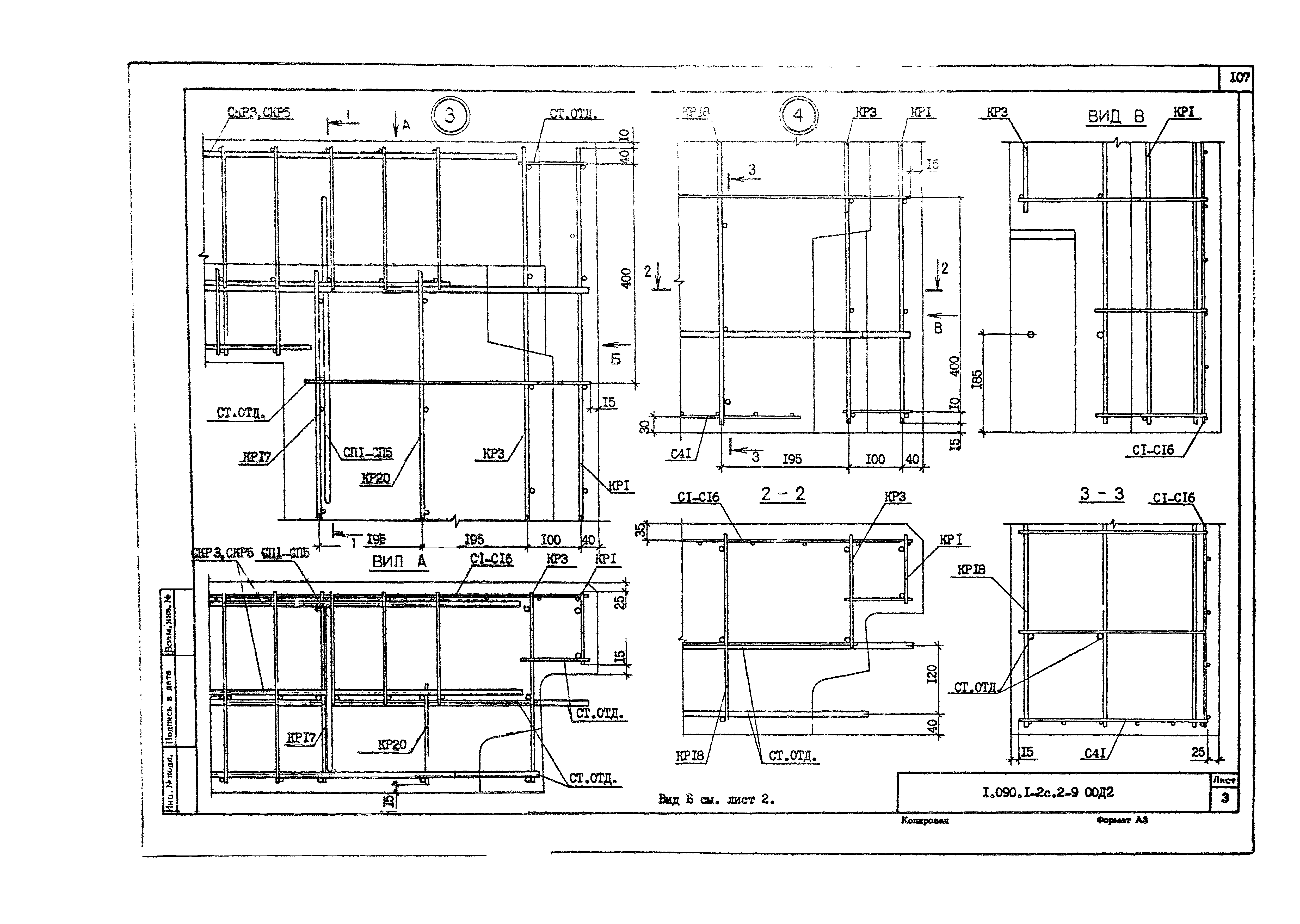
| Оглавление: | 1.090.1-2С.2-9 00ТО Техническое описание 1.090.1-2С.2-9 01 Панель ПСО30-3ПСО30 1.090.1-2С.2-9 02 Панель 4ПСО30-6ПСО30 1.090.1-2С.2-9 03 Панель 7ПСО30,33,4-2ПТ-С 1.090.1-2С.2-9 04 Панель 8ПСО30, 9ПСО30 1.090.1-2С.2-9 05 Панель ПСО33-2ПСО33 1.090.1-2С.2-9 06 Панель 1ПСО60-4ПСО60 1.090.1-2С.2-9 07 Панель 3ПСО60-4ПСО60 1.090.1-2С.2-9 08 Панель ПСБ30-2ПСБ30 1.090.1-2С.2-9 09 Панель ПСЛ30,33,4-2ПТ-С 1.090.1-2С.2-9 10 Панель ПСЛ30, 2ПСЛ30 1.090.1-2С.2-9 11 Панель 3ПСЛ30, 4ПСЛ30 1.090.1-2С.2-9 12 Панель 5ПСЛ30, 6ПСЛ30 1.090.1-2С.2-9 13 Панель 7ПСЛ30, 8ПСЛ30 1.090.1-2С.2-9 14 Панель 1ПСД30, 2ПСД30 1.090.1-2С.2-9 15 Панель 3ПСД30,33,4-ПТ-С 1.090.1-2С.2-9 16 Панель ПСД30 1.090.1-2С.2-9 17 Панель ПСД30,33,4-2ПТ-С 1.090.1-2С.2-9 18 Панель ПС30,ПС24,ПС18 1.090.1-2С.2-9 19 Панель ПС12,ПС30,16 1.090.1-2С.2-9 20 Панель 1ПС33-2ПС21 1.090.1-2С.2-9 21 Панель 1ПС15, 2ПС15 1.090.1-2С.2-9 00Д1 Узлы опалубочные 1.090.1-2С.2-9 00Д2 Узлы арматурные 1.090.1-2С.2-9 00РС Расход стали |
| Разработан: | ТбилЗНИИЭП |
| Расположен в: | |
| Чем заменён: |




















































































































































