| ||||||||||||||||||||||||||||
Скачать Серия 1.090.1-7с Выпуск 2-3. Панели наружных стен на жестких связях трехслойные толщиной 400 мм для применения в районах сейсмичностью 7 и 8 баллов. Рабочие чертежиДата актуализации: 10.08.2017
|
| Обозначение: | Серия 1.090.1-7с |
| Обозначение англ: | Series 1.090.1-7с |
| Статус: | не определен законодательством |
| Название рус.: | Выпуск 2-3. Панели наружных стен на жестких связях трехслойные толщиной 400 мм для применения в районах сейсмичностью 7 и 8 баллов. Рабочие чертежи |
| Дата добавления в базу: | 01.09.2013 |
| Дата актуализации: | 05.05.2017 |
| Дата введения: | 01.03.1991 |
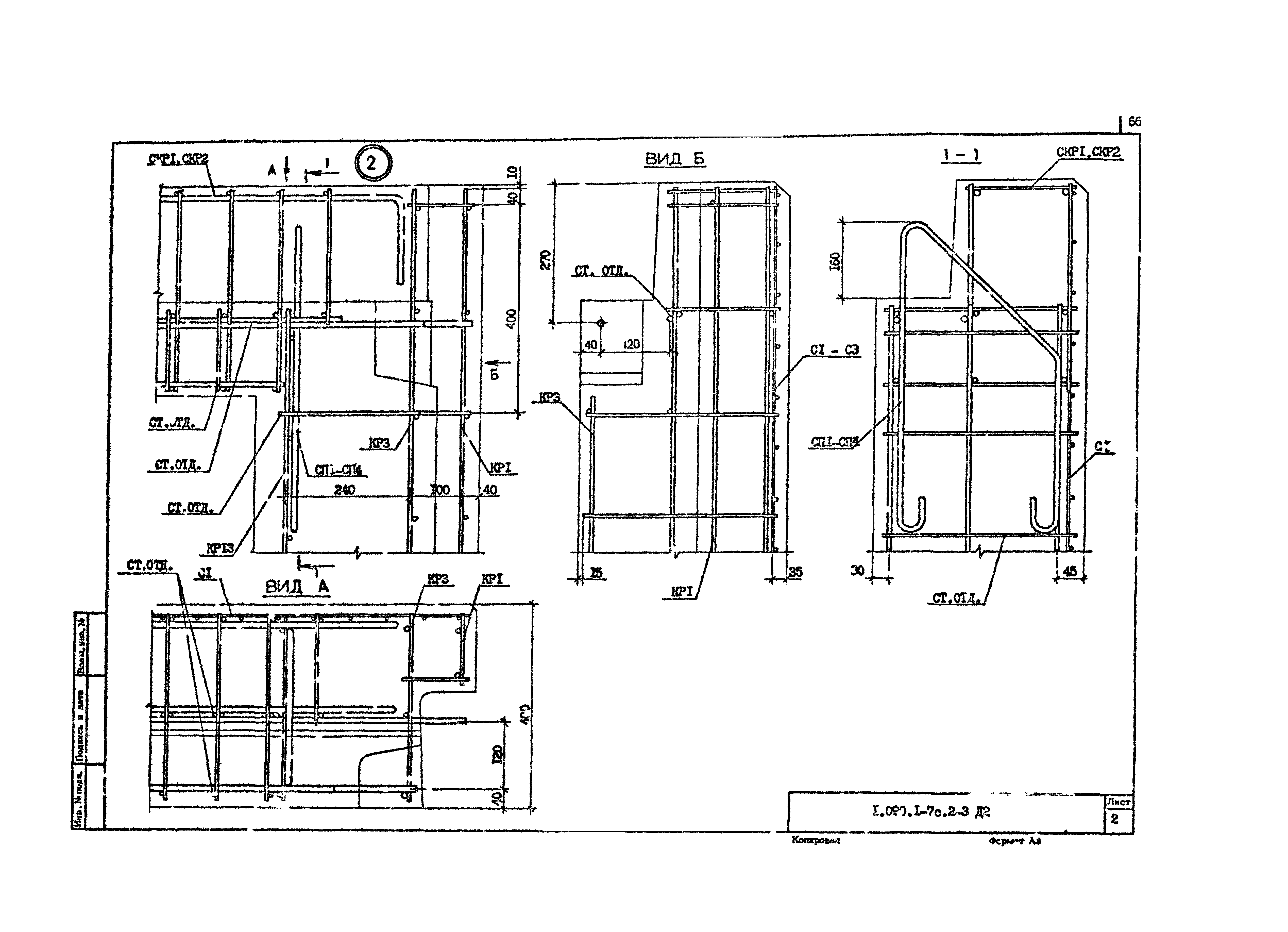
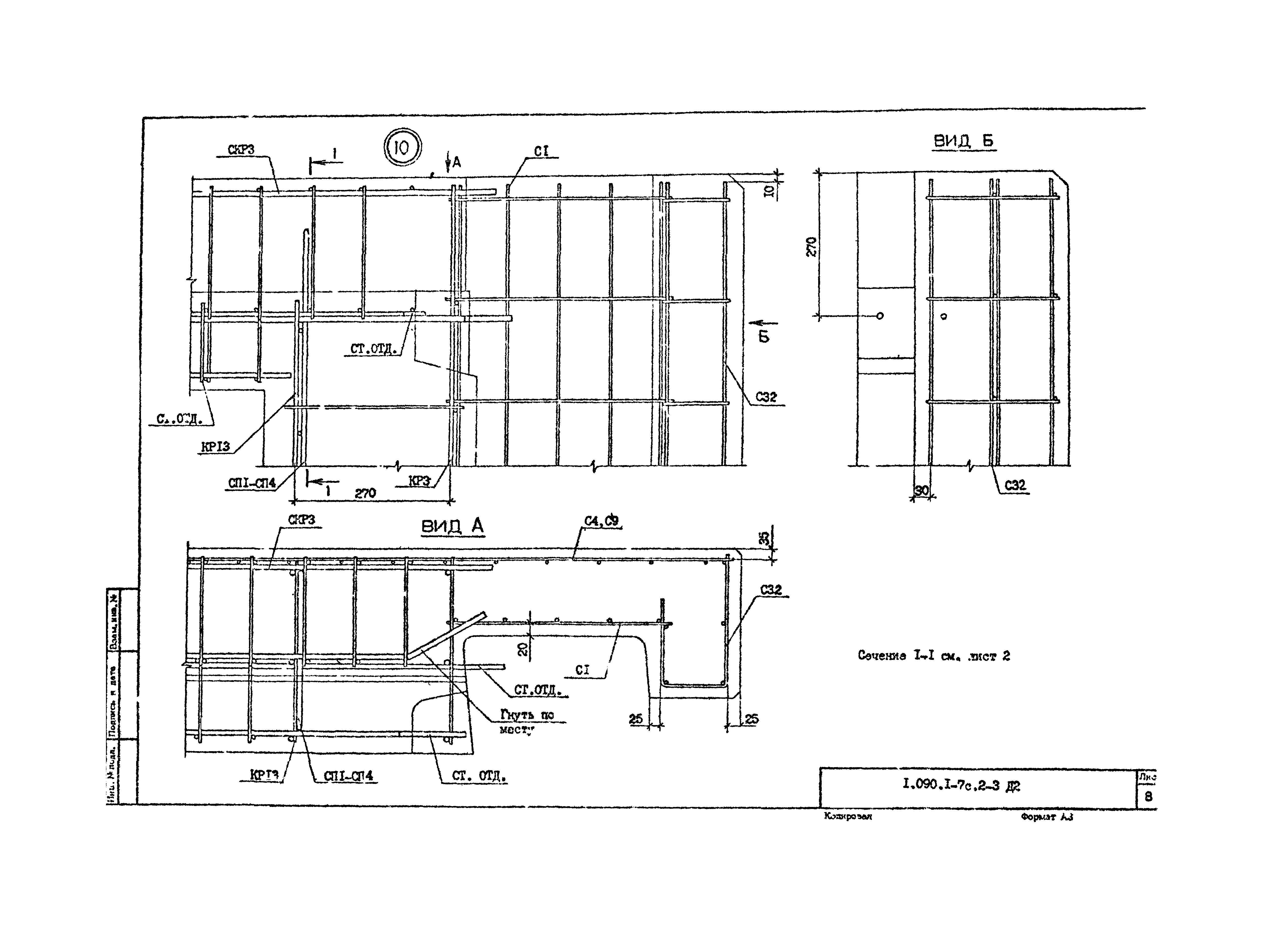
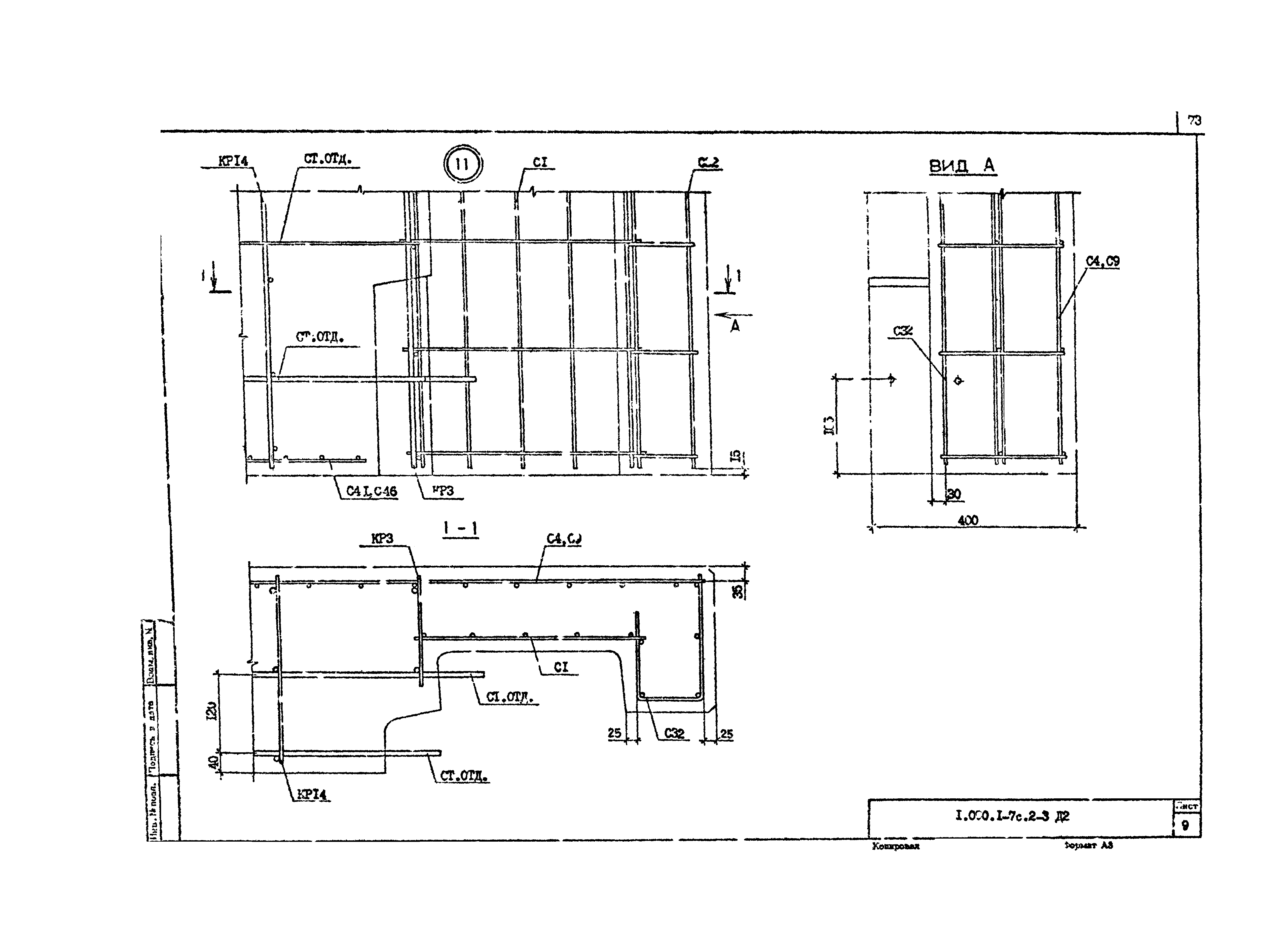
| Оглавление: | 1.090.1-7С.2-3-ТТ Технические требования 1.090.1-7С.2-3-01 Панель 1ПСО30.33.4-1ПТ-С,1ПСО30.33.4-2ПТ-С,2ПСО30.33.4-1ПТ-С,2ПСО30.33.4-2ПТ-С 1.090.1-7С.2-3-02 Панель 3ПСО30.33.4-1ПТ-С,3ПСО30.33.4-2ПТ-С,4ПСО30.33.4-1ПТ-С,4ПСО30.33.4-2ПТ-С 1.090.1-7С.2-3-03 Панель 5ПСО30.33.4-2ПТ-С 1.090.1-7С.2-3-04 Панель 6ПСО30.33.4-2ПТ-С 1.090.1-7С.2-3-05 Панель 7ПСО30.33.4-2ПТ-С 1.090.1-7С.2-3-06 Панель 1ПСО33.33.4-1ПТ-С,1ПСО33.33.4-2ПТ-С 1.090.1-7С.2-3-07 Панель 2ПСО33.33.4-1ПТ-С,2ПСО33.33.4-2ПТ-С 1.090.1-7С.2-3-08 Панель 1ПСО60.33.4-1ПТ-С,1ПСО60.33.4-2ПТ-С,2ПСО60.33.4-1ПТ-С,2ПСО60.33.4-2ПТ-С 1.090.1-7С.2-3-09 Панель 3ПСО60.33.4-1ПТ-С,3ПСО60.33.4-2ПТ-С 1.090.1-7С.2-3-10 Панель 1ПСБ60.33.4-1ПТ-С,1ПСБ60.33.4-2ПТ-С,2ПСБ30.33.4-1ПТ-С,2ПСБ30.33.4-2ПТ-С 1.090.1-7С.2-3-11 Панель 1ПСЛ30.33.4-2ПТ-С 1.090.1-7С.2-3-12 Панель 1ПСД30.33.4-2ПТ-С,2ПСД30.33.4-2ПТ-С 1.090.1-7С.2-3-13 Панель 3ПСД30.33.4-2ПТ-С 1.090.1-7С.2-3-14 Панель 4ПСД30.33.4-1ПТ-С,4ПСД30.33.4-2ПТ-С 1.090.1-7С.2-3-15 Панель ПСД30.33.4-2ПТ-С 1.090.1-7С.2-3-16 Панель ПС30.33.4-ПТ-С,ПС24.33.4-ПТ-С,ПС18.33.4-ПТ-С 1.090.1-7С.2-3-17 Панель ПС12.33.4-ПТ-С 1.090.1-7С.2-3-18 Панель ПС30.16.4-ПТ-С 1.090.1-7С.2-3-19 Панель 1ПС33.33.4-ПТ-С,2ПС33.33.4-ПТ-С 1.090.1-7С.2-3-20 Панель 1ПС15.33.4-ПТ-С,2ПС15.33.4-ПТ-С 1.090.1-7С.2-3-Д1 Узлы опалубочные 1.090.1-7С.2-3-Д2 Узлы арматурные 1.090.1-7С.2-3-21 Каркас укрупнительной сборки СКР1,СКР2,СКР4 1.090.1-7С.2-3-22 Каркас укрупнительной сборки СКР3 1.090.1-7С.2-3-23 Каркас укрупнительной сборки СКР5 1.090.1-7С.2-3-24 Сетка С1...С15 1.090.1-7С.2-3-25 Сетка С16...С19 1.090.1-7С.2-3-26 Сетка С20,С21 1.090.1-7С.2-3-27 Сетка С22...С25 1.090.1-7С.2-3-28 Сетка С26...С28 1.090.1-7С.2-3-29 Сетка С29...С31 1.090.1-7С.2-3-30 Сетка С32,С33 1.090.1-7С.2-3-31 Сетка С34...С48 1.090.1-7С.2-3-32 Сетка С49...С53 1.090.1-7С.2-3-33 Сетка С54...С57 1.090.1-7С.2-3-34 Каркас КР1,КР2 1.090.1-7С.2-3-35 Каркас КР4 1.090.1-7С.2-3-36 Каркас КР3,КР5 1.090.1-7С.2-3-37 Каркас КР6...КР12,КР14 1.090.1-7С.2-3-38 Каркас КР13,КР15 1.090.1-7С.2-3-39 Каркас КР16...КР18 1.090.1-7С.2-3-40 Каркас КР19 1.090.1-7С.2-3-41 Каркас КР20...КР25 1.090.1-7С.2-3-42 Каркас КР26 1.090.1-7С.2-3-43 Изделие закладное МН1 1.090.1-7С.2-3-44 Изделие закладное МН2 1.090.1-7С.2-3-45 Стержень анкерный АН1,АН2 1.090.1-7С.2-3-46 Стержень анкерный АН3...АН5 1.090.1-7С.2-3-47 Петля строповочная СП1...СП4 1.090.1-7С.2-3-РС Ведомость расхода стали |
| Разработан: | ТбилЗНИИЭП |
| Утверждён: | 20.11.1990 Госкомархитектура (209) |
| Расположен в: | |
| Заменяет собой: |
|






























































































