| ||||||||||||||||||||||||||
Скачать Серия 1.100.1-7 Выпуск 3-6. Панели опорные и парапетные трехслойные из тяжелого бетона с эффективным утеплителем для трехслойных наружных стен толщиной 400 мм (теплый чердак). Рабочие чертежиДата актуализации: 10.08.2017
|
| Обозначение: | Серия 1.100.1-7 |
| Обозначение англ: | Series 1.100.1-7 |
| Статус: | действует |
| Название рус.: | Выпуск 3-6. Панели опорные и парапетные трехслойные из тяжелого бетона с эффективным утеплителем для трехслойных наружных стен толщиной 400 мм (теплый чердак). Рабочие чертежи |
| Дата добавления в базу: | 01.09.2013 |
| Дата актуализации: | 05.05.2017 |
| Дата введения: | 30.04.1990 |
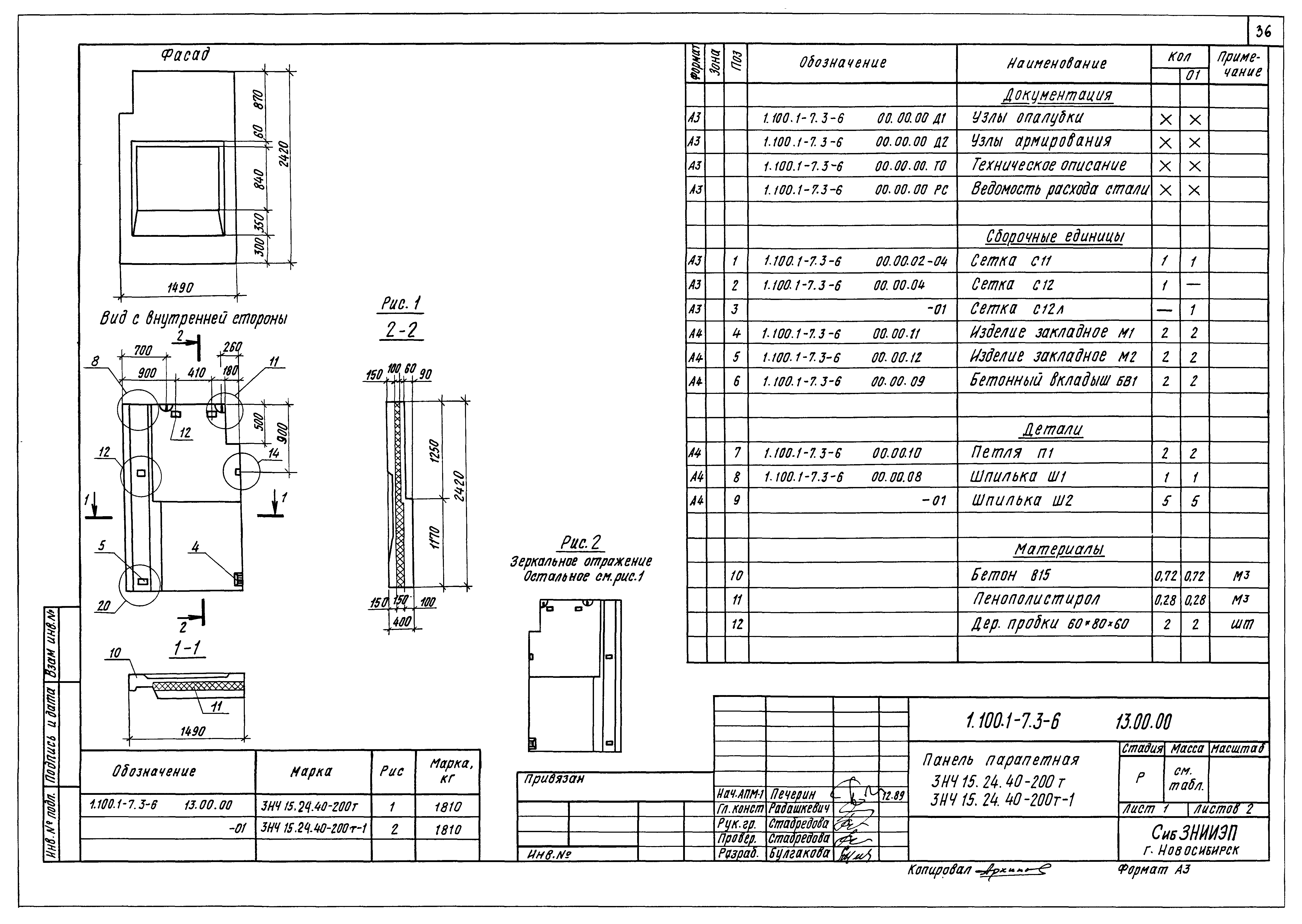
| Оглавление: | 1.100.1-7.3-6 00.00.00 Содержание 1.100.1-7.3-6 00.00.00ТО Техническое описание 1.100.1-7.3-6 00.00.00НИ Номенклатура изделий 1.100.1-7.3-6 01.00.00 Панель опорная 3Н412.20.40-200т 1.100.1-7.3-6 02.00.00 Панель опорная 3Н427.20.40-200т 1.100.1-7.3-6 03.00.00 Панель опорная 3Н430.20.40-200т 1.100.1-7.3-6 04.00.00 Панель опорная 3Н430.19.40-200т 1.100.1-7.3-6 05.00.00 Панель опорная 3Н445.20.40-200т 1.100.1-7.3-6 06.00.00 Панель опорная 3Н445.19.40-200т 1.100.1-7.3-6 07.00.00 Панель опорная 1Н443.19.40-150т 1.100.1-7.3-6 08.00.00 Панель парапетная 3Н448.25.40-200т 1.100.1-7.3-6 09.00.00 Панель парапетная 3Н448.24.40-200т 1.100.1-7.3-6 10.00.00 Панель парапетная 3Н463.25.40-200т 1.100.1-7.3-6 10.00.00 СБ Панель парапетная 3Н463.25.40-200т. Сборочный чертеж 1.100.1-7.3-6 11.00.00 Панель парапетная 3Н463.24.40-200т 1.100.1-7.3-6 11.00.00 СБ Панель парапетная 3Н463.24.40-200т. Сборочный чертеж 1.100.1-7.3-6 12.00.00 Панель парапетная 3Н415.25.40-200т,3Н415.25.40-200т-1 1.100.1-7.3-6 13.00.00 Панель парапетная 3Н415.24.40-200т,3Н415.24.40-200т-1 1.100.1-7.3-6 14.00.00 Панель парапетная 3Н445.24.40-200т 1.100.1-7.3-6 15.00.00 Панель парапетная 3Н438.24.40-200т 1.100.1-7.3-6 16.00.00 Плиты утеплителя 1.100.1-7.3-6 00.00.00Д1 Узлы опалубки 1.100.1-7.3-6 00.00.00Д2 Узлы армирования 1.100.1-7.3-6 00.00.01 Сетка арматурная С1...С6 1.100.1-7.3-6 00.00.02 Сетка арматурная С7,С9,С14,С16,С11 1.100.1-7.3-6 00.00.03 Сетка арматурная С8,С10,С15 1.100.1-7.3-6 00.00.04 Сетка арматурная С12,С12л,С17 1.100.1-7.3-6 00.00.05 Сетка арматурная С13,С18. Каркас КР7 1.100.1-7.3-6 00.00.06 Каркасы КР1...КР6 1.100.1-7.3-6 00.00.07 Каркасы КР8...КР11 1.100.1-7.3-6 00.00.08 Шпилька Ш1,Ш2 1.100.1-7.3-6 00.00.09 Бетонный вкладыш БВ1 1.100.1-7.3-6 00.00.10 Монтажные петли П1...П5 1.100.1-7.3-6 00.00.10 СБ Монтажные петли П1...П5. Сборочный чертеж 1.100.1-7.3-6 00.00.11 Изделие закладное М1 1.100.1-7.3-6 00.00.12 Изделие закладное М2 1.100.1-7.3-6 00.00.13 Анкер А1 1.100.1-7.3-6 00.00.00РС Ведомость расхода стали |
| Разработан: | СибЗНИИЭП Госгражданстроя |
| Утверждён: | 23.03.1990 Госкомархитектура (46) |
| Расположен в: |















































































