| ||||||||||||||||||||||||||||
Скачать Серия 1.090.1-7с Выпуск 2-2. Панели наружных стен однослойные толщиной 400 мм для применения в районах сейсмичностью 7 и 8 баллов. Рабочие чертежиДата актуализации: 10.08.2017
|
| Обозначение: | Серия 1.090.1-7с |
| Обозначение англ: | Series 1.090.1-7с |
| Статус: | не определен законодательством |
| Название рус.: | Выпуск 2-2. Панели наружных стен однослойные толщиной 400 мм для применения в районах сейсмичностью 7 и 8 баллов. Рабочие чертежи |
| Дата добавления в базу: | 01.09.2013 |
| Дата актуализации: | 05.05.2017 |
| Дата введения: | 01.03.1991 |
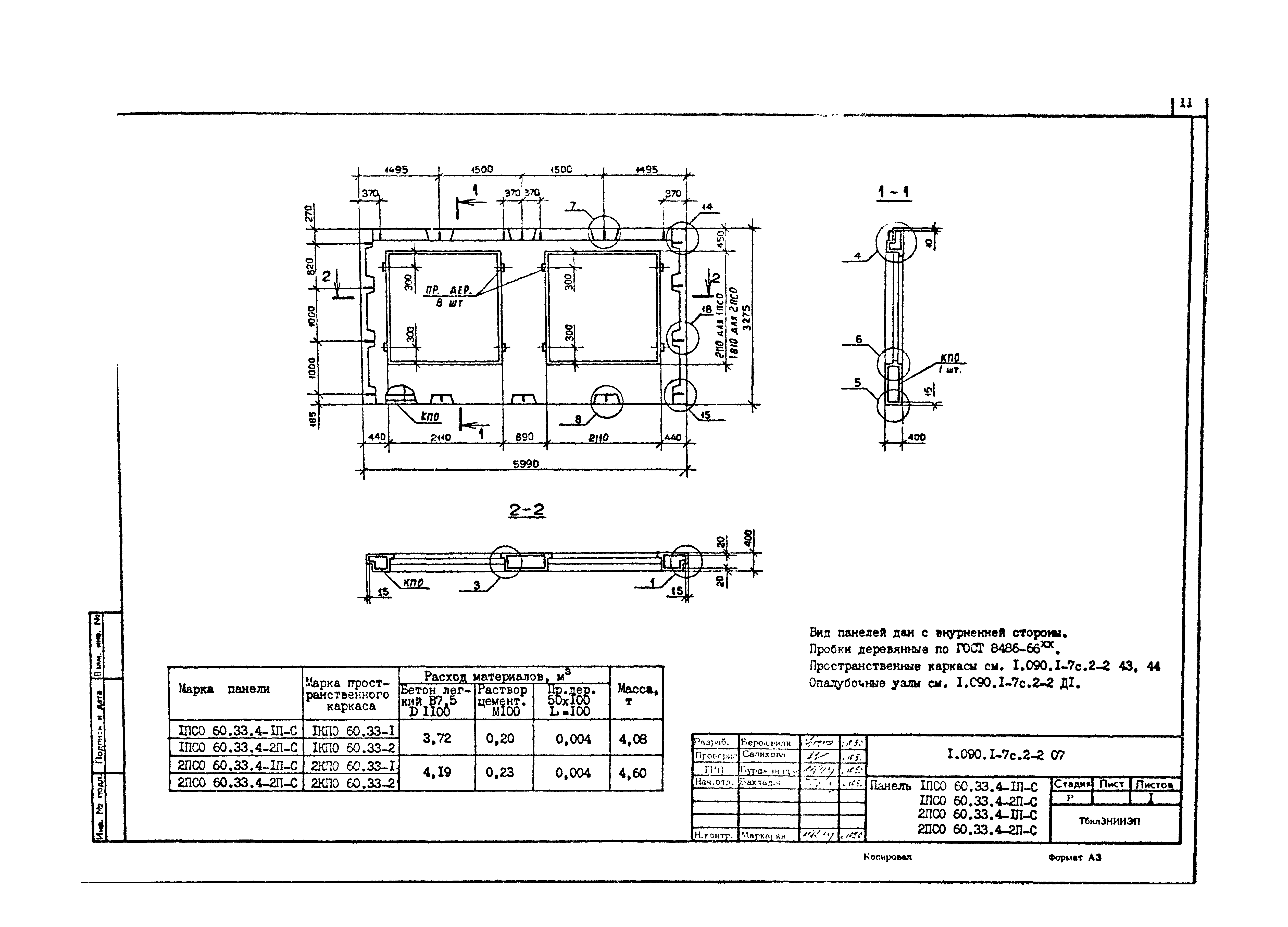
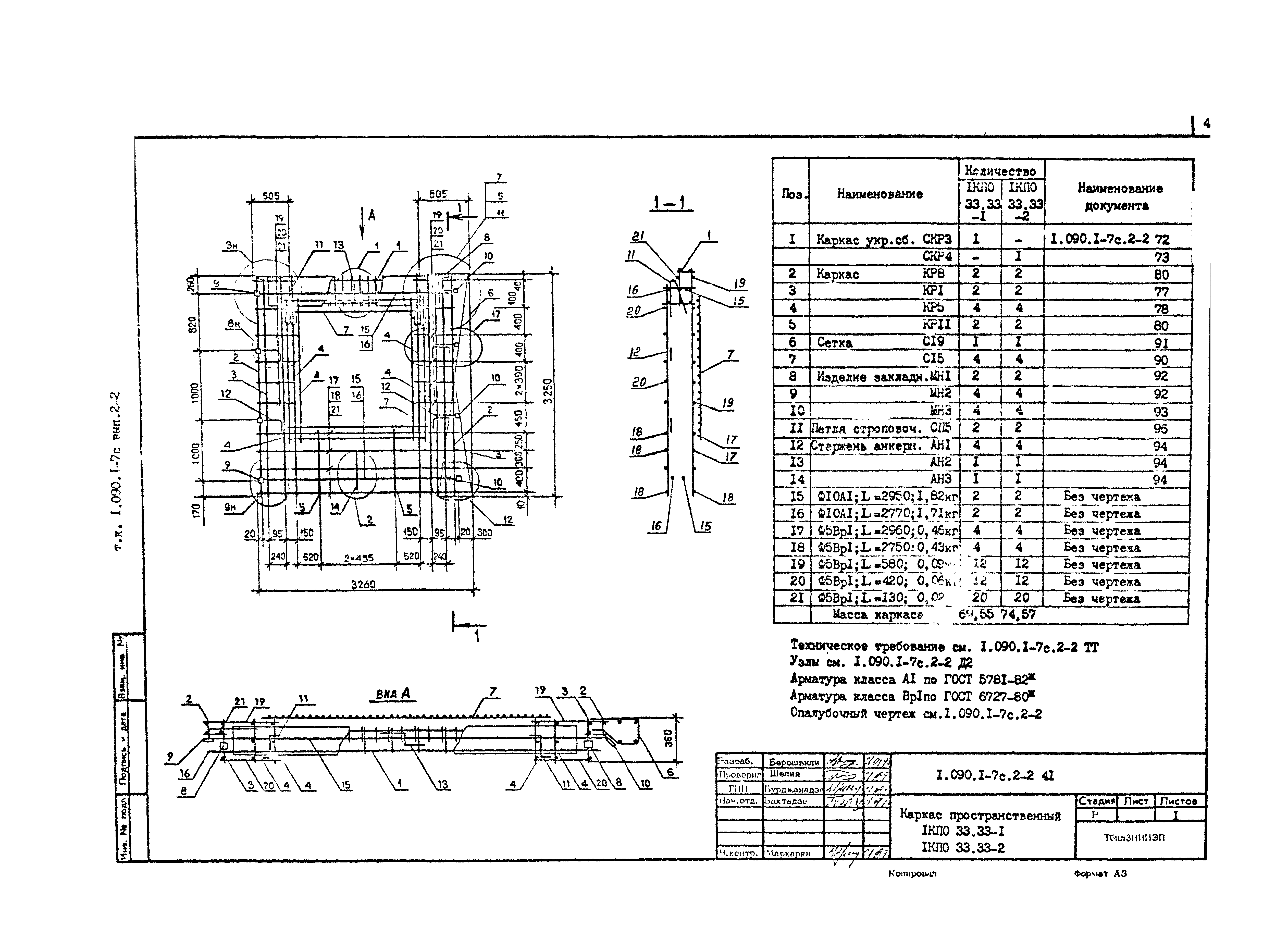
| Оглавление: | 1.090.1-7С.2-2-ТТ Технические требования 1.090.1-7С.2-2-01 Панель 1ПСО30.33.4-1П-С,1ПСО30.33.4-2П-С,2ПСО30.33.4-1П-С,2ПСО30.33.4-2П-С 1.090.1-7С.2-2-02 Панель 3ПСО30.33.4-1П-С,3ПСО30.33.4-2П-С,4ПСО30.33.4-1П-С,4ПСО30.33.4-2П-С 1.090.1-7С.2-2-03 Панель 5ПСО30.33.4-2П-С 1.090.1-7С.2-2-04 Панель 6ПСО30.33.4-2П-С,7ПСО30.33.4-2П-С 1.090.1-7С.2-2-05 Панель 1ПСО33.33.4-1П-С,1ПСО33.33.4-2П-С 1.090.1-7С.2-2-06 Панель 2ПСО33.33.4-1П-С,2ПСО33.33.4-2П-С 1.090.1-7С.2-2-07 Панель 1ПСО60.33.4-2П-С,2ПСО60.33.4-1П-С,2ПСО60.33.4-2П-С 1.090.1-7С.2-2-08 Панель 3ПСО60.33.4-1П-С,3ПСО60.33.4-2П-С 1.090.1-7С.2-2-09 Панель 1ПСБ30.33.4-1П-С,1ПСБ60.33.4-2П-С 1.090.1-7С.2-2-10 Панель 2ПСБ30.33.4-1П-С,2ПСБ30.33.4-2П-С 1.090.1-7С.2-2-11 Панель ПСЛ30.33.4-2П-С 1.090.1-7С.2-2-12 Панель 1ПСД30.33.4-2П-С 1.090.1-7С.2-2-13 Панель 2ПСД30.33.4-2П-С 1.090.1-7С.2-2-14 Панель 3ПСД30.33.4-2П-С 1.090.1-7С.2-2-15 Панель 4ПСД30.33.4-1П-С,4ПСД30.33.4-2П-С 1.090.1-7С.2-2-16 Панель ПСД30.33.4-2П-С 1.090.1-7С.2-2-17 Панель ПС30.33.4-П-С 1.090.1-7С.2-2-18 Панель ПС24.33.4-П-С 1.090.1-7С.2-2-19 Панель ПС18.33.4-П-С 1.090.1-7С.2-2-20 Панель ПС12.33.4-П-С 1.090.1-7С.2-2-21 Панель ПС30.16.4-П-С 1.090.1-7С.2-2-22 Панель 1ПС33.33.4-П-С 1.090.1-7С.2-2-23 Панель 1ПС15.33.4-П-С 1.090.1-7С.2-2-24 Панель 2ПС33.33.4-П-С 1.090.1-7С.2-2-25 Панель 2ПС15.33.4-П-С 1.090.1-7С.2-2-26 Панель ПСП60.10.4-П-С 1.090.1-7С.2-2-27 Панель ПСП30.10.4-П-С 1.090.1-7С.2-2-28 Панель ПСП18.10.4-П-С 1.090.1-7С.2-2-29 Панель ПСП12.10.4-П-С 1.090.1-7С.2-2-30 Панель 1ПСП33.10.4-П-С 1.090.1-7С.2-2-31 Панель 2ПСП33.10.4-П-С 1.090.1-7С.2-2-32 Панель 1ПСП15.10.4-П-С 1.090.1-7С.2-2-33 Панель 2ПСП15.10.4-П-С 1.090.1-7С.2-2-Д1 Узлы опалубочные 1.090.1-7С.2-2-34 Каркас пространственный 1КПО30.33-1,1КПО30.33-2 1.090.1-7С.2-2-35 Каркас пространственный 2КПО30.33-1,2КПО30.33-2 1.090.1-7С.2-2-36 Каркас пространственный 3КПО30.33-1,3КПО30.33-2 1.090.1-7С.2-2-37 Каркас пространственный 4КПО30.33-1,4КПО30.33-2 1.090.1-7С.2-2-38 Каркас пространственный 5КПО30.33-2 1.090.1-7С.2-2-39 Каркас пространственный 6КПО30.33-2 1.090.1-7С.2-2-40 Каркас пространственный 7КПО30.33-2 1.090.1-7С.2-2-41 Каркас пространственный 1КПО33.33-1,1КПО33.33-2 1.090.1-7С.2-2-42 Каркас пространственный 2КПО33.33-1,2КПО33.33-2 1.090.1-7С.2-2-43 Каркас пространственный 1КПО60.33-1,1КПО60.33-2 1.090.1-7С.2-2-44 Каркас пространственный 2КПО60.33-1,2КПО60.33-2 1.090.1-7С.2-2-45 Каркас пространственный 3КПО60.33-1,3КПО60.33-2 1.090.1-7С.2-2-46 Каркас пространственный 1КПБ30.33-1,1КПБ30.33-2 1.090.1-7С.2-2-47 Каркас пространственный 2КПБ30.33-1,2КПБ30.33-2 1.090.1-7С.2-2-48 Каркас пространственный КПЛ30.33-2 1.090.1-7С.2-2-49 Каркас пространственный 1КПД30.33-2 1.090.1-7С.2-2-50 Каркас пространственный 2КПД30.33-2 1.090.1-7С.2-2-51 Каркас пространственный 3КПД30.33-2 1.090.1-7С.2-2-52 Каркас пространственный 4КПД30.33-1,4КПД30.33-2 1.090.1-7С.2-2-53 Каркас пространственный КПД30.33-2 1.090.1-7С.2-2-54 Каркас пространственный КП30.33 1.090.1-7С.2-2-55 Каркас пространственный КП24.33 1.090.1-7С.2-2-56 Каркас пространственный КП18.33 1.090.1-7С.2-2-57 Каркас пространственный КП12.33 1.090.1-7С.2-2-58 Каркас пространственный КП30.16 1.090.1-7С.2-2-59 Каркас пространственный 1КП33.33 1.090.1-7С.2-2-60 Каркас пространственный 1КП15.33 1.090.1-7С.2-2-61 Каркас пространственный 2КП33.33 1.090.1-7С.2-2-62 Каркас пространственный 2КП15.33 1.090.1-7С.2-2-63 Каркас пространственный КПП60.10 1.090.1-7С.2-2-64 Каркас пространственный КПП30.10 1.090.1-7С.2-2-65 Каркас пространственный КПП18.10 1.090.1-7С.2-2-66 Каркас пространственный КПП12.10 1.090.1-7С.2-2-67 Каркас пространственный 1КПП33.10 1.090.1-7С.2-2-68 Каркас пространственный 2КПП33.10 1.090.1-7С.2-2-69 Каркас пространственный 1КПП15.10 1.090.1-7С.2-2-70 Каркас пространственный 2КПП15.10 1.090.1-7С.2-2-Д2 Узлы арматурные 1.090.1-7С.2-2-71 Каркас укрупнительной сборки СКР1,СКР2 1.090.1-7С.2-2-72 Каркас укрупнительной сборки СКР3 1.090.1-7С.2-2-73 Каркас укрупнительной сборки СКР4 1.090.1-7С.2-2-74 Каркас укрупнительной сборки СКР5 1.090.1-7С.2-2-75 Каркас укрупнительной сборки СКР6 1.090.1-7С.2-2-76 Каркас укрупнительной сборки СКР7 1.090.1-7С.2-2-77 Каркас КР1..КР4 1.090.1-7С.2-2-78 Каркас КР5,КР6 1.090.1-7С.2-2-79 Каркас КР7 1.090.1-7С.2-2-80 Каркас КР8..КР12 1.090.1-7С.2-2-81 Каркас КР13,КР14 1.090.1-7С.2-2-82 Каркас КР15 1.090.1-7С.2-2-83 Каркас КР17,КР18 1.090.1-7С.2-2-84 Сетка С1...С4 1.090.1-7С.2-2-85 Сетка С5 1.090.1-7С.2-2-86 Сетка С6 1.090.1-7С.2-2-87 Сетка С7 1.090.1-7С.2-2-88 Сетка С8,С9 1.090.1-7С.2-2-89 Сетка С10...С12 1.090.1-7С.2-2-90 Сетка С13...С17 1.090.1-7С.2-2-91 Сетка С18,С19 1.090.1-7С.2-2-92 Изделие закладное МН1,МН2 1.090.1-7С.2-2-93 Изделие закладное МН3,МН4 1.090.1-7С.2-2-94 Стержень анкерный АН1...АН4 1.090.1-7С.2-2-95 Петля строповочная СП1,СП2 1.090.1-7С.2-2-96 Петля строповочная СП3...СП6 1.090.1-7С.2-2-РС Ведомость расхода стали |
| Разработан: | ТбилЗНИИЭП |
| Утверждён: | 20.11.1990 Госкомархитектура (209) |
| Расположен в: | |
| Заменяет собой: |
|










































































































