| ||||||||||||||||||||||||||
Скачать Серия 1.090.1-7с Выпуск 1-2. Панели наружных стен нулевого цикла однослойные толщиной 350 мм для применения в районах сейсмичностью 7 и 8 баллов. Рабочие чертежиДата актуализации: 10.08.2017
|
| Обозначение: | Серия 1.090.1-7с |
| Обозначение англ: | Series 1.090.1-7с |
| Статус: | действует |
| Название рус.: | Выпуск 1-2. Панели наружных стен нулевого цикла однослойные толщиной 350 мм для применения в районах сейсмичностью 7 и 8 баллов. Рабочие чертежи |
| Дата добавления в базу: | 01.09.2013 |
| Дата актуализации: | 05.05.2017 |
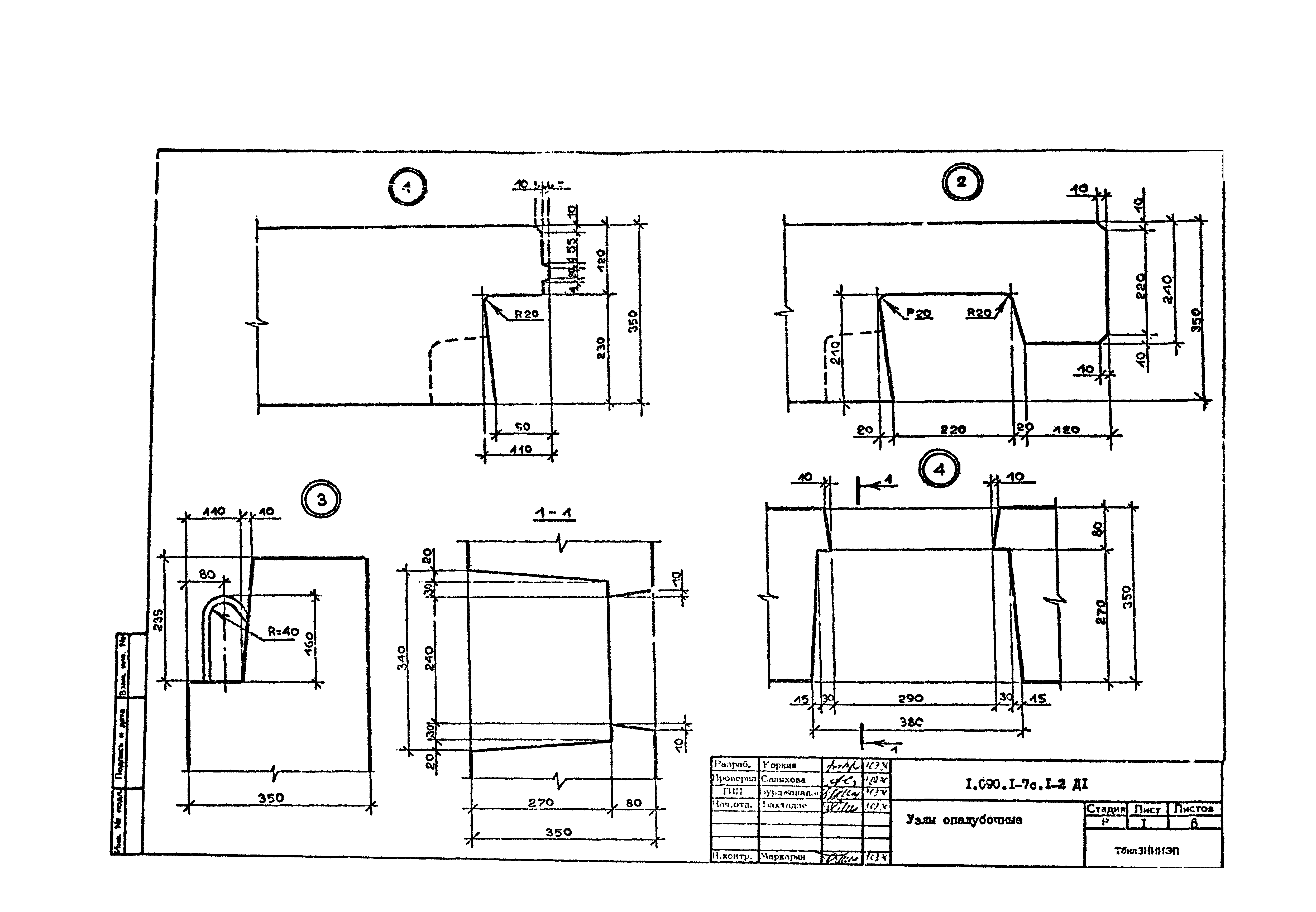
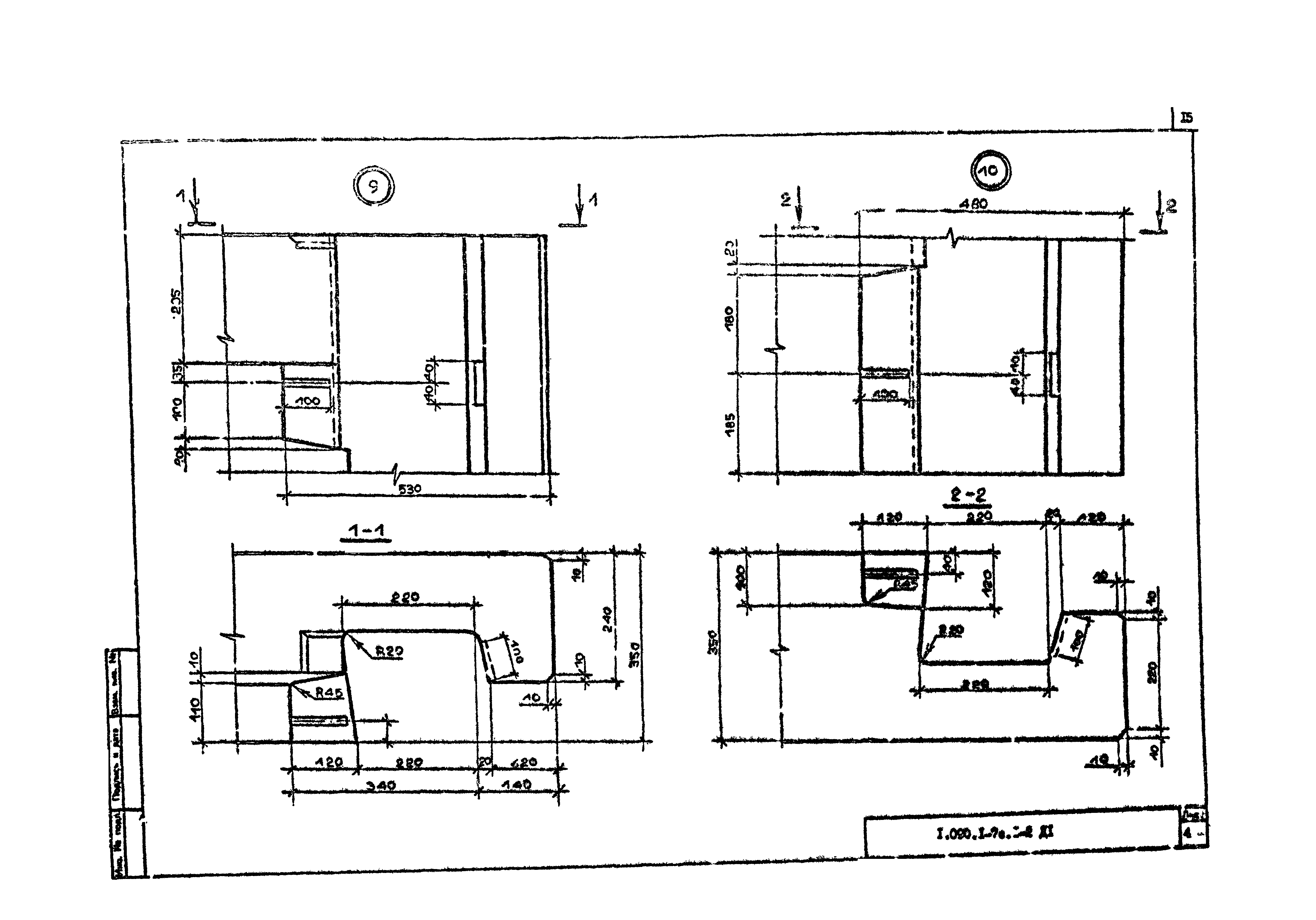
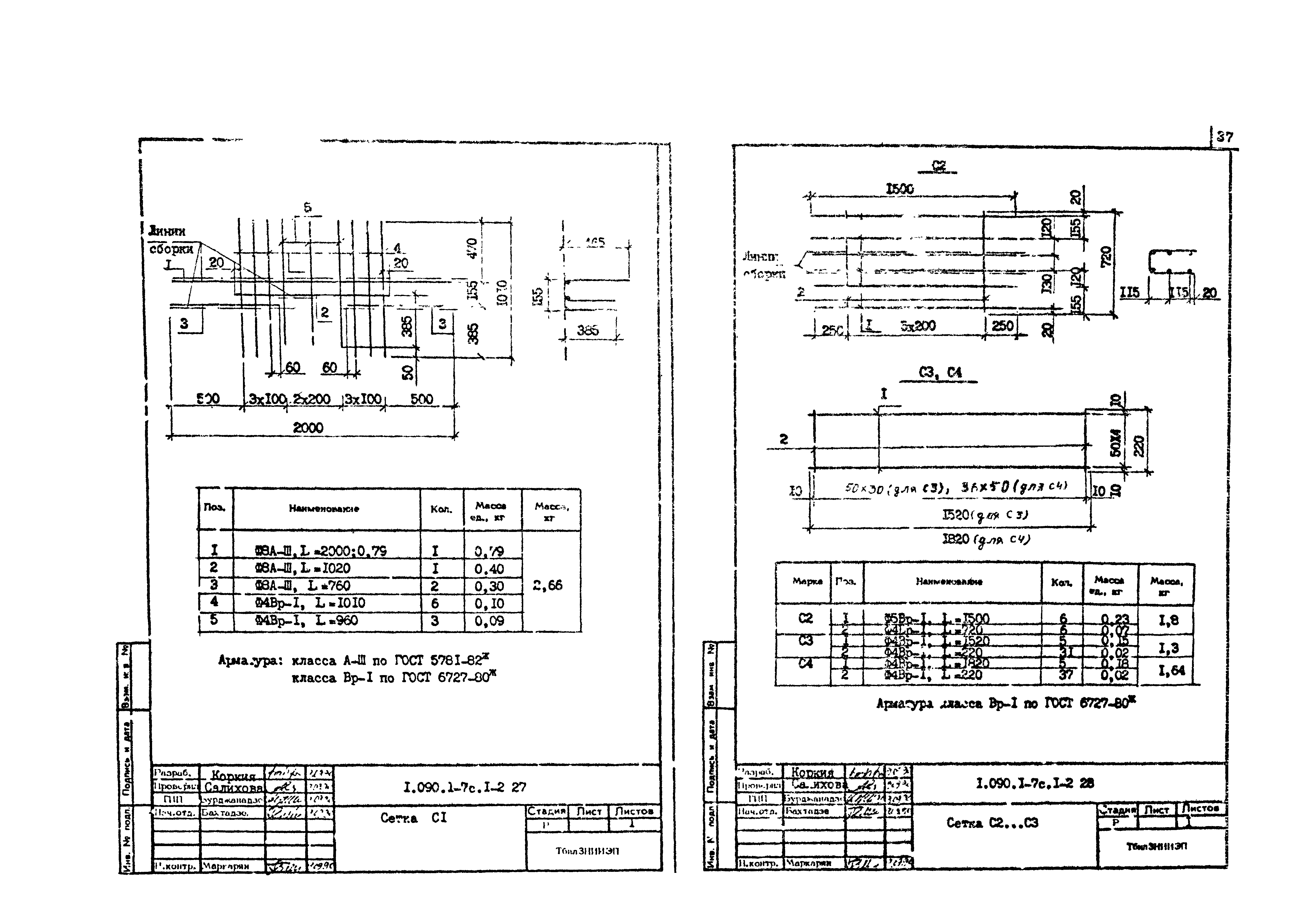
| Оглавление: | 1.090.1-7С.1-2-ТТ Технические требования 1.090.1-7С.1-2-01 Панель цокольная ПСЦ60.21.3,5-П-С,1ПСЦ60.21.3,5-П-С 1.090.1-7С.1-2-02 Панель цокольная 1ПСЦ30.21.3,5-П-С 1.090.1-7С.1-2-03 Панель цокольная 2ПСЦ30.21.3,5-П-С,3ПСЦ30.21.3,5-П-С 1.090.1-7С.1-2-04 Панель цокольная ПСЦ30.21.3,5-П-С,4ПСЦ30.21.3,5-П-С 1.090.1-7С.1-2-05 Панель цокольная 5ПСЦ30.21.3,5-П-С 1.090.1-7С.1-2-06 Панель цокольная 1ПСЦ14.21.3,5-П-С 1.090.1-7С.1-2-07 Панель цокольная 2ПСЦ14.21.3,5-П-С 1.090.1-7С.1-2-08 Панель цокольная ПСЦ18.21.3,5-П-С 1.090.1-7С.1-2-09 Панель цокольная ПСЦ12.21.3,5-П-С 1.090.1-7С.1-2-10 Панель цокольная 1ПСЦ30.21.3,5-П-С 1.090.1-7С.1-2-11 Панель цокольная 2ПСЦ32.21.3,5-П-С 1.090.1-7С.1-2-Д1 Узлы опалубочные 1.090.1-7С.1-2-12 Каркас пространственный КП60.21.3,5,1КП60.21.3,5 1.090.1-7С.1-2-13 Каркас пространственный 1КП30.21.3,5 1.090.1-7С.1-2-14 Каркас пространственный 2КП30.21.3,5,3КП30.21.3,5 1.090.1-7С.1-2-15 Каркас пространственный КП30.21.3,5,4КП30.21.3,5 1.090.1-7С.1-2-16 Каркас пространственный 5КП30.21.3,5 1.090.1-7С.1-2-17 Каркас пространственный 1КП14.21.3,5 1.090.1-7С.1-2-18 Каркас пространственный 2КП14.21.3,5 1.090.1-7С.1-2-19 Каркас пространственный КП18.21.3,5 1.090.1-7С.1-2-20 Каркас пространственный КП12.21.3,5 1.090.1-7С.1-2-21 Каркас пространственный 1КП32.21.3,5 1.090.1-7С.1-2-22 Каркас пространственный 2КП32.21.3,5 1.090.1-7С.1-2-Д2 Узлы арматурные 1.090.1-7С.1-2-23 Каркас укрупнительной сборки СКР1 1.090.1-7С.1-2-24 Каркас КР3 1.090.1-7С.1-2-25 Каркас КР1,КР4 1.090.1-7С.1-2-26 Каркас КР2,КР5 1.090.1-7С.1-2-27 Сетка С1 1.090.1-7С.1-2-28 Сетка С2...С3 1.090.1-7С.1-2-29 Изделие закладное МН1 1.090.1-7С.1-2-30 Изделие закладное МН2 1.090.1-7С.1-2-31 Изделие закладное МН3 1.090.1-7С.1-2-32 Петля строповочная СП1...СП3 1.090.1-7С.1-2-33 Стержень анкерный АН1...АН3 1.090.1-7С.1-2-РС Ведомость расхода стали |
| Разработан: | ТбилЗНИИЭП |
| Утверждён: | 20.11.1990 Госкомархитектура (209) |
| Расположен в: | |
| Заменяет собой: |









































