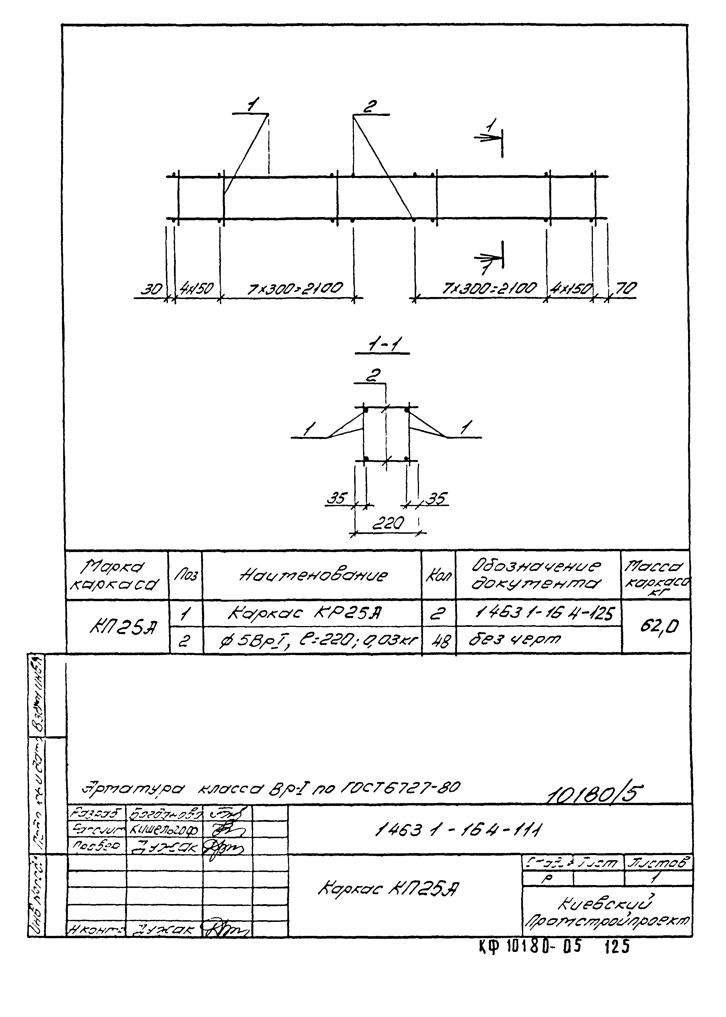
Оглавление: | 1.463.1-16.4-ПЗ Пояснительная записка 1.463.1-16.4-1 Каркас КП1,КП2 1.463.1-16.4-2 Каркас КП3,КП4 1.463.1-16.4-3 Каркас КП5,КП6 1.463.1-16.4-4 Каркас КП7,КП8 1.463.1-16.4-5 Каркас КП9...КП11 1.463.1-16.4-16 Каркас КП12,КП13 1.463.1-16.4-7 Каркас КП14,КП15 1.463.1-16.4-8 Каркас КП16...КП18 1.463.1-16.4-9 Каркас КП19,КП20 1.463.1-16.4-10 Каркас КП21,КП22 1.463.1-16.4-11 Каркас КП23...КП25 1.463.1-16.4-12 Каркас КП26...КП28 1.463.1-16.4-13 Каркас КП29 1.463.1-16.4-14 Каркас КП30,КП31 1.463.1-16.4-15 Каркас КП32 1.463.1-16.4-16 Каркас КП33...КП35 1.463.1-16.4-17 Каркас КП36,КП39,КП40 1.463.1-16.4-18 Каркас КП37,КП38 1.463.1-16.4-19 Каркас КП41...КП43 1.463.1-16.4-20 Каркас КП44...КП47 1.463.1-16.4-21 Каркас КП48...КП50 1.463.1-16.4-22 Каркас КП51...КП53 1.463.1-16.4-23 Каркас КП54...КП56 1.463.1-16.4-24 Каркас КП57...КП59 1.463.1-16.4-25 Каркас КП60...КП62 1.463.1-16.4-26 Каркас КП63 1.463.1-16.4-27 Каркас КП64 1.463.1-16.4-28 Каркас КП65...КП67 1.463.1-16.4-29 Каркас КП68,КП69 1.463.1-16.4-30 Каркас КП70 1.463.1-16.4-31 Каркас КР1т,КР2т,КР1н,КР2н (зеркальное отражение) 1.463.1-16.4-32 Каркас КР3т,КР4т,КР3н,КР4н (зеркальное отражение) 1.463.1-16.4-33 Каркас КР5т,КР6т,КР5н,КР6н (зеркальное отражение) 1.463.1-16.4-34 Каркас КР7т,КР8т,КР7н,КР8н (зеркальное отражение) 1.463.1-16.4-35 Каркас КР9т,КР11т,КР9н,КР11н (зеркальное отражение) 1.463.1-16.4-36 Каркас КР12т,КР13т,КР12н,КР13н (зеркальное отражение) 1.463.1-16.4-37 Каркас КР14т,КР15т,КР14н,КР15н (зеркальное отражение) 1.463.1-16.4-38 Каркас КР16...КР18 1.463.1-16.4-39 Каркас КР19,КР20 1.463.1-16.4-40 Каркас КР21,КР22 1.463.1-16.4-41 Каркас КР23...КР25 1.463.1-16.4-42 Каркас КР26...КР28 1.463.1-16.4-43 Каркас КР29 1.463.1-16.4-44 Каркас КР30,КР31 1.463.1-16.4-45 Каркас КР32 1.463.1-16.4-46 Каркас КР33 1.463.1-16.4-47 Каркас КР34,КР35 1.463.1-16.4-48 Каркас КР36,КР39 1.463.1-16.4-49 Каркас КР37,КР38 1.463.1-16.4-50 Каркас КР40 1.463.1-16.4-51 Каркас КР41,КР42 1.463.1-16.4-52 Каркас КР43 1.463.1-16.4-53 Каркас КР44,КР45 1.463.1-16.4-54 Каркас КР46 1.463.1-16.4-55 Каркас КР47,КР49 1.463.1-16.4-56 Каркас КР50,КР51 1.463.1-16.4-57 Каркас КР52 1.463.1-16.4-58 Каркас КР53 1.463.1-16.4-59 Каркас КР54 1.463.1-16.4-60 Каркас КР55 1.463.1-16.4-61 Каркас КР56,КР57 1.463.1-16.4-62 Каркас КР58 1.463.1-16.4-63 Каркас КР59 1.463.1-16.4-64 Каркас КР60 1.463.1-16.4-65 Каркас КР61,КР62 1.463.1-16.4-66 Каркас КР63,КР64 1.463.1-16.4-67 Каркас КР65 1.463.1-16.4-68 Каркас КР66т,КР66н (зеркальное отражение) 1.463.1-16.4-69 Каркас КР67т,КР67н (зеркальное отражение) 1.463.1-16.4-70 Каркас КР68т,КР71т,КР68н,КР71н (зеркальное отражение) 1.463.1-16.4-71 Каркас КР69т,КР69н (зеркальное отражение) 1.463.1-16.4-72 Каркас КР70т,КР70н (зеркальное отражение) 1.463.1-16.4-73 Каркас КР72т,КР74т,КР72н,КР74н (зеркальное отражение) 1.463.1-16.4-74 Каркас КР73,КР75 1.463.1-16.4-75 Каркас КР76т...КР78т,КР76н...КР78н (зеркальное отражение) 1.463.1-16.4-76 Каркас КР79,КР82,КР84,КР86 1.463.1-16.4-77 Каркас КР80т,КР81т,КР83т,КР85т,КР80н,КР81н,КР83н,КР85н (зеркальное отражение) 1.463.1-16.4-78 Каркас КР87т,КР87н (зеркальное отражение) 1.463.1-16.4-79 Каркас КР88,КР89 1.463.1-16.4-80 Каркас КР90,КР91 1.463.1-16.4-81 Каркас КР92,КР99...КР101 1.463.1-16.4-82 Каркас КР93т,КР93н (зеркальное отражение) 1.463.1-16.4-83 Каркас КР94,КР95 1.463.1-16.4-84 Каркас КР96,КР98 1.463.1-16.4-85 Каркас КР102т,КР103т,КР102н,КР103н (зеркальное отражение) 1.463.1-16.4-86 Каркас КР104,КР107,КР108 1.463.1-16.4-87 Каркас КР105,КР106 1.463.1-16.4-88 Каркас КР109т...КР111т,КР109н...КР111н (зеркальное отражение) 1.463.1-16.4-89 Каркас КР112,КР113 1.463.1-16.4-90 Каркас КР114КР116 1.463.1-16.4-91 Каркас КР117,КР118 1.463.1-16.4-92 Сетка С1...С3 1.463.1-16.4-93 Сетка С4,С5 1.463.1-16.4-94 Сетка С6,С7 1.463.1-16.4-95 Сетка С8...С10 1.463.1-16.4-96 Сетка С11...С14 1.463.1-16.4-97 Сетка С15...С17 1.463.1-16.4-98 Сетка С18...С20 1.463.1-16.4-99 Сетка С21 1.463.1-16.4-100 Сетка С22,С23 1.463.1-16.4-101 Сетка С24,С25 1.463.1-16.4-102 Сетка С26,С27 1.463.1-16.4-103 Ведомость деталей 1.463.1-16.4-104 Каркас КП3А, КП4А 1.463.1-16.4-105 Каркас КП6А 1.463.1-16.4-106 Каркас КП7А, КП8А 1.463.1-16.4-107 Каркас КП10А 1.463.1-16.4-108 Каркас КП13А 1.463.1-16.4-109 Каркас КП17А, КП18А 1.463.1-16.4-110 Каркас КП19А, КП20А 1.463.1-16.4-111 Каркас КП25А 1.463.1-16.4-112 Каркас КП35А 1.463.1-16.4-113 Каркас КП39А 1.463.1-16.4-114 Каркас КП46А,КП50А 1.463.1-16.4-115 Каркас КП59А,КП61А,КП62А 1.463.1-16.4-116 Каркас КП64А 1.463.1-16.4-117 Каркас КП67А,КР69А 1.463.1-16.4-118 Каркас КР3Ат,КР4Ат,КР3Ан,КР4Ан (зеркальное отражение) 1.463.1-16.4-119 Каркас КР6Ат,КР6Ан (зеркальное отражение) 1.463.1-16.4-120 Каркас КР7Ат,КР7Ан (зеркальное отражение) 1.463.1-16.4-121 Каркас КР10Ат,КР10Ан (зеркальное отражение) 1.463.1-16.4-122 Каркас КР13Ат,КР13Ан (зеркальное отражение) 1.463.1-16.4-123 Каркас КР17А,КР18А 1.463.1-16.4-124 Каркас КР19А,КР20А 1.463.1-16.4-125 Каркас КР25А 1.463.1-16.4-126 Каркас КР35А,КР36А 1.463.1-16.4-127 Каркас КР45А,КР46А 1.463.1-16.4-128 Каркас КР54А 1.463.1-16.4-129 Каркас КР56А 1.463.1-16.4-130 Каркас КР57А 1.463.1-16.4-131 Каркас КР59А 1.463.1-16.4-132 Каркас КР62А,КР64А |