Информационная система
«Ёшкин Кот»

Скачать базу одним архивом
Скачать обновления
История создания базы
Карта сайта

Скачать Серия 1.424.1-10 Выпуск 1. Колонны. Рабочие чертежи

Дата актуализации: 10.08.2017

Серия 1.424.1-10

Выпуск 1. Колонны. Рабочие чертежи

Обозначение: Серия 1.424.1-10
Обозначение англ: Series 1.424.1-10
Статус:не определен законодательством
Название рус.:Выпуск 1. Колонны. Рабочие чертежи
Дата добавления в базу:01.09.2013
Дата актуализации:05.05.2017
Дата введения:01.01.1989
Оглавление:1.424.1-10.1-ТТ Технические требования
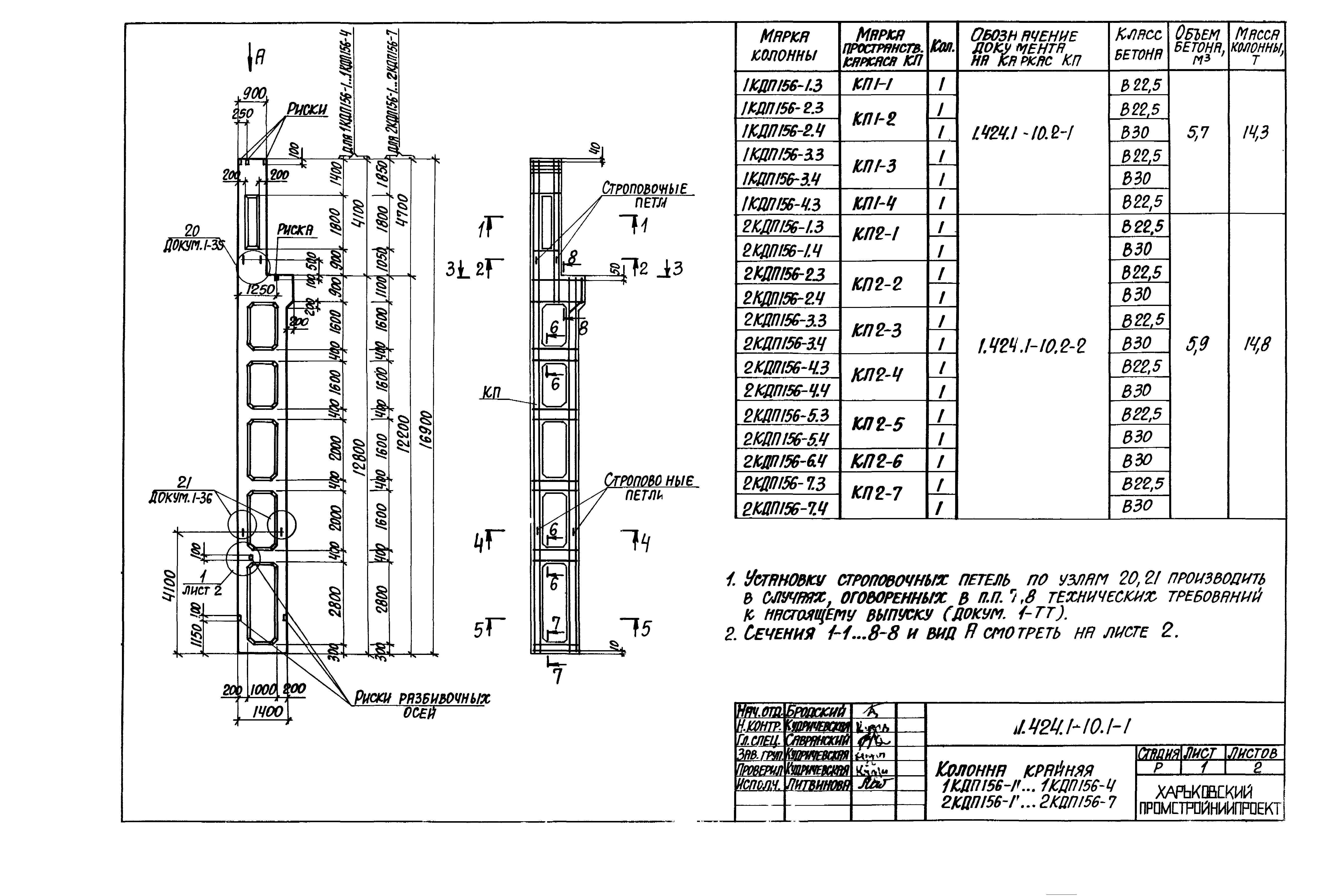
1.424.1-10.1-1 Колонна крайняя 1КДП156-1…1КДП156-4; 2КДП156-1…2КДП156-7
1.424.1-10.1-2 Колонна крайняя 3КДП156-1…3КДП156-6
1.424.1-10.1-3 Колонна крайняя 4КДП156-1…4КДП156-7
1.424.1-10.1-4 Колонна крайняя 1КДП168-1…1КДП168-6
1.424.1-10.1-5 Колонна крайняя 2КДП168-1…2КДП168-7
1.424.1-10.1-6 Колонна крайняя 3КДП168-1…3КДП168-6
1.424.1-10.1-7 Колонна крайняя 4КДП168-1…4КДП168-7
1.424.1-10.1-8 Колонна крайняя 1КДП180-1…1КДП180-5
1.424.1-10.1-9 Колонна крайняя 2КДП180-1…2КДП180-8
1.424.1-10.1-10 Колонна крайняя 3КДП180-1…3КДП180-6
1.424.1-10.1-11 Колонна крайняя 4КДП180-1…4КДП180-9
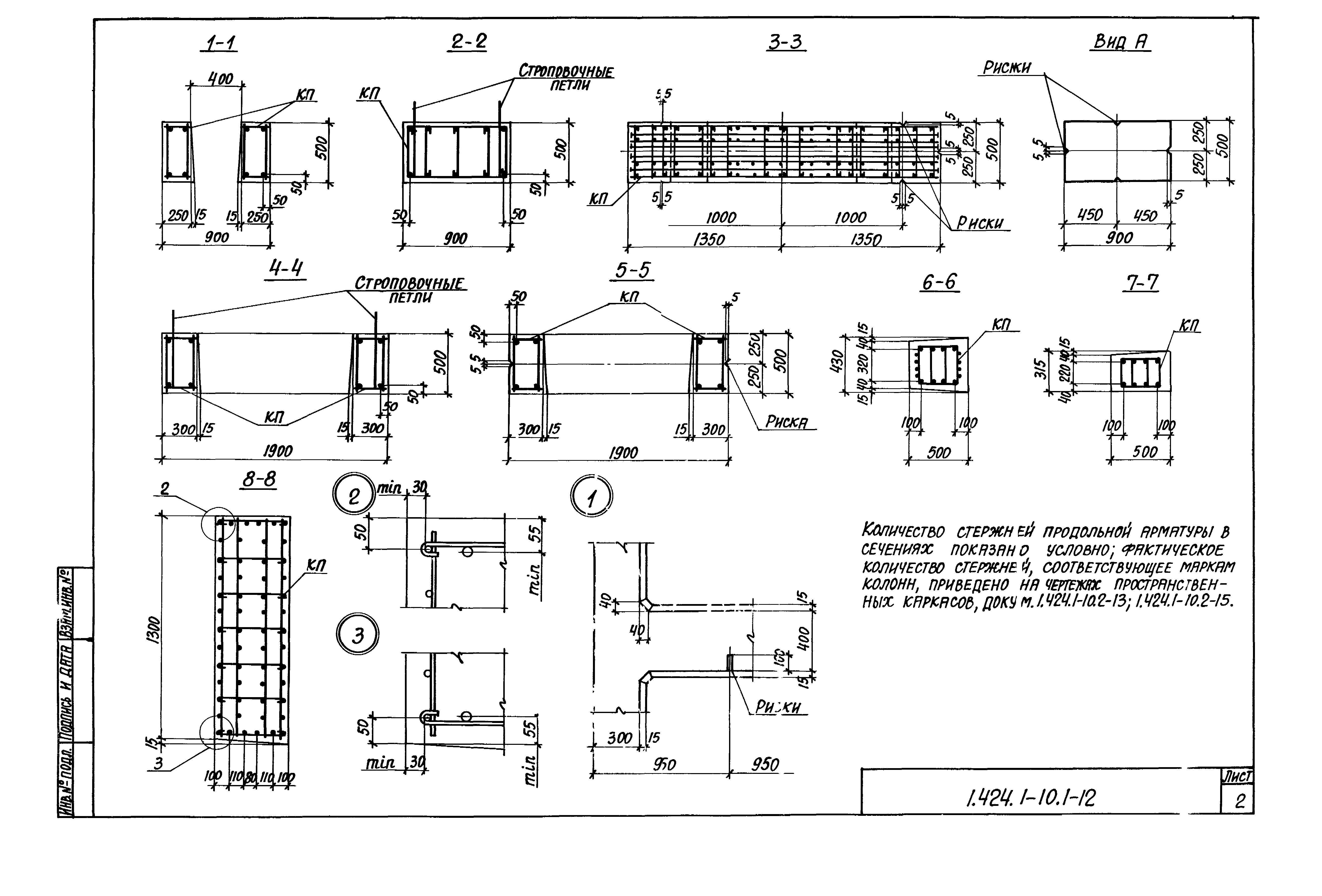
1.424.1-10.1-12 Колонна средняя 5КДП156-1…5КДП156-6, 7КДП156-1…7КДП156-4
1.424.1-10.1-13 Колонна средняя 6КДП156-1…6КДП156-10
1.424.1-10.1-14 Колонна средняя 8КДП156-1…8КДП156-4
1.424.1-10.1-15 Колонна средняя 5КДП168-1…5КДП168-7; 7КДП168-1, 7КДП168-2
1.424.1-10.1-16 Колонна средняя 6КДП168-1…6КДП168-7; 8КДП168-1…8КДП168-3
1.424.1-10.1-17 Колонна средняя 5КДП180-1…5КДП180-5; 7КДП180-1…7КДП180-3
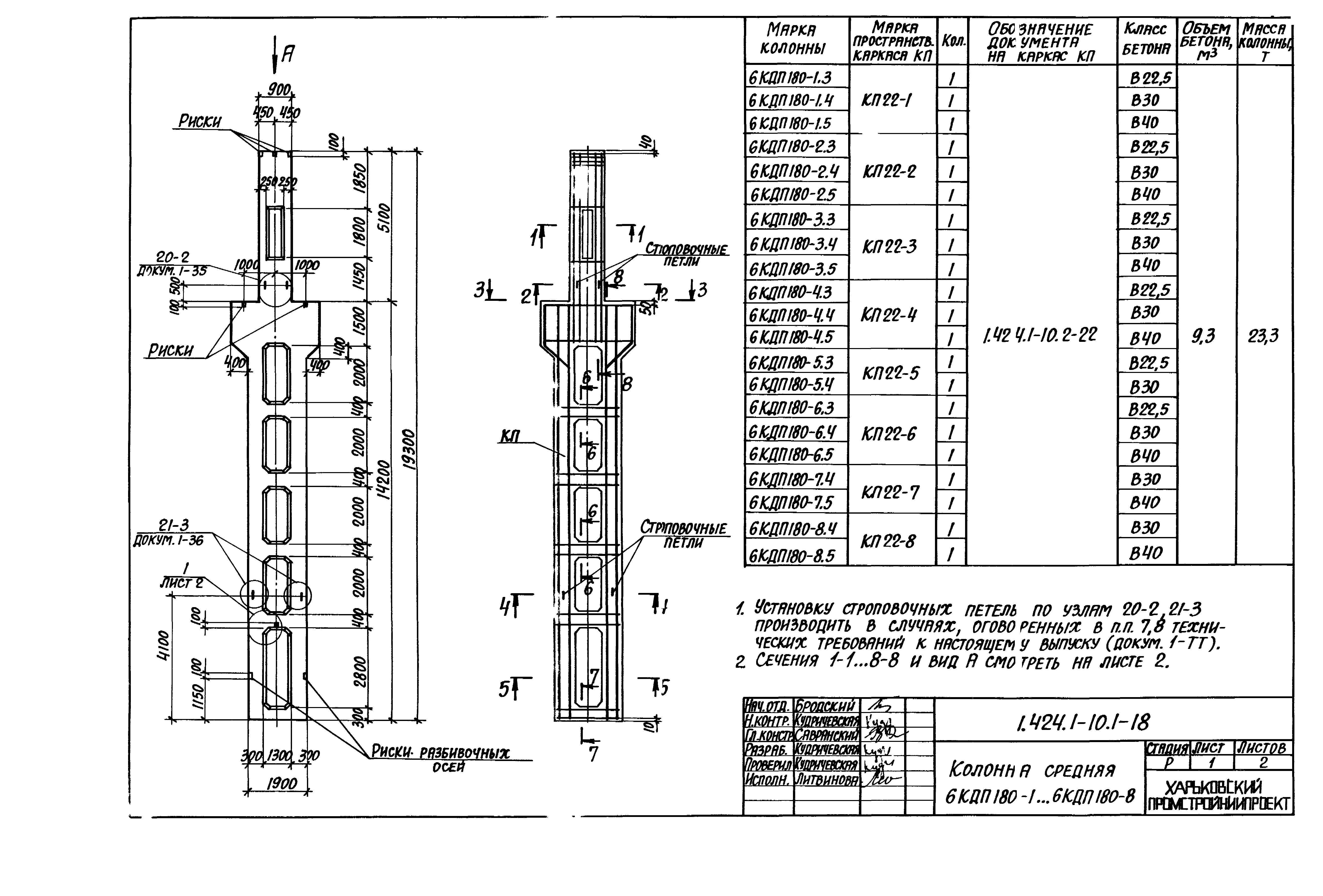
1.424.1-10.1-18 Колонна средняя 6КДП180-1…6КДП180-8
1.424.1-10.1-19 Колонна средняя 8КДП180-1…8КДП180-4
1.424.1-10.1-20 Узел 1…3
1.424.1-10.1-21 Узел 4…6
1.424.1-10.1-22 Узел 7; 7-1…7-9
1.424.1-10.1-23 Узел 8; 8-1…8-5
1.424.1-10.1-24 Узел 9; 9-1…9-3
1.424.1-10.1-25 Узел 10; 10-1
1.424.1-10.1-26 Узел 11
1.424.1-10.1-27 Узел 12; 12-1
1.424.1-10.1-28 Узел 13
1.424.1-10.1-29 Узел 14; 14-1
1.424.1-10.1-30 Узел 15; 15-1…15-3
1.424.1-10.1-31 Узел 16; 16-1…16-5
1.424.1-10.1-32 Узел 17; 17-1
1.424.1-10.1-33 Узел 18; 18-1…18-7
1.424.1-10.1-34 Узел 19; 19-1…19-6
1.424.1-10.1-35 Узел 20; 20-1; 20-2
1.424.1-10.1-36 Узел 21; 21-1...21-3
1.424.1-10.1-37 Узел 22
1.424.1-10.1-38РС Ведомость расхода стали, кг
Разработан: Харьковский Промстройниипроект
АО ЦНИИпромзданий
НИИЖБ
Утверждён:11.07.1988 Госстрой СССР (Государственный комитет Совета Министров СССР по делам строительства) (USSR Gosstroy 6/6-1371)
Издан: ЦИТП Госстроя СССР (CITP, Gosstroy (USSR) 1989 г. )
Расположен в:Техническая документация Строительство Справочные документы Типовые строительные конструкции, изделия и узлы Общероссийский строительный каталог Строительные конструкции, изделия и узлы зданий и сооружений для всех видов строительства Конструкции, изделия и узлы зданий Несущие конструкции одноэтажных зданий Колонны Железобетонные
Серия 1.424.1-10Серия 1.424.1-10Серия 1.424.1-10Серия 1.424.1-10Серия 1.424.1-10Серия 1.424.1-10Серия 1.424.1-10Серия 1.424.1-10Серия 1.424.1-10Серия 1.424.1-10Серия 1.424.1-10Серия 1.424.1-10Серия 1.424.1-10Серия 1.424.1-10Серия 1.424.1-10Серия 1.424.1-10Серия 1.424.1-10Серия 1.424.1-10Серия 1.424.1-10Серия 1.424.1-10Серия 1.424.1-10Серия 1.424.1-10Серия 1.424.1-10Серия 1.424.1-10Серия 1.424.1-10Серия 1.424.1-10Серия 1.424.1-10Серия 1.424.1-10Серия 1.424.1-10Серия 1.424.1-10Серия 1.424.1-10Серия 1.424.1-10Серия 1.424.1-10Серия 1.424.1-10Серия 1.424.1-10Серия 1.424.1-10Серия 1.424.1-10Серия 1.424.1-10Серия 1.424.1-10Серия 1.424.1-10Серия 1.424.1-10Серия 1.424.1-10Серия 1.424.1-10Серия 1.424.1-10Серия 1.424.1-10Серия 1.424.1-10Серия 1.424.1-10Серия 1.424.1-10Серия 1.424.1-10Серия 1.424.1-10Серия 1.424.1-10Серия 1.424.1-10Серия 1.424.1-10Серия 1.424.1-10Серия 1.424.1-10Серия 1.424.1-10Серия 1.424.1-10Серия 1.424.1-10Серия 1.424.1-10Серия 1.424.1-10Серия 1.424.1-10Серия 1.424.1-10Серия 1.424.1-10Серия 1.424.1-10Серия 1.424.1-10Серия 1.424.1-10

© 2013 Ёшкин Кот :-) Карта сайта