| ||||||||||||||||||||||||||||||
Скачать Серия 1.431.9-32.96 Выпуск 0-2. Перегородки каркасные обшивные. Материал для проектированияДата актуализации: 10.08.2017
|
| Обозначение: | Серия 1.431.9-32.96 |
| Обозначение англ: | Series 1.431.9-32.96 |
| Статус: | не определен законодательством |
| Название рус.: | Выпуск 0-2. Перегородки каркасные обшивные. Материал для проектирования |
| Дата добавления в базу: | 01.09.2013 |
| Дата актуализации: | 05.05.2017 |
| Дата введения: | 01.02.1998 |
| Область применения: | Настоящий выпуск содержит материалы для проектирования противопожарных каркасно-обшивных перегородок поэлементной сборки с двуслойными и однослойными обшивками из гипсокартонных листов с пределом огнестойкости соответственно 1 и 2-го типов, а также материалы по использованию металлического профлиста в противопожарных преградах 2-го типа с пределом огнестойкости 0,25 часа |
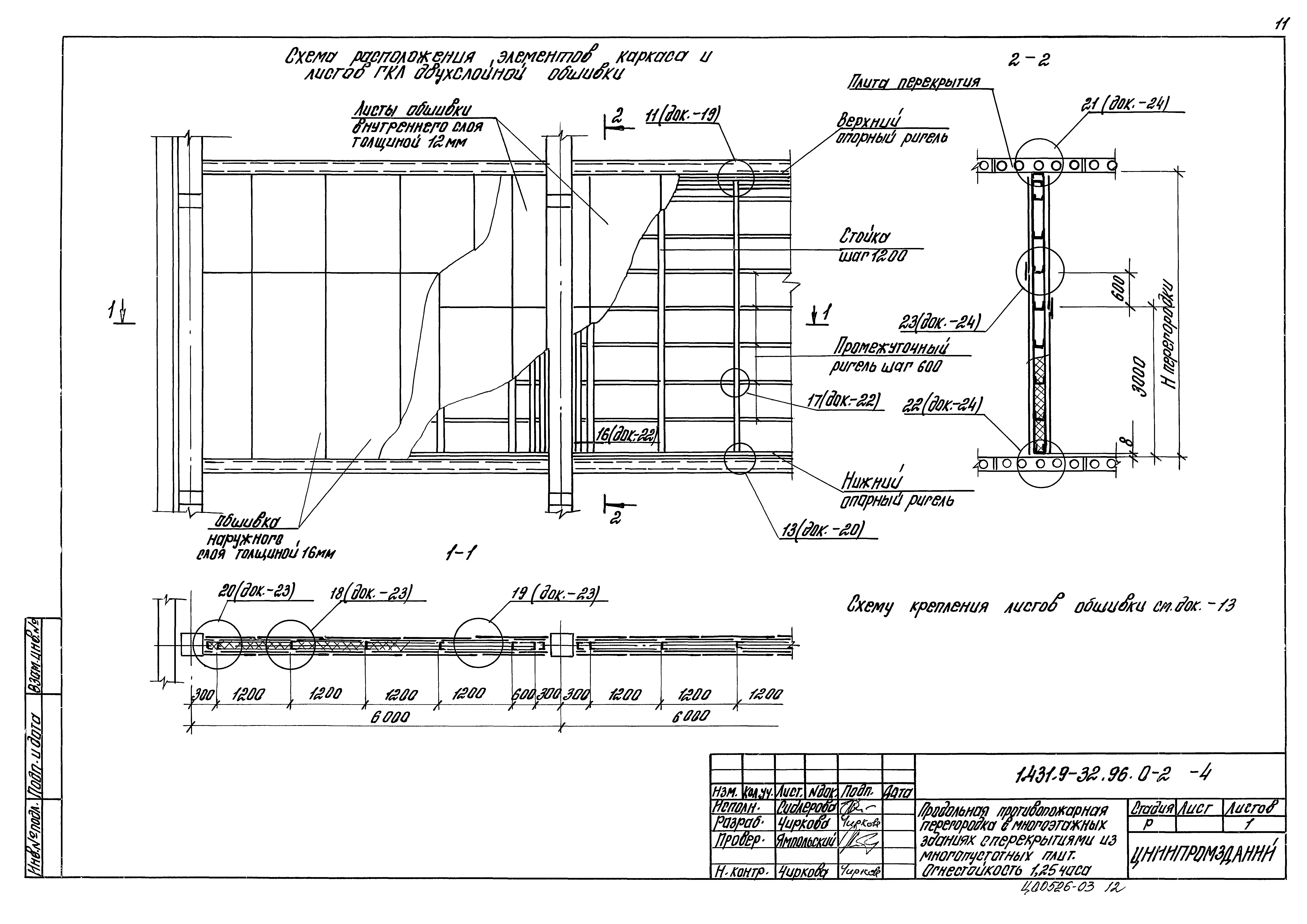
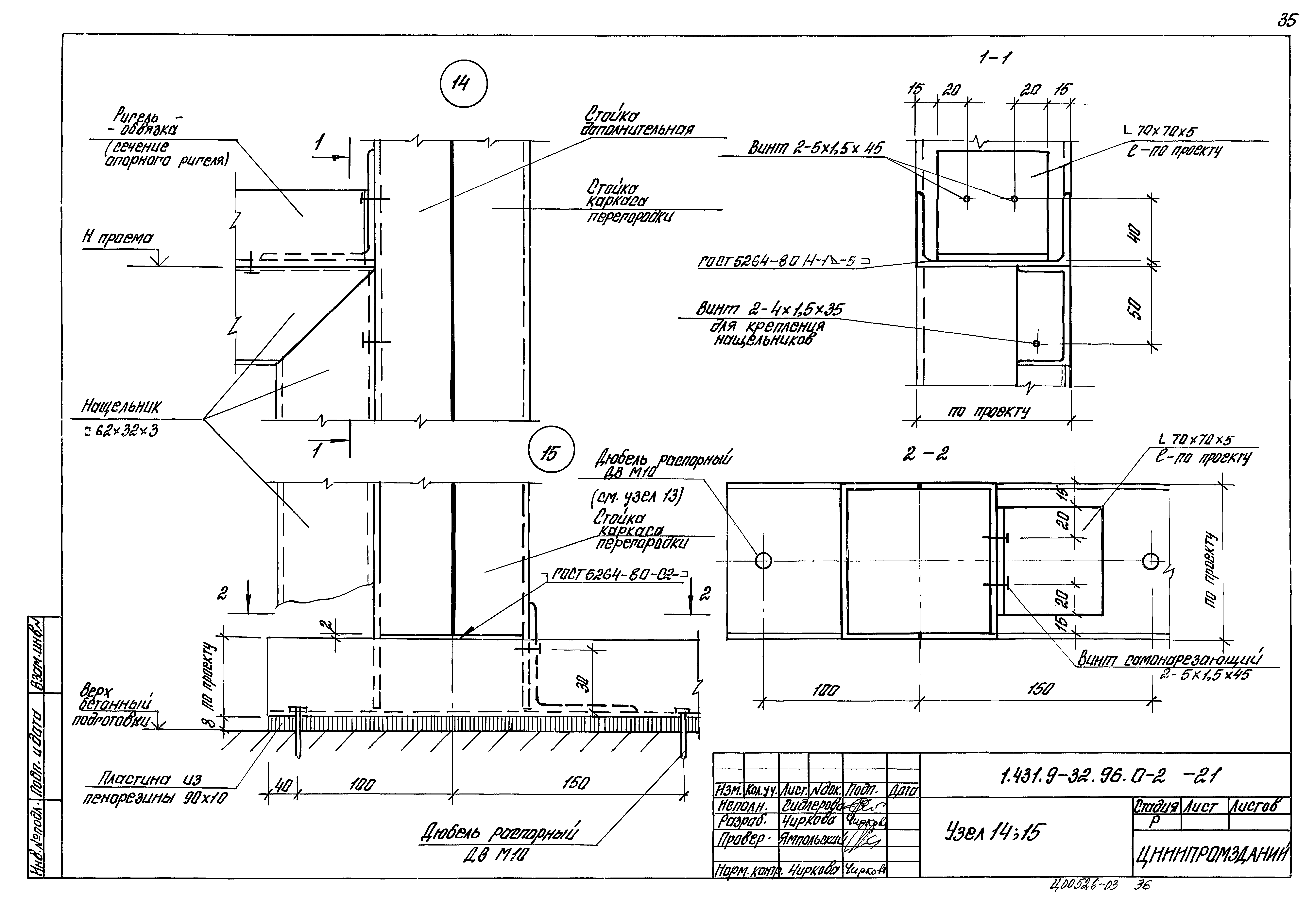
| Оглавление: | 1.431.9-32.96.0-2-ТТ Технические требования 1.431.9-32.96.0-2-1 Поперечная противопожарная перегородка в одноэтажных зданиях в створе колонн. Огнестойкость 1,25 часа 1.431.9-32.96.0-2-2 Продольная противопожарная перегородка в одноэтажных зданиях под продольными ребрами плит. Огнестойкость 1,25 часа 1.431.9-32.96.0-2-3 Поперечная противопожарная перегородка в многоэтажных зданиях в створе колонн. Огнестойкость 1,25 часа 1.431.9-32.96.0-2-4 Продольная противопожарная перегородка в многоэтажных зданиях с перекрытиями из многопустотных плит. Огнестойкость 1,25 часа 1.431.9-32.96.0-2-5 Продольная противопожарная перегородка в многоэтажных зданиях не в створе колонн. Огнестойкость 1,25 часа 1.431.9-32.96.0-2-6 Фрагмент фасада 1. Узел 1… 4 1.431.9-32.96.0-2-7 Фрагмент фасада 2 1.431.9-32.96.0-2-8 Противопожарная перегородка в одноэтажных зданиях. Огнестойкость 0,75 часа 1.431.9-32.96.0-2-9 Поперечная противопожарная перегородка в многоэтажных зданиях в створе колонн. Огнестойкость 0,75 часа 1.431.9-32.96.0-2-10 Продольная противопожарная перегородка в многоэтажных зданиях с перекрытиями из многопустотных плит. Огнестойкость 0,75 часа 1.431.9-32.96.0-2-11 Продольная противопожарная перегородка в многоэтажных зданиях не в створе колонн. Огнестойкость 0,75 часа 1.431.9-32.96.0-2-12 Решение противопожарной перегородки с обшивкой из стальных профилированных листов. Узел 7… 10. Огнестойкость 0,25 часа 1.431.9-32.96.0-2-13 Схемы крепления обшивок из ГКЛ в два слоя 1.431.9-32.96.0-2-14 Схема крепления обшивок из ГКЛ. Узел 5; 6 1.431.9-32.96.0-2-15 Пример крепления теплоизоляции при полоном заполнении полости перегородки 1.431.9-32.96.0-2-16 Пример крепления теплоизоляции при частичном заполнении полости перегородки 1.431.9-32.96.0-2-17 Устройство дверного проема 1.431.9-32.96.0-2-18 Сопряжение перегородок с коммуникациями. Примеры решений 1.431.9-32.96.0-2-19 Узел 11; 12 1.431.9-32.96.0-2-20 Узел 13 1.431.9-32.96.0-2-21 Узел 14; 15 1.431.9-32.96.0-2-22 Узел 16; 17 1.431.9-32.96.0-2-23 Узел 18; 19; 20 1.431.9-32.96.0-2-24 Узел 21; 22; 23 1.431.9-32.96.0-2-25 Узел 24; 25 1.431.9-32.96.0-2-26 Узел 26; 27; 28 1.431.9-32.96.0-2-27 Узел 29… 31 1.431.9-32.96.0-2-28 Узел 32; 33; 34 1.431.9-32.96.0-2-29 Ригель ПР1, ПР2, ПР3, ПР4 1.431.9-32.96.0-2-30 Изделие соединительное МС1; МС2 1.431.9-32.96.0-2-31 Изделие соединительное МС3; МС4 1.431.9-32.96.0-2-32 Расход материалов |
| Разработан: | ЦНИИпромзданий |
| Утверждён: | 02.12.1996 Департамент развития научно-технической политики и проектно-изыскательских работ Минстроя России (Department of Technical Research Policy and Design and Survey Operations, , Russian Federation Minstroy 9-1-1/122) |
| Расположен в: | |
| Нормативные ссылки: |
|














































