| ||||||||||||||||||||||||||||||||
Скачать Серия 1.134.1-15 Выпуск 2-1. Блоки толщиной 160 мм. Рабочие чертежиДата актуализации: 10.08.2017
|
| Обозначение: | Серия 1.134.1-15 |
| Обозначение англ: | Series 1.134.1-15 |
| Статус: | не определен законодательством |
| Название рус.: | Выпуск 2-1. Блоки толщиной 160 мм. Рабочие чертежи |
| Дата добавления в базу: | 01.09.2013 |
| Дата актуализации: | 05.05.2017 |
| Дата введения: | 15.02.1988 |
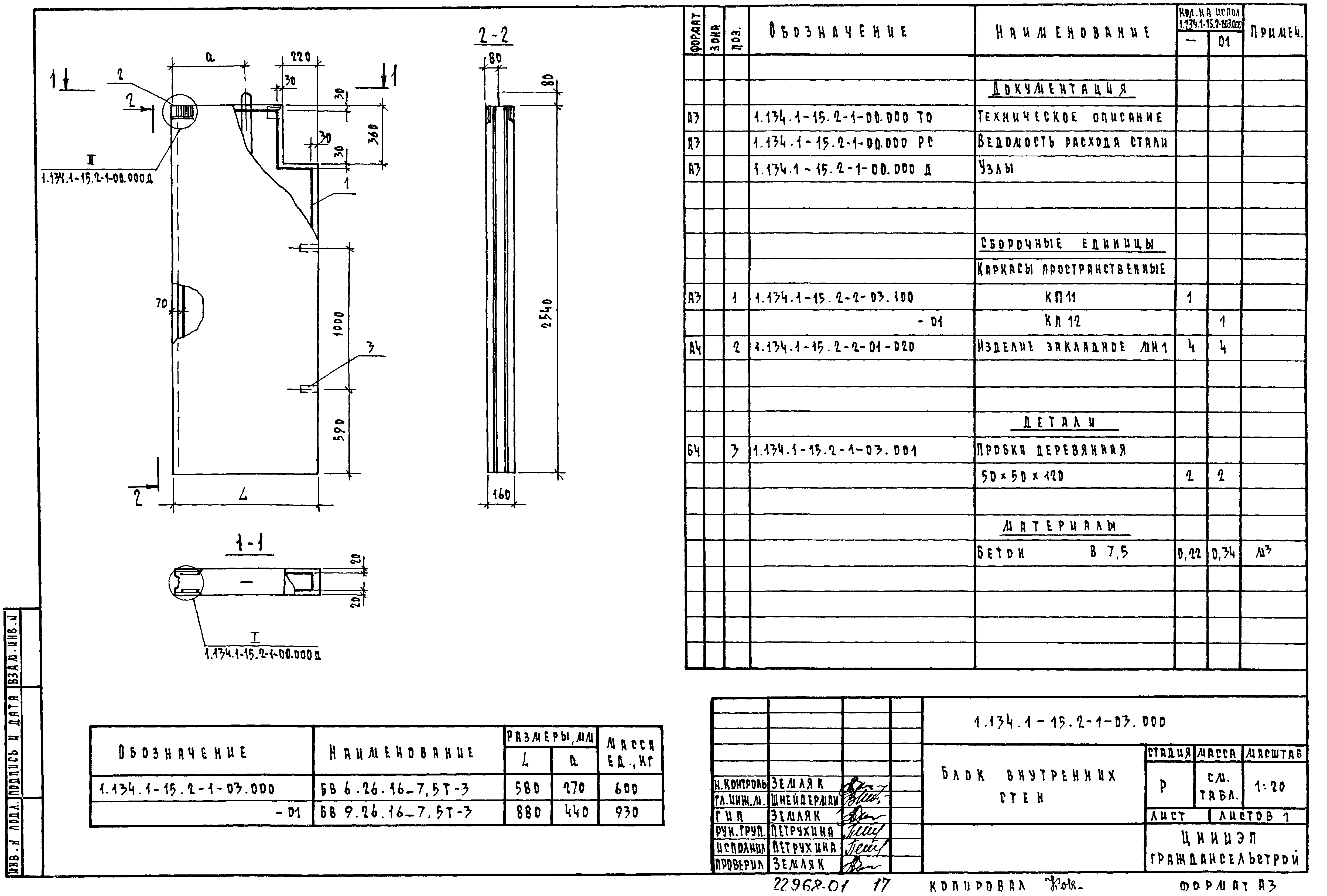
| Область применения: | Настоящий выпуск содержит техническое описание номенклатуру и сборочные чертежи блоков внутренних стен |
| Оглавление: | 1.134.1-15.2-1-00.000 ТО Техническое описание 1.134.1-15.2-1-00.000 НИ Номенклатура изделий 1.134.1-15.2-1-00.000 РС Ведомость расхода стали 1.134.1-15.2-1-00.000 РМ Ведомость расхода материалов 1.134.1-15.2-1-01.000 Блок внутернних стен 1.134.1-15.2-1-02.000 Блок внутернних стен 1.134.1-15.2-1-03.000 Блок внутернних стен 1.134.1-15.2-1-04.000 Блок внутернних стен 1.134.1-15.2-1-05.000 Блок внутернних стен 1.134.1-15.2-1-06.000 Блок внутернних стен 1.134.1-15.2-1-07.000 Блок внутернних стен 1.134.1-15.2-1-08.000 Блок внутернних стен 1.134.1-15.2-1-09.000 Блок внутернних стен БВ 6.22.16-7,5Т 1.134.1-15.2-1-10.000 Блок перемычный внутренних стен 1.134.1-15.2-1-11.000 Блок перемычный внутренних стен 1.134.1-15.2-1-00.000 Д Узлы I… III |
| Разработан: | ЦНИИЭПгражданстрой |
| Утверждён: | 27.01.1988 Госкомархитектура (23) |
| Издан: | ЦИТП Госстроя СССР (CITP, Gosstroy (USSR) 1988 г. ) |
| Расположен в: | |
| Нормативные ссылки: |
|


























