Информационная система
«Ёшкин Кот»

Скачать базу одним архивом
Скачать обновления
История создания базы
Карта сайта

Скачать Серия 1.832.1-13 Выпуск 1. Панели горизонтальной разрезки. Опалубочные чертежи и армирование. Рабочие чертежи

Дата актуализации: 10.08.2017

Серия 1.832.1-13

Выпуск 1. Панели горизонтальной разрезки. Опалубочные чертежи и армирование. Рабочие чертежи

Обозначение: Серия 1.832.1-13
Обозначение англ: Series 1.832.1-13
Статус:не определен законодательством
Название рус.:Выпуск 1. Панели горизонтальной разрезки. Опалубочные чертежи и армирование. Рабочие чертежи
Дата добавления в базу:01.09.2013
Дата актуализации:05.05.2017
Дата введения:15.02.1989
Область применения:Настоящие технические условия распространяются на трехслойные железобетонные панели горизонтальной разрезки на гибких связях с плитным утеплителем
Оглавление:1.832.1-13.1-ТУ Технические условия
1.832.1-13.1-1 Панель ПСТ 60.6.21…. ПСТ 60.6.31
1.832.1-13.1-2 Панель ПСТ 60.9.21…. ПСТ 60.9.31
1.832.1-13.1-3 Панель ПСТ 60.12.21…. ПСТ 60.12.31
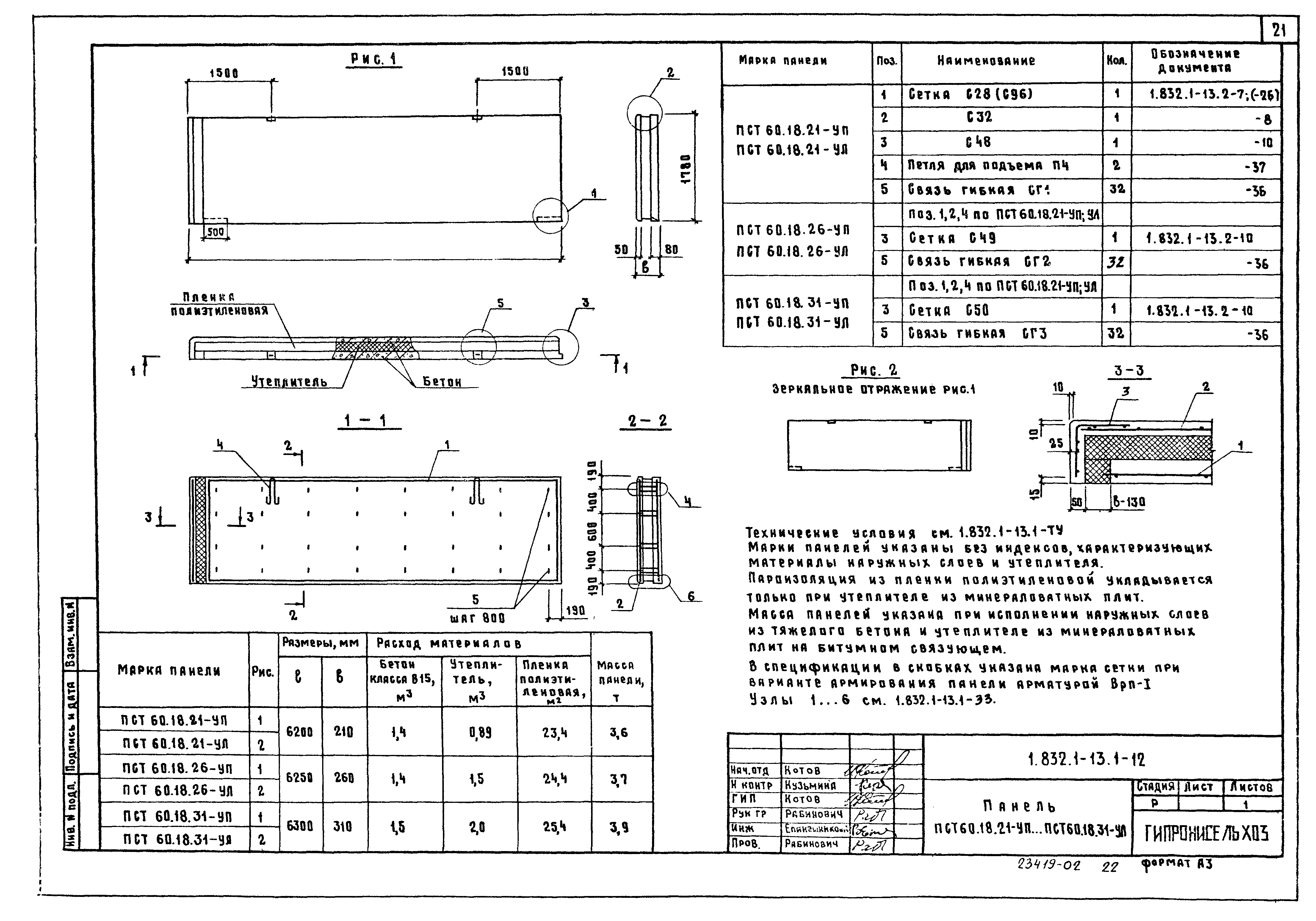
1.832.1-13.1-4 Панель ПСТ 60.18.21…. ПСТ 60.18.31
1.832.1-13.1-5 Панель ПСТ 30.6.21…. ПСТ 30.6.31
1.832.1-13.1-6 Панель ПСТ 30.9.21…. ПСТ 30.9.31
1.832.1-13.1-7 Панель ПСТ 30.12.21…. ПСТ 30.12.31
1.832.1-13.1-8 Панель ПСТ 30.18.21…. ПСТ 30.18.31
1.832.1-13.1-9 Панель ПСТ 60.6.21 - УП…. ПСТ 60.6.31 - УЛ
1.832.1-13.1-10 Панель ПСТ 60.9.21 - УП…. ПСТ 60.9.31 - УЛ
1.832.1-13.1-11 Панель ПСТ 60.12.21 - УП…. ПСТ 60.12.31 - УЛ
1.832.1-13.1-12 Панель ПСТ 60.18.21 - УП…. ПСТ 60.18.31 - УЛ
1.832.1-13.1-13 Панель ПСТ 12.12.21…. ПСТ 6.12.31
1.832.1-13.1-14 Панель ПСТ 12.12.21 - УП…. ПСТ 12.12.31 - УЛ
1.832.1-13.1-15 Панель ПСТ 9.24.21…. ПСТ 12.24.31
1.832.1-13.1-16 Панель ПСТ 15.24.21…. ПСТ 15.24.31
1.832.1-13.1-17 Панель ПСТ 6.24.21…. ПСТ 6.24.31
1.832.1-13.1-18 Панель ПСТ 6.30.21…. ПСТ 6.30.31
1.832.1-13.1-19 Панель ПСТ 9.30.21…. ПСТ 9.30.31
1.832.1-13.1-20 Панель ПСТ 12.30.21…. ПСТ 12.30.31
1.832.1-13.1-21 Панель ПСТ 15.30.21…. ПСТ 15.30.31
1.832.1-13.1-22 Панель ПСТ 18.30.21…. ПСТ 18.30.31
1.832.1-13.1-23 Панель ПСТ 21.30.21…. ПСТ 21.30.31
1.832.1-13.1-24 Панель ПСТ 60.13,5.21 - Ф…. ПСТ 60.13,5.31 - Ф
1.832.1-13.1-25 Панель ПСТ 30.10.21 - Ф…. ПСТ 30.10.31 - Ф
1.832.1-13.1-26 Панель ПСТ 60.18.21 - ФП…. ПСТ 60.18.31 - ФЛ
1.832.1-13.1-27 Панель ПСТ 60.21.21 - ФП…. ПСТ 60.21.31 - ФЛ
1.832.1-13.1-28 Панель ПСТ 30.15.21 - ФП…. ПСТ 30.15.31 - ФЛ
1.832.1-13.1-29 Панель ПСТ 60.21.21 - ФУП…. ПСТ 60.21.31 - ФУЛ
1.832.1-13.1-30 Панель ПСТ 30.15.21 - ФУП…. ПСТ 30.15.31 - ФУЛ
1.832.1-13.1-31 Панель ПСТ 15.9.21 - ФУП…. ПСТ 15.9.31 - ФУЛ
1.832.1-13.1-32 Панель ПСТ 15.10,5.21 - ФУП…. ПСТ 15.10,5.31 - ФУЛ
1.832.1-13.1-33 Узлы 1… 8
1.832.1-13.1-1РС Ведомость расхода стали (при варианте армирования панелей арматурой А-III и Вр-I)
1.832.1-13.1-2РС Ведомость расхода стали (при варианте армирования панелей арматурой Вр-II)
Разработан: НИИСК Госстроя СССР
ЦНИИЭПсельстрой
ГипроНИсельхоз (Институт Гипронисельхоз )
Утверждён:12.08.1988 Госагропром СССР (USSR Gosagroprom 804-48/853)
Издан: ЦИТП Госстроя СССР (CITP, Gosstroy (USSR) 1988 г. )
Расположен в:Техническая документация Строительство Справочные документы Типовые строительные конструкции, изделия и узлы Общероссийский строительный каталог Строительные конструкции, изделия и узлы зданий и сооружений для всех видов строительства Конструкции, изделия и узлы зданий Ограждающие конструкции Стены наружные Панели (бетонные и железобетонные)
Заменяет собой:
Нормативные ссылки:
Серия 1.832.1-13Серия 1.832.1-13Серия 1.832.1-13Серия 1.832.1-13Серия 1.832.1-13Серия 1.832.1-13Серия 1.832.1-13Серия 1.832.1-13Серия 1.832.1-13Серия 1.832.1-13Серия 1.832.1-13Серия 1.832.1-13Серия 1.832.1-13Серия 1.832.1-13Серия 1.832.1-13Серия 1.832.1-13Серия 1.832.1-13Серия 1.832.1-13Серия 1.832.1-13Серия 1.832.1-13Серия 1.832.1-13Серия 1.832.1-13Серия 1.832.1-13Серия 1.832.1-13Серия 1.832.1-13Серия 1.832.1-13Серия 1.832.1-13Серия 1.832.1-13Серия 1.832.1-13Серия 1.832.1-13Серия 1.832.1-13Серия 1.832.1-13Серия 1.832.1-13Серия 1.832.1-13Серия 1.832.1-13Серия 1.832.1-13Серия 1.832.1-13Серия 1.832.1-13Серия 1.832.1-13Серия 1.832.1-13Серия 1.832.1-13Серия 1.832.1-13Серия 1.832.1-13Серия 1.832.1-13Серия 1.832.1-13Серия 1.832.1-13Серия 1.832.1-13Серия 1.832.1-13Серия 1.832.1-13Серия 1.832.1-13Серия 1.832.1-13Серия 1.832.1-13Серия 1.832.1-13Серия 1.832.1-13Серия 1.832.1-13Серия 1.832.1-13

© 2013 Ёшкин Кот :-) Карта сайта